Съвременните газови уреди на пазара за битови отоплителни уреди отговарят на всички европейски стандарти за качество и безопасност и в същото време имат относително ниска цена.
Но преди да запали газовата колона Ariston и да започне да я използва, собственикът трябва внимателно и задълбочено да се запознае с нейния принцип на работа, инструкции за експлоатация и правила за безопасност. За това ще говорим подробно в нашата статия, предоставяйки на материала визуални снимки и видео препоръки.
Устройство за колона Ariston и принцип на действие
Има атмосферни и турбокомпресори газови уреди. Атмосферните са оборудвани с отворена горивна камера, докато турбокомпресорните имат затворена камера. Тук разгледахме рейтинга на най-добре протичащите газови колони.
Ariston е специализирана в производството на бойлери и бойлери от първия и втория тип и е лидер на пазара в производството на бойлери. Препоръчваме ви да се запознаете с нюансите на свързването на газовия котел Ariston.
От цялата гама модели на марката, следните модели са най-търсени според отзивите на клиентите:
- Ariston fast evo - модерен бойлер с електрическо запалване и отворена горивна камера, с вградена система за контрол на пламъка, която ви позволява да поддържате постоянна температура в него.
- Ariston Marco Polo Gi7S - най-мощният модел с електрическо запалване и затворена горивна камера, с електронен тип управление и система за защита от прегряване.
- Ariston CA 11P - проточен газов бойлер със система за пиезо запалване и отворена горивна камера, характеризираща се с проста и лесна работа, принадлежи към бюджетната ценова категория.
Въпреки разнообразието на моделната гама на Ariston, всички устройства имат сходна структура, различаваща се само по дизайн и незначителни дизайнерски разлики.

Гейзерите с марка Ariston са най-продаваните сред водното отоплително оборудване, поради техните характеристики като лекота на използване, икономичност, безопасност и модерен дизайн
За да разберете как правилно да използвате газовата колона Ariston, помислете за нейната структура.
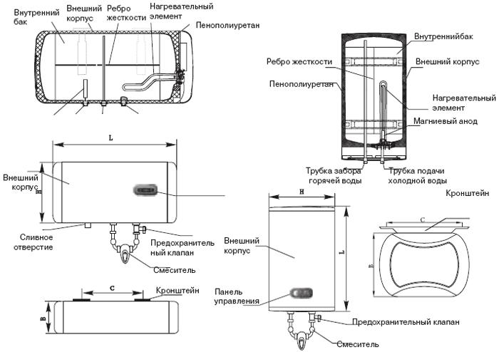
Бойлерът се състои от следните основни елементи:
- воден блок;
- газов котлон;
- горивната камера;
- топлообменник;
- комин;
- вентилатор (ако е модел с турбокомпресор);
- сензори за наблюдение на подаването на гориво, температурата на водата, сцеплението и др .;
- контролен панел.
В допълнение към основната конфигурация на газовата колона Ariston, устройството включва канали за подаване на газ и тръби, през които тече вода.


Основните възли на стенния проточен бойлер Ariston, които осигуряват неговата стабилна и непрекъсната работа
В предната част на корпуса на котела има контролен панел, който позволява на потребителя да наблюдава работата на устройството и да задава желаните параметри, има регулатори на потока на газ и течност. Тук може да бъде разположен и монитор с течни кристали, показващ температурата на водата.
Ако опишем накратко принципа на действие на газовата колона, то той е следният: газът, изгаряйки вътре в устройството, загрява чешмяната вода, която преминава през топлообменника и след това се източва през крана. Можете да прочетете повече за принципа на действие на газовата колона в този материал.
Съставът
Плосък котел Ariston
Обхватът на бойлерите е доста огромен и непрекъснато се попълва. Те са много компактни, въпреки че имат голяма денивелация.За четиричленно семейство 80-литров контейнер е идеален.
Много често се срещат квадратни резервоари с механично управление. Единственият недостатък е неусъвършенстваният закрепващ механизъм.
Има и модели с максимален капацитет от 100 литра. Такива единици са в състояние да осигурят индустриални душ кабини. Изолационният слой на такива модели е направен от полиуретанова пяна.
Гамата бойлери Ariston може да има както подобрена електронна система, така и опростен механизъм за управление. Насипните резервоари са гарантирани средно за седем години. За допълнително закрепване на котли се правят специални метални рамки.
Какво трябва да знаете, преди да свържете газовата колона Ariston
Бойлерите Ariston са доста икономични и имат нисък разход на газ. В същото време котелът има широк спектър от оперативни възможности.
Преди да започнете да използвате гейзера Ariston, трябва да направите следното:
- уверете се, че апартаментът (къщата) има добра вентилация;
- проверете налягането на водата - ако маркировката за налягане е под 0,3 атм, тогава трябва да се погрижите за допълнително подаване на веригата;
- ако често се наблюдава намаляване на налягането на водата в апартамент, е необходимо да се уверите, че няма изтичане на течност от самата система.
В същото време е важно да знаете, че такива идентифицирани неизправности, като ниско налягане на водата, трябва да се отстраняват само от специалист.


Позволете само на квалифицирани техници да инсталират и конфигурират устройството. Самостоятелното свързване на колоната с газопровода не само е изпълнено с глоби, но и може да причини авария
Модерните гейзери Ariston са универсални и доста лесни за използване. За да ги активирате, трябва само да натиснете бутон. Необходимата температура на газовото оборудване на марката се настройва с помощта на специални бутони за управление - за подаване на топла вода е достатъчно да зададете 36-56 градуса.
Също така е важно да знаете, че бойлерът се включва веднага след отваряне на крана за топла вода. Веднага след като потребителят затвори крана, колоната спира да загрява водата. Ако устройството трябва да бъде напълно изключено, завъртете външния превключвател на максимум и изключете подаването на газ.
Отзиви


- Мария Александровна: „Нашето семейство има две малки деца, които трябва да се къпят всеки ден. Ето защо спешно трябваше да разрешим въпроса за закупуването на котел. Избрахме нашето 80-литрово устройство Ariston в интернет (тъй като нямаше възможност да посетим магазина) и никога не съжалявахме. Котелът консумира само 1,5 kW на час и загрява водата до 75 градуса. И тази температура на водата продължава много дълго. "
- Евгений: „Имам Аристън у дома в плосък дизайн. Веднага взех решение за местоположението на котела: стената на тоалетната просто идеално пасваше на размера. Осветлението му е толкова мощно, че лесно осветява тоалетната. Сега мога да спестя два пъти на електричество. "
- Олег Едуардович: „Тъй като прекарвам много време в страната, реших да инсталирам бойлера там. Обичам факта, че има бърз режим на отопление. На практика не пестя вода, тъй като 80 литра са ми достатъчни дори за битови нужди. "
Настройка на устройството при първата връзка
Когато включите домакинския газов бойлер Ariston за първи път, трябва да го настроите съответно. Всички въпроси, свързани с инсталирането на устройството, са подробно описани в Инструкции за работа.
Ръководството включва обяснения как да свържете устройството към водопровода, да го включите и да запалите пламъка. Всяко действие има своя собствена схема, която трябва да се спазва стриктно, за да се избегнат проблеми при използване на проточен газов бойлер.


Газовият котел Ariston е надежден блок, който, ако е правилно инсталиран, свързан и експлоатиран, ще ви осигури топла вода по всяко време на годината
Правилната настройка се извършва съгласно следния алгоритъм:
- Регулиране на водния поток - на този етап трябва да се регулира водният поток, той трябва да бъде минимален (оптималната стойност е 6, 10 или 12 литра). Ако тази стъпка не бъде извършена в самото начало, тогава цялата инсталация ще бъде неточна.
- Регулиране на температурата на водата - смесителят, подаващ топла вода, трябва да се завърти / отвори с пълна мощност. Освен това е позволено да се развие само един клапан / да се отвори един клапан в цялата стая. След това температурата на водата се регулира, след което кранът се затваря.
- Регулиране на подаването на газ - за това е необходимо да се изясни минималният параметър на устройството (можете да го намерите в информационния лист на колоната Ariston). За регулиране на газовия поток превключвателят се връща на минимум и вентилът за подаване на газ се отваря.
- Следващата стъпка е да отворите горещия клапан... След това бойлерът веднага започва да работи - майсторите препоръчват да се изчака налягането в тръбата да спадне, преди да започне инсталацията, и след това завъртете регулатора на газа до минималната стойност, докато се достигне оптималната температура.
- Последна стъпка - регулиране на горещия поток... Първо, трябва да отворите смесителя и да изчислите температурата на нагряване на потока, която трябва да бъде с 25 градуса по-висока от изхода. Тъй като нагревателят на газов котел загрява водата постепенно, трябва да изчакате.
Експертите препоръчват да не се повишава температурата на горещата вода над 55 градуса, тъй като в този случай в топлообменника ще започне да се натрупва скала, която може да повлияе отрицателно на работата на устройството. И след определен период от време ще е необходимо почистване на колоната.
Правила за работа на бойлера
Не е трудно да удължите живота на нагревател за съхранение на марка ariston, просто трябва да го инсталирате в съответствие с инструкциите и стабилно следвайте правилата за използване на устройството:
- Наличието на вода в котела трябва да се следи всеки път, когато устройството се включва и изключва. Включването е възможно само когато резервоарът се напълни с вода.
- Ако захранващият кабел е повреден, той трябва да бъде заменен с материал от същата марка, който е по-добре да се закупи в специализиран магазин.
- Ако нагревателят няма да се използва дълго време, особено в студения сезон, тогава водата от котела трябва да се източи, като се спазват всички правила, предписани в инструкциите. След това кранът за подаване на студена вода се затваря. След извършване на тези действия нагревателят се изключва от електрозахранването.
- Нагревателят трябва да се почисти от мръсотия с течение на времето. За да извършите тази работа, е по-добре да използвате услугите на специалисти.


Ние съветваме Топлоизолация на тръби: изисквания за защита и избор на материали. Каква изолация за тръби да изберем
Запалване на устройство за нагряване на вода
В зависимост от модела на газовия бойлер можете да го запалите по три начина:
- ръчно - използване на пиезоелектричен елемент или кибрит (подходящо за стари модели високоговорители);
- електрическо запалване (от батерии или от мрежа 220 V);
- от турбината.
Ръчно запалване колона е възможно с мачове, ако говорим за модел от стария модел.
Преди да включите такава газова колона Ariston, трябва да направите следното:
- Отворете крана за подаване на вода, свързан към устройството.
- Завъртете главния клапан, за да подадете гориво на пилота.
- Запалете фитила с кибрит.
- Включете регулатора на газа.
Този метод на запалване не е абсолютно безопасен. Следователно е необходимо да се спазват всички правила за безопасност и да се пазят децата далеч от устройството.


За да запалите ръчно бойлера, отворете клапаните за подаване на вода и основния за подаване на газ и след това запалете фитила
Ръчна версия с пиезо запалване по-удобно. Просто натиснете бутон, за да запалите фитила в горивната камера. Водонагревателите с пиезо запалване не е необходимо да се изключват напълно - когато водата се изключи, само фитилът ще изгори. Недостатък на метода: увеличен разход на газ.
Устройства с автоматично запалване най-безопасният и удобен за използване. С тази опция са оборудвани най-новите модели технология за отопление на водата.
Подробни инструкции за включване на колона Ariston с автоматично запалване:
- Уверете се, че кранът на входа за студена вода към бойлера е отворен.
- Уверете се, че газовият клапан също е отворен.
- Проверете дали батериите са инсталирани правилно (1,5 V LR20).
- Завъртете копчето за регулиране между минималното и максималното положение.
За да изключите бойлера с газ, просто затворете крана за топла вода. Ако се изисква напълно да изключите газовата колона, първо трябва да завъртите дръжката (на контролния панел) в положение OFF, докато спре. След това изключете газовия клапан на тръбопровода.
След като се освободите напълно от водата, затворете водния клапан на водопровода пред газовия бойлер.


Газовите бойлери с автоматично активиране се считат за най-лесните и удобни за използване. За да светне колоната, е достатъчно да проверите дали батериите са поставени правилно и да завъртите копчето между разделенията "минимум" и "максимум"
Отзиви за бойлери ARISTON с обем 80 литра
За тези купувачи, които са решили и закупили бойлер на Аристон, отзивите остават чисто положителни. По-долу са някои от тях.
„Предимства: отличен„ работник “. Недостатъци: не е намерен.
Тъй като имаме частна къща, но няма газ, беше решено да закупим котел. Уморени сте от постоянно нагряване на вода на печката, за да изкупите и дори просто да измиете чиниите. Попитахме приятели, които вече имат опит с такива единици. Те от своя страна посъветваха бойлера на Аристон. След като прочетохме още отзиви, избрахме такава марка като ARISTON.


Закупихме модел с обем 80 литра. Това е достатъчно, за да го използва семейството. Много ми хареса наличието на сензор, с помощта на който винаги можете да разберете нивото на температурата на водата, за да не "влезете в чувал")). Този нагревател ни служи от много години, дори беше тъжно да го напуснем (премахнаха го, тъй като имаха инсталиран газ и беше свързан двуконтурен котел). Но по време на услугата този нагревател се показа добре: бързо „доставяше“ топла вода и поддържаше температурата си дълго време, консумираше малко енергия. Като цяло моделът е отличен !!! "
„Предимства: компактност, бързо нагряване на водата, ниска консумация на електроенергия, оборудвана с допълнителна защита. Недостатъци: не.
Отличен бойлер. Трябваше да го опознаем, когато започна систематично спиране на топла вода в къщите за неопределено време. За да не седим и чакаме „чудо“, беше решено да си купим бойлер. Купихме нагревател по съвет на продавача
Ariston SG-80, който нямаше висока цена. И външно го харесвахме. Мястото за котела беше определено в тоалетната, където не създаваше неудобства на никого. По време на употреба се уверихме, че са взели отличен помощник: той бързо загрява вода (80 литра за 4 часа), консумира малко - 1,5 kW, загрява водата до приемлива температура - 75 °, има предпазен клапан и магнезиев анод . Бяхме напълно доволни от избора! "


„Предимства: простота, надеждност, лекота на използване. Недостатъци: Не разкрих никакви специални.
Бойлер с марката Ariston SG-80 дойде в къщата ни още през 2013 г., купихме го с отстъпка и не съжалявахме. Съпругът сам се занимаваше с инсталацията, оказа се, че не е толкова трудно. Нагревателят обслужва банята и мивката. Има достатъчно вода с глава, въпреки че сме задали нивото на отопление на 50 °, това ви позволява да спестите малко. Средно са необходими 2 часа за нагряване на 80 литра при тази температура.Бях много доволен от тихата работа на това устройство. Бяхме доволни от покупката. "


„Предимства: отопление до 75 °, ниска консумация на енергия. Недостатъци: малко съществено, но капакът е лошо замислен.
Нашият малък град не е свързан с водоснабдяване с топла вода. Докато живеехме заедно, се разбирахме. Но след появата на бебето решихме да си купим бойлер. Избрахме модели с обем от 80 литра, налични с нашите средства. Спряхме се на модела Ariston SG 80, който ни устройваше във всички отношения: консумация на енергия от 1,5 kW, обем, температура на отопление, която достига 75 ° и, разбира се, цената.
След като се установиха, те самите усетиха достойнствата. Всичко работеше с гръм и трясък. Създаде малко неудобство при превключване на температурите, когато беше необходимо да превключите лоста под капака. Не беше съвсем удобно да пълзи с отвертка на правилното място. Но това не е толкова важно, защото трябваше да сменим температурните показатели само веднъж. Като цяло моделът е отличен. Препоръчайте на всички! "
Съветваме Избор на бойлер: съхранение или моментално? Плюсове и минуси на инертни материали
Правила за използване на колоната в апартаменти
Всеки модел на Ariston се предлага с ръководство за употреба. Ръководството обяснява подробно основните правила за използване на устройството, стандартите за безопасност и много други. Ако се придържате към всички препоръки на производителя, тогава експлоатационният живот на уреда ще бъде по-дълъг, а вероятността от неизправности и опасни ситуации е по-малка.
Препоръки на производителя за употреба
Основни препоръки за работа:
- Не е разрешено поставянето на чужди предмети върху повърхността на устройството.
- Почистването и поправката на устройството е разрешено само когато е изключено от всички източници на енергия (водоснабдяване, газ, електричество).
- Ако откриете някакви чужди миризми, които идват от газовото оборудване, то трябва незабавно да се изключи от електрическата мрежа.
- В случай, че контролерът на продуктите от горенето не работи, е забранено да се включва колоната.
Само ако се спазват всички горепосочени правила, използването на газово оборудване Ariston ще бъде безопасно.
Ако работата на устройството е неправилна и грижите за него не са правилни, това може да доведе до най-непредсказуемите последици, включително експлозии, пожари и фатално отравяне. Ето защо, за да избегнете неприятности в резултат на неправилна поддръжка, най-добре е да изберете газова компания и да сключите договор за поддръжка с нея.


Ако спазвате всички правила за експлоатация на газовия бойлер Ariston, той ще продължи дълго и без прекъсване, осигурявайки комфорт и уют в апартамента
Правила за безопасност
Основните правила за безопасност, които всеки потребител трябва да знае, кой е инсталирал газов бойлер Ariston в апартамент (къща):
- Ако усетите миризма на газ, незабавно спрете да използвате газови уреди и затворете крановете на всички устройства. След това трябва незабавно да се обадите на спешната служба.
- Не е разрешено неоторизирано газифициране на апартаменти, както и изключване на стари и свързване на нови газови уреди.
- Забранено е да се разрешава на деца в предучилищна възраст, както и на хора с увреждания, да използват колоната.
- Недопустимо е да се използват кухни и други помещения, където е монтирано газово оборудване за сън и релаксация.
В газифицираните помещения вентилационните канали трябва да са постоянно отворени, а когато се използват газови уреди, вентилационните отвори също трябва да бъдат отворени.
Повече информация за мерките за безопасност и правилата за експлоатация на газово оборудване обсъдихме в следващата статия.
Характеристики на бойлера
Характерна особеност на бойлерите е вграден резервоар... В него се натрупва вода, запазвайки зададената от програмата температура.Този модел ще стане актуален за тези, които от време на време имат проблеми с водоснабдяването с топла и студена вода. Осем-литровият резервоар на модела, както посочват инструкциите, е идеален за семейство от три души. Измийте чиниите, вземете душ, изкъпете детето.
Структурата на котела прилича на термос: в него течността не само се нагрява, но и задържа топлината. Топлоизолационният материал заема празното пространство между корпуса на резервоара и резервоара. Схематично представяне инструкциите ясно ни показват това. Спестява енергия, защото не се налага постоянно да поддържате температурата.
Вътрешният резервоар на бойлера "Ariston" 80 литра е изработен от висококачествена стомана, която има повишена устойчивост на корозионни процеси. Факт е, че под въздействието на агресивна среда (постоянни високи температури, влажност, промени в нивото на водата) металните компоненти страдат предимно. Поради това инженерното бюро "Аристон" е разработило специална сплав, която е получила максимална устойчивост на корозия от ръжда.
Нагревателният елемент на бойлера (TEN) има надеждна изолация. Характеристика на модела е материал на нагревателния елемент - сплавкоето може да съдържа:
- мед;
- неръждаема стомана.
Топлинната мощност се увеличава от месингов фланец.
Една от основните части на 80-литровия котел Ariston е магнезиевият анод. Изработена е от специална сплав и е закрепена до нагревателния елемент. Неговата функция е да предпазва стените на резервоара за бойлер от ръжда, за да намали количеството на котлен камък. Ако не започнете да се борите с корозията навреме, с течение на времето тя ще започне да корозира металните стени на контейнера и в резултат на това ще започне да пропуска вода. Мащабните слоеве върху нагревателния елемент ще увеличат времето за нагряване, което ще доведе до нерационално потребление на електроенергия и дори повреда на елемента. Влизайки в химическа реакция с агресивна среда, анодът предпазва вътрешните части от негативни влияния. Вие, разбира се, няма да прочетете това в ръководството за устройството, но е полезно за получаване на обща информация.
Интелигентна система за управление, което дори ученик ще разбере. Ергономичният дизайн позволява поставянето на 80-литрови бойлери Ariston хоризонтално. Освен това оборудването е надеждно защитено от прегряване и високо налягане.














