Отоплителната система е под една или друга форма, но тя присъства във всяка къща. Ако по-рано той се основаваше на печка, днес почти навсякъде е заменен от специални устройства - отоплителни устройства.
Но ако повечето от тях имат сходен дизайн, тогава схемата на пиролизния котел се различава много от тях. Това се дължи на работата по различни видове гориво.
Начинът на изгаряне обаче може да бъде различен. За да се уверите в това, разгледайте подробно устройството на пиролизния котел, неговия принцип на работа и схемата на свързване.
Ново в отоплението на дърва
Фактът, че работата на всяка домашна печка, както и на много съвременни отоплителни уреди, се основава на изгаряне на гориво, със задължителната доставка на обогатен с кислород въздух, е известен на всички. Но съвременните газогенериращи модели котли основно са зачеркнали този принцип.
Тяхната работа изисква висока температура с липса на кислород, което означава, че конструкцията на пиролизния котел е коренно различна от другите модели. Какво се случва с дървото в този случай?
Под въздействието на висока температура те се разпадат на компоненти:
- Твърди остатъци (въглища)
- Пиролизен газ
- Смола
- Метилов алкохол
Всички получени вещества са запалими и се изгарят по време на работа на устройството, докато колкото повече дървото се загрява, толкова повече газ ще се получи на изхода. А работата на апарата се основава на неговото изгаряне, за което те често се наричат газогенератори.
За да разберем как протича този процес, ще разгледаме какъв е дизайнът на пиролизните котли и какви функции изпълнява всеки от блоковете.
Инструменти и материали
За да монтирате такова устройство самостоятелно, ще ви е необходим следният набор от инструменти и материали:
- Термичен сензор.
- Вентилатор.
- Стоманени ленти с различна дебелина и ширина.
- Комплект професионални тръби с диаметър 2 мм.
- Метални листове с дебелина 4 мм.
- Комплект тръби с различен диаметър.
- Режещо колело с диаметър 230 мм.
- Шлифовъчно колело с диаметър 125 мм.
- Ръчен циркуляр (мелница).
- Няколко пакета електроди.
- Заваръчна машина.
- Електрическа бормашина.
Ако планирате да направите свой собствен пиролизен котел, препоръчителната дебелина на стоманата трябва да бъде 4 мм. За да спестите пари, можете да използвате 3 мм стомана. За производството на корпуса на устройството ще ви е необходима здрава стомана, която може да издържи на високи температурни условия.
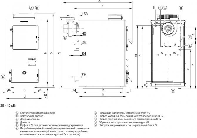
Класическа схема на устройството

Основните елементи на пиролизния котел:
- Допълнителни горелки и камери за газификация
- Канали за подаване на въздух
- Воден топлообменник
- Настържете
- Комин
- Сензори за температура и налягане
- Вентилатор или димоотвод
Въпреки това, за да имаме добра представа за целия процес на работа на отоплителното тяло, ще разгледаме устройството на пиролизните котли и ще се запознаем с предназначението на всеки от блоковете, включени в него.
Като начало всяко отоплително устройство е проектирано да загрява водата до необходимата температура и да я подава към системата. За тази цел се използва воден топлообменник. Охлаждащата течност влиза в него през връщащата линия, загрява се и се връща обратно през захранващата линия.
Горивната камера се използва за изгаряне на гориво и неговото разлагане с липса на първичен въздух. Количеството на последния се регулира от независим термостат.
Отделението за доизгаряне е необходимо за окисляването на пиролизния газ при взаимодействие с вторичен въздух и събиране на пепел. Връзката на димните газове и комина са необходими за изпускането на дим в атмосферата.
Предимства и недостатъци
Предимствата на пиролизния отоплителен уред включват:
Друго значително предимство на газовите котли е тяхната съвместимост с всяка отоплителна система.
Недостатъците са:
- висока цена;
- сложно строителство;
- обемност;
- повишени изисквания за гориво по отношение на влагата;
- необходимостта от свързване към електричество (вижте модели котли с принудително подаване на въздух).
Поетапна работа на пиролизния котел


За да имате най-пълната представа за конструктивните характеристики на апарата и принципа на неговото действие, помислете за устройството на пиролизния котел и неговите схеми за свързване на снимката по-долу.
Камерите са разположени една над друга и са разделени с решетка. В началния етап дърва за огрев се зареждат в горната част, която е бункер за гориво, и се запалват.
След затваряне на вратата и стартиране на димоотвода или вентилатора дървото се изсушава. Освен това, когато температурата се повиши до 200 градуса или повече и липсва кислород в камерата, се получава разлагане на твърд остатък и дървесен газ - това е процесът на пиролиза.
Долното отделение или горивната камера се използват за изгаряне на пиролизния газ и събиране на останалата пепел след изгаряне. В него към освободените летливи вещества се добавя вторичен въздух и се получава изгаряне на газ и част от топлината се връща в долния слой дърва за огрев, повишавайки температурата и поддържайки процеса на пиролиза.
В този случай мощността на котела се регулира чрез налягане на вторичния въздух през каналите, използвани за подаването му.
На следващия етап топлината, получена по време на реакцията, се използва за нагряване на вода в топлообменник, която след това влиза в отоплителната система.
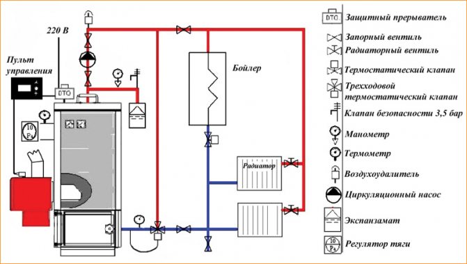
Подробна схема на свързване
Не е достатъчно да закупите отоплително устройство, то също трябва да бъде инсталирано правилно и също така свързано към системата.
Свързването на пиролизния котел може да се извърши по няколко начина:
- Просто
- С контур за смесване
- С хидравлична стрелка
- С резервоар за съхранение и верига за БГВ


Първият, освен самото устройство, включва: циркулационна помпа, разширителен резервоар и група за сигурност. При такава връзка може да се получи малко количество кондензат, но управляващият блок реагира на натрупването му. В този случай той прекъсва захранването на помпата и по този начин предотвратява образуването на голямо количество конденз.
Втората схема за свързване на пиролизен котел, в допълнение към изброените по-рано възли, включва също смесителна верига и кранове, необходими за регулиране на количеството охлаждаща течност. Той е малко по-добър от обикновен и напълно елиминира образуването на кондензат по стените на котела.
Третият се използва най-често за системи с няколко отоплителни кръга и съдържа хидравлична стрелка. Основната му роля е да изключи хидравличния ефект на помпите помежду си. Но също така е в състояние да дегазира отоплителната система.
И последният е схемата на работа на пиролизния котел с Laddomat 21. Той включва акумулаторен резервоар и верига за захранване с топла вода, чиято идеална работа се осигурява от допълнителен блок. Изборът на обема на контейнера се извършва съгласно следните показатели: не по-малко от 25 литра на 1 kW мощност.
Тази схема, благодарение на модула Laddomat 21, е в състояние да замени класическата схема на свързване, която се състои от отделни елементи. Работи в следния режим. Водата се загрява до зададената стойност чрез регулиране на нейния поток от резервоара за съхранение с помощта на термостатния клапан.Той увеличава или намалява напречното сечение на връщащата линия и по този начин влияе върху постигането на зададените стойности от охлаждащата течност.
В допълнение, наличието на резервоар за съхранение в него позволява на котела да работи в оптимален режим. И в случай на внезапно прекъсване на електрозахранването, това ви позволява да поддържате температурата на охлаждащата течност на дадено ниво в продължение на два дни.
Ефективността на веригата за БГВ се постига чрез използване на енергията на котела. Получаването на топла вода за битови нужди е възможно поради отделянето на част от топлината от охлаждащата течност през стените на резервоара.
Коя схема за свързване на пиролизен котел от разгледаните по-горе ще бъде оптимална, зависи от спецификата на отоплителната система и отчасти от наличието на безплатна сума пари.
Но във всеки случай те трябва да отговарят на следните условия:
- Спазвайте изискванията за безопасност
- Осигурете добра циркулация на охлаждащата течност в системата
И не забравяйте, че колкото по-добре е оборудван тръбопроводът на котела, толкова по-икономичен ще бъде той в експлоатация и по-удобен за експлоатация и поддръжка.
Възможно ли е да направите сами пиролизен котел


Домашен пиролизен котел
Много хора вярват, че свързването и конфигурирането на такова сложно устройство като пиролизен котел е сложен процес, който могат да извършат само специалисти. Въпреки това, както често показва практиката, инсталирането на такъв котел е много по-лесно от газовия отоплителен котел. В допълнение към факта, че има традиционна схема за свързване на серийно произведен пиролизен котел, има различни схеми, които ви позволяват не само да се свържете самостоятелно, но и да направите сами котел за газогенератор.
Преди да закупите пиролизен котел от промишлено производство и да привлечете специалисти, чиито услуги не са евтини, за да го свържете, струва си да изчислите предстоящите разходи. Като правило инсталирането на отоплителен котел самостоятелно ще струва половината от цената, да не говорим за онези случаи, когато можете сами да направите такъв котел. Сега можете да намерите готови чертежи на пиролизен котел или можете, с малко въображение, да направите сами диаграма на котела. Между другото, някои устройства, разработени от домашни майстори, значително превъзхождат тези модели, които се сглобяват в производствена среда.
По-специално, заслужава да се отбележи котлите Blago, чийто разработчик е Ю. П. Благодаров. Основното постижение на дизайнера беше основният акцент върху осигуряването на естествена тяга, която осигурява по-дълго изгаряне и максимален икономически ефект - ефективността на такива котли е много по-висока от дори най-ефективните промишлени котли. Това се улеснява и от някои структурни елементи (прегради), които ви позволяват да се затопляте.
Кое е най-икономичното отоплително устройство?
Всички котли се използват за отопление на жилищни или промишлени помещения и са разделени на три вида:
- Газ
- Електро
- Твърдо гориво, продължително изгаряне
Всеки от тях работи с определен вид гориво и има свои предимства и недостатъци. Но как избирате най-надеждната и икономически изгодна проба? За да отговорите на този въпрос, е необходимо да разгледате всеки от произведените модели и след като сравните устройството на самия пиролизен котел и други видове, изберете този, който е подходящ за специфични условия.
Най-често срещаните са газовите
Нека започнем с газово оборудване, тъй като този вид гориво се счита за едно от най-евтините и предвид руските климатични условия, неговият разход през зимата ще бъде голям. Устройствата от този тип на пазара са представени от различни производители и широка гама от модели, така че има какво да избирате.
Трябва обаче да се има предвид, че газовите уреди се различават по:
- Метод на монтаж (под или стена)
- Функционалност (с един или два кръга - за отопление и БГВ)
- Видове горелки (електрическо или пиезо запалване)
- Отстраняване на продуктите от горенето (с естествена или принудителна тяга)


Те имат разлики в мощността и площта на отопляваното помещение е пряко зависима от неговата стойност. Обикновено за изчислението се вземат средни данни, а именно, че се изисква 1 kW мощност за 10 m² с височина на тавана не повече от 3 метра.
Предимствата на газовото оборудване включват факта, че за устройства с принудителна тяга не се изисква оборудването на класически комин. Обикновено се използва коаксиална тръба, която се доставя с котела.
Но газовите модели имат недостатъци. Най-големият от тях е възможността да се работи само с един вид гориво и следователно възможността за използване на такова оборудване е налична само в газифицирани населени места.
Електрическото е най-просто и удобно


Следващите в нашия списък са електрическите уреди. И въпреки че този тип оборудване се счита за едно от най-скъпите за експлоатация поради високите разходи за електричество, не бива да го изоставяте напълно.
Електрическите модели имат някои предимства пред другите модели.
Първо, те са незаменими в крайградските селища, към които газопроводът не е свързан.
На второ място, те са по-евтини от моделите с течно или твърдо гориво и са много лесни за инсталиране, което означава, че няма да изискват допълнителни разходи, освен собствените си разходи.
На трето място, те могат да бъдат инсталирани във всяка стая, да имат малки размери и тегло и да надминават други видове оборудване по тези показатели.
Техният дизайн е много прост и включва:
- Контролен блок
- Топлообменник (състоящ се от резервоар и нагревателни елементи)


Благодарение на това те са много лесни за използване, не изискват превантивна поддръжка и почистване. Но най-важното им предимство е екологичността.
Те не изгарят кислород в стаята, не отделят вредни вещества в атмосферата и са много лесни за настройка.
Широка гама от мощности позволява използването на такова оборудване не само за отопление на частни къщи и апартаменти, но и за големи промишлени помещения и дори такива, в които други котли са забранени.
Освен това те са напълно автоматизирани. Това ви позволява да посочите желаната температура, която в бъдеще устройството поддържа самостоятелно.
Прогресивно - пиролиза
Последни в нашия списък са котлите на твърдо гориво за дълго изгаряне. Те имат и друго име - газогенератори. Принципът им на действие се основава на изгарянето на дървесина или отпадъци от преработката на дървесина, а в някои модели и на въглища. В същото време те имат способността да използват горивото възможно най-ефективно и по този начин да увеличат ефективността.


Те могат да се използват както за отопление на помещенията, така и за приготвяне на топла вода. Съвременните модели са оборудвани с автоматизация, която опростява тяхната работа. Предимствата включват разходите за гориво, то е едно от най-евтините и достъпни във всяко населено място.
За разлика от газовите модели, те не изискват одобрение за монтаж, а също така ги надминават по пожарна безопасност, схемата на самите котли за пиролиза е много проста и ви позволява да ги инсталирате сами.
Но най-важното им предимство е пълната автономия. Дори при липса на газ и електричество в къщата, те ще могат да ви осигурят топлина и топла вода.



