Обратно към пълната версия
Сравнение на стоките:
ясно
Инженерни системи ›Вентилация
Уважаеми клиенти!
Работим в съответствие с нормите. Очакваме вашите кандидатури! Нашите контакти
- Цена
дизайн на вентилационната система - Софтуер за проектиране на вентилация
- Уроци за дизайн на вентилация
- Промишлен дизайн на вентилация
- Вентилационен дизайн за индустриална сграда
- Дизайн на димната вентилация
- Техническа документация за вентилация
- Примери за проекти
- Етапи на проектиране
- Промоции
и отстъпки - Какво ще получите в резултат на дизайна
- Време за проектиране
- Данни, предоставени от клиента
- Дизайнерски характеристики
- Норми
вентилационен дизайн (SNiP, GOST)
За да получите търговско предложение
, изпратете заявка по имейл или се обадете на +7 (495) 745-01-41
Дизайнът на EuroHolod е:
- Оптимизиране на разходите
- Енергийна ефективност
- Квалификация
- Комплексен подход
- Избор на оборудване: оптимално подбраните характеристики на вентилационните модули и не най-скъпата марка на производителя в съотношението цена-качество, значително намаляват цената на оборудването и не влияят на необходимите параметри.
- Оптимизация на въздуховоди: правилно изчислените и оптимално разположени трасета на въздуховоди намаляват необходимия обем метални изделия, следователно разходите се намаляват.
- Предотвратяване на преработката: няма да е необходимо да променяте архитектурни и инженерни решения за свързани комуникации, които не изискват вентилационни системи на етапа на проектиране, което ще ви спести от ненужни разходи за промени, модификации и подмяна на оборудването.
- Възможно значимо намаляване на оперативните разходи електричество и топла вода, като се вземе това предвид при проектирането на вентилационни и климатични системи.
- За това се използват системи с рекуперация на топлина, рециркулация на подаващия въздух и оборудване с оптимален разход на енергия.
- Практически опит: нашите дизайнери имат не само теоретични познания, но и опит в управлението на обекти и доставката на обществени услуги.
- Готови решения от 2 дни: плановете за помещения в рамките на 2000 м2 ще бъдат готови в рамките на 2 - 5 дни, в зависимост от сложността на обекта.
- Финализиране на проекта безплатно: в повечето случаи проектът трябва да бъде финализиран поради промени в архитектурните, дизайнерските и технологичните решения.
- Налични са всички необходими документи: сертификати за проекта SRO и ISO-9001, лиценз на Министерството на извънредните ситуации и др.
- Имаме много завършени проекти и реални отзиви на клиенти.
- Ние проектираме комплексно решение, в което всички раздели на инженерните системи се съгласи помежду си.
- EuroCold също организира избор на оборудване, монтаж и допълнително обслужване.
- Ние гарантираме качество от нашите услуги и ги извършваме за кратко време.
- Всички се броят желания клиента и се правят необходимите редакции.
- Разходи за монтаж на климатик
- Разходи за монтаж на вентилация
Защо е изгодно да поръчате дизайн на вентилация в IS Ecolife
| ВЕНТИЛАЦИОННА СИСТЕМА ОТ А до Я Ние сме фокусирани върху изграждането на цялата инженерна инфраструктура до ключ. Проектирането, доставката на оборудване, инсталирането и предоставянето на пакети от услуги се извършват без участието на свързани изпълнители. Висока скорост на работа. Свързвайки се с нас, ще спестите не само парите си, но и времето си. |
| РЕАЛНА ОТГОВОРНОСТ ЗА РЕЗУЛТАТА IS Ecolife разполага с напълно оборудвана производствена база, персонал от инженери и монтажници.Ние изпълняваме всички етапи на работа самостоятелно, осигуряваме цялостен контрол на качеството и сме 100% отговорни за резултата. Компанията предоставя гаранция за цялата извършена работа и се интересува от дългосрочна безпроблемна работа на вашето оборудване без престой и аварийни ситуации |
| ПРОБЛЕМИ ПРИ НУЛНА ПРОВЕРКА Ние предоставяме всички норми, посочени в SanPin, SNiP, NPB и др. Вие сте защитени от внезапни заповеди и санкции на надзорните органи, освен за глоби и други такси. |
| НАЙ-ДОБРА ЦЕНА Избираме прилично оборудване в рамките на дори малък бюджет. Получавате оборудване според принципа „високо качество - не непременно скъпо“. Изчисляването на разчета за услуги се извършва веднага след получаване на необходимата информация. Нашият принцип е пълна прозрачност на разходите за работа. Сумата, посочена в договора, е фиксирана цена, която няма да бъде променена от нас, ако не искате да преразгледате сметката сами. За редовните клиенти се предоставят специални отстъпки и условия за доставка. |
| УДОБСТВО 100% изнесена операция. Можете да дадете поддръжката на всички инженерни мрежи на обекта на един изпълнител -. Работим официално по договор и затваряме всички оперативни проблеми, както планирани, така и спешни, и е удобно за вас да поискате от един изпълнител. |
Еколайф Инженеринг Системс е екип от опитни и лицензирани специалисти в инсталацията и поддръжката на всички видове инженерни системи с последващо изпълнение на целия пакет документи.
• 5 години на пазара в Москва и Московска област • 7 специализирани лиценза и сертификата • 40 служители, 4 служебни превозни средства и 3 работни екипа за бързо изпълнение на поръчките • 2 комплекта телеинспекция и професионално европейско оборудване • Ще намалим вашите разходи с 20%. Цените за нашите услуги са под средните пазарни, без загуба в качеството на работа и обслужване.
| Осигуряване на качеството Фирма Ecolife гарантира висококачествен дизайн на вентилацията. |
Етапи на проектиране
- Проектирането на вентилационната система започва с изготвянето на техническата спецификация, в която клиентът посочва характеристиките на обекта и изискванията за крайния резултат.
- Проучване на техническа документация за обслужвания обект и (ако обектът е готов) измервателни работи.
- Избор на предпочитания тип вентилация.
- Изчисляване на обмена на въздух в съответствие с методите и SNiP, които са в сила на територията на Руската федерация.
- Избор на оборудване на вентилационната система (вентилатори, въздуховоди, въздушни дифузори и др.).
- Аеродинамични и акустични изчисления.
- Окончателно подреждане на вентилационни блокове и трасета на въздуховоди.
- Изготвяне на планове, чертежи, разчети за монтаж.
- Одобрение на проекта.
Изчисляване на изпускателната вентилация
Изчисляването на изпускателната вентилация се извършва след изчисляването на захранващата вентилация и се основава на осигуряване на баланса на подаващия и изходящия въздух в съоръжението. При изчисляване на изпускателната вентилация се разграничават помещения, които изискват отделни изпускателни системи. По-специално е предвидена отделна качулка за бани и душове. В същото време се монтира абсорбатор в размер на 50 м3 / ч за всяко разселено лице, 25 м3 / ч за всеки писоар и 75 м3 / ч за всяка душ кабина. Също така е предвидена отделна качулка за кухни и стаи за приготвяне на храна. Извличането от кухните зависи от вида на печката и обикновено е 90 м3 / ч. Ако говорим за кухните на кафенета и ресторанти, тогава трябва да се осигури местно засмукване от специално кухненско оборудване в съответствие с заданието за проектиране. Изчисляването на изпускателната вентилация в офис помещенията се основава на осигуряване на положителен 20% дисбаланс. Така че, ако притокът в офис пространство за 10 работни места и 5 посетители е 700 м3 / ч, тогава дебитът на отработения въздух трябва да се приеме като 560 м3 / ч. Отделна задача е да се намалят разходите за захранващите и изпускателните вентилационни системи и да се осигури тяхното равенство за съоръжението като цяло.За изчисляване и проектиране на вентилация за конкретни обекти, моля свържете се с IS "Ecolife". Нашите инженери ще ви помогнат да направите правилната вентилация за всеки тип съоръжения.
Към съдържанието
Промоции и отстъпки
При извършване на интегриран дизайн в:
- Ние осигуряваме отстъпка от общата цена на сложния дизайн предмет на дизайна на 3 или повече секции
- Ние осигуряваме отстъпка за доставка оборудване и материали
- Ние изпълняваме инструктаж на ръководството монтирани системи
- Предлагаме безплатна еднократна услуга (при изпълнение на проект до ключ - проектиране, доставка, монтаж)
Нашата компания заедно с интегриран дизайн предоставя допълнителни услуги:
- Осигуряване разчети и листове за избор на оборудване въз основа на проектна документация
- Разработване на инженерна документация за търга... Ние ще ви помогнем да изберете най-подходящото решение за вас.
- Разработване на мерки за осигуряване на съответствие с изискванията за енергийна ефективност, изготвяне енергиен паспорт
- Избор и доставка оборудване и материали
- Извършване монтажни работи
- Извършване обслужване
- Повторен избор оборудване
Етапи на дизайнерска работа
Разработването на домашна вентилационна и климатична система обикновено се извършва на два основни етапа:
- Първият етап включва разработването на проект на проучване за осъществимост. Тази фаза на проектиране е последвана от внимателен подбор и проучвания за осъществимост на типа система. Освен това на този етап е необходимо да се определят най-подходящите технически обекти за инсталиране на използваното оборудване, както и да се определят някои важни характеристики: производителността на отоплителната и студената система, обемът на въздуха, количеството. Необходимо е също така да се определи местоположението и вида на климатиците, разхода на топлина и вида на хладилните агенти, броя и вида на помпите и хладилниците, теглото и инсталираната мощност на електрическото оборудване на системата. След това се разработва предварителна диаграма на системата. Веднага след като клиентът го одобри, разработката на работния проект започва.
- На втория етап се извършва разработването на работен проект, който се основава на данните от оформлението на сградата, топлинните технически характеристики на строителните конструкции, както и технологичната задача. След това се извършва изчисляването на отделянето на топлина и влага, което ви позволява да изчислите въздушния обмен за всяка отделна стая, способна да осигури всички необходими параметри. Избрано е необходимото оборудване, което отговаря за обмяната на въздух и налягането в мрежата. Има окончателен подбор на най-оптималната схема на системата и определяне на всички нейни характеристики. След това се извършва чертеж на планове, където се посочва местоположението на оборудването, както и разположението на тръбопроводите и въздуховодите.
След това се извършва хидравлично и аеродинамично изчисление, както и определяне на нивото на шума. Спецификациите за материали, оборудване, фитинги се попълват внимателно (в същото време се посочват тяхната цена и производителя). След като клиентът е съгласувал съществуващия проект с пожарната инспекция и SES, се поръчва необходимото оборудване. По този въпрос можем да считаме, че етапът на проектиране е напълно завършен.

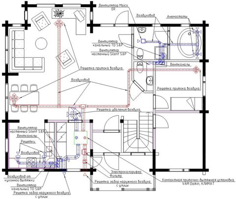
Пример за цялостно готово изчисление на вентилационна система на къща
И след това те продължават директно към инсталирането на вентилационната система.
Време за проектиране
Графикът на проектирането зависи от пълнотата на информацията, предоставена от клиента, точността на техническото задание, степента на готовност на съоръжението (реконструкция или ново строителство), съгласуване на проектните решения с проектанта, архитекта и други свързани раздели за инженерно проектиране. Очаквани условия:
| Площ на обекта | Време | |
| Етап "P" | Етап "R" | |
| До 300 м2 | от 7 работни дни | от 7 работни дни |
| 300-600 м2 | от 10 работни дни | от 15 работни дни |
| 600-1000 м2 | от 20 работни дни | от 25 работни дни |
| 1000-2000 м2 | от 30 работни дни | от 40 работни дни |
| Над 2000 м2 | Определя се индивидуално | |
Състав на проекта за вентилация
Нека разгледаме по-подробно състава на листовете, които задължително са включени в проекта:
- Общи данни за чертежите
Включва кратко описание на системите, така че всеки инсталатор и конструктор може бързо да се ориентира в проекта. Общите данни включват обобщена таблица на характеристиките на вентилационните системи с параметрите на цялото вентилационно оборудване и натоварванията върху системата за захранване и топлоснабдяване на сградата.


- Планове на вентилационната система
Ключови листове на проектната документация. Те се използват за монтажни работи, координация на инженерните системи и последващо обслужване. Плановете показват маршрута на въздуховодите, техните размери, дебита на въздуха на всеки обект, марките решетки и вентилационното оборудване.


- Схеми на вентилационната система
Диаграмите показват вертикалното разположение на каналите и възможните падания на кръстовищата. В нашия екип схемите са изградени в 3D програмата MagiCAD. Програмата автоматично изчислява скоростта на въздушния поток и балансира клоните.


- План и схеми на системата за топлоснабдяване
Комплектът за проект за вентилация задължително включва секция за подаване на топлина на климатичните инсталации. Захранващият въздух трябва да се загрява през зимата. За това най-често се използват бойлер и рекуператор. Въздухът се нагрява в рекуператора и след това преминава през секцията за отопление на водата, която е свързана към отоплителната система. Тръбите за подаване на топлина и всички тръбопроводи на нагревателите трябва да бъдат изчислени от инженера-конструктор. Отоплителната система трябва да бъде балансирана с другите потребители.
Без планове и схеми за топлоснабдяване е невъзможно стартирането на вентилация през зимата! Тази работа трябва да се извърши от инженера по вентилационен дизайн.
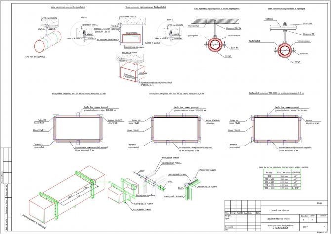
- Точки за закрепване на въздуховоди
Стандартни елементи на всеки проект. Въздуховодите с различни размери и конфигурации са прикрепени по различни начини. Крепежните елементи се поръчват допълнително от инсталатора и трябва стриктно да отговарят на изискванията, посочени в проекта.


- Спецификация на оборудването и материалите
Спецификацията е точното количество материали и оборудване, което ще е необходимо за инсталиране на системи. В съвременния дизайн това стана много по-лесно. MagiCAD автоматично изчислява дължините на каналите от чертежа. Остава за дизайнера да провери изчислението и независимо да допълни липсващите елементи.


Без проект е невъзможно да изберете правилния размер на въздуховодите, решетките, точно да закупите необходимото количество материали. Без проект ще бъде трудно да се балансира системата.
В хода на проектната работа се извършват следните изчисления:
- изчисляване на въздушните промени. Консумацията на въздух във всяка стая се изчислява според честотата или допълнителни изчисления за отстраняване на излишната топлина или влага.
- аеродинамично изчисление. По време на изчислението решаваме 2 задачи. Първо, ние откриваме общото налягане, което вентилаторът трябва да осигури, за да гарантира подаването на въздух във всички помещения. На второ място, ние балансираме клоновете на вентилационната система помежду си. Единият вентилационен клон е по-дълъг, а другият е по-къс. Въздухът винаги следва най-краткия път и ние трябва да балансираме системата, така че въздухът да се подава равномерно през всички клонове на системата.
- допълнителни изчисления за отстраняване на излишната топлина и влага. В някои стаи основната задача не е да доставя въздух за дишане, а да премахва излишната топлина (например в кухнята) или влагата (например в басейните).Има много помещения, където обменът на въздух не се разглежда според нормите, но се извършва отделно изчисление.
Дизайнерски характеристики
За да се създаде комфортен микроклимат, е необходимо да се определят и балансират много параметри:
- мощността и производителността на вентилаторите, налягането, което те създават, отчитайки динамичното съпротивление на вентилационните канали;
- участък от вентилационни тръбопроводи и тяхното оформление, като се вземат предвид строителните конструкции, местоположението на вентилацията и другото оборудване;
- местоположение на точките за отработени газове и въздух;
- състав и разположение на климатична техника;
- състава на устройствата за наблюдение и контрол, тяхното местоположение, връзка;
- мерки за намаляване на нивото на шума, произвеждано от работещото оборудване, включително това, което се разпространява през въздуховодите.
Признаци на проект за висококачествена вентилация могат да бъдат разгледани:
- циркулацията на въздуха е установена във всички помещения
- безшумна работа на оборудването и въздуховодите
- без течение и студени зони
- използване на енергоспестяващи технологии
- лесно адаптиране на системата към топлите и студени сезони
Като поръчате професионален дизайн на вентилацията сега, в бъдеще ще можете да избегнете много проблеми, като: нарушаване на естетиката на интериора, шум, висока консумация на енергия, намаляване на производителността на системата.


Професионалният проект предвижда и най-малките нюанси в експлоатацията на обекта и създава оптимални условия за живеещи хора или икономическа дейност.
Дизайнът на вентилационната система се създава на ранните етапи от изграждането на съоръжението - като част от цялостната проектна работа. Той трябва да вземе предвид изискванията за пожарна безопасност и санитарни стандарти, а също така хармонично да се впише в цялостната архитектурна композиция. Навременното създаване на проект за вентилация ще ви позволи да създадете най-ефективната система с минимални разходи за оборудване и комуникации.
Софтуер за проектиране на вентилационна система
VentCalc V.2.
VentCalc V.2. - една от програмите за изчисляване на вентилацията, която ще бъде полезна на всички хора, работещи с вентилационни системи. Тя ви позволява ефективно да изчислите вентилационната мрежа за възможно най-кратко време. За да получите информацията, от която се нуждаете, просто трябва да посочите общата дължина на главния клон, началния и крайния дебит на въздушния поток и някои други данни. След известно време ще получите готово изображение на вентилационната мрежа, което е най-близо до реалната картина. Освен това програмата ще покаже своята устойчивост, с помощта на която можете да изберете най-оптималния капацитет на вентилационния блок в началните етапи на подготовката на проекта.


Работен прозорец на програмата за планиране на вентилация Ventcalc
С помощта на тази програма можете да избегнете необходимостта от сложни математически изчисления, когато те като такива не са необходими. Най-просто казано, основната цел на програмата е удобен и бърз изчислителен механизъм, който значително ще опрости много дизайнерски задачи.
Тази програма може да се използва за решаване на въпроси, свързани с регулирането и координацията на вентилационните мрежи, както и за избор на най-подходящата мощност на вентилатора за възможно най-кратко време.
Stream - програма за изчисляване на отоплителни системи, охлаждащо подаване на топлина за нагреватели и оборудване
Програмата "Поток" се използва в случаите, когато е необходимо да се извърши хидравлично изчисление на 1-2 тръбни и колекторни отоплителни и охладителни системи, както и при изчисляване на данни за централно отопление на вода с помощта на различни топлоносители (разтвор или вода) с плъзгаща се или постоянна температурна разлика в сградите, където е осигурено централизирано или отделно измерване на топлината. Студът и топлината се доставят в помещенията посредством локални отоплителни уреди, вентилаторни конвектори или въздушни нагреватели.
Стандарти за проектиране на вентилация (SNiPs, GOST)
Проектирането на вентилационни системи се извършва в съответствие със SNiP 41-01-2003 и SP 60.13330.2012. В основата на всеки проект е внимателното изчисляване на ефективността на системата. В зависимост от предназначението на помещението, обменът на въздух може да се изчисли в обемни стойности (m3 / h) или честотата на пълна подмяна на въздуха. Работата на цялата вентилационна система се определя от производителността на захранващата вентилация.
За жилищните помещения необходимият обем на подавания въздух обикновено се определя в размер на 60m3 / час на човек. За спалнята тази цифра може да бъде намалена до 30m3 / час, тъй като по време на сън консумацията на кислород значително намалява. Най-простата формула за изчисляване на вентилационния капацитет по обем е както следва:
V = N * Vn, където:
V - вентилационен капацитет в m3,
N е максималният брой хора в стаята,
Vn е корекционен коефициент, който определя обема на консумацията на въздух от един човек, в зависимост от вида на помещението. SNiP 41-01-2003 съдържа таблични стойности:
| Тип обект | С естествена вентилация | Без естествена вентилация |
| Производство, промишлени съоръжения | 30 | 60 |
| Обществени, административни, общински сгради (на пълно работно време) | 40 | 60 |
| Обществени, административни, общински сгради (посещаемост - не повече от 2 часа дневно) | 40 | 20 |
| Жилищни помещения, площ за 1 човек повече от 20 м2 | 30 | 60 |
| Жилищни помещения, площ за 1 човек под 20 м2 | 3 м3 за всеки м2 жилищна площ | 60 |
Тази таблица показва изчислението на вентилацията само въз основа на човешкия фактор. В производствените съоръжения обемът на необходимия обмен на въздух може да бъде повлиян от:
- естеството на технологичния процес,
- Вид оборудване,
- наличие на допълнителни източници на замърсяване.
При изчисляване на ефективността на вентилацията за здравни заведения, образование, обществено хранене, дебитът на подавания въздух трябва да се изчислява в съответствие с изискванията на профила ND.
Обменът на въздух се изчислява индивидуално за всяка стая, след което числата се сумират и закръгляват - това ще бъде необходимата вентилационна мощност.
Като се вземат предвид всички допълнителни фактори (домакински уреди, нагреватели, домашни любимци и др.), Ефективността на вентилацията на жилищните сгради е:
- Апартаменти и малки частни къщи - от 100 до 500 м3 / ч
- Вили, градски къщи, малки хотели - от 500 до 1000 м3 / ч
- Жилищни сгради, хотели, санаториуми - от 1000 до 10000 м3 / ч
Друг популярен метод за изчисляване на вентилационни системи е множество. Обемът на подавания въздух се изчислява по формулата
V = n * Vp, където:
Vп - обемът на стаята,
n е скоростта на обмен на въздух, тя е:
- бани - 7
- кухни - от 5 до 10
- офис помещения - 3
- жилищни сгради - 2
Групата е готова да внедри сложни решения за подреждането на вътрешни инженерни системи и изграждане на мрежи. Ние осигуряваме гаранция за закупеното от нас оборудване и всички монтажни работи!
Очакваме вашето обаждане по телефона: +7(495) 745-01-41
Нашият имейл
За нас, Отзиви, Нашите обекти, Контакти
Печат
Вижте по-нататък
- Вентилация
- Дизайнни цени на вентилационната система
- Софтуер за проектиране на вентилация
- Уроци за дизайн на вентилация
- Промишлен дизайн на вентилация
Изчисляване на захранващата вентилация
Изчисляването на захранващата вентилация е основното изчисление при проектирането на вентилационни системи. Именно от изчисления дебит на въздушния поток в захранващата система те се отблъскват при изчисляване на изпускателните системи. Нека разгледаме няколко примера за изчисляване на захранващата вентилация: • Офисът има три стаи - за 4 работни места и 4 посетители, за 5 работни места и 5 посетители и секретариат с едно работно място и два стола за посетители. Необходимият дебит на приточния въздух се определя, както следва: L = 4 · 60 + 4 · 20 + 5 · 60 + 5 · 20 + 1 · 60 + 2 · 20 = 820 м3 / ч • Танцовото студио разполага със зала за 20 хора и хол с едно работно място и 5 стола за посетители.Необходимият дебит на приточния въздух е: L = 20 · 80 + 1 · 60 + 5 · 20 = 1760 m3 / h • В административната сграда има общо 150 работни места, 60 места за посетители и 4 заседателни зали с необходимите обмен на въздух, три различни, с обем на помещението 150m3. Необходимият дебит на захранващия въздух ще бъде: L = 150 60 + 60 20 + 4 3 150 = 12000 м3 / ч. На практика обаче ситуациите се оказват по-сложни - има фоайета, дневни, коридори, рецепция помещения, специфични помещения, като например масажни кабинети, архиви, складове и др. За правилното изчисляване на захранващата вентилация, моля, свържете се с инженерите на Групата. Ние ще отговорим на всички ваши въпроси, ще консултираме експлоатацията и монтажа на вентилационни системи, ще извършим проектирането на вентилационни системи, както и доставката на оборудване и монтаж на вентилация във вашето съоръжение.
Към съдържанието
Препоръчителни видове оборудване


Доставка и изпускателна вентилационна система за малка частна къща
За жилища се използват вентилационни агрегати с ниска мощност, оптималното решение е схемата за захранваща и изпускателна вентилация.
Системите се подразделят според критериите:
- опция за подаване на въздух;
- назначаване;
- метод за обмен на потоци;
- конструкции.
Някои инсталации използват вентилатори, други изискват климатик. Домакинските рекуператори се използват за подаване на отопляеми въздушни маси. Системата използва влагоуловители или овлажнители на потока, инсталирани са йонизатори, филтриращи инсталации, клапани и въздушни амортисьори.
Наборна система


Типографска система за захранваща и изпускателна вентилация
Схемата получи името си поради определен състав от единици, които се набират последователно според техническите параметри. Модулността улеснява разнообразие от възможности и избор на система за нуждите на конкретна къща или апартамент. Наборните системи осигуряват обмен на въздух на ниво 50 m³ / h - 15 хиляди m³ / h. Възлите на веригата са свързани към правоъгълни и кръгли въздуховоди.
Системите работят ефективно при вентилация на офиси, жилища в частни и многостайни сгради, търговски площи, складове и производствени цехове.
Система за моноблок


Вентилация за възстановяване на въздуха
Функционалното оборудване е комбинирано в едно звено. Системата включва рекуперация на топлина за спестяване на топлина, като същевременно създава комфорт.
Следните единици са инсталирани в едно тяло:
- филтър;
- топлообменник;
- турбина;
- абсорбатор на шум и вибрации;
- елементи за автоматизация и др.
Моноблоковите системи с рекуператори работят автономно или в комбинация с климатици. Отстранените нагрети потоци преминават през топлообменника, където отделят част от топлината на чистия въздух, което свежда до минимум използването на нагреватели за отопление.










