Бързо преминаване:
- Тип климатична система на вилата
- Канални климатици
- Многозонови климатици
- Инверторни видове климатични системи
- Централна климатична система от типа "чилър - вентилаторни конвектори - индивидуална отоплителна точка"
- Системи с променлив обем и температура на подавания в помещенията въздух
- Сплит системи и мултисплитове
- Монтаж на климатични системи
Как да получа търговска оферта?
Prom Klimat е професионална компания за проектиране и монтаж. Ние изпълняваме инженерни системи на сграда или помещение във вашето съоръжение до ключ. Изпращайте заявления по имейл или се обадете по телефона и нашият инженер ще подготви нашата търговска оферта за вас.
Най-добре е да планирате климатизация във вила дори на етапа на строителството, когато има възможност за комуникации. Климатичната система ще струва по-малко; завършването няма да бъде нарушено по време на инсталационния процес.
Изборът на климатици за вила се основава на три показателя:
- тип;
- мощност;
- марка.
Тип климатична система на вилата
Най-популярните видове климатично оборудване са:
- стенни сплит системи, включително мултисплитове;
- въздуховодни климатици;
- многозонови системи.
Стенните стойки са евтин начин за климатизация на вила.
Но за многостайната къща не е най-удобно. В края на краищата всяка стая ще трябва да инсталира собствен климатик.
Мултисплитове - има няколко вътрешни тела за едно външно тяло. Тоест, можете да се справите с един климатик за средно голяма вила. Оборудването работи тихо, основният шум е от външното тяло, което е монтирано отвън. Температурата на въздуха във всяка стая може да бъде настроена по различен начин. Към едно външно тяло могат да бъдат свързани до 9 вътрешни тела.
Какви видове климатици са подходящи за частна къща
Изборът на климатик за частна къща зависи от предпочитанията на собственика - но най-подходящи са само два вида устройства, за които ще говорим по-долу. По-често купувачите избират стенни сплит системи.
Стенни сплит системи

Компактните стенни устройства са практични, удобно разположени, имат достъпна цена и са идеални за климатизация в една стая или в определен район на къщата. Тези климатици се вписват във вътрешността на всяка стая.
Типичната сплит система за дома се състои от външен компресор и вътрешно тяло. Пазарът предлага широка гама от модели HVAC оборудване на различни цени, така че можете да изберете модел в съответствие с вашите изисквания.
Опитните инсталатори инсталират и стартират системата в рамките на 3-4 часа. Всичко, което е необходимо за инсталирането на стенни "тръбопроводи", се предлага само от специализирани компании. Но преди да купите устройство в големи супермаркети, проверете всички нюанси на инсталацията (какви материали са включени в цената и колко професионални са монтажниците).
Канални климатици


Много рядко такива системи се инсталират в къщи, но ако височината на тавана позволява и наистина искате да се отървете от вътрешните тела, тогава можете да инсталирате климатици за канал. Тяхното вътрешно тяло обикновено се намира в тавана или тавана, а външното тяло на подходящо място извън къщата. Кондиционираният въздух циркулира през каналната мрежа от вътрешното тяло с изходи към помещения, където се виждат само вентилационни решетки или анемостати. Температурата и работните часове се наблюдават от контролния панел. Но каналните устройства са много по-скъпи от стенните сплит системи.
Канални климатици
Каналните климатични системи за вили се използват широко в Америка и Европа. Вътрешното тяло е изградено под фалшивия таван, вентилационните канали са разпределени от него в цялата къща.
Предимството на системите е възможността за смесване на чист въздух от улицата, като същевременно се осигурява вентилация на помещенията. Системата обслужва няколко стаи.
Каналните климатични системи във вилите имат само един съществен недостатък: допълнителни разходи за разширяване на вентилационните канали.
Стенни климатици
Монтираните на стена модули се монтират директно в помещението, където е необходимо да се регулира температурата на въздуха. Сплит системите се състоят от два блока (вътрешен и външен), свързани с технически маркуч за циркулация на въздуха и хладилния агент.


Ползи:
- ниска цена
- голям набор от функции
- може да се инсталира по всяко време - практически не вреди на декорацията на стаята
- Висока надеждност на системата, лесен ремонт и поддръжка.
недостатъци:
- поддръжка само на една стая
Сред сплит системите най-добре се проследява разделянето на оборудването на класове.
- Сплит системите от икономична класа предоставят само основни функции - охлаждане и отопление.
- Средното ниво обикновено се предлага от добросъвестни производители без голямо име. Сплит системата работи надеждно и може да има допълнителни опции.
- Елитните сплит системи могат да продължат повече от 10 години. Налични са много допълнителни функции.
Многозонови климатици
Оптимален комфорт в голяма селска къща ще осигурят многозоновите климатици. Най-голямото предимство на този метод за климатизация във вилите е възможността за полагане на дълги комуникации между модулите. Следователно външните тела могат да бъдат инсталирани на всяко удобно място.
Няколко десетки вътрешни тела са свързани към едно външно тяло, което може да бъде от различен тип (монтирано на стена, касета). В същото време те могат едновременно да затоплят някои стаи и да охлаждат други, което не е възможно с други климатични системи.
Температурните спадове в помещенията са само 0,5 градуса, което е невъзможно да се осигури с други видове климатични технологии.
Многозоновите системи едновременно отопляват, кондиционират и вентилират помещенията. Те обаче консумират по-малко електроенергия от други системи с подобна мощност.
Избор на климатик в селска къща, вила
Всичко зависи от бюджета. Ще създадем каквото пожелаете с цени под средните за пазара, не се срамувате от това.
Като правило при 80% от климатичните инсталации в селски къщи и вили се избира схемата на следния план: една мощна сплит система в залата и една сплит система в две или три спални. В този случай климатикът, който се намира в хола, се избира с резерв на мощност, тъй като често това е открито пространство и самата всекидневна се влива плавно в кухнята и имаме няколко изхода към коридора, стълби към втория етаж. Самите климатични системи се инсталират в селски къщи, като правило, на етапа на обновяване, когато има реална възможност да се скрият комуникациите под окончателното довършване.
Най-често срещаният въпрос е: колко струва климатик за вила?
От монтирана на стената сплит система на 20 000 рубли. към инженерни системи за климатизация на канали с подаване, пречистване и овлажняване на свеж въздух на стойност 200 000 и 700 000 рубли. Всичко зависи от вашата техническа задача, нужди и възможности, бюджет. И ние ще помогнем! Това е нашата работа.


Монтаж на климатик в селска къща
Пример за работа по инсталирането на климатици на два етапа в селска къща
Към обекта


Многозонова климатизация на вилата
VRV Daikin с касетни климатици в къща в ремонт
Към обекта


Полагане на трасе на етапа на ремонт
Стробиране и полагане на фреонова линия за климатици
Към обекта


Вентилация, контрол на влажността на климатика
Комплексно оборудване на вилата със системи
Към обекта
Също така, в по-голямата част от случаите, мулти-сплит система, VRF / VRV система или канален климатик е избран като климатична система за вила. Основното предимство на тази стъпка е наличието само на едно външно тяло: няма нужда да затрупвате фасадата на сградата или задния двор с няколко външни климатика.
Относно въздуховодните климатици
Мулти сплит системи
Многозонов климатик
Мултисплит система
характеризиращо се с факта, че маршрутите от всички вътрешни, разположени в различни помещения, се водят до един външен блок. В същото време вътрешните тела могат да бъдат не само с различна охлаждаща мощност, но и от различни видове (стена, под, канал, касета). Инсталирането на мулти-сплит система е малко по-скъпо от няколко независими сплит системи, въпреки че вилата е климатизирана с помощта на едно външно тяло. Но на фасадата на къщата няма куп „къщички за птици“.
Канални климатици
- това също е едно външно тяло и едно вътрешно тяло, но от вътрешното тяло вече охладеният въздух се свързва през топлоизолирани въздуховоди около помещенията.
Многозонова VRF / VRV система
- това е същата мултисплит система, способна да променя количеството хладилен агент, подаван към линията. Като правило това е доста мощно външно тяло, способно да охлажда селска къща от стотици и дори хиляди квадратни метра. Вътрешните тела също се избират отделно въз основа на оформлението на сградата и техническите спецификации. Съществуват обаче и малки, многозонови климатици, специално проектирани за климатизация на относително малки (от 150 до 600 м2) площи.
Монтаж на мулти сплит във вила в ремонт
Монтаж на вентилация и климатизация на въздуховоди
Препоръчително е да бъдете озадачени от инсталирането на климатици на етапа на общите строителни и ремонтни работи във вилата. На този етап все още е възможно да се поставят всички комуникации скрити (в жлеб, направен по стената или под тавана), дренажът да се оттича в канализацията, а не на улицата. Монтажът на въздуховод за климатик недвусмислено предполага инсталирането на въздуховоди, нагреватели за въздух, решетки с клапани и електрически задвижвания към тях на етапа на ремонта: по принцип е невъзможно да се инсталират всички фитинги за завършен ремонт.


Инверторни видове климатични системи
С прости думи, инверторните модели климатици могат да регулират работата на двигателя на компресора и да създават оптимален температурен режим в помещението. Именно скоростта на въртене на двигателя дава възможност за ефективно охлаждане или нагряване на въздушните маси.


Предимства на инверторните системи:
- многофункционалност;
- бърза реакция на промени във функциите;
- автоматично създаване на оптимален температурен режим;
- проветряване на помещението с чист въздух;
- йонизация на въздушните маси;
- ниско ниво на потребление на електрическа енергия.
Функциите и свойствата на такива климатични модели са с порядъци по-високи от стандартните сплит системи. Можем да кажем, че те също са сплит системи, но с големи възможности и функции. Компресорите в инверторните модели са стандартни, което означава, че количеството консумирана електроенергия ще бъде ниско, което ще даде възможност за постоянно използване на такава климатична система. В случай на повреда е по-добре да се свържете с професионалист.
Възможно е да използвате климатик от инверторен тип през зимата. Само има определен температурен максимум, който няма да позволи работа на оборудването при -10, -15 градуса от замръзване.Системите имат регулируеми лопатки, което прави възможно насочването на въздушните потоци в желаната посока.
Съвети. Инверторните климатици се монтират най-добре във всеки ъгъл. Така потокът от въздушни маси ще се извършва в кръг.
Инверторните климатични системи винаги имат благоприятен ефект върху вътрешния климат. Днес съществуват различни видове инверторни сплит системи. Те правят възможно свързването на няколко вътрешни блока към един външен модул. Като правило максималният брой такива връзки не надвишава 5 броя вътрешни тела.
Други алтернативи на климатичните технологии
Мулти сплит системите са няколко вътрешни тела, които са свързани към едно външно тяло. Те обикновено са


използва се в къщи с нестандартно оформление, където собствениците не искат да имат няколко външни тела в цялата къща. Вътрешните тела работят независимо един от друг (температурата в различните помещения може да се регулира по различен начин). Цената на мулти-системите е много по-скъпа от конвенционалните климатици. Монтажът им също е много скъп. Ето защо е много по-удобно да поставяте отделни разделяния във всяка стая.
- Подови климатици обикновено се купуват за временно ползване. Лесно е да го носите от стая в стая, носете го със себе си в дачата. Тези модели са особено популярни сред собствениците на жилища под наем. Съвременните подови климатици имат регулируеми или автоматични режими за настройка на желаната температура, но в сравнение с монтираните на стената „разделяния“ те в много отношения отстъпват на последните.
- Някога устройствата за прозорци бяха много популярни, но сега са остарели. Те все още могат да бъдат намерени в продажба, но не се търсят.
Други видове климатици практически не се използват в домовете.
Климатиците се продават в специализирани компании, в отделите за битова техника в хипермаркетите и в онлайн магазините. Първата опция остава най-правилната за покупката, тъй като ви позволява да получите компетентен подбор и висококачествена инсталация. Можете да задавате въпроси на мениджърите и въз основа на това да решите кой климатик да купите за дома си.
Централна климатична система от типа "чилър - вентилаторни конвектори - индивидуална отоплителна точка"
Централните климатични системи се използват за отопление на вила при всяка външна температура, както и за охлаждане, отопление и почистване на въздуха от прах. По принцип е възможно да се комбинират такива системи с захранващи вентилационни блокове, но на практика е обичайно да се организира обмен на въздух във вилните помещения, като се използват захранващи и изпускателни системи, независими от климатичната система.
Системата fencoil има редица предимства на VRV системите, както и много ниска инерция и гъвкавост на конфигурацията. Може да се използва за кондициониране на въздуха в сграда с произволен брой стаи. В климатизирани помещения са инсталирани специални устройства - вентилаторни конвектори, подобни на вътрешните блокове на сплит системи. За вили най-подходящи са подови вентилаторни конвектори, които лесно се поставят в нишите на прозорците. Има и модели с отворена рамка, които се монтират зад декоративни стенни панели или окачени тавани.
Вентилаторните конвектори с един топлообменник са агрегати със сезонна работа: през лятото те се използват за охлаждане на въздуха, а през зимата - като отоплителни устройства. Вентилаторните конвектори с два топлообменника се използват в универсални системи, които могат едновременно да охлаждат, отопляват или просто да проветряват различни части на къщата. Такъв режим е необходим предимно през пролетта и есента. За улесняване на работата, вентилаторните конвектори са оборудвани със специални дистанционни управления и система за автоматизация, която позволява групов контрол и индивидуален контрол на всяка вентилаторна контора в автоматичен или ръчен режим.
Устройствата Fencoil са свързани към източници на студена и топла вода или към подходящо приготвен незамръзващ гликол. За битови цели вода или гликолова смес се охлажда с въздушно охлаждане на охладител на кондензатор с мощност от 2 до 50 kW. Най-модерните чилъри са оборудвани със спирални и винтови компресори и имат ниски стартови токове (което е важно при лошо окабеляване на вилата), както и висока ефективност. Подобно на външното тяло на VRV системите, чилърът е инсталиран на покрива, на стената, в градината или в помощно помещение, разположено на всяко разстояние от къщата. В региони, където температурата на външния въздух никога не пада под -15 ° C, чилър с режим на термопомпа може да действа като индивидуална точка за отопление. Това значително ще опрости дизайна на системата fencoil.
В района на Москва и в други области на активното строителство на вили, където термометърът често пада под 30 ° C през зимата, най-добре е да използвате газов котел като източник на топла вода или гликолова смес, което е няколко пъти по-икономично от електрически чилър с термопомпа. Друг източник на топлина е топлата вода от централната отоплителна система. Вярно е, че поради лошото качество и високата температура е подходящ само за непряко нагряване на охлаждащата течност, подавана към системата на фенкойла.
Инсталирането и пускането в експлоатация на системата "чилър - вентилаторни конвектори - индивидуална точка за отопление" ще струва на клиента приблизително 25-30% от цената на оборудването, а опростената версия - 20-25%.
Климатик у дома
Климатизацията на частна къща или вила е въпрос, който за предпочитане трябва да бъде решен дори на етапа на строителството. Ще ви кажем на какво трябва да обърнете внимание при избора на климатик за крайградска сграда и какъв тип система е по-добре да предпочетете.
Характеристики на климатика в частна къща
Когато избирате климатична система за селска къща, помислете за:
- системна мощност... Този параметър е избран според размерите на вашата сграда. В този случай си струва да се вземат предвид всички източници на топлина, общото осветление и броят на постоянните жители. Защото ако капацитетът на климатичните системи за дома е прекомерен, то електричеството ще се увеличи. И ако, напротив, капацитетът не е достатъчен, тогава климатикът вече няма да се справя с поставените задачи. Ето защо мощността се изчислява от експерти.
- енергийна ефективност на системата... Колкото по-висок е този параметър, толкова по-скъп ще ви струва климатикът. Но в същото време, колкото по-висока е енергийната ефективност на инсталацията, толкова по-малка ще бъде консумацията на енергия.
- тип компресор... Правилното решение за вила е инверторен компресор. Този тип консумира енергия икономично, характеризира се с безшумна работа и плавни настройки. Ако говорим за малки климатици за селска къща, където посещавате само през лятото, отдайте предпочитание на неинверторни инсталации.
- функция за всмукване на въздух... Най-добрият вариант, ако къщата ви е построена на екологично място, ще бъде наличието на функцията не на филтриране, а на всмукване на въздух.
- екстериор и интериор... Сплит системата неизбежно ще повлияе на екстериора и интериора на къщата. Помислете предварително къде ще инсталирате вътрешните и външните тела. Или може би ще инсталирате канал или касетна система, където блоковете не са толкова забележими?
Видове климатици в частна къща
Помислете за всички видове климатизация в жилищна сграда и техните плюсове и минуси.
Прозорец моноблок климатик


Това е единична единица, която е монтирана в прозорец или врата. По правило се използва в селски къщи, тъй като не е възможно да се инсталира в пластмасовите прозорци на градските апартаменти.
Професионалисти:
- бюджетна система.
- консумира минимум електричество.
- практичен.
- лесен монтаж.
- малък размер.
Минуси:
- непривлекателен външен вид.
- няма начин да се инсталира в пластмасов прозорец.
- няма възможност за използване на щори, осветеността на стаята също е намалена.
- шумна работа.
- ниска мощност.
- в студено време, студен въздух влиза в стаята от улицата.
Подов моноблок климатик


Системата е единична единица с гофриран маркуч, който е свързан с прозорец или вентилация. Управлението се осъществява с помощта на дистанционно управление. Моделът не е толкова примитивен като предишния. Също така подходящ за летни вили, където собствениците прекарват време само през лятото.
Професионалисти:
- мобилност. Възможно е прехвърлянето на климатика в други стаи.
- лекота на монтаж и демонтаж.
- специални филтри в системата ще прочистят въздуха от прах и ще го надарят със здравословни йони.
Минуси:
- ниска мощност.
- непривлекателен външен вид.
- необходимостта от често изпразване на специален резервоар за вода.
Подов моноблок климатик без канал


Това е единичен блок, който за пълноценна работа ще трябва само да разопаковате, поставите в един от ъглите на стаята и да го включите. Също така подходящ за малка селска къща, която се използва само през лятото. Когато сезонът приключи, климатикът може да се вземе със себе си и да се използва вече в града.
Професионалисти:
- лекота на използване.
- мобилност.
- малък размер.
- липса на монтаж.
- допълнителни функции за отопление и сушене.
- атрактивен дизайн.
Минуси:
- ниска мощност.
- необходимостта често да се налива вода в специален контейнер, както и често да се изпразва специален резервоар.
- устройството е шумно.
- не е подходящ за помещения без прозорци и с високо ниво на влажност, като мазета.
- точната температура не може да бъде зададена.
Система за разделяне на стени


Split (split) се превежда от английски като отделно, поради което всички системи, които имат вътрешно и външно тяло, имат префикс - split. Стенната сплит система е най-често срещаната и най-подходяща за малка селска къща. Например, ако един блок ви е достатъчен за голям хол, който е комбиниран с кухня. Най-добре е да поставите блока в центъра на най-дългата стена. Ако под блока има диван, където членовете на семейството обичат да прекарват време, тогава има смисъл да инсталирате прозрачен екран, така че въздушният поток да не пречи на останалото. Когато инсталирате устройството в спалня или детска стая, уверете се, че въздушният поток не е насочен към леглото.
Професионалисти:
- просто управление.
- отопление в студено време.
- филтриране на въздуха, ако е необходимо.
- икономия на енергия при някои модели.
- йонизация на въздуха при някои модели.
- атрактивен дизайн.
Минуси:
- сложна инсталация.
- необходимостта от професионално обслужване.
Касетна сплит система


Добре подходящи за къщи, които се различават по своите размери. Той ще поддържа всеки интериор, тъй като след монтажа това е система, разположена на ниво с тавана. Размерът на касетъчния климатик е 600 х 600 мм, което е същото като размера на таванните плочки. Централното помещение на стаята е подходящо за този тип домашна климатизация.
Професионалисти:
- равномерен въздушен поток, насочен към четирите страни.
- идеална система за големи пространства.
- тиха работа.
- подходящ за всеки интериор.
Минуси:
- подходящ само за монтаж заедно с окачен или опънат таван.
Система за разделяне на канали


В каналните системи, за разлика от стенните и касетъчните системи, има възможност за зониране, тоест е възможно да се зададе желаната температура във всяка стая поотделно. Най-добре е да инсталирате такъв климатик в цялостна конструкция, тъй като системата не принадлежи към бюджета.
Професионалисти:
- зониране (задаване на желаната температура във всяка зона).
- системата е надеждна.
- атрактивни грил дизайни, които могат да бъдат поръчани по ваш вкус.
Минуси:
- системата не се прилага за бюджета.
- инсталацията не се различава по бюджет.
- системата се нуждае от професионална редовна поддръжка.
Мулти-сплит система


Ако решите да спрете вниманието си върху модели на стени или касети, но ви е неудобно, че външните блокове ще развалят фасадата на сградата, обърнете внимание на мулти-сплит системата. Устройството се състои от няколко вътрешни тела и едно външно тяло.
Професионалисти:
- само една външна единица, вместо няколко.
- шумът се произвежда само от едно външно тяло, а не от няколко.
- трябва да се обслужва само едно външно тяло (почистване, зареждане с хладилен агент), а не няколко.
- могат да се поставят както монтирани на стената, така и касетни модули.
Минуси:
- инсталацията не важи за бюджета.
- зонирането не се прилага за тази система. След като сте включили отоплението в едната стая, няма да можете да включите охлаждането в другата.
Многозонова система


Подобна система се използва за жилищни сгради, както и за елитни крайградски жилища. Факт е, че такива инсталации се характеризират с най-високо ниво на комфорт по време на работа, а енергийната ефективност и безшумността днес нямат аналози в целия свят. Климатичната система за частна къща може да включва и вентилационен блок. Системата може да включва до няколко десетки вътрешни тела, свързани само с едно външно тяло. В този случай фасадата на сградата няма да развали външната инсталация, тъй като тя може да бъде поставена или на покрива, или в мазето.
Професионалисти:
- естетика. Системата не разваля фасадата, тъй като външното тяло може да бъде поставено в мазето, на покрива или дори на разстояние от къщата.
- зониране. Всяка стая може да има свои собствени параметри както за охлаждане, така и за отопление.
- системата е устойчива на инциденти.
- многозоновите системи поддържат най-точната температура (до + -0,5 градуса), за разлика от други системи.
- ако не успее, той се рестартира сам.
- съвместим със системата "интелигентен дом"
- възможно е да се комбинира с вентилационна система.
- трайност.
- ниска консумация на енергия.
- в бъдеще е възможно лесно да разширите системата, като добавите нови елементи към нея.
- практически безшумен.
Минуси:
- най-високата цена от всички климатични системи.
Системи с променлив обем и температура на подавания в помещенията въздух
Посочената система е в състояние да поддържа всички основни параметри на микроклимата на помещенията - температура, влажност, чистота и подвижност на въздуха - в рамките на оптималните стойности. Това става възможно благодарение на подаването на въздух с определена температура в измерени количества в кондиционираните зони. Оборудването в много отношения повтаря оборудването на традиционните климатични системи за централна климатизация. Цялата обработка на въздуха, включително отопление, охлаждане, както и централизирано почистване, овлажняване и йонизиране, се извършва от климатик на покрива или модулен централен климатик. Покривът с непряко газово отопление на въздушния поток е инсталиран на покрива на вилата или на земята, в непосредствена близост до къщата, и с помощта на специално оборудване е свързан към газопровода и електрическата мрежа. Централният климатик от модулен тип, който представлява набор от различни климатични устройства, се намира в специално техническо помещение. Източници на топлина и студ за него обикновено са отделна отоплителна точка (котел) и машина за водно охлаждане - чилър.
Подготвеният въздух се подава в помещенията чрез мрежа от въздуховоди, които са монтирани над окачения таван.Устията на каналите са затворени от таванни линейни дифузори или специално проектирани решетки, които разпределят въздуха изключително равномерно в цялата стая.
За да може въздух със строго определена температура да влиза във всяка стая, във всички климатизирани зони е настроен термостат. В същото време в една голяма стая могат да бъдат разпределени няколко климатизирани зони или редица малки стаи могат да се разглеждат като една зона.
Микропроцесорният блок контролира работата на климатика (в режим на охлаждане, отопление или вентилация) и последователността на подаване на кондициониран въздух в помещенията според обобщените данни на всички термостати. В резултат на това клапаните за регулиране на зоните, монтирани във вентилационните канали непосредствено пред дифузорите, позволяват преминаването на необходимите обеми подготвен въздух. Системата включва газови анализатори, сензори за влажност и друго оборудване за наблюдение.
Инсталирането и пускането в експлоатация на система с променлив обем и температура на подавания в помещенията въздух на подходящо ниво може да се извършва само от висококвалифицирани специалисти. Цената на тези работи може да достигне до 35% от цената на комплект оборудване.
Климатик във вила - защо и как?
Пример за монтаж в селска къща на сплит система със стенни модели DAIKIN
Частна къща: Имате ли нужда от климатик в селска къща?
Борис Харитонов, технически директор на DAICHI: Да, имам нужда. На първо място, заради вентилацията. Климатикът може грубо да бъде разделен на 3 части: вентилация, отопление, поддържане на температурния режим през лятото. Отоплението и вентилацията са задължителни за съвременните сгради, които са изградени запечатани (прозорци с двоен стъклопакет, изолация и др.). Ако дървена хижа е била вентилирана по естествен път, тогава в „запечатана“ модерна къща ще трябва да се погрижите за нея сами и е препоръчително да направите това на етапа на проектиране. На свой ред вентилацията изисква климатизация - така че въздухът с комфортна температура и състав да влиза в стаята.
- Какви са критериите за избор на климатична система за селска къща?
- Всички възможни климатични системи са подходящи за вилата. Следователно изборът до голяма степен зависи от предпочитанията на собственика на къщата. За един основният параметър е разходите, за друг - енергийна ефективност, третият ще предпочете система за водно охлаждане, четвъртият - фреон, петият - въздушен. Много собственици мечтаят за разбираема система: кутия, която обработва въздуха и въздуховодите, през които влиза в стаята. Но това ще изисква доста големи въздуховоди - не всеки собственик е готов да направи място за обемиста и разклонена система за разпределение на въздуха. Много зависи от предпочитанията на клиента по отношение на дизайна - да скриете климатика, да го украсите, да го изнесете на 50-100 метра от къщата ... Още - много се определя от обема на помещението. Ако това са 2 стаи, обикновените битови климатици ще направят - разделяне, ако 5-7 стаи - мултисплитове с едно външно тяло, а останалите са на закрито. За да не се виждат, има много варианти за дизайн на климатиците - касета под тавана, подова стойка, монтирана на стена и т.н.
- Почти всички съвременни климатици имат режим на отопление. Можете ли да разчитате на тях като отоплителна система и вместо това да ги използвате?
- Привърженик съм на традиционното отопление. Климатикът обаче може да допълни и подобри системата. Разбира се, можете да отоплявате къщата с климатик и при -20 извън прозореца. Но мисля, че това е неразумно - климатикът консумира енергия и ефективността при тази температура е доста ниска. В студено време бих използвал традиционна отоплителна система, а в преходни периоди - през пролетта, есента и когато стане студено през лятото - по-удобно е да използвам климатик. И двете системи трябва да се допълват взаимно и да бъдат добре отстранени.В противен случай може да свършите едновременно отопление и охлаждане.
Калъфи за вътрешни тела на Daikin в комбинация със супер-мулти системата RMXS За да видите пълната диаграма, щракнете върху снимката
- Заслужава ли си овлажняване на въздуха?
- Овлажняването е добро. Но по принцип ,. човек може да се чувства комфортно в диапазона от 30 до 70% влажност, която обикновено се намира в жилищните помещения. Добрият климатик няма да изсуши въздуха в помещенията. Следователно овлажняването е необходимо или за хора с индивидуални изисквания, или когато в стаята има антики и други неща, които изискват точно определено съдържание на влага. Моля, обърнете внимание: при овлажняване климатикът трябва да работи постоянно, без изключвания. Освен това се нуждаете от постоянно обслужване, пречистване на вода и, което е най-неприятно, се нуждаете от по-сложен проект, при който основното няма да е желанието на собственика за дизайн, а решението на дизайнера, което се взема според техническите възможности .
- Колко струва осигуряването на климатик? На какво можете да спестите и какво не?
- Средната цена на целия климатичен комплекс е около 250 долара на квадратен метър. Що се отнася до оборудването, можете да изберете както скъпи марки от висок клас, така и доста евтини бюджетни модели. Трябва обаче ясно да знаем какво получаваме от това устройство. Например климатиците за масов пазар се създават от цената, която купувачът е готов да плати. Въз основа на това количество се избират пластмаси, компресори и други компоненти. И, разбира се, след година-две пластмасата може да пожълтее, да се появят вибрации. Най-добрите марки, например същият "Daikin", произвежда пластмаси, компресори, харчи много пари за различни иновации. И вече въз основа на тези разходи се изчислява цената на продукта, значителна. Но първоначално той имаше задачата да произведе възможно най-добрия продукт, а не на определена цена.
Можете да спестите от параметрите на климатика. Няма смисъл да избирате мощността на климатика по такъв начин, че да се охлажда от +50 градуса до +15, ако няма такива температури във вашата климатична зона. Достатъчно е да направите максимално +32 и охлаждане до +21, тоест да се изхожда от естествените данни и вашите реални нужди.
Модулните сплит системи MDV от MIDEA имат големи възможности за разширяване. Външните тела от серията MDV имат висока ефективност и стабилно охлаждане
Частна къща: За да изберете климатик, трябва ли да вземете предвид размера на къщата, броя на етажите, материалите, от които са направени стените?
Виктор Траторов, мениджър обучение, инструктаж: Може би изборът не зависи абсолютно от етажа. Изключение е, ако искате да инсталирате един климатик за цялата сграда. Но материалът, от който са направени стените, и видът на остъкляването са важни фактори за определяне мощността на климатика. Количеството топлина, идваща от улицата през лятото, и топлинните загуби през зимата зависят от материалите (особено ако имаме отопление с климатик).
- Може ли собственикът на къщата сам да изчисли капацитета на климатика? И като цяло, сами да изберете и инсталирате устройството?
- При избора на оборудване е необходима консултация с инженер. Разбира се, има определени формули за изчисление, но при избора на климатик това не е достатъчно. Ето защо, дори след компетентна консултация с квалифициран специалист, инженер трябва да посети обекта - той трябва да огледа помещенията, в които ще бъде монтиран климатикът. Има много нюанси, които оказват влияние върху работата на оборудването, на което потребителят няма да отдаде значение, а инженерът, без да инспектира къщата, просто не може да вземе предвид.
На първата консултация трябва да имате план на селска къща със себе си, така че всички нюанси и характеристики на помещенията да са ясно видими.Също така трябва да знаете площта на помещенията, височината на таваните, площта и вида на остъкляването на прозорците, да посочите основните точки, към които са изправени прозорците, броя на хората, които са постоянно в стаята, наличието на оборудване, което генерира топлина (офис оборудване, камина, газ или електрическа печка), наличието на тавански помещения.
Климатиците за зимни градини, басейни, мазета се избират по същия начин, като се вземат предвид характеристиките на оформлението, функционалното предназначение на помещението и изискванията (необходимата температура, влажност и др.)
- Какви трудности може да срещне собственикът на селска къща, когато инсталира климатична система?
- Докато всички видове климатици изискват полагане на различни комуникации - електрически кабели, дренажен маркуч за отводняване на кондензат, свързваща фреонова верига и др. Ето защо, за да не се нарушава красотата на интериора на помещенията, е по-добре да се погрижите за това на етапа на строителство или основен ремонт.
- Кондиционерът изисква ли специални грижи?
- Климатикът, както всяко друго сложно техническо устройство, трябва да се обслужва в съответствие с ръководството за употреба. Например, веднъж на всеки две до три седмици, пластмасовите филтри за прах, монтирани във вътрешното тяло на климатика, трябва да се измият. Степента на тяхното замърсяване се определя от потребителя визуално и отстраняването и инсталирането на място след измиване не е по-трудно от подмяната на торбата в прахосмукачка. Всеки потребител може да го направи сам. Ситуацията е по-сложна с почистването на металните перки на топлообменника на външното тяло, които с времето се запушват с тополови пухчета, прах и дим, които изобилстват в градския въздух. В този случай се изисква продухване със сгъстен въздух или изплакване с струя вода, което може да се извърши само от инсталационната служба. Потребителят може да вакуумира гърба на външното тяло само ако е на място. Големите компании, освен че носят самостоятелно гаранционни задължения за обявения гаранционен срок, могат да предложат на клиента да сключи споразумение за следгаранционно обслужване (тримесечно, полугодишно или годишно). И последното нещо е необходимостта да зареждате фреон в климатика на всеки 3-4 години. Поради факта, че има стандартизиран теч (около 6–8% годишно), дори при най-висококачествената инсталация, това е неизбежна последица от свързването на междублоковия тръбопровод чрез разширяване.
Сплит системи и мултисплитове
Тази климатична система е почти същата като климатиците. Има и два блока: вътрешен и външен. Шумен кондензатор и вентилатор, монтирани на външна стена. Вътрешното тяло съдържа филтри и вентилатори на вътрешната система. Такъв блок може да бъде окачен на всяка стена на стаята или тавана.
Вътрешното и външното тяло са свързани помежду си чрез тръби за подаване на фреон, който пренася топлината от блока вътре в помещението навън. Радиаторът на вътрешното тяло се охлажда от вентилатор, който предотвратява прегряването на такова устройство.


Днес сплит системите са оборудвани с дистанционно управление. Тя ви позволява да зададете следните режими:
- охлаждане,
- отопление,
- вентилация,
- сушене,
- нощен режим.
Възможно е с помощта на автоматична система да се определи температурният режим в помещението и да се избере оптималната работа на сплит системата. Има и избор на работа на вентилатора. Оборудването е оборудвано с таймер, който ви позволява да го включвате и изключвате в точното време. Завесите също се регулират и това прави възможно насочването на въздушните маси в желаната посока.
Multisplit ви позволява да използвате няколко вътрешни тела с едно външно тяло. Всяко такова устройство има свое отделно дистанционно управление. Системите от този тип вече са оборудвани със специални въздушни филтри.Има мултисистеми за канали и стени, като климатици, само мултисплитите имат голяма функционалност и практичност.


Сплит системи от касетен тип
Такива системи се инсталират под фалшиви тавани. Те могат да насочват въздуха само в три посоки, а охладеният въздух навлиза в помещението през долната част на вътрешното тяло. Касетъчните сплит системи са мощни и разпределят равномерно въздушните маси в стаята.
Основните предимства на такава единица включват факта, че тя е практически невидима и няма да наруши никакви дизайнерски превъплъщения. Не забравяйте за икономиите на енергия, тъй като само една единица от този тип може да се използва на закрито и това ще бъде достатъчно, разбира се, ако самото пространство не е твърде голямо. Много е удобно да използвате такава климатична система в спалнята. Той е практически безшумен и се отличава със своята функционалност.


Модели на климатици в селска къща или вила
На нашия уебсайт има повече от двеста мулти сплит системи. Променливостта на вътрешните тела е почти неограничена. Трудно е да наречем конкретно външно тяло на многозонов климатик или комплект въздуховодни климатици „най-добрият“: всичко зависи от заданието за създаване на климатична система. В нашата работа ние се опитваме да изхождаме от техническите характеристики, а също така предлагаме няколко опции, които клиентът да избере: за различен бюджет.
Въпреки това горещо препоръчваме на нашите клиенти няколко производители, доказани през годините: всички са местни японци с история на създаване на професионално оборудване със собствени разработки. Продуктовата линия на всеки от тях ви позволява да изберете климатик за къща, вила за различен бюджет.
| Място за класиране | Производител | Страна на произход | Страна на произход |
Монтаж на климатични системи
След като сте избрали климатичната система у дома, трябва да продължите към стъпките, за да я инсталирате. Най-добре е да се обърнете за помощ към специалисти, които не само ще инсталират, но и ще конфигурират системата.
Първоначално трябва да измерите размера на системата, която ще бъде вътре. Ако това е сплит система, тогава външното тяло също трябва да бъде измерено. Чрез такива действия мястото за инсталиране на климатични системи у дома е ясно определено.
Крепежните елементи за монтиране на външни тела трябва да са здрави. Има специални предприятия, които ги произвеждат и аз гарантирам здравина и издръжливост. Крепежните елементи са представени от метални конструкции с различни размери. Има възможност да изберете най-добрия вариант.


За да може климатичната система да работи безпроблемно, трябва да я инсталирате правилно: предотвратявайте завои в тръбите, през които се доставя фреонът. Ако не спазвате това правило, фреонът може да изтече и работата на устройството ще спре.
Всички марки модерни климатици и сплит системи са почти идентични в процеса на инсталиране, но всяка система има свои собствени нюанси. Ако инсталирате външното тяло на климатика на терасата, тогава трябва да вземете предвид, че кондензът от специална тръба постоянно ще се оттича на пода. За да се избегне това, най-добре е да увеличите самия маркуч за дренаж на кондензат до необходимия размер и да го изведете извън терасата или друга стая.


Климатизация на частна къща е много прост процес. Състои се само в избора на правилната система въз основа на вашите предпочитания и нужди. Има огромно разнообразие от климатици и сплит системи, които се различават не само по цена, но и по своята функционалност.
Монтаж на климатици
В по-голямата част от случаите инсталирането на климатик в селска къща се случва на етапа на ремонта. Това е класическо двуетапно редактиране.Състои се в това, че първоначално специалист идва на вашия сайт за проверка, определяйки изискванията на клиента на място с цел допълнително изготвяне на най-пълното търговско предложение. На първия етап се извършва доставка на оборудване, полагане на комуникационни пътища в улук в стената или по тавана, отводняване в канализацията на къщата и други общи строителни работи. След това очакваме завършването на вашия ремонт и когато всички довършителни работи вече са завършени, по ваше обаждане, ние пристъпваме към инсталирането на вътрешните тела на климатиците, евакуация, пробен пуск и настройка на климатичната система.


Монтаж на климатична система Mitsubishi Electric в селска къща.


Пример за монтаж на въздуховоди за въздуховоди с полагане на въздуховоди и трасета.


Малка вентилационна система в частна къща. Настаняване на тавана.


Инсталиране на мулти сплит система в селска къща с високи работи от обиколки.
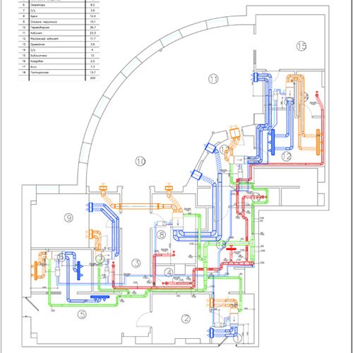
Като правило, при създаването на климатична система се прилага и вентилация на селска къща. Това е малко по-трудна задача, която налага заминаването на съоръжението не само на измервателя, но и на инженера, дизайнера. След това се извършва изчисляването на въздушния обмен на всички помещения, изчисляват се въздуховодите, като се вземат предвид характеристиките на сградата и дизайнерските решения, създава се проект на вентилационната система на селска къща, където свързванията на всеки елемент се показва, изборът на оборудване се извършва както по отношение на техническите параметри, така и на цена, която удовлетворява клиента.
Ако климатикът е отговорен за охлаждането или затоплянето на въздуха в помещението, тогава вентилационната система осигурява неговия приток и изпускане, създавайки по-комфортна среда за живот.