Главна информация
Защо изобщо се нуждаете от контейнери за вода, изработени от метал или друг материал? Отговорът на този въпрос е очевиден, но за някои той остава отворен. Факт е, че всеки използва резервоари за съхранение по свой собствен начин. Целта им е да събират и съхраняват вода за бъдеща употреба. А как и под каква форма ще го направите - зависи от вас да решите.
Резервоарът може да има различна форма, в зависимост от предназначението му. За събиране на дъждовна вода може да се използва обикновен правоъгълен голям акумулатор. За летен душ можете да използвате плосък, нисък резервоар, който лесно може да се монтира върху метална рамка. Всичко зависи от целта на приложението.

Често като такъв резервоар за съхранение се използват обикновени метални барабани. Това е практичен и евтин вариант, но не винаги удобен. Особено заради отворения му връх, през който насекомите навлизат във водата, а по стените на резервоара се образуват растения и ръжда. Може да се използва и за събиране на дъждовна вода, само ако имате улуци и способността да отвеждате тръбата директно към цевта.
За да не страдат с бъчви, майсторите правят самоделни метални резервоари. Те имат опростен дизайн и ниска цена. По-долу можете да видите един от възможните чертежи на резервоара за съхранение. Този контейнер е с малки размери, но достатъчно голям, за да побере до 200 литра вода.


Характеристики на оборудването и производствени тайни
Сега е време да поговорим за това как да създадете лунна светлина все още от медни тръби със собствените си ръце. Всъщност в това няма нищо сложно, просто трябва да се придържате към определени правила.
Самоделната лунна светлина, все още направена от медна тръба, има редица предимства и характеристики. По-специално, всички процеси, включително химическите, протичащи в него, се различават значително от тези, които протичат в други продукти.
Основният алкохолен продукт - висококачествени алкохолни напитки (ракия, калвадос, уиски, коняк) - се произвежда изключително на меден апарат. Медта абсорбира всички сярни съединения, които се появяват в кашата по време на ферментацията, но това важи особено за кашата от зърно и плодове.
Ако говорим за най-изразените разлики, тогава трябва да се подчертаят няколко от тях:
- високо ниво на топлопроводимост - има положителен ефект върху крайното качество на продукта;
- трайност и надеждност - меден лунен лун, все още направен със собствените си ръце по чертежи, практически вечен, не се износва;
- по-интензивен вкус - отдавна е установено, че именно този метал позволява да се получи по-фин аромат и приятен вкус, което се дължи на специални химични процеси, които почти напълно елиминират серния оксид и някои мастни киселини;
- по-бързо излагане - времето за вливане се намалява;
- екологичност - за разлика от алуминиевите продукти или модели, изработени от нискокачествена пластмаса, в този случай няма отделяне на вредни, опасни и абсолютно безполезни съединения и вещества, които могат да променят вкуса и да намалят крайната якост;
- представителен външен вид - ръчно изработена медна намотка за луна все още изглежда невероятно красива и атмосферна, напълно съобразена с процеса, който изпълнявате.
Сред негативните аспекти си струва да се отбележи относително високата крайна цена на такъв модел. Въпреки това може да бъде значително намален, ако се използват медни тръби, а всички останали компоненти са изработени от стомана или пластмаса.
С течение на времето върху медния продукт се появява тънък оксиден слой. Той няма осезаем ефект върху вкуса, но експертите препоръчват своевременно да се отървете от него, избягвайки голямо увеличение. Най-доброто средство за меден оксид е лимоновият сок или концентрираната лимонена киселина.
Как да си направя меден самолетен апарат все още
Веднага е необходимо да разберем, че това все още не е традиционна лунна светлина, за която сме писали толкова много. Това е подсилваща колона, където два потока взаимодействат едновременно - течен и газообразен.
Дестилацията - традиционната лунна светлина все още работи в съответствие с този принцип - предполага отделянето на парата в самата пара и кондензат, който се стича по намотката и навлиза в приемния резервоар. Този процес е еднократен в рамките на една дестилация.
Ректификацията е процес с различен характер, който осигурява постоянно взаимодействие на двете фракции - течна и газообразна, поради което има кристално пречистване и висока (до 960) якост на напитката. Когато кашата кипи при дестилация, парата се насочва нагоре по колоната и се кондензира в обратния хладник, разположен отгоре. Освен това кондензатът тече надолу и към него вече се движи нова порция пара. В резултат се оказва, че на всеки етап от колоната има постоянно взаимодействие и на двете фракции.
Най-оптималният материал за производството на такава колона е медта, която е абсолютно безопасна за здравето дори при високи температури и най-малко изложена на алкохол. Основното предимство на медта е, че тя абсорбира всички съединения на основата на сяра, които неизбежно възникват от ферментацията на кашата. Най-малкото количество сяра при производството на каша се основава на захар и вода, най-голямо е на база плодове и зърнени култури.
Височината на медната колона е избрана така, че в горната й част да има температура от 78 ° C - точката на кипене на алкохола. В този случай само алкохолът достига върха и ВСИЧКИ фузелни масла, чиято точка на кипене е над 100 ° C, се утаяват в изпарителя.
За да направите медни фотоапарати със собствени ръце, препоръчително е допълнително да гледате съответното видео - така че да можете визуално да оцените всички нюанси.
Домашен резервоар за вода
Подготвителен етап
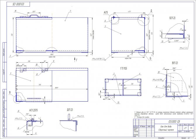
На първо място, трябва да имате чертеж, според който предварително трябва да изрежете необходимите заготовки от метала. Интернет е пълен с чертежи, можете да използвате всеки от тях или този, който е посочен по-горе.
По-добре е да направите резервоар за къщата и резервоар за вана от неръждаема стомана. Неръждаемата стомана е устойчива на корозия и образуване на растения по стените, което е важно, ако контейнерът се използва нередовно (например само през лятото). Като материал можете да вземете метал с дебелина на стената около 2 милиметра, това ще бъде достатъчно.
Контейнерът трябва да има разширителен резервоар, в който ще се оттича излишната течност. В противен случай резервоарът за съхранение може да се деформира поради свръхналягане. Разширителният резервоар може да бъде направен от същите материали.
Ако финансите не позволяват използването на неръждаема стомана, можете да закупите стомана (техническа или хранителна). По-евтино е. Но се справя с корозията в пъти по-лошо. Моля, имайте предвид това.
Заваряване на резервоари
Нека да преминем към въпроса как правилно да се запарва резервоара.
По-добре да работите с партньор. Единият ще готви, а другият ще държи парчетата под правилния ъгъл. Препоръчваме също да поставите тухли или дъски под бъдещото дъно, така че равнината да е равномерна.
Готвенето от неръждаема стомана не е лесно, трябва да имате поне минимален опит. Тогава работата може да се окаже с повече или по-малко високо качество. Използвайте аргоново заваряване с волфрамови електроди или тел от неръждаема стомана.
Чертежи на бойлер за сауна резервоар за гореща вода или резервоар за съхранение
Категория: Аксесоари 5 021
0
Котел за баня рисува резервоар за гореща вода или резервоар за съхранение с обем сто литра, домашен дизайн и не е труден за производство. Добре е да го използвате в малка баня, където парната баня е комбинирана с мивка.


Нека разгледаме схемата за приготвяне на топла вода.


1. Радиатор за отопление
... Стандартен чугун, сглобен от четири секции (разстоянието между осите на входните и изходните тръби е 500 мм). Той е инсталиран в отоплителната пещ на нивото на решетката от дясната или лявата страна на пещното отделение на пещта спрямо отоплителната врата.
2. Разширителен резервоар (резервоар за съхранение).
Служи като устройство за намаляване на вибрациите за резервоара за гореща вода, когато той се изхвърля от радиатора. Размерът на контейнера е 200x200x140mm. Той е заварен от неръждаема стомана с дебелина 2 ... 3 мм. За да се придаде допълнителна твърдост на тялото, вътре в него са заварени ребра за усилване, които потискат енергията от изхвърлянето на нагрята вода и в същото време служат като допълнителни проходни канали.


Входът и изходът на нагрятия продукт се осигуряват чрез инчови чистачки.
3. Котел за баня.
Размерът на котела е 706x706x210mm. Той е заварен от неръждаема стомана с дебелина 3 ... 4 мм. Предвидени са инчови чистачки за входа и изхода на водата. За твърдост на конструкцията плочи с ширина двадесет и пет милиметра са заварени отгоре по периметъра.


Свързваме трите представени блока заедно с инчови поцинковани тръби или термоустойчиви гумени маркучи. Освен това изходът от резервоара и входът към радиатора, тръбопроводът трябва да бъдат разположени хоризонтално или под ъгъл към радиатора. Поставете резервоара за съхранение над котела. Системата трябва да бъде изградена по такъв начин, че радиаторът да е напълно запълнен с работната среда. Това ще запази уплътненията на пресечната точка на радиатора непокътнати от прегряване. Принципът на парното нагряване е взет за основа. Докато водата се загрява, тя се издига до върха, циркулирайки в затворен кръг. Нагряването до точката на кипене става в рамките на два часа и половина до три часа. Тази схема е тествана в нашата собствена баня. Работи безупречно. Резервоарът за топла вода се намира недалеч от леглата; удобно е да хвърляте гореща вода върху горещи камъни. Ако искаме да запазим гореща вода за дълго време, по-добре е да поставим контейнер за вода над камъните, вижте статията „Чертеж на печка за баня“. При този дизайн коминът е направен в центъра, вътре в резервоара. Размерът на комина съответства на купчина от шест стандартни червени тухлени фурни на ред (250x250 mm). Коминът в центъра увеличава твърдостта и здравината на продукта, който свободно издържа не малко тегло на тухлената тръба. Той е заварен от листове от неръждаема стомана с дебелина пет милиметра. Той осигурява следните устройства: - вход за студен продукт (един втори инч); - изпускане на горещ продукт в отделението за пране (три четвърти от инча); -извеждане на горещ продукт в парната баня (един втори инч); -технологични отвори за облекчаване на налягането (по ваша преценка), към тях се доставят подходящите тръбопроводи, като се вземе предвид разположението на цялата стая. Отгоре е монтирана тръба от червена тухла. Подробна схема на подреждането на тръбите е описана в статията „Чертеж на тръба. Изграждане на червена тухлена тръба. Схема за поръчка ". Огънят от пещното отделение на пещта преминава през камъните и резервоара. След 2,5 ... 3 часа от пещта, камъните и водата се нагряват. Топлината от камъните поддържа съдържанието на съда горещо за дълго време.
Чертеж за поръчка
Споделете с приятелите си!
Препоръки на майсторите
Събрахме няколко съвета от професионални заварчици. Те ще бъдат полезни за начинаещи и занаятчии в дача.
По-добре е да използвате като материал неръждаема стомана клас 8-12X18H10 или AISI 430 08X17. Тези марки са най-подходящи за съхранение на вода, включително дългосрочно съхранение.Все пак е по-добре да източите водата преди зимата.
Преди заваряване на резервоар за вода от неръждаема стомана е необходимо да се определи неговият обем и въз основа на това да се направи чертеж. За баня ще е достатъчен резервоар до 60 литра за двама или трима души. Средно един човек се нуждае от около 20-30 литра вода.
Ако готвите резервоар за битови нужди, тогава е по-добре да се запасите с обем от 100 литра или повече. 200 литра са точно за поливане на градини и събиране на дъждовна вода.
По-добре е да се откажете от идеята за заваряване на алуминиев резервоар за вода. У дома не е лесно да се направят качествени запечатани шевове. Неръждаемата стомана също не е лесна за готвене, тогава тази задача е напълно осъществима. Но за да работите с алуминий, ви е необходим опит и добра заваръчна машина.
В зависимост от размера на резервоара и вашия опит, целият процес може да отнеме от няколко часа до няколко дни. Ако никога досега не сте готвили, тренирайте върху ненужни парчета метал. В крайна сметка неръждаемата стомана далеч не е евтин материал. И едва ли ще бъдете щастливи, ако несъзнателно заварите резервоар с дефектни шевове и той се окаже неизползваем.
Изработване на резервоар за съхранение на топлина със собствените си ръце
H2_2
Избор на дизайн


Топлоакумулаторите са два вида:
- С топлообменник - топлообменник се поставя вътре в резервоара под формата на спирала, изработена от неръждаема (или медна) тръба, която е свързана директно към котела, в резултат на което охлаждащата течност на котела се движи по отделен кръг и поради това водата се загрява;
- Без топлообменник - топлоносителят в котела и отоплителната система е еднакъв.
Резервоар с топлообменник се използва, когато към топлинния акумулатор са свързани повече от един източник на топлинна енергия, например освен котела е свързан и слънчев колектор или термопомпа или налягането в котелната верига е неприемливо за отоплителната система и др.
Съвет! Ако в отоплителната система има само един котел, е по-лесно да направите акумулатор на топлина със собствените си ръце без топлообменник.
Инструкции стъпка по стъпка за изграждане на резервоар за съхранение на вода
Как се използват резервоари за съхранение
Ако вашият сайт има сериозни проблеми с редовното водоснабдяване, ще бъде много трудно да се направи без резервоар за съхранение на вода. В такива контейнери може да се съхранява както чешмяна, така и дъждовна вода. Водните запаси могат да бъдат полезни за организиране на летен душ, както и в случай на евентуален пожар. Освен това водата от резервоара се използва за напояване и „нужди за къпане“.
Има няколко често срещани типа конструкции на резервоари за съхранение, най-често правоъгълни или кръгли.
За да определите оптималния размер на резервоара във вашия случай, е необходимо ясно да разберете възможните изисквания за вода на обекта за определен период от време. Така че, ако рядко използвате контейнера, има голяма вероятност в него да се размножават различни вредни организми. Тази вероятност може да бъде няколко пъти по-голяма, ако резервоарът не е защитен от слънчева светлина. Така че, наистина е много важно да се вземе решение за оптималния обем на резервоара.
Друг важен момент: ако имаме работа с резервоар, изработен от черен метал, тогава не можем да направим без боядисване и грунд, в противен случай конструкцията неизбежно и бързо ще ръждяса.
Видове контейнери
Този дизайн не е прищявка, а необходимост, тъй като водата може да се доставя стриктно по график или да липсва изобщо.
За съжаление, по време на сухо време растенията може да не чакат да започне поливането. Болно е да гледаш как зеленчуци и плодове, цветя умират под парещите лъчи на слънцето. Единствената възможност да ги спасите е контейнер като допълнителен източник на вода.
Контейнер за съхранение на вода може да бъде закупен в специализирани търговски обекти. В този случай ще бъде възможно бързо да се реши проблемът, без да се упражняват физически усилия. Ще трябва обаче да понесете финансови разходи.
Ако няма особено желание да се изхвърлят спечелените средства и има нужда от допълнително снабдяване с вода, тогава резервоар за събиране и съхранение на вода може да се създаде самостоятелно.
Домашните контейнери се създават на базата на подходящ материал, които са:
- дърво;
- метал;
- пластмасов.
Всяка от тези опции включва използването на подходящи инструменти и изпълнението на действията стриктно в съответствие с инструкциите.
Също така контейнерите за вода се различават в зависимост от целта. Ако за напояване на градината е необходима вода, резервоарът трябва да има достатъчен обем.
Собствениците на летни вили често строят. Той също така изисква вода, за да функционира. Капацитетът за събиране на водата й може да бъде малък или среден, в зависимост от членовете на семейството, които планират да вземат водни процедури всеки ден.
В някои случаи целта на придобиването или изграждането на допълнителен воден резервоар е да се осигури запас от питейна вода. Предлагат се допълнителни изисквания за такива контейнери, тъй като е важно да се поддържа чистотата и качеството на пиене на водата.
Самостоятелно създаване на контейнери от автобуса
Ако не можете да си купите резервоар за вода за малка сума и не искате да харчите много пари, можете сами да създадете конструкция.
Резервоарът за съхранение може да бъде направен от скрап материали, които се предлагат във фермата, или те могат да бъдат взети назаем от съседи или познати безплатно.
Например можете да използвате стари гуми. Желателно е това да са гуми за трактори, тъй като те имат по-голям диаметър.
Първоначално те определят мястото, където конструкцията впоследствие ще бъде инсталирана. Това пространство се изравнява, след което те започват да създават основната структура, следвайки инструкциите стъпка по стъпка:
- горната вътрешна част е отрязана от гумата;
- нарязаната гума се поставя на подготвеното място;
- пригответе разтвор чрез комбиниране на пясък и цимент в съотношение 3: 1, като добавите вода, докато се получи смес от гъста консистенция на заквасена сметана;
- разтворът се излива в дъното на гумата, изравнявайки повърхността;
- гумата с разтвора се покрива с полиетилен и се оставя за една седмица (полиетиленът изпълнява защитни функции, предотвратявайки негативните ефекти на дъжда);
- след една седмица филмът се отстранява, обемът се напълва с вода.
Не е трудно да се създаде такъв резервоар, но е важно да се помни, че водата от такъв резервоар може да се използва само за технически цели. Отлично предимство на такъв резервоар е, че натрупаната водна маса в него бързо се загрява.
Етапи на заваряване
В началния етап на заваряване под ъглите на листа трябва да се поставят дъски, които ще служат като дъно. Важно е дебелината на основата да е еднаква. Това ще даде плоска равнина по цялата дължина и в ъглите на конструкцията.
По време на процеса на заваряване е необходимо постоянно да се проверява дали страните не излизат извън основата. Можете веднага да хванете всички страни заедно, след което да заварявате към основата.
Листовете трябва да прилепват плътно един към друг. Следващата стъпка е окончателното заваряване на шевовете. Заваряването може да се извърши вътре в резервоара или отвън.
Липса на проникване не трябва да бъде. Самозаваряването отнема около 7-8 работни часа.
Наложително е да се изхвърли мързелът и да се провери конструкцията за течове
... След като завършите работата, трябва да подготвите креда разтвор и да го приложите върху шевовете отвътре.
Когато изсъхне, използвайте кърпа, потопена в керосин, за да се разхождате по шевовете на резервоара отвън. Цел: идентифициране на „липса на проникване“, запушена със шлака. Контролът отнема само няколко минути.
Ако течността не се появи, значи всичко е наред. Ако се появят петна, проблемната зона трябва да се вари отново. Проверката и повторното заваряване е най-добре да се направи непосредствено преди боядисване.
Монтажът може да се извърши върху предварително поставени тухли, но е по-добре да се използва стойка.След това напълнете резервоара с вода и наблюдавайте в продължение на няколко дни: по стените на конструкцията не се появи течност.
Как да направите резервоар за съхранение на вода със собствените си ръце
Тракторните гуми ще бъдат най-добрите за такива цели, а именно гуми от дизеловия трактор Т-150. Или можете да закупите употребявани гуми от камион във всяко предприятие или в автомобилен парк. Веднага трябва да се каже, че водата от такъв резервоар не може да се използва за пиене или готвене. Само за вътрешни нужди! Той става едновременно резервоар за безхлорна дъждовна вода. За разлика от пластмасата, контейнерът на гумата не може да бъде пробит или надраскан. Гумата не гние и не позволява водата да премине през нея.
Етапи на изработване на резервоар от гума:
- Подравнете повърхността, върху която ще лежи гумата.
- Поставяме гумата и отрязваме горната й част с нож.
- Ние правим хоросан от 30 кг пясък и 10 кг цимент.
- Изсипете дъното на гумата с получения разтвор и изравнете разтвора с шпатула. Това трябва да се направи, за да се направи структурата стабилна.
- Трябва да изчакате една седмица, докато разтворът изсъхне. Това е, резервоарът е готов!
Контейнерите ще бъдат много полезни в страната. Водата може да се използва за напояване и за други домакински нужди.
За много жители на високи сгради проблемите на собствениците на частни къщи не са известни. Например заваряването на резервоар за пълнене на вода може само да накара иронично да се смее жителите на градовете. И все пак въпросът не е празен. Неотложността на проблема се крие във въпроса по кой път да отидете - да поръчате готов продукт или да заварявате самостоятелно резервоар за вода.
За производството на контейнер за събиране на вода можете да потърсите помощ от специалисти. Те ще заварят цев или резервоар според вашите чертежи и размери или ще предложат своя собствена опция за дизайн. Но за качествени продукти ще трябва да платите кръгла сума.
Ето защо много жители на частния сектор избират втория вариант: да правят контейнери сами, като същевременно получават спестявания от собствени средства и морално удовлетворение от процеса на заваряване.
Евтин контейнер за голям обем вода
Снимката по-долу показва един такъв резервоар в експлоатация. Предназначен е за обслужване на отоплителната система на помещението, в което се държат пъдпъдъците. За този бизнес външният вид и естетическите качества на резервоара не бяха решаващи: функционалните качества на резервоара и разходите за неговото производство бяха от първостепенно значение.
За такъв резервоар с обем около 1000 литра би било необходимо да се купят 5 метални бъчви от по 200 литра, а в региона, където живее любителят на пъдпъдъците, цената на изхвърлените бъчви беше необосновано висока. Ето защо беше решено да се направи филмов резервоар в дървена рамка.
Първата стъпка беше да се изберат подходящи дъски: имаше две необрязани широки борови 40 мм дъски. Те бяха маркирани по дължината и изрязани с верижен трион, така че всеки да формира страничните стени на правоъгълна кутия.
Тези кутии бяха подредени една върху друга, така че краищата на необрязаните дъски трябваше да бъдат изрязани с брадва, така че да не е прекалено изкривена, и така че горната кутия да беше здраво закрепена върху долната.
Със 100 мм пирони кутиите бяха съборени в ъглите, за да можете визуално да оцените създаваната конструкция. Пироните тук играят само спомагателна роля за предварителното закрепване на кутията, тъй като основното натоварване от тежестта на водата се поема от обвързването на рамката, направена от здраво въже.
Обвързана плътно на няколко завоя със здраво въже, първата кутия съставляваше първия етаж на рамката на резервоара. Върху него беше монтирана втора кутия, завързана по същия начин, която съставлява втория етаж на рамката. Рамката не беше направена изцяло, а етаж по етаж, тъй като наблизо нямаше помощник и трябваше да правят всичко сами.
Когато беше тествана стабилността и надеждността на конструкцията, беше започнато изграждането на водоустойчива обвивка вътре в рамката.Това изисква траен филм, който не позволява на водата да премине. В нашия случай се появи стара палатка за камиони. От него в контейнера беше изрязана водоустойчива вложка.
Той беше изрязан с малък запас, така че полезният обем на резервоара беше максимален (излишъкът от тентата е увит от страните на рамката и не пречи на никого).
За целите на презастраховането върху тентата бяха положени още два слоя дебел филм: в случай на теч разходите за фиксирането му биха били много повече от тези два допълнителни слоя филм.
След една година експлоатация резервоарът не показа признаци на структурно износване. Полезният обем на резервоара е 750 литра, но резервоарите за съхранение на вода с описания дизайн могат да бъдат направени с произволни размери за размера на помещението.
Ако е необходимо, резервоарът може лесно да бъде разглобен и сглобен за повторна употреба. Само няколко часа бяха отделени за директно производство, повече време за подготовка на материали и проектиране.
Други интересни статии
Отдалечените крайградски зони често са откъснати от централната водоснабдителна система, което значително усложнява грижите за отглежданите култури. Растенията изискват достатъчно поливане през целия сезон, особено в горещо и сухо време. Ако е доста проблематично да се оборудва кладенец на площадката, можете да създадете свое собствено хранилище, където водата да се натрупва и съхранява.
Всеки може да си позволи да инсталира напоителен резервоар на обекта. С негова помощ се организира навременно поливане, а също така се създава прототип на водоснабдителна система, която позволява използването на течността за различни цели.





