Schott Robax® топлоустойчиво огнеупорно стъкло
Закупувайки от нас топлоустойчиво, огнеустойчиво стъкло за камината, вие ще получите висококачествени продукти на най-изгодни цени, както на дребно, така и на едро. предлага на вашето внимание стъкло за камина | огнеупорни екрани | топлоустойчиво стъкло Schott Robax®
Най-добре е да използвате специално топлоустойчиво стъкло за защитни екрани и огледални панели на камини. Те също се използват активно за остъкляване на мангали, фурни, фурни и барбекюта.
Немската стъклокерамика Schott Robax® има не само красив и естетичен външен вид, но и най-високите технически и потребителски характеристики:
- способността да издържат на големи топлинни натоварвания;
- оптимална дебелина на листа;
- високо ниво на якост;
- температурният коефициент на разширение е близо до нула.
Основният критерий за качество при избора на стъкло за камини е огнеустойчивостта. В края на краищата основната му функция е да предотврати навлизането на искри в стаята, издържайки на високи температури. Защитното стъкло за камината от е с немско качество и най-ниските цени до момента
... Доставка през Русия, Москва и Московска област.
Избор на врати
Когато избирате врати за фурната, трябва да помните за всички фактори, които ще участват при въздействието върху нея. На първо място, това е отоплението, което ще доведе до разширяване. Тази точка трябва да се вземе предвид при инсталирането на пещта.
За да направите това, трябва да следвате някои правила:
- Разстоянието между тухлената стена и вратата трябва да е достатъчно малко. Впоследствие се пълни с негорим материал. Обикновено се използват каолинови влакна или базалтова вълна. При липса на тези материали се използва обикновен азбест.
Освен това можете да посъветвате няколко препоръки, които ще помогнат при избора на това оборудване:
- За да съзерцавате пламъка, е необходимо да закупите чугунени врати със стъклени вложки или изцяло стъклени конструкции. Но трябва да сте подготвени за факта, че трябва да платите за естетика!
- За печки, които използват смесени горива, кокс или въглища, трябва да бъдат избрани чугунени конструкции. За опция за отопление с дърва изберете стомана или стъкло.
- За да сте сигурни в безопасността на децата и домашните любимци, се използват метални конструкции с топлинен щит. Максималната му температура на нагряване е 40 градуса.
- За да се избегне напукване на топлоустойчиво стъкло, чиято дебелина е 4 мм, по време на монтажа се оставя малко пространство с уплътнение. Това ще помогне да се избегне напукване по време на прегряване.

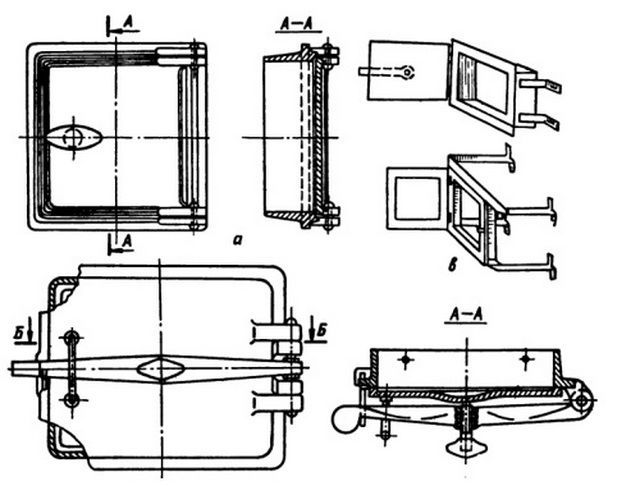
Схема за монтаж на вратата на пещта
Освен това се препоръчва използването на двулистни структури. Обикновено във външните се изрязва процеп, през който преминава регулирането на въздушния поток. Вътрешните ще задържат искри и въглища, като им пречат да влязат в стаята.
Използвайки смесено гориво, различни ширини на процепите могат да регулират въздушния поток, без който процесът на горене е невъзможен.
Понякога във вратите са инсталирани специални сензори, които показват степента на нагряване и отварянето / затварянето на вратите. Те могат да се регулират както ръчно, така и с помощта на контролния панел.


Излято желязо, направено на вратата на печката
Цени
| Име | Разходите |
| Огнеупорно стъкло за камина 4мм | цена на едро 10 500 рубли / кв.м |
| Огнеупорно стъкло за камина 5мм | цена на едро 11 500 рубли / кв.м |
| Огнеупорна стъклена керамика 4 мм | цена на едро 10 000 рубли / кв.м продажба на стъклени листове |
| Кръгли огнеупорни очила с всякакъв диаметър. Дебелина 4 мм Огнеупорни стъкла с различни диаметри | Разтрийте 450 / бр |
Предварителна пещ от закалено стъкло
| 5000 рубли / кв.м |
Щит за камина
| 6500 рубли за 1 бр. |
Основни свойства на огнеупорните очила за камина
И така, открихме, че термоустойчивите очила са направени специално, за да устоят на топлинната енергия. Следователно те имат ниска степен на топлинно разширение. Може би най-добрият вид стъкло за камина е кварцът - известно е, че издържа на температури от около 1000 градуса! Това включва и боросиликатно стъкло, както и няколко други вида.
Забележка! Термичната стабилност на този материал зависи от редица фактори, включително химичния състав, размерите, качеството на материала и степента на топлопреминаване.
Топлоустойчивостта се увеличава чрез втвърдяване, полиране и химическа обработка, като в същото време се отстраняват всички дефекти на повърхността. По този начин материалът се използва широко при изграждането на камини. И благодарение на използването на иновативни технологии, стъклото за камина е не само топлоустойчиво, но и безопасно. Той има ниско ниво на шум и при желание може да бъде ламиниран или тониран.


Ако сравним топлоустойчивото стъкло с обикновено стъкло, тогава за половин час то се загрява до около 50-200 градуса - много зависи от вида и производствената техника (за сравнение: обикновеното стъкло загрява до 500 в същите половин час).
Забележка! Днес се произвежда не само огнеустойчиво стъкло, но дори и стъклокерамика, макар и прозрачна, с нисък индекс на топлинно разширение.
Материалът не само предпазва горивната камера от огън - той също така ви позволява да наблюдавате играещите пламъци с удоволствие. Ако камината е оборудвана с това стъкло, тогава стаята ще бъде надеждно защитена от огън и случайни искри. В същото време осигурява и отлично подаване на въздух, което е важно за нормалното изгаряне на горивото.


Видео - Производство на топлоустойчиво стъкло
Характеристики
| Производител | Шот |
| Страната производител | Германия |
| Тип стъкло | Тонирана, топлоустойчива стъклена керамика |
| Дебелина на стъклото | 4,0 или 5,0 мм |
| Ширина на стъклото | 1100,0 мм |
| Дължина на стъклото | 1954,0 мм |
Относно стъкло за камината, защитни паравани за камината
Горивната камера на камината представлява определена заплаха за помещението поради големия брой искри, въглища, отделяни от напукване на дърва и гореща пепел. Затварянето на отвора със стоманена или чугунена клапа е неудобно, освен това цялата красота на пламъка изчезва и топлопреминаването намалява.


Следователно в съвременните камини за камината се използва стъкло, което е достатъчно здраво, за да не се разпръсква, когато е затворено, и топлоустойчиво, за да издържи на топлинната глава на пламъка.


УСТРОЙСТВО ЗА СТЪКЛЕНА КАМИНА
Идеята да се използва стъкло като материал за ограждане на камина съществува от няколко стотин години. По онова време кварцовото стъкло се използвало за камини под формата на отделни фрагменти от мозайка върху камина от бронз или мед. Очилата трябваше да се сменят периодично, тъй като екранът, преместен твърде близо до камината, се нажежи и мозайката се напука.


Днес няма алтернатива на използването на стъклен клапан:
- Вратите на камините, изработени от топлоустойчиво стъкло, не се разширяват или деформират от топлината, като чугун или стомана, благодарение на това е възможно да се получат минимални празнини и висококачествено уплътняване между рамката и ръба на вратата;
- Огнеупорното стъкло за камина не гори и не се окислява, запазва първоначалния си вид през целия период на работа;
- Основното е, че вратата на камината със стъкло ви позволява не само да се наслаждавате на играта на огъня, това е единственият възможен начин за контролиране на процеса на горене, така че пламъкът да не се превърне в гниене с образуването на въглероден окис.


Днес рядко каквато и да е камина се прави с черен метален капак, най-често това са високотемпературни камини, предназначени да използват универсални горива, включително тези с високо съдържание на катран и катран. Но дори и в такива конструкции производителят се опитва да използва огнеустойчиво стъкло за камината, тъй като е по-лесно да видите с очите си какво се случва в камината, отколкото да познаете от звука или показанията на термометъра. Вярно е, че собствениците трябва редовно да търсят средство и начин, отколкото да почистват стъклото на камината от сажди.


За малка селска къща и лятна вила най-често се избира чугунена камина със стъкло. В допълнение към красивия външен вид, този избор има и чисто практическо предимство - топлоустойчивото стъкло за камината осигурява по-бързо и равномерно отопление на помещението. Шампионът по отношение на ефективността на отоплението е кръгла камина със стъкло, която е в състояние да отоплява и осветява едновременно помещението.


Видове камини


Камина със затворено огнище
Сърцето на всяка камина е камината - отделение вътре в портала, в което се изгаря гориво.
Стандартно устройство за изгаряне на дърва за огрев, въглища и торф:
- Чугунена решетка (решетки). Върху тях са подредени дърва за огрев, подава се въздух, пепелта и пепелта се събуждат.
- Кутия за пепел. За събиране и отстраняване на отпадъчни материали.
- Подплата. Предпазва гърба на устройството от прегряване, отразява генерираната топлина в помещението.
- Дефлектор. Забавя изгарянето на продуктите от горенето директно в комина, допринася за увеличаване на ефективността на огнището.
- Изпускателната тръба. Отстранява дима и саждите от фурната.
- Регулатор на подаване на въздух. Увеличава или намалява обема на кислорода, подаван към решетките.
- Система за доизгаряне. Преобразува необработените частици гориво и отделените от тях газове в топлинна енергия.
- Механизъм за почистване на стъкло. Осигурява въздух до вратата, предотвратявайки утаяването на сажди върху нея.
По дизайн камините са отворени и затворени.
При отворени конструкции дървата за огрев са оградени само с декоративна скара. Той е красив, екзотичен, позволява ви да се възхищавате на открит пламък. Недостатъкът е, че има възможност искрите да ударят пода, ефективността на отворената камина е изключително ниска, тъй като почти цялата топлина в буквалния смисъл на думата отива в комина.
Затворените дизайни са по-икономични. Камината е херметично затворена от врата, вътре са монтирани димоуловители и системи за доизгаряне на гориво.
Където се използва стъкло
Използването на огнеупорно стъкло в дизайна на камината им придава голямо значение. Благодарение на прозрачността на огнището се създава ефектът на жива картина, само абсолютно безопасна, с изключение на възникването на пожар. Обикновено стъклената камина не е оборудвана с комин, така че може да се направи заключение относно вида гориво, на който тя работи.


Камина в спалнята


Вграден модел


Преносимо биокамин


Оригинален апарат


Стъклена пирамида


Вечерен огън


Модерен интериор
Броят на стъклените елементи може да бъде напълно различен. Има огнища, изработени от метал, но с панорамни врати, които трябва да са стъклени. Тези камини използват както гориво, така и дърво.
Трябва да се отбележи, че поради здравината на закаленото стъкло границата на неговата приложимост обхваща всички видове камини. Огнеустойчивостта и издръжливостта доведоха до още едно приложение. Такова стъкло често се използва за рамка на подовата повърхност в непосредствена близост до камината.Не се страхува от падане на малки предмети и остава в безопасност дълго време.


Напълно прозрачна горивна камера
Разновидности на врати за камина със стъкло
Вратите на камината със стъкло са изградени от метална рамка с панти и врати с избран стъклен блок.
Стъклените врати на камината обикновено имат чугунена или стоманена рамка, а също така са оборудвани с дръжка. Важно е дръжката да е направена от материал, който не се загрява. Вратите се диференцират по размер, материал, от който е направена рамката, дизайн, цветова схема. Много модели имат различни интересни шарки и орнаменти.
На пазара има модели, които се отварят според принципа на гилотина. Благодарение на тях камината може да функционира както затворена, така и отворена. Тъй като вратите с топлоустойчиво стъкло тежат много, се препоръчва да се обърне внимание на продукти с автоматичен механизъм за отваряне, при контакт с които рискът от изгаряне се свежда до нула.
Характеристики на грижата за врати от стъклена пещ
Дори самопочистващите се очила изискват редовна поддръжка, но почистването на стъклената повърхност е разрешено само след като вратата се охлади. Работата върху гореща повърхност може да причини непоправими щети на топлоустойчивия материал.
За почистване е по-добре да използвате специални съединения, те не само незабавно почистват вратите от сажди, но и създават допълнителен защитен слой, който улеснява последващото почистване. Въпреки здравината на огнеупорния материал, силно не се препоръчва използването на абразиви - те могат да повредят полиращия и горния защитен слой.


U-образна врата на камината
Почти е невъзможно да направите топлоустойчиво стъкло за камина със собствените си ръце. Експериментът може да доведе до нараняване и пожар. Разбира се, възможно е да се монтират самостоятелно вратите в съществуващо или в строеж огнище, но при липса на подходящи умения е по-добре да се повери тази отговорна работа на специалисти.







