Какво са

Първо трябва да разберете какви са филтрите. Със сигурност всеки дом има кана със сменяем патрон за пречистване на водата. Основният компонент в такива касети е въгленът. По-рядко те използват и допълнителни вещества за омекотяване на водата или премахване на излишните примеси. Тези филтри обаче се различават значително по цена от обичайните. В допълнение към водните филтри има въздушни филтри, които трябва да работят за почистване на въздуха в стаята. Най-често те се инсталират в производствени цехове, където са възможни токсични отпадъци. Въпреки това, в наше време в градовете тези филтри също се превръщат в необходимост.
Нарушение на обмяната на въздух в апартамента
Вентилацията играе съществена роля за организирането на оптимален вътрешен климат. Липсата на източници на чист въздух моментално се отразява на благосъстоянието на хората, които са в него. За да поддържа жизнените функции на човек, той се нуждае от кислород, който успешно получава от въздуха.
С течение на времето в затворено пространство има все по-малко O2, което води до образуване на асфиксия. Първоначално той практически не се проявява, изразявайки се само в появата на задух или леко неразположение. Постепенно към такива симптоми се добавя замаяност, нарушена координация в пространството, до загуба на съзнание.
Нарушаването на обмяната на въздух в стаята засяга не само благосъстоянието на човек, но и качеството на околната среда. Намирайки се вътре в стаята, въздушните маси постепенно се нагряват, в резултат на което те се издигат нагоре и се намират близо до тавана. При липса на канал за захранване те нямат време да се охладят, губят кислород и практически не се движат.
При тези условия леко повишаване на влажността може да доведе до растеж на плесени или ускоряване на корозионните процеси. Най-рисковите зони са кухнята и банята, където постоянно се осъществява контакт с вода. Именно в тези помещения най-често се наблюдава появата на гъбички, които могат да доведат до образуването на различни заболявания.
Вентилацията на старите жилищни сгради (и повечето нови сгради) се извършва чрез естествена циркулация на въздушните маси. Притокът им се извършва през пукнатини в дограмата и дограмата. В този случай отработеният въздух се отстранява през общ щранг.
С течение на времето изпускателните решетки постепенно се запушват, отпадъци се натрупват вътре в канала, старите прозорци и врати се заменят с нови. В резултат на това циркулацията на въздушните потоци постепенно намалява и може съвсем да изчезне.
Най-простият изход от тази ситуация е да почистите изходните канали и да монтирате захранващия клапан в стената.
Ползите от филтрите
Колко полезни са филтрите, можем да говорим дълго време. Основната им функция е почистване. Независимо дали става дума за вода, въздух или луна, филтърът трябва, по мнението на тези, които го използват, да премахне всички вредни и да остави само полезни. Всъщност премахването на абсолютно всичко и веднага няма да работи. В резултат на това е необходимо да закупите устройства с няколко етапа на почистване. И така, какво премахват филтрите? Водните бази механично отстраняват мръсотията, парченцата ръжда от водоснабдителната система, подобряват вкуса и качеството и се борят с неприятните миризми, ако има такива. Въгленът помага в борбата с някои живи организми, които могат да бъдат вредни за здравето. Като отличен естествен абсорбент, той е в състояние да задържи много вредни бактерии, но не всички. Не разчитайте само на чудодейните свойства на въглен.Например, той не е в състояние да неутрализира радиацията, да премахне тежки метали или соли. Използвайки филтър за почистване на лунна светлина, трябва да се има предвид, че не всички фузелови масла ще бъдат премахнати напълно.
Как работи вентилацията в жилищните сгради?
Изпускателната и захранващата вентилация е два вида:
- С естествен импулс. За изпускане и приток се използва феноменът на конвекция, когато нагретият въздух, който има по-малка маса, се издига нагоре.
- С изкуствена (механична) мотивация. Движението на въздуха се осигурява от вентилатори.
Повечето жилищни сгради и частни къщи са оборудвани с естествена тяга. За това служат вертикални канали, входовете към които са разположени в помещенията на банята и кухнята под формата на решетки, монтирани под тавана. Изходите са разположени на покрива на сградата. Разликата във височината и температурната разлика между външния и вътрешния въздух предизвикват течение в канала, което създава вакуум в помещението. В този случай беше осигурена естествена принудителна вентилация чрез течове или специални изрези в дървени прозорци.
Новите прозорци и солидните входни врати уплътняват апартамента, блокирайки достъпа на чист въздух отвън. В този случай схемата на работа на захранващата вентилация се променя, тъй като въздушните маси започват да текат в кухнята или банята от други помещения. В къщата се установява нов въздушен баланс с леко отрицателно налягане. Често се случва така, че в резултат вертикална шахта с по-голямо напречно сечение (обикновено кухненска) преобръща течението на по-малък канал в тоалетната и оттам през зимата започва да тече студен поток. Явлението е особено забележимо при силен вятър, ефектът му увеличава сцеплението и става много студено в банята.


Много собственици на жилища вярват, че вентилацията е свързана с инсталиране на аксиален вентилатор вместо изпускателна решетка. При липса на приток от улицата, феновете на банята и аспиратора на кухнята последователно преобръщат тягата на друга шахта, всмуквайки въздушни маси от покрива през нея. Създава се сурогатна захранваща вентилация, с която необработен (и студен през зимата) въздух случайно влиза в къщата. При едновременната работа на вентилаторите изобщо няма приток от улицата, но поради вакуума, създаден в апартамента, могат да се появят неприятни миризми от съседите.
За справка: разположението на вертикалните изпускателни шахти осигурява само един вход в един апартамент и един изход на покрива. Мнението, че няколко апартамента са свързани с мината, е погрешно, за всяка стая от кухнята и банята има собствен канал.
Странните миризми не проникват през вентилационните канали, а през проходите на тръби от газови или отоплителни тръби. В краен случай един от съседите, в нарушение на всички норми, направи дупка от банята им във вашата изпускателна шахта. В частните къщи това явление не се случва и липсата на приток не е толкова забележима, тъй като обемът на помещенията е по-голям. Но процесите са сходни и параметрите на вътрешния микроклимат не са по-добри.
Изход: устройството за захранваща вентилация трябва да се извършва във всяка сграда, в която хората живеят или работят. Качулката няма да функционира без приток.
Купете или направете филтър


Така че, закупеният филтър изисква редовна подмяна с нов. Това се дължи на факта, че с течение на времето в касетата се натрупват мръсотии, които постепенно ще се просмучат във филтрираната вода и ще я влошат по-качествено от тази, която идва от водопровода. Допълнителните разходи ви карат да мислите как да направите филтър за въглища със собствените си ръце. Ако имате уменията да правите някакви устройства, тогава можете да помислите за сглобяване на някаква структура, която ще спести семейния бюджет и няма да навреди на здравето ви. Струва си обаче да се изчисли колко икономична ще бъде тя.
Характеристики на
Системата може да се инсталира до ключ, използвайки услугите на специалисти. Но цената на инсталацията често е твърде висока за средния наемател. Следователно ще разгледаме инсталирането на вентилация от захранващ и изпускателен тип със собствените си ръце (прочетете за инсталирането на вентилация със собствените си ръце тук).
Има няколко начина за организиране на система за захранваща и изпускателна вентилация:
- Монтаж на допълнителни охладители в шахтите на вентилационните канали.
- Използване на климатика като изпускателно устройство.
- Монтаж на допълнителни вентилационни канали, подрязване на уплътненията на прозорците.
Първите два метода работят задължително. Те управляват голямо количество въздух поради работата на вентилаторите. Вторият метод е по-интересен, тъй като не изисква големи инвестиции в допълнително електрическо оборудване. Нека го опознаем по-добре.
Принцип на действие


Основният принцип на вентилация е разликата в налягането на въздушните маси на различни нива в стаята. Необходимо е да се организират смукателните и изпускателните шахти, така че да има значителна разлика във височината между тях.
Физиката на процеса е подобна на работата на комуникиращите съдове. Когато един от тях се повдигне на достатъчна височина, течността започва да прелива. Същите механици работят във въздушния обмен. Въздухът циркулира, когато има разлика във височината между входа и изхода на вентилационната шахта.
За да подобрите ефекта, можете да използвате допълнителни вентилатори, които ще изпомпват въздушните маси още по-бързо.
Предимства и недостатъци
Под захранваща и изпускателна вентилация разбираме правилната организация и извеждане на вентилационните канали с принудително отвеждане на въздуха. Предимства на системата :
- Контрол на вентилацията... Можете да персонализирате системата според вашите нужди, покривайки или отваряйки вентилационни канали, ако е необходимо.
- Постоянно подаване на чист въздух, независимо от времето и колоната под налягане... Дори ако времето навън е лошо и въздушното налягане не позволява на въздушните маси да се движат напълно и независимо през помещението, можете да увеличите скоростта на охладителя и принудително да ускорите обмяната на въздух.
- Инсталиране на филтри... Всмукателната система може да почиства входящия въздух чрез допълнителни мембрани.
Решението обаче има своите недостатъци:
- Допълнителни разходи за монтаж на оборудване, допълнителни сметки за ток.
- Разположението на вентилационните канали, шахтите и отворите за изход и вход на въздуха, което „краде“ пространство, разваля интериора.
- Шум. Дори един охладител създава слабо бръмчене в стаята. Двама или повече фенове със своя шум могат да "натискат" върху главата или да пречат на съня.
Въпреки всички минуси, захранващата и изпускателната система дава пълен контрол върху вентилацията. Този фактор е основен и решаващ при избора му.
Какво ще дойде по-удобно


За да направите филтър за въглища със собствените си ръце, ще ви е необходим контейнер, който не е жалко да дарите с добра цел (например петлитрова пластмасова колба), колкото и да е странно, фин чакъл, речен пясък, въглен , както и марля, памучна вата и лутрасил. Някои майстори настоятелно предлагат да се замени памучната вата и марлята със синтетичен материал, например синтепон. Това се дължи на факта, че синтетиката е по-трайна, но в същото време техните филтриращи качества не са по-лоши от тези на естествените материали. Освен това са полезни канцеларски нож, бормашина с тънка бормашина и шкурка за почистване на нередности.
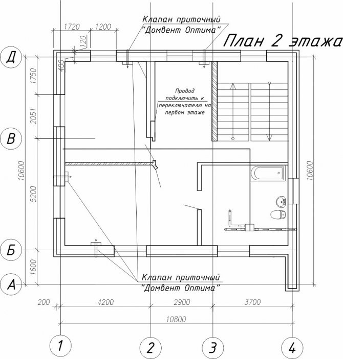
Монтаж на захранващ вентилационен клапан
Завършеният отвор не трябва да е напълно хоризонтален. Разрешен е лек наклон към улицата, поради което получената кондензация бързо ще бъде отстранена от вентилационния канал.
Процесът на монтаж на клапана е както следва:
- в отвора е положен въздуховод;
- изпъкналите части на канала са маркирани с молив;
- разклонителната тръба се отстранява от стената и се нарязва според приложените марки;
- въздуховодът отново се поставя в стената и се фиксира с монтажна пяна (всички кухини между бетонната повърхност и разклонителната тръба се издухват с пяна);
- вътре в канала са монтирани филтър и топлоизолационен елемент;
- от външната страна е монтирана защитна решетка, за да се предотврати навлизането на насекоми във въздуховода (може просто да се вкара или завинти към външната стена с самонарезни винтове);
- отвътре на въздуховода е монтирана декоративна капачка, която е и регулатор на въздушния поток.
Когато се постави правилно, входящият вентил за вентилация ще бъде напълно невидим. В този случай скоростта на въздушния поток се регулира чрез намаляване или увеличаване на пролуката на декоративната капачка. Ако е необходимо, той може да бъде напълно затворен или, обратно, напълно отворен.
При нормални условия захранващият клапан е в състояние напълно да задоволи нуждите на стаята от свеж въздух, тъй като гарантира неговия поток в размер на 45-55 кубически метра / час.
Чистата вода е ключът към здравето


Като започнете да правите най-простия воден филтър, трябва да запомните, че той също има своите недостатъци. Евтините материали също ще трябва да се сменят, и то доста често. Освен това неправилният монтаж на този дизайн може да доведе до лошо качество на водата. И това ще обезсили всички положени усилия. Ако все пак се осмелите да направите филтър за въглища със собствените си ръце, трябва да започнете с капака. В него трябва да направите няколко дупки с малък диаметър с бормашина. Почистете нередностите. След това трябва да отрежете дъното на бутилката. След това вътре в бутилката върху капака се поставя марля, памучна вата или синтепон. Можете да правите всичко наведнъж, но това няма да повлияе значително на качеството на водата, но е в състояние да задържа вода във филтъра.
Желателно е следващият слой да се отдели от предишния с допълнителна бариера. Някои хора използват филтър за кафе. Други предлагат да изрежете кръг от пластмаса, така че да покрива предишния слой, и да направите много малки дупки в него. След изглаждане на неравностите по домашната мрежа, трябва да поставите въглищата. Това може да бъде активен въглен от аптека или самостоятелно приготвен от брезова дървесина. Такива въглища определено ще се справят със задачата си и няма да добавят неприятни миризми и вредни смоли във водата. Препоръчително е следващият слой да се отдели отново от въглищата, тъй като това ще е пясък. Обикновеният пясък може да се смеси с въглища и трайно да запуши филтъра, така че е препоръчително да се използва кварц. След това се полага чакъл или зеолит. Отгоре за най-грубото и примитивно почистване понякога се използва памучен плат. Експертите обаче силно препоръчват да замените материята от естествени влакна с лутрасил. Първата филтрирана вода трябва да се източи, тъй като не е използваема.
Такъв филтър е в състояние да пречисти малко количество вода. Основният му недостатък е скоростта на почистване. И няма да можете да използвате този филтър дълго време - той се замърсява твърде бързо.
Domvent: въпрос-отговор
Вентилационен клапан "DOMVENT" в онлайн магазин ECOTECO
Използвам топли подове като отопление. Възможно ли е да инсталирате вашите вентилационни клапани?
Алексей.
За съжаление, не препоръчваме да инсталирате вентили за вентилация Domvent не над батерията, защото при температури под -50 ° С по тялото може да падне конденз и под клапана може да се образува зона на студен под. Работата по проектирането на устройство за вентилация на апартаменти с топъл под е в ход, но засега не се продава. Във вили, където първият етаж има подово отопление, а на втория етаж има радиатори, ние инсталираме вентилационни вентили Domvent над радиаторите на втория етаж. И за първо можем да ви препоръчаме да поставите стена KIV или прозорец Aereko.
Добър ден! Когато студен въздух от улицата срещне топъл въздух в стаята, кондензът ще падне. Къде ще падне? И няма ли кожено палто да расте в тръбата на захранващия клапан и след това да изтича на фасадата през лятото?
Борис.
Както сте забелязали, кондензът изпада на мястото, където се срещат студен и влажен топъл въздух. В това устройство това място е във въздуха над батерията, така че не се образува конденз.
Второто възможно място: на повърхността на устройството. Но там не се образува конденз, защото уредът се измива от топла струя от батерията и също е изолиран отвътре.
Третото място за образуване на конденз: вътре в тръбата - това е невъзможно, тъй като Вие сами забелязахте, че в него няма второ условие: топъл, влажен въздух.
От улицата идва само студен и сух въздух. И тъй като при правилно функционираща вентилация въздухът влиза само вътре, ние разгледахме всички възможности с вас.
В случай на неправилна инсталация (например не над батерия), отоплението се изключва и т.н. кондензатът може да падне върху повърхността на клапана, което се елиминира чрез затваряне (или намаляване) на клапана на вътрешното тяло.
Благодаря за въпроса.
Някой от инсталаторите на прозорци поставя ли вашите клапани веднага, когато ги подменя?
Да, правят го. Това е удобно и има добър допълнителен доход за работниците на прозорци. Компании за прозорци, инсталиращи нашите вентилационни клапани, могат да бъдат намерени в Интернет или рекламирани в медиите.
И ако моят лист А4 се придържа към вентилационната решетка дори когато вратата на банята е затворена, имам ли нужда от клапан на тази врата?
Залепването на листа показва, че има сцепление във вентилационния канал, а решетките на вратите са необходими за достатъчен достъп на въздух от апартамента до банята. Ако има достатъчна обща междина между вратата и кутията за преминаване на въздух, тогава клапанът може да бъде пропуснат.
На вашия уебсайт е написано „Нашите майстори, идвайки на инсталацията, първо проверяват работата на изпускателните канали и в случай на лошо представяне, или незабавно отстранете проблема, или, ако не е възможно веднага, дайте препоръки за как да решим проблема. " Как можете сами да проверите работата на изпускателните канали? Как можете да определите предварително дали ще е необходим клапан на вратата или ако можете да се справите (и какво ще се случи, ако просто не затворите вратата)?
Проверка на вентилацията:
Отворете прозореца и вратата в банята, нанесете лист А4 върху решетката за изпускателна вентилация. Ако той е „заседнал“, значи всичко е наред. Ако не, тогава:
Ние откъсваме мрежа от фини мрежи под решетката (която се запушва за две седмици с прах и следователно не пропуска въздух (и по принцип не е необходима), ако има вентилатор, тогава купуваме двойно решетка (част от решетката, част от пространството за вентилатора), така че въздухът да преминава през вентилационния канал и при изключен вентилатор.
Обаждаме се на управляващата компания (ZhEK, HOA и др.), Те трябва да го поправят безплатно.
В сравнение с отворена врата, клапанът на вратата е по-удобен (поддържа тишина); вместо това можете да поставите прости решетки на вратата или междина под вратата от поне 1 см.
Ако вратата не е затворена, тогава, когато например измиете, цялата влага (цялата пара) ще влезе в апартамента и ще увеличи влажността в целия апартамент, което не е добре за домашния климат. Да, и няма да ви е много удобно да се миете, а децата ще спят по това време.
Ако в долната част на затворената врата има решетки, въздухът от апартамента ще влезе в банята отдолу и влажната пара ще се отвежда във вентилационната решетка в горната част, но няма да влиза в апартамента.
В кухнята и тоалетната ситуацията е подобна за всички точки.
Подходяща ли е вашата система за частна къща или вила?
Нина Александровна, Всеволожск.
Скъпа Нина Александровна!
За селска къща нашата система е идеална, защото всяка къща има изпускателна вентилация, както и печки и камини, които също работят за отстраняване на задушен въздух. За комфортен престой са необходими само 7-10 вентила на Domvent за една вила (те се монтират лесно за един ден). Те не вдигат шум, което е особено важно при крайградския живот и ще ви зарадват с цената в сравнение със сложните системи.
Може ли да се монтира вентилационна система без пробиване на отвор в стената?
Мария, Санкт Петербург.
Скъпа Мария!
Вентилационната система за дома, както всяка друга естествена вентилационна система, работи по следния принцип: пуска свеж външен въздух и отстранява замърсения вътрешен въздух във вентилационните мини. Следователно е необходимо подаването на чист въздух отвън, т.е. изисква се отваряне към улицата.
Но не позволявайте това да ви плаши, защото днес тази операция за пробиване на отвор от опитен майстор отнема 5-10 минути (цялата инсталация на вентила Domvent ще отнеме около час) и на практика, без прах, това е разрешено от закона и не представлява заплаха към носещите конструкции.
Обяснете как да изчислите колко клапана DOMVENT са необходими за адекватна вентилация в стаята?
Алексей, Санкт Петербург.
Скъпи Алексей!
Вентилационният клапан DOMVENT се поставя под всеки прозорец на жилищните помещения (първо в стаите, а след това, ако е необходимо, в кухнята). При нормални работни условия един клапан е достатъчен за 15-17 м2 стая. Но ако имате много хора или не е много добра естествена тяга (например последния етаж), тогава трябва да инсталирате два вентилационни клапана. Едва след това вземете предвид размера и мощността на батерията. За едностаен апартамент препоръчваме поне 2 къщи (или две в стая, или една в стая и една в кухня). Ако се съмнявате, изпратете описание на вашия апартамент и ние ще ви помогнем.
Моля, кажете ми кой инструмент е необходим за самостоятелно инсталиране на клапана DOMVENT и как се извършва инсталирането?
Сергей, Москва.
Скъпи Сергей!
Процесът на инсталиране е ясен. Можете да инсталирате вентила DomVent с помощта на домакински перфоратор (SDS-Plus). Можете да видите стъпка по стъпка процеса на инсталиране и нашите препоръки тук. Ако ще стартирате бизнес или ще стартирате нова услуга за инсталиране на вентили за вентилация DOMVENT, тогава ще трябва да закупите по-голям перфоратор (SDS-Max) и чифт свредла с диаметър 40 мм. Подробности тук и тук.
Здравейте, чудите ли се възможно ли е да закупите клапан от вас и да направите инсталацията сами? И как в този случай се доставя?
Алексей, Ростов на Дон.
експресна доставка с пристигането на куриер до посочения от вас адрес (1-4 дни);
Руска поща (2-3 седмици)
Описание на самоинсталацията може да се намери на уебсайта в раздела Информация „Поставяме DOMVENT със собствените си ръце“.
Кажете ми, може ли инсталирането на такъв клапан да причини течения?
Албина, Санкт Петербург.
Мила Албина! Не той не може! Факт е, че обемът на въздуха от 13m3 / час, излизащ от вентилационния клапан DOMVENT, за разлика от отворените транци, загрява всички на батерията и се издига нагрява и по никакъв начин не може да създаде течение.
Мога ли да инсталирам вашата домашна вентилация, ако живея на 1-ви етаж и не е ли опасно? Няма ли всички отработени газове от автомобили да отидат в моя апартамент?
Валентина Ивановна, Санкт Петербург.
Скъпа Валентина Ивановна! Точно обратното, подмяната на отворени прозорци със системата "Домашна вентилация" ще направи вашия апартамент непроницаем за крадци.
А вентилационният клапан DOMVENT ще задържи тополови пухчета, насекоми, част от праха и постоянно проветрява апартамента ви, няма да позволи натрупването на вредни вещества от мебелите, строителните материали в него и, което е много важно за първия етаж, няма позволяват на миризмите и вредните вещества да се натрупват от мазето!
Здравейте, моля, кажете ми, ще се окаже ли, че заедно с въздуха, мушици и насекоми ще влязат в моя апартамент?
Алена, Санкт Петербург.
Мила Алена! В конструкцията на шумопоглътителя е вградена мрежа против комари, която ще ви предпази от насекоми и тополов пух. Като сваляте капака веднъж годишно (например при измиване на прозорците) с един пръст (дори с мокри ръце), можете лесно да свалите ауспуха и да го изтръскате или дори да го измиете. Ще отнеме 1 минута от вашето време.
Колко време ще отнеме инсталирането на един такъв прозоречен клапан и колко клапана за прозорци и врати ще трябва да бъдат инсталирани за 3-стаен апартамент (имаме 4 прозореца и 4 врати, по един за всяка стая)?
Михаил, Колпино.
Мили Майкъл!
Инсталирането на един клапан отнема около час, старата основа отнема малко повече време. За стандартен тристаен апартамент е необходимо да инсталирате три клапана DOMVENT в дневните (можете да ги инсталирате и в кухнята като допълнителен). Вентилите за врати DOORVENT трябва да бъдат монтирани във водопроводните врати (тоалетна, баня), така че влагата и миризмите веднага да се изхвърлят във вентилационната мина, а не в апартамента. И във всички дневни.
Но ако под вашите врати има пропуски (поне 1 см), тогава не е необходимо инсталирането на вентилационните клапани DVERVENT. Ако условията на живот във вашия апартамент се различават от стандартните (живеят много хора, кухнята е място за събирания и е плътно затворена от врата и т.н.), тогава е по-добре да се консултирате с професионалисти или да ни се обадите по телефона.
Защо да пробивате дупка в стената, когато можете просто да закупите прозорец с клапан?
Василий, Санкт Петербург.
Скъпи Василий!
Не обичаме да се караме на нашите конкуренти, защото вършат и прекрасна работа - спасяват хората от проблеми със задуха. Затова ще говорим за предимствата на DOMVENT.
Първо, въздухът, влизащ през клапана DOMVENT, незабавно се загрява и влиза в помещението топъл (и няма течение, дори при силни студове!).
На второ място, амортисьорът DOMVENT не намалява отварянето на светлината на прозореца, не нарушава гаранцията на прозореца и предпазва от шум много по-добре (ще бъдете много тихи!).
На трето място, със сравними технически характеристики, DOMVENT ще бъде половината от цената.
Четвърто, DOMVENT може да бъде доставен по всяко време (преди ремонт, след ремонт, по време или след монтаж на прозорец).
Пето, всеки човек и дори тригодишно дете може да се справи с поддръжката и почистването на вентилационния клапан DOMVENT!
Може ли вашата вентилация да регулира стайната температура и да я поддържа по-хладна, когато имам нужда от нея?
Александър, Шлиселбург.
Скъпи Александър!
По време на отоплителния сезон системата HOME VENTILATION ще подава студен въздух към отоплителния радиатор и можете да регулирате стайната температура, като намалите въздушния поток с амортисьора. И ако батерията ви има терморегулатор, тогава можете да постигнете идеалния климат във всяка стая поотделно. През лятото се нуждаете от климатик, за да охладите чистия въздух. А комбинацията от домашна вентилация и климатизация е идеална, защото те се допълват. DOMVENT доставя свеж, кислороден въздух, а климатикът го охлажда и не задвижва студен CO2 около стаята, както при липса на вентилация.
Можете ли да си купите клапан в златен цвят или по някакъв начин да скриете тази кутия? Завесите не го крият - имаме римски щори. Благодаря предварително за вашия отговор.
Олеся, Санкт Петербург.
Мила Олеся!
Вентилационният клапан DOMVENT е направен от прозоречна ABS пластмаса, която може лесно да бъде боядисана дори от обикновена кутия за пръскане. Можете да направите това сами или ние ще ви помогнем, ако изберете тона на боята, от който се нуждаете. Вентилът за врата DOORVENT има 4 цвята на решетката (златен, бронзов, сребърен и бял) и е съобразен с цвета на дръжките на вратите. В случай на нестандартни цветове, ние можем да изберем цвета, от който се нуждаете, или също да боядисваме.
Моля, отговорете на въпроса, нашите съседи направиха ремонт в къщата ни и блокираха всички вентилационни отвори за нас, ще ви помогне ли вашето устройство в тази ситуация? В апартамента просто няма какво да дишаш! Благодаря.
Иван Николаевич, Санкт Петербург.
Уважаеми Иван Николаевич!
В такава ситуация трябва да се свържете с управляващата компания (или жилищната кооперация), обслужваща къщата ви, с искане за отстраняване на лошата работа (или неработенето) на вентилационните шахти. И жилищните кооперации трябва да открият проблема и да го отстранят (не вие и вашият съсед, а самите те).В противен случай заведете дело срещу жилищната кооперация. Без нормално работещи изпускателни канали работата на домашната вентилация ще бъде неефективна.
Нашите бригадири, идвайки на инсталацията, първо проверяват работата на изпускателните канали и в случай на лошо представяне или незабавно отстраняват проблема, или, ако не е възможно веднага, дават препоръки как да се реши проблема.
Често има ситуация, когато жителите на къщата инсталират вентилационна решетка с мрежа против комари (те се продават в комплект), която за 2 месеца се плътно запушва с прах и спира да пропуска въздух. Почистването или премахването на тази мрежа обикновено решава този проблем.
Необходимо ли е да инсталирате клапата точно над батерията? Имам места от 7 см. Ще се побере ли?
Саша, Санкт Петербург.
Мила Саша!
Да! Монтаж на вентилационния клапан DOMVENT се изисква над батерията. В някои случаи е възможно да се инсталира захранваща тръба над тръбите (както във вашия случай) с подаване на въздух към батерията. Вторият вариант е леко да свалите батерията. Има още няколко възможности за решаване на този момент. Трябва да наблюдавате майстора на място.
Колко струва инсталационната работа?
Монтаж Вентилационен клапан "DOMVENT" - 1000 * рубли. за 1 клапан (* с дебелина на стената над 60 см и сложна инсталация - 1300 рубли за 1 клапан)
Монтаж във вратата "DOORVENT" - 500 рубли. за 1 врата
Висококачествено боядисване във всеки цвят по каталог RAL - 1500 рубли.
Отпътуване на занаятчии в рамките на Санкт Петербург - 500 рубли.
Отпътуване на майстори в Ленинградска област - 500 рубли. + 20 рубли / км. (извън околовръстния път)
Използвам подово отопление като отопление. Възможно ли е да инсталирате вашите вентилационни клапани?
Алексей.
За съжаление, не препоръчваме да инсталирате вентили за вентилация Domvent не над батерията, защото при температури под -50 ° С по тялото може да падне конденз и под клапана може да се образува зона на студен под. Работата по проектирането на устройство за вентилация на апартаменти с топъл под е в ход, но засега не се продава. Във вили, където първият етаж има подово отопление, а на втория етаж има радиатори, ние инсталираме вентилационни вентили Domvent над радиаторите на втория етаж. И за първо можем да ви препоръчаме да поставите стена KIV или прозорец Aereko.
Добър ден! Когато студен въздух от улицата срещне топъл въздух в стаята, кондензът ще падне. Къде ще падне? И няма ли кожено палто да расте в тръбата на захранващия клапан и след това да изтича на фасадата през лятото?
Борис.
Както сте забелязали, кондензът изпада на мястото, където се срещат студен и влажен топъл въздух. В това устройство това място е във въздуха над батерията, така че не се образува конденз.
Второто възможно място: на повърхността на устройството. Но там не се образува конденз, защото уредът се измива от топла струя от батерията и също е изолиран отвътре.
Третото място за образуване на конденз: вътре в тръбата - това е невъзможно, тъй като Вие сами забелязахте, че в него няма второ условие: топъл, влажен въздух.
От улицата идва само студен и сух въздух. И тъй като при правилно функционираща вентилация въздухът влиза само вътре, ние разгледахме всички възможности с вас.
В случай на неправилна инсталация (например не над батерия), отоплението се изключва и т.н. кондензатът може да падне върху повърхността на клапана, което се елиминира чрез затваряне (или намаляване) на клапана на вътрешното тяло.
Благодаря за въпроса.
Някой от инсталаторите на прозорци поставя ли вашите клапани веднага, когато ги подменя?
Да, правят го. Това е удобно и има добър допълнителен доход за работниците на прозорци. Компании за прозорци, инсталиращи нашите вентилационни клапани, могат да бъдат намерени в Интернет или рекламирани в медиите.
И ако моят лист А4 се придържа към вентилационната решетка дори когато вратата на банята е затворена, имам ли нужда от клапан на тази врата?
Залепването на листа показва, че има сцепление във вентилационния канал, а решетките на вратите са необходими за достатъчен достъп на въздух от апартамента до банята. Ако има достатъчна обща междина между вратата и кутията за преминаване на въздух, тогава клапанът може да бъде пропуснат.
Как можете сами да проверите работата на изпускателните канали? Как можете да определите предварително дали ще е необходим клапан на вратата или ако можете да се справите (и какво ще се случи, ако просто не затворите вратата)?
Проверка на вентилацията:
Отворете прозореца и вратата в банята, нанесете лист А4 върху решетката за изпускателна вентилация. Ако той е „заседнал“, значи всичко е наред. Ако не, тогава:
Ние откъсваме мрежа от фини мрежи под решетката (която се запушва за две седмици с прах и следователно не пропуска въздух (и по принцип не е необходима), ако има вентилатор, тогава купуваме двойно решетка (част от решетката, част от пространството за вентилатора), така че въздухът да преминава през вентилационния канал и при изключен вентилатор.
Обаждаме се на управляващата компания (ZhEK, HOA и др.), Те трябва да го поправят безплатно.
В сравнение с отворена врата, клапанът на вратата е по-удобен (поддържа тишина); вместо това можете да поставите прости решетки на вратата или междина под вратата от поне 1 см.
Ако вратата не е затворена, тогава, когато например измиете, цялата влага (цялата пара) ще влезе в апартамента и ще увеличи влажността в целия апартамент, което не е добре за домашния климат. Да, и няма да ви е много удобно да се перете, а децата ще спят по това време.
Ако в долната част на затворената врата има решетки, въздухът от апартамента ще влезе в банята отдолу и влажната пара ще се отвежда във вентилационната решетка в горната част, но няма да влиза в апартамента.
В кухнята и тоалетната ситуацията е подобна за всички точки.
Подходяща ли е вашата система за частна къща или вила?
Нина Александровна, Всеволожск.
Скъпа Нина Александровна!
За селска къща нашата система е идеална, защото всяка къща има изпускателна вентилация, както и печки и камини, които също работят за отстраняване на задушен въздух. За комфортен престой са необходими само 7-10 вентила на Domvent за една вила (те се монтират лесно за един ден). Те не вдигат шум, което е особено важно при крайградския живот и ще ви зарадват с цената в сравнение със сложните системи.
Може ли да се монтира вентилационна система без пробиване на отвор в стената?
Мария, Санкт Петербург.
Скъпа Мария!
Вентилационната система за дома, както всяка друга естествена вентилационна система, работи по следния принцип: пуска свеж външен въздух и отстранява замърсения вътрешен въздух във вентилационните мини. Следователно е необходимо подаването на чист въздух отвън, т.е. изисква се отваряне към улицата.
Но не позволявайте това да ви плаши, защото днес тази операция за пробиване на отвор от опитен майстор отнема 5-10 минути (цялата инсталация на вентила Domvent ще отнеме около час) и на практика, без прах, това е разрешено от закона и не представлява заплаха към носещите конструкции.
Обяснете как да изчислите колко клапана DOMVENT са необходими за адекватна вентилация в стаята?
Алексей, Санкт Петербург.
Скъпи Алексей!
Вентилационният клапан DOMVENT се поставя под всеки прозорец на жилищните помещения (първо в стаите, а след това, ако е необходимо, в кухнята). При нормални работни условия един клапан е достатъчен за 15-17 м2 стая. Но ако имате много хора или не е много добра естествена тяга (например последния етаж), тогава трябва да инсталирате два вентилационни клапана. Едва след това вземете предвид размера и мощността на батерията. За едностаен апартамент препоръчваме поне 2 къщи (или две в стая, или една в стая и една в кухня). Ако се съмнявате, изпратете описание на вашия апартамент и ние ще ви помогнем.
Моля, кажете ми кой инструмент е необходим за самостоятелно инсталиране на клапана DOMVENT и как се извършва инсталирането?
Сергей, Москва.
Скъпи Сергей!
Процесът на инсталиране е ясен. Можете да инсталирате вентила DomVent с помощта на домакински перфоратор (SDS-Plus). Можете да видите стъпка по стъпка процеса на инсталиране и нашите препоръки тук. Ако ще стартирате бизнес или ще стартирате нова услуга за инсталиране на вентили за вентилация DOMVENT, тогава ще трябва да закупите по-голям перфоратор (SDS-Max) и чифт свредла с диаметър 40 мм. Подробности тук и тук.
Здравейте, чудите ли се възможно ли е да закупите клапан от вас и да направите инсталацията сами? И как в този случай се доставя?
Алексей, Ростов на Дон.
експресна доставка с пристигането на куриер до посочения от вас адрес (1-4 дни);
Руска поща (2-3 седмици)
Описание на самоинсталацията може да се намери на уебсайта
Кажете ми, може ли инсталирането на такъв клапан да причини течения?
Албина, Санкт Петербург.
Мила Албина! Не той не може! Факт е, че обемът на въздуха от 13m3 / час, излизащ от вентилационния клапан DOMVENT, за разлика от отворените транци, загрява всички на батерията и се издига нагрява и по никакъв начин не може да създаде течение.
Мога ли да инсталирам вашата домашна вентилация, ако живея на 1-ви етаж и не е ли опасно? Няма ли всички отработени газове от автомобили да отидат в моя апартамент?
Валентина Ивановна, Санкт Петербург.
Скъпа Валентина Ивановна! Точно обратното, подмяната на отворени прозорци със системата "Домашна вентилация" ще направи вашия апартамент непроницаем за крадци.
А вентилационният клапан DOMVENT ще задържи тополови пухчета, насекоми, част от праха и постоянно проветрява апартамента ви, няма да позволи натрупването на вредни вещества от мебелите, строителните материали в него и, което е много важно за първия етаж, няма позволяват на миризмите и вредните вещества да се натрупват от мазето!
Здравейте, моля, кажете ми, ще се окаже ли, че заедно с въздуха, мушици и насекоми ще влязат в моя апартамент?
Алена, Санкт Петербург.
Мила Алена! В конструкцията на шумопоглътителя е вградена мрежа против комари, която ще ви предпази от насекоми и тополов пух. Като сваляте капака веднъж годишно (например при измиване на прозорците) с един пръст (дори с мокри ръце), можете лесно да свалите ауспуха и да го изтръскате или дори да го измиете. Ще отнеме 1 минута от вашето време.
Колко време ще отнеме инсталирането на един такъв прозоречен клапан и колко клапана за прозорци и врати ще трябва да бъдат инсталирани за 3-стаен апартамент (имаме 4 прозореца и 4 врати, по един за всяка стая)?
Михаил, Колпино.
Мили Майкъл!
Инсталирането на един клапан отнема около час, старата основа отнема малко повече време. За стандартен тристаен апартамент е необходимо да инсталирате три клапана DOMVENT в дневните (можете да ги инсталирате и в кухнята като допълнителен). Вентилите за врати DOORVENT трябва да бъдат монтирани във водопроводните врати (тоалетна, баня), така че влагата и миризмите веднага да се изхвърлят във вентилационната мина, а не в апартамента. И във всички дневни.
Но ако под вашите врати има пропуски (поне 1 см), тогава не е необходимо инсталирането на вентилационните клапани DVERVENT. Ако условията на живот във вашия апартамент се различават от стандартните (живеят много хора, кухнята е място за събирания и е плътно затворена с врата и т.н.), тогава е по-добре да се консултирате с професионалисти или да ни пишете
Защо да пробивате дупка в стената, когато можете просто да закупите прозорец с клапан?
Василий, Санкт Петербург.
Скъпи Василий!
Не обичаме да се караме на нашите конкуренти, защото вършат и прекрасна работа - спасяват хората от проблеми със задуха. Затова ще говорим за предимствата на DOMVENT.
Първо, въздухът, влизащ през клапана DOMVENT, незабавно се загрява и влиза в помещението топъл (и няма течение, дори при силни студове!).
На второ място, амортисьорът DOMVENT не намалява отварянето на светлината на прозореца, не нарушава гаранцията на прозореца и предпазва от шум много по-добре (ще бъдете много тихи!).
На трето място, със сравними технически характеристики, DOMVENT ще бъде половината от цената.
Четвърто, DOMVENT може да бъде доставен по всяко време (преди ремонт, след ремонт, по време или след монтаж на прозорец).
Пето, всеки човек и дори тригодишно дете може да се справи с поддръжката и почистването на вентилационния клапан DOMVENT!
Може ли вашата вентилация да регулира стайната температура и да я поддържа по-хладна, когато имам нужда от нея?
Александър, Шлиселбург.
Скъпи Александър!
По време на отоплителния сезон системата HOME VENTILATION ще подава студен въздух към отоплителния радиатор и можете да регулирате стайната температура, като намалите въздушния поток с амортисьора. И ако батерията ви има терморегулатор, тогава можете да постигнете идеалния климат във всяка стая поотделно.През лятото се нуждаете от климатик, за да охладите чистия въздух. А комбинацията от домашна вентилация и климатизация е идеална, защото те се допълват. DOMVENT доставя свеж, кислороден въздух, а климатикът го охлажда и не задвижва студен CO2 около стаята, както при липса на вентилация.
Можете ли да си купите клапан в златен цвят или по някакъв начин да скриете тази кутия? Завесите не го крият - имаме римски щори. Благодаря предварително за вашия отговор.
Олеся, Санкт Петербург.
Мила Олеся!
Вентилационният клапан DOMVENT е направен от прозоречна ABS пластмаса, която може лесно да бъде боядисана дори от обикновена кутия за пръскане. Можете да направите това сами или ние ще ви помогнем, ако изберете тона на боята, от който се нуждаете. Вентилът за врата DOORVENT има 4 цвята на решетката (златен, бронзов, сребърен и бял) и е съобразен с цвета на дръжките на вратите. В случай на нестандартни цветове, ние можем да изберем цвета, от който се нуждаете, или също да боядисваме.
Моля, отговорете на въпроса, нашите съседи направиха ремонт в къщата ни и блокираха всички вентилационни отвори за нас, ще ви помогне ли вашето устройство в тази ситуация? В апартамента просто няма какво да дишаш! Благодаря.
Иван Николаевич, Санкт Петербург.
Уважаеми Иван Николаевич!
В такава ситуация трябва да се свържете с управляващата компания (или жилищната кооперация), обслужваща къщата ви, с искане за отстраняване на лошата работа (или неработенето) на вентилационните шахти. И жилищните кооперации трябва да открият проблема и да го отстранят (не вие и вашият съсед, а самите те). В противен случай заведете дело срещу жилищната кооперация. Без нормално работещи изпускателни канали работата на домашната вентилация ще бъде неефективна.
Нашите бригадири, идвайки на инсталацията, първо проверяват работата на изпускателните канали и в случай на лошо представяне или незабавно отстраняват проблема, или, ако не е възможно веднага, дават препоръки как да се реши проблема.
Често има ситуация, когато жителите на къщата инсталират вентилационна решетка с мрежа против комари (те се продават в комплект), която за 2 месеца се плътно запушва с прах и спира да пропуска въздух. Почистването или премахването на тази мрежа обикновено решава този проблем.
Необходимо ли е да инсталирате клапата точно над батерията? Имам места от 7 см. Ще се побере ли?
Саша, Санкт Петербург.
Мила Саша!
Да! Монтаж на вентилационния клапан DOMVENT се изисква над батерията. В някои случаи е възможно да се инсталира захранваща тръба над тръбите (както във вашия случай) с подаване на въздух към батерията. Вторият вариант е леко да свалите батерията. Има още няколко възможности за решаване на този момент. Трябва да наблюдавате майстора на място.
Вентилационен клапан "DOMVENT" в онлайн магазин ECOTECO
Интересно за четене
- Министерството на природните ресурси представи концепцията за рециклиране на опаковки от производителя
- Гръмотевична буря разкъса Кузбас
- Hyundai обещава 11 нови електрически автомобила до 2025 г.
- Хибриден електрически мотоциклет Nawa
- Финландия и Русия могат да разширят сътрудничеството в областта на климата
Долу миризма и дим
Следващият елемент, който често притеснява жителите на градовете, е пречистването на въздуха. Все още е много трудно да се намери такова устройство на свободния пазар. Така че отново трябва да помислите как да направите филтър за въглен за въздух със собствените си ръце. Ако е наличен, например, в качулката, тогава трябва да проверите дали е за еднократна употреба или за многократна употреба. Ако е за многократна употреба, ще бъде достатъчно да го отворите, отстраните използвания въглен, изплакнете обилно, подсушете и добавете нов пълнител. Ако е за еднократна употреба, ще трябва да закупите нов или да сглобите филтър за въглища за качулката със собствените си ръце.
Всички компоненти се сглобяват отново. Това може да бъде стандартна качулка за качулка, в която се вкарва конструкция от две мрежи против комари, свързани помежду си с активен въглен, излят между тях, износен до състоянието на гранули или прах, в зависимост от плътността на мрежата. Някои хора предлагат да се използват сита с метални мрежи с различен диаметър.Въгленът трябва да се излее в сито с по-голям диаметър, да се притисне с дъното на сито с по-малък диаметър и добре да се закрепи с уплътнител. И инсталирайте тази конструкция в тялото на качулката. Особеността на такъв филтър е, че плътността на неговия абсорбент ще трябва да се регулира според мощността на изпускателния вентилатор. Тъй като слой, който е твърде дебел и плътен, може да не пропуска достатъчно въздух, а тънкият и тънък слой няма да се справи с функциите си за почистване.
Как да направите филтър за въглища за вентилация със собствените си ръце може да се ръководи от следните инструкции. За производството му се използват две тръби с различен диаметър, запушалки, мрежа, агрофибър и въглища. В тръбите се пробиват дупки. След това всеки се увива с мрежа и агрофибър. Вътрешната тръба е монтирана точно в центъра на щепсела и е закрепена с лепило или други средства. По-голямата тръба се монтира по-късно и също е обезопасена. Между тях се изсипва въглен. Остава само да сложите още един щепсел отгоре. Филтърът е готов.
Опции за вентилация на сградата в работилницата
В търсене на най-добрите начини за изграждане на вентилация за вашата собствена работилница, трябва да преразгледате много възможни варианти, преди да намерите най-подходящия.
За да улесните това търсене, разгледайте като пример най-успешните според нас решения за независимото подреждане на вентилацията в работилницата.
Вариант # 1 - изпускателна вентилация от пластмасови тръби
За изпълнението на този проект са използвани: използван центробежен вентилатор "охлюв" с електродвигател 2, 2 kW, цев от 40 - 50 литра с гърло, съответстващо на входа на "охлюва", пластмасови канализационни тръби 110 mm.


Центробежният вентилатор, за разлика от аксиалния, създава по-голямо налягане. Това прави възможно изграждането на негова основа на по-разширени и разклонени вентилационни системи в цеха.
Няколко думи за материала на въздуховодите. Използването на пластмасови канализационни тръби за вентилация е доста популярен вариант, главно поради цената. Те са няколко пъти по-евтини от пластмасовите и стоманените вентилационни канали.
Но канализационните тръби имат и своите недостатъци:
- не могат да се използват на места, където температурата може да надвишава +60 градуса;
- те нямат антистатично покритие, така че не е препоръчително да се използват за системи за отстраняване на чипове и прах;
- техните диаметри не отговарят на стандартите за вентилационни системи, което затруднява взаимодействието с друго оборудване.
Въпреки тези недостатъци, в повечето случаи канализационните тръби се използват успешно като въздуховоди. Разглежданият вариант на устройството за вентилационна система, изработена от скрап материали, не беше изключение.
В този проект всички основни качулки за ключарския магазин са направени на ръка. Нека да опишем накратко етапите на свършената работа.
И така, първоначално беше направен основен ремонт и ревизия на центробежния вентилатор. Преразглеждането се отнася до входящата тръба. По-точно, поради липсата му, беше необходимо да се направи нов от малък запечатан варел, чийто обем ще позволи на вентилатора да получи необходимата скорост на вихровия поток.
В цевта беше направен страничен отвор и беше залепено парче пластмасова тръба, като се вземе предвид аеродинамиката, така че входният поток да върви по вътрешната обиколка на цевта. След това под тавана в центъра по цялата работилница беше монтиран канал от пластмасови тръби.


Цевта в този проект играе ролята на приемник, който е създаден с перспектива за разширяване на вентилационната система чрез вграждане на няколко входящи тръби
Центробежният вентилатор създава мощен вихров поток в цевта, който осигурява бърза циркулация на въздуха в цялата система. Неговата здравина е толкова голяма, че държи режещия диск на мелницата на най-отдалечения вход.
Параметрите на изпускателната система са както следва:
- мощност на двигателя 2, 2 kW;
- скорост на вентилатора 2800 об / мин;
- производителност 1000 м3 / ч - 1500 м3 / ч;
- времето за изтегляне на целия обем въздух от цеха е 5 - 10 минути.
Цялата система има 6 входа за въздух, затворени със самостоятелно изработени регулируеми тапи. Изработени са от стандартни пластмасови с изрязани прорези в капака и същите прорези в подвижна метална плоча, фиксирани на една ос. С тяхното взаимно въртене се регулира въздушният поток.
Вариант # 2 - прахоуловител от филтър КАМАЗ
Тъй като фабричните системи за отстраняване на прах са доста скъпи, домашно приготвените прахоуловители на базата на въздушни филтри от големи камиони като КамАЗ, трактори или комбайни станаха широко разпространени.
Допълвайки такъв филтър с вентилатор, получавате добър пречиствател на въздуха, който заема минимум място и може лесно да бъде пренесен до всяка част на работилницата.
Работата на такава система се регулира от избора на мощност на вентилатора. Такива филтри са способни да пречистват обема на въздуха от 500 до 1000 m3 на час, в зависимост от вида. Те могат да бъдат свързани към вентилатори с капацитет до 300 - 400 м3 / ч.


Прахосмукачката може да бъде окачена от тавана. Монтажът трябва да позволява периодично отстраняване и почистване на оборудването. Това се прави най-добре със сгъстен въздух на открито.
Сглобяването на пречиствател на въздуха е съвсем просто. За да направите това, трябва да изрежете фланеца, да фиксирате фиби на оста по дължината на филтъра. След това залепете вентилатора към фланеца и завийте цялата конструкция към филтъра.
Поради тяхната лекота на производство и ниска цена, могат да бъдат направени няколко такива филтъра и значително да подобрят въздуха в цялата работилница.
Вариант # 3 - аспирационна система в дърводелския цех
Основната роля в предложената система за извличане на прах играе фабричният екстрактор за чипове JET. Цената на такова оборудване, в зависимост от параметрите, е 15-40 хиляди рубли. Повечето модели разполагат с платнен колектор за прах и торбичка за чипове.
За тази опция е избран най-добрият модел JET DC-1200CK с хартиен филтриращ елемент под формата на подвижен барабан. Оборудван е с ръчно вътрешно почистващо средство, което премахва основния прах, без да отстранява филтъра.
Вентилационните тръби са избрани за максимална ESD защита и най-малко съпротивление на въздушния поток. Навитите поцинковани стоманени тръби отговарят на тези изисквания по най-добрия начин.
Когато бяха инсталирани, беше използван мултицет за проверка на надеждността на електрическия контакт във възлите за свързване. При необходимост контактът беше подсилен с два самонарезни винта от противоположните страни. Целият тръбопровод беше заземен. Освен това ставите бяха увити с алуминиева лента за херметичност.


Работата в цеха е организирана по такъв начин, че всички работни плотове и машини да могат да бъдат премествани на колела в центъра на помещението и свързани с гофрираната изпускателна система, когато се използват. Това гарантира, че работилницата е почти идеално чиста и без прах.
За да се намали шумът и прахът, изпускателният блок беше преместен извън цеха в съседното котелно помещение. Захранващата линия се прокарва през отвор в стената под тавана. Входът е фиксиран към тавана в средата на работилницата. Той е с гофрирана двуметрова тръба от прозрачна пластмаса.
В допълнение към аспирацията, обменът на въздух в дърводелския цех се осигурява от захранваща и изпускателна вентилация.
Чист като сълза


Как да заобиколим филтрирането на руска народна напитка в тази тема? Можете да направите филтър за въглища за почистване на луна със собствените си ръце по аналогия с водно устройство. Принципът на действие е същият. Самогонът се изсипва в обърната бутилка с вградени абсорбенти и пасивно се декантира в подготвен контейнер.В този случай обаче пясъкът и чакълът ще трябва да бъдат премахнати.


За да почистите лунната светлина, експертите препоръчват да се купуват специални въглища. Той е направен от брезова дървесина или кокосов орех чрез пиролиза и е способен да задържа голямо количество фузелови масла. Въпреки това, когато събирате въглен филтър за лунна светлина със собствените си ръце, трябва да вземете предвид, че пластмасата в тази ситуация играе ролята на окислител. За тази цел е по-добре да използвате стъклен съд или колба от неръждаема стомана. Още по-добре, закупете готов филтър. Що се отнася до разходите, той не се различава много от домашния. Но има много по-малко неприятности със събирането на необходимите материали.
Защита на домакински уреди


Направата на филтър за въглен със собствените си ръце е съвсем проста. Ако трябва да филтрирате малко вода за пиене или малко повече в резерв, тогава това изглежда реално. Но защитата на домакинските уреди с домашно направени филтри все още не е възможна. За тази скала са необходими по-трайни материали. Пластмасова бутилка определено няма да работи, както и PVC тръба. В тази ситуация ще трябва да разчитате на специалисти, които са разработили и произвели функционални структури, които могат да предпазват домашните уреди от замърсявания във водата.
Обобщаване


Така че, направата на въглен филтър със собствените си ръце не е трудно. Всеки може да се справи. Този метод обаче трябва да се използва в краен случай, тъй като такива устройства, направени у дома от неумели майстори, могат да навредят повече, отколкото да помогнат при пречистването на водата. Желанието да се спестят пари и да се спести бюджетът на семейството може да доведе до по-осезаеми разходи при евентуално отравяне с вода, преминала през такива филтри.














