Опциите за тухлена сграда включват различни видове зидария. Все по-популярна е кладенето на тухлени стени, което позволява:
- спестете разходи за скъпи тухли;
- едновременно решаване на въпроса за топлоизолацията у дома;
- намаляване на натоварването на тежестта върху основата на сградата;
- намаляване на разходите за външно и вътрешно довършване (без изолация).
Забранено е изграждането на многоетажни сгради по метода на кладене на кладенци на места с повишен влажен климат.
Какво е?

Зидарията получи името си от кухините (кладенците), които са заложени в процеса. При оформянето на стените те се запълват с топлоизолационни материали, повишавайки термичната стабилност на конструкцията. Дебелината на стените намалява, но топлоизолацията, когато е правилно инсталирана, ви позволява да спестите не само по време на строителството, но и при отопление по време на експлоатацията на къщата. В същото време се провеждат две успоредни стени, които по различни методи на определени места свързват диафрагмите - тухлени прегради. Преградите са свързваща връзка и поемат функцията на усилващи елементи.
Освен това за укрепване на конструкцията се използва подсилена мрежа или армировка. Всички метални части трябва да бъдат покрити с трайно антикорозионно съединение.
Ами тухлената зидария ви позволява да комбинирате и по този начин значително да спестите от строителни материали. Например за външни стени се използват скъпи керамични облицовъчни тухли, а за вътрешна зидария - бели силикатни тухли или газосиликатни блокове.
Технология за топлоизолация и облицовка на стени
За да изолирате стените извън сградата, изобщо не е необходимо да сте професионален строител, най-важното е да следвате точно препоръките.
Подготовка на инструменти и материали
Изборът на материали за изолация на къщи е продиктуван от местния климат. След като сте решили изолацията, можете да изберете инструментите - това може да бъде квадрат, ниво на сграда, мистрия, зъбна мистрия и т.н.
Подготовка на стената
Преди да започнете работа, е необходимо да подготвите фасадата за монтаж. За да направите това, зидарията се почиства от прах и мръсотия, също така е необходимо да се запечатат пукнатините и да се изравни повърхността на зидарията, ако е необходимо. След това обработваме фасадата с грунд.
Предварително почистване на фасадата
Необходимо е да се погрижите за изравняване на стените, тъй като след монтажа на изолацията, кухините, образувани на мястото на пукнатини, могат да се превърнат в място на деформация на изолацията - за това е достатъчен малък механичен ефект. Също така, изолацията не може да бъде плътно залепена към ямите и неравностите.
Изолация на стени
Технологията на трислойна зидария с изолация и облицовъчни тухли съдържа следните стъпки:
- Разполагаме вътрешната стена - в това няма нищо трудно, тъй като технологията на зидария е същата като зидарията на всяка носеща стена. За него се избират или газобетонни блокове, или масивни тухли. Дебелината до права линия зависи от минималните зимни температури в района и може да бъде 1 или 1,5 тухли.
- Следващият етап е поставяне на външната стена с облицовка. Извършва се по такъв начин, че между стените да се образува процеп - в него се вкарва изолационен материал. Ако се използват гранули, за тях се оформят кладенци. За здравина стените са свързани помежду си с връзки, направени от армировка и щамповане. Като алтернатива можете да правите тухлена превръзка на редовни интервали.
- Хидроизолацията е важна стъпка, която ще помогне да се предпази изолацията от влага, която неизбежно прониква в тухления слой. Като изолатор срещу влага можете да използвате плътен филм или покривен материал.
- Топлоизолационният материал за запълване се излива в ниша веднага щом височината на стената достигне 1 м. Ако се използва изолация с ролка или лист, тогава тя е прикрепена към вътрешната стена - за това гъби с пластмасова капачка на голяма диаметър. След като фиксирахме изолацията, ние я затваряме с външна облицовъчна зидария.
- За нормален обмен на газ е необходимо да се оставят вентилационни канали на всеки 0,5-1 м - така наречените вертикални шевове между тухли, които не са умишлено запълнени с хоросан.
Както показва практиката, трислойната зидария ви позволява да постигнете няколко резултата наведнъж и значително подобрява работата на сградата през зимата.
Можете да го направите сами, но е по-добре да се обърнете към професионалисти, тъй като грешките в техническия процес отменят всички предимства на тази опция за фасадна изолация.
Предимства и недостатъци


Във всеки вид работа има положителни аспекти и проблемни моменти, които се превръщат в задачи, необходими решения. Леката кладенечна клада има своите предимства:
- значително намаляване на потреблението на тухли (до 20%);
- намаляване на времето за строителство;
- голям избор от нагреватели в ценовия диапазон;
- намаляване на натоварването върху основата;
- стената с малка ширина има добра топлопроводимост.
Винаги трябва да се следи качеството на извършената работа, за да се избегнат възможни проблеми:
- В сеизмично активни зони и на трудни почви е необходимо внимателно да се изчисли разстоянието между диафрагмите, тъй като стените имат нехомогенна структура.
- След изтичане на времето не е възможно да се допълни или замени уредения слой топлоизолация.
- Температурните промени водят до разрушаване или потъване на нискокачествена изолация.
- Възможна е кондензация по стените.
- Неизолираната метална армировка води до образуване на студени мостове и загуба на топлообмен.
Парфюм
В случай на системно устройство с въздушна междина с ширина 2-5 cm, за вентилация, в долната и горната част на стената са разположени отвори за въздух (отвори), през които парообразната влага се отстранява навън. Размерът на такива отвори се взема в размер на 75 cm2 на 20 m2 повърхност на стената.
Горните вентилационни канали са разположени при корнизите, а долните при цоклите. В този случай долните отвори са предназначени не само за вентилация, но и за оттичане на вода.
- Въздушна междина 2 cm
- Долна част на сградата
- Горната част на сградата
За вентилация на слоя в долната част на стените се монтира шлицова тухла, поставя се на ръба или в долната част на стените, тухлите се полагат не близо един до друг и не на известно разстояние един от друг , и получената празнина не се запълва със зидарен хоросан.
Видове зидария
Основното нещо, което характеризира добре зидарията, са кухините, запълнени с изолация, но видовете зидарии играят важна роля в това.


Тухлената зидария може да бъде 2 тухли, 2,5 тухли или модифицирана. Всеки вид зидария има право да се продава в зависимост от предназначението на сградата и климатичната зона, в която се намира. Тъй като основната задача на всеки тип е да изолира къщата, напоследък тухли с кухи кухини успешно се използват в зидарията на кладенци. Въздухът в запечатаното пространство на тухла, положен във всякакъв вид зидария, също задържа топлината.
КАК ДА СТРОИТЕ КЪЩА
Разположени на въздух стени
Дебелината на ограждащите конструкции от тухли при външна температура -30 ° C трябва да бъде 64 cm (2,5 тухли), за да се осигури адекватна термична защита.Икономична тухлена зидария от плътни тухли се получава чрез оформяне на затворени въздушни междини с ширина 5-7 мм.


въздушна структура на стената
Такава зидария не само намалява разхода на тухли на единица обем на стената, но също така увеличава нейните топлинни свойства. Тази техника позволява, наред с други неща, да се намали дебелината на стените в сравнение с масивна зидария, без да се намаляват техните топлоизолационни свойства. Предимствата на този вид зидария са очевидни. Обемът на зидарията се намалява не само от кухините вътре в зидарията, но и чрез намаляване на дебелината на стените. Фигура 1 - въздушна междина; 2 - тухла; 3 - лек бетон.


кладенец кладенец 1 - изолация, 2 - тухла
Ами зидария е един от най-често срещаните видове икономична конструкция от тухлена стена за нискоетажни сгради. Тази строителна техника ви позволява да намалите консумацията на тухли с 15-20% в сравнение с масивната тухлена зидария. Добре опциите за зидария се характеризират с различна капитализация и стабилност. Слоевете в зидарията на кладенеца са свързани с вертикални диафрагми, разстоянието между които не трябва да надвишава 1170 mm. На фиг. отдолу има план на зидария с опора на вътрешната стена.


Лека зидария с опора на вътрешната стена, 1 - тухла, 2 - изолация
От само себе си се разбира, че здравината на стената намалява с кладенеца на кладенеца. Следователно, на долното ниво на подовите плочи и два реда под отворите на прозорците по целия периметър на външните и носещите стени са разположени хоризонтални хоросанни диафрагми.


хоросан диафрагми
Такива диафрагми са оформени от подсилваща мрежа, която се вкарва едновременно във вътрешния и външния слой на зидарията и се защитава със слой пясъчно-циментов разтвор. Характеристика на тези стени е солидната зидария в ъглите.
Анкерна и тухлено-бетонна зидария
Тухлена бетонна зидария
Това са две успоредни стени, между които се полага слой от лек бетон. Тухли, положени с мушка и изпъкнали в зидарията, осигуряват закрепване на надлъжни стени с бетон (на фигурата вляво 1 - тухла; 2 - бетон).
Полагането на стените започва с полагането на две три четвърти в първия ред на външната и вътрешната верста. След това тухла, положена с мушка, се редува с две тухли, положени в лъжици. Във втория и третия ред зидария тухли се полагат с лъжица. Кухината между стените започва да се запълва с бетон след изграждането на 3-5 реда зидария. Пространството между върховите редове може да бъде запълнено с лек бетон или други пълнители, които увеличават спестяващите топлина свойства на ограждащите конструкции. В стени с напречни вертикални стени се използват леки бетони от клас 10 и по-ниски, направени върху местни свързващи материали без използването на портландцимент.
Стените са свързани помежду си със залепени редове, които влизат в бетона с 1/2 тухла и са разположени на всеки три или пет лъжици редици зидария. Редовете на таблото са разположени в една равнина или разпределени шахматно, в зависимост от приетата дебелина на стената. Възможно е да се свържат надлъжните стени с отделни тухли, положени в надлъжните стени с пикове на два реда височина. Стените са издигнати в колани, чиято височина се определя от местоположението на редовете на шева. Ако шевовите редове са поставени в една и съща равнина, тогава полагането започва с шевовия ред. След това се поставят две лъжици: първо от външната, след това от вътрешната верста. Разликата между стените е запълнена с лек бетон или изолация.
Съвременните строителни технологии използват плочи от пенопласт като изолация, което намалява наполовина топлопроводимостта на стените, а използването на пенобетон за тази цел дава възможност за допълнително увеличаване на физическите и механичните характеристики на стената.
Многослойни стени
Характерна особеност на тухлената зидария е нейната висока топлинна инерция.Тухлената стена отнема много време да се затопли и също така се охлажда бавно. За жилищните сгради това качество на тухлените стени е положително, тъй като температурата на вътрешните помещения обикновено няма големи колебания. Но за къщи с периодично пребиваване (обикновено летни вили) топлинната инерция на тухлена стена вече играе важна роля, тъй като по време на отсъствието на собствениците температурата на стените намалява и отнема гориво и време, за да ги загрее. За да се намали това негативно явление, се използват многослойни стенни конструкции, състоящи се от слоеве с различна топлопроводимост и топлинна инерция. Но това не означава, че многослойните конструкции могат да се използват само за селски къщи. Високата топлинна ефективност на този вид зидария на стени е намерила приложение във всички области на строителството, включително при строителството на жилищни сгради.
Многослойни системи се наричат системи, при които тухлата действа като облицовъчен материал. Има два типа многослойни системи. При първата форма облицовъчният (тухлен) слой е самоносещ и не възприема натоварвания от подове и покриви - Фиг. По-долу:


Многослойна стенна конструкция
Където: 1 - външна облицовка (тухлена зидария); 2 - вентилационна междина; 3 - защита от вятър; 4 - топлоизолация; 5 - носеща стена; (-) - външна равнина на стената; (+) - вътрешна равнина на стената
При този тип зидария, основната стена изградени от традиционни материали (твърди тухли, блокове, шлака или керамзитобетон и др.). Тя носи основния товар. По стената се полагат топлоизолационни плочи и след това се изгражда външен облицовъчен слой тухла. Слоевете са свързани с гъвкави Z-образни връзки, изработени от неръждаема или поцинкована стомана, докато носещите и облицовъчните слоеве са свързани помежду си на нивото на подовете със стоманобетонен колан.
Във втория вариант вътрешните и външните слоеве имат твърдо свързване, а стената напълно поема товара от покрива и таваните. Като вътрешен слой могат да се използват различни блокове, направени с усъвършенствана технология.
Използването на многослойни конструкции при изграждането на стени даде възможност да се предпазят от редуващи се замръзване и размразяване, за да се изравнят температурните колебания на основната маса на стената. Освен това многослойните конструкции благоприятстват увеличаването на трайността на носещата част на заграждащите конструкции, изместват точката на оросяване във външния топлоизолационен слой. В същото време се създава благоприятна паропропускливост на стените, площта на помещенията не намалява и се появяват допълнителни възможности в дизайна на фасадата на сградата.
Последователност на произведения с олекотена зидария
Полагането на стени от леки конструкции се извършва малко по-различно от конвенционалните. Преди началото на полагането на леки стени се монтират ъглови и междинни поръчки, акостирания се изтеглят по външната и вътрешната страна на стените, за да се осигури праволинейността на зидарията на две тънки стени на върста и хоризонталността на редовете. Първо се полагат 4-6 реда на външната стена на върста, след което вътрешната стена на върста се полага на същата височина. Полагането се извършва в преса със задължителното запълване на хоризонтални и напречни вертикални шевове.


Последователността на полагане на стена в 2 и 1,5 тухли
Ако зидарията на вътрешните стени изостава от зидарията на външните, се прави наклонена черта във външната стена с освобождаването на всяка четвърта свързана тухла. За да не се нарязва цяла тухла на три четвърти, тя се потапя с единия край в запълване или лек бетон. Последователността на тухлената зидария на лека стена е показана на фиг. По-долу:
В участъка на зидарията се прекъсват, те налагат гаранционни наказания. За да се предотврати падането на засипката от окопите (участък от стената във височина от една диафрагма до друга), те временно се затварят на сухо с тухла, а когато секциите се затворят, тухлата се отстранява.
Леки опции за дизайн на стени
Има няколко възможности за конструктивни решения за зидария на външни стени от лека конструкция.
Вариант 1 - тухлена зидария с образуване на въздух или изолационен слой с ширина 5-7 см, Фиг. По-долу:


полагане на тухлени стени с междинен слой
С тази опция разходът на тухли е намален с 15-20% в сравнение с масивна тухлена зидария на стена с дебелина 51 см и стени с дебелина 35-40% - 64 см. Съпротивлението на топлопредаване на стената при използване на минерална вата като нагревател се увеличава с 60% при използване на експандиран полистирол - със 100%, разходът на разтвор се намалява с 35%, а разходите за труд намаляват с 10%.
За изграждането на такива стени могат да се използват както твърди, така и ефективни (кухи) тухли. Предните редове зидария са завързани към основната стена след 4-6 реда. Външната страна на такива стени обикновено е измазана, за да се намали вероятността от издухване.
Вариант 2 - тухлена зидария с външна или вътрешна изолация. В сравнение с предишната версия, този метод е по-прост, тъй като ви позволява да извършвате работа по изолация на стени на второ място. Освен това тази опция използва максимално якостните характеристики на тухлената зидария.
За да изолирате стените отвътре, можете да използвате ДВП, дървен бетон, дървени стърготини, газобетон, меки влакнести плочи, плочи от минерална вата, експандиран полистирол. Плочи, изработени от органични материали, са монтирани върху маяците на относителната, докато въздушната междина служи като допълнителна изолация на стената. Неорганичната изолация е прикрепена директно към стената с помощта на хоросан или неорганични лепила.
Вариант на стенната конструкция с вътрешна изолация може успешно да се приложи в къщи с периодично пребиваване, при които температурната инерция на стените е нежелана, особено през студения сезон. Голяма маса охладени стени всеки път изисква значителен разход на гориво, а внезапните промени в температурата в помещенията водят до кондензация на влага по вътрешните повърхности. В този случай трябва да се осигури хидроизолация от външната страна на изолацията, а отводняването на образувания кондензат се организира в конструкцията на стената.


Изолация на външна стена
Външната изолация предвижда задължителна облицовка на стени. За външна изолация е по-добре да използвате плочи от минерална вата или полистиролов ориз. наляво:
Като водоотблъскващ слой можете да използвате обшивка от дъски, поставени хоризонтално в четвърт или език. Режимът на топлина и влажност на такава стена е по-добър от стените с изолация, разположени от вътрешната страна на зидарията. Специалните метални панели с различни полимерни покрития са много ефективни за външна облицовка на стени. Те се доставят от производители на профилиран метал с широка гама от цветове и видове профили. Стоманената облицовка не само надеждно ще предпази стените от атмосферните влияния, но и ще служи на архитектурния дизайн.
Конструкциите на завесите са леки панели, които се състоят от два стоманени профилирани листа и топлоизолационен материал между тях. Панелите са фиксирани към стената със специални крепежни елементи, доставени с панелите. Шевовете между панелите се запълват със силиконов уплътнител или други изолационни съединения и се покриват с профилирани стоманени ленти, със същото покритие като на основния панел.
Вариант 3 - кладене на кладенци. Препоръчително е да използвате тази опция, когато е наличен относително лек и ниско топлопроводим материал за запълване на вътрешното пространство на стените. Като такива материали могат да се използват шлака, експандирана глина, трошен камък или пясък от леки скали, антисептични дървени стърготини, стърготини и др.Минерални материали, които не са биоразградими, могат да се използват под формата на сухо засипване, органични материали - задължително под формата на лек бетон на основата на неорганични свързващи вещества: цимент, вар, гипс или глина. Недостатъкът на зидарията на кладенци е отслабването на носещата способност на стената, следователно, на места стоманобетонни подове необходимо е укрепване на стените със стоманобетонен колан със задължителна армировка.
Уебсайт "Как да построим къща" пожелава ви късмет.
Нагреватели
През миналия век, за да се спестят пари, кладенето на кладенеца на къщата се извършва с пълнеж със земя или глина с дървени стърготини. Тази опция не се оправдава поради свиването на земния слой, трудоемкостта и увеличеното натоварване на основата.
В Москва и нейния регион, както и в Татарстан, кладенето на кладенци е забранено за използване в къщи, построени за сметка на бюджетни средства. И въпросът не е в негативния аспект на този метод, а в невъзможността да се контролира качеството на монтажа на изолацията. Проверката на обектите, пуснати в експлоатация, върху термокамера показа значителни нарушения и топлинни загуби.
В частни сгради методът се прилага успешно, където клиентът може директно да участва в строителния процес или да получи поетапно фотоотчет за извършената работа.
Кухините в зидарията на кладенеца са изпълнени с:
- желирани съединения (полистиролов бетон, пеноизол, дървени стърготини);
- изолация за засипване (експандирана глина, трохи от минерална вата, чакъл от пяна, стъклена пяна);
- блокове от минерална вата (за вертикална изолация) или пяна с различна дебелина.
Тъй като всеки слой зидария на кладенец има различни температурни условия, пролуките в инсталацията и вентилацията играят важна роля. Например, минералната вата и изолацията от пяна трябва да бъдат фиксирани с подсилени анкерни дистанционни елементи.
Експертите съветват да монтирате минералната вата с полиетилен преди монтажа и да я фиксирате с вентилационна междина. Преди това обработете вътрешната част на стената в самия кладенец с грунд.
В горния и долния ред, за движение на въздушните потоци, за да се избегне конденз по стените, между тухлите се поставят тесни вертикални качулки.
Опции за изолация от тухли
Изолация на къща под тухла е прикрепена в две версии, това е отвън и отвътре. Въпреки че си струва да се отбележи, че вътрешната изолация е по-малко ефективна от външната изолация и се използва по-рядко. Но има варианти, когато само той е подходящ. Ако външното ви покритие е направено с облицовъчен материал, тук могат да бъдат приписани и клинкерни плочки, тогава се избира главно вътрешна изолация.
Внимание: При всяка изолация трябва да се направи висококачествена хидроизолация на тухлата. В противен случай цялата работа ще бъде направена напразно и няма да постигнете желания резултат.
Нека да разгледаме кога се прилага всеки тип:
Външна изолация
Тази опция решава основния проблем, това е пълното спестяване на топлина. В този случай избягвате появата на влага в стаята и образуването на гъбички. При избора на тази опция цялата работа се състои от следните етапи:
- Нанасяне на лепилен материал;
- Приложение за топлоизолация;
- Нанасяне на подсилващ слой;
- Нанасяне на облицовъчен материал.
Сега нека видим какво постигаме, като го прилагаме:
Положителни аспекти Отрицателни аспекти
|
|
Вътрешна изолация
Изолацията за стени под тухла в тази версия се полага най-често. Това важи особено за многоетажни сгради. В този случай работата ще бъде много по-евтина. Но има и недостатъци.
Техника на аранжировка


Според методите на SNiP, при издигането на трислойни стени с изолация от минерална вата или пяна, първо се отстранява вътрешната стена, към нея се прикрепва топлоизолация и след това се отстранява външната част на кладенеца с необходимата вентилационна междина, наблюдавайки местоположението на джъмперите. В същото време памучната вата е покрита с дифузна мембрана за хидроизолация.


На сгъваеми и силно надигащи се почви носещата и облицовъчната част на кладенечната зидария на конструкцията е подсилена с монолитни колани на всяко ниво на пода. Тази опция изключва възможността за напукване.
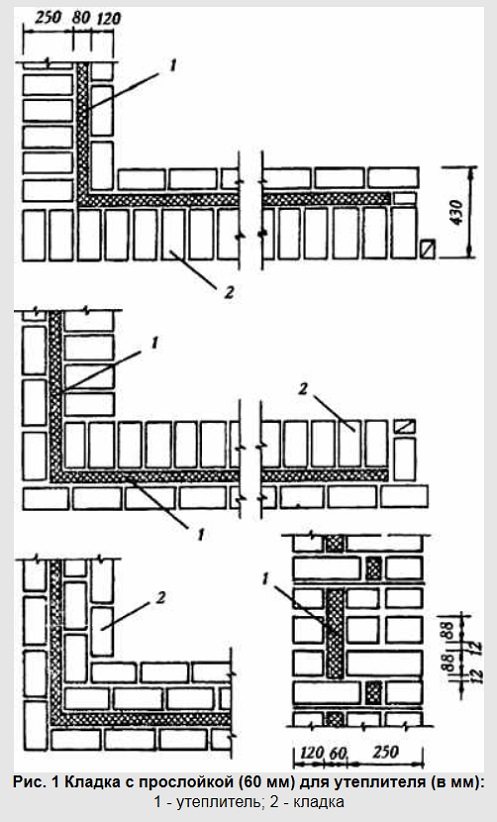
С опцията за пълнене:
- На хидроизолационния слой на основата се полагат 2-4 слоя плътна тухлена зидария, в ъглите, започващи от челните страни. Всеки ред е подсилен с подсилена мрежа.
- Основата на лагерната и облицовъчната стена се оформя с необходимия хлабина за избрания топлоизолационен материал.
- Джъмперите са разположени по дължината на стената след 60-120 cm. Разстоянието от преградата до стената е от 2,5 см, това изключва образуването на студени мостове през зимата. Впоследствие, тъй като преградите са разположени вертикално по цялата височина на стената, подовите греди ще бъдат положени на мястото на тяхното образуване.
- Засипването на стени с експандирана глина или друга топлоизолация се извършва не по-високо от 5-7 реда с трамбоване и запълване с хоросан.
- На излетия разтвор се монтира подсилена мрежа, за да се придаде твърдост на конструкцията, или в процеса на полагане между слоевете в шахматна дъска, свържете 2 стени с подсилващи снопове с огънати ръбове и антикорозионно покритие. Гъвкавите връзки са алтернатива на армировката. Изработени са от фибростъкло или базалтова пластмаса, не са обект на корозия, със спрей от едър пясък за по-голяма фиксация и вграден фиксатор за закрепване на изолацията към стената.
- Всички ъгли на сградата са фиксирани с подсилена мрежа с антикорозионно покритие. Също така, при пресичането на стени, външни ъгли и в колана пред покрива, допълнително се монтират гъвкави връзки. Под отвори за прозорци и врати, за всякакъв вид тухлена зидария, се оформят 2-3 реда плътен слой тухла.
- Последните 5-7 реда на кладенечната кладенеца на конструкцията са разположени по подобен начин на началните редове с плътна тухлена зидария.
За да се намали натоварването, за да се избегне разслояване на стената, напречните шевове се изместват с една четвърт от размера на тухлата, а надлъжните шевове се нанасят на 0,5 тухли. Това гарантира стабилността на стената и здравината на сградите.
Икономичната кладенечна кладенеца има много противници. Основният аргумент, който те изтъкват, е невъзможността за частичен ремонт на изолацията на къща, когато тя се свива или деформира, но съвременните технологии правят възможно ремонта на къщи, построени преди повече от 50 години. Тепловизорите виждат места, където се губи топлина, а изолационните блокове от пяна запълват кухините с висококачествена изолация през малки дупки.
Как е тухлената зидария с изолация
Поради негоримостта, той не само няма да поддържа изгарянето, но и ще създаде огнезащитен слой вътре в зидарията. Многобройно семейство изолации на базата на минерални влакна имат отлични топлинно спестяващи характеристики.
Те се правят чрез разбиване на разтопени минерали в центрофуга: стъкло, базалт, шлака и др. Ниско ниво на топлопреминаване в този случай се постига поради високата порьозност на материала - въздушните пространства не позволяват на студа да проникне през минерала вълна. Минералната изолация е абсолютно незапалима, но много се страхува от влага.
Изолация на стени
Когато е мокър, той почти напълно губи своите спестяващи топлина свойства, поради което при полагането му е необходимо да се погрижите за ефективно хидроизолационно устройство. Експандираният полистирол е друг топлоизолационен материал, често използван при трислойна зидария.
Тухлата е най-често срещаният материал за изграждане на носещи стени.Успешно се използва както във високото промишлено строителство, така и в частните нискоетажни сгради. Единственият недостатък на тухлите са ниските топлоизолационни качества.
Произвежда се чрез насищане на течен полистирол с въздух, който след втвърдяване приема формата на порести кръгли гранули. За запълване на кладенци в стената може да се използва във вид на лист или като насипен материал. Много по-малко се страхува от влага, отколкото минералната вата, но за разлика от нея е запалима, така че стените, изолирани с експандиран полистирол, трябва да бъдат защитени от открит огън. Дори огънят да не повреди тухлената зидария, това ще доведе до изгаряне и разтопяване на стиропора отвътре.
За да замените изолацията, ще трябва да извършите отнемаща време и скъпа работа, за да демонтирате облицовъчната част на стената.
Блог feed Лека тухлена зидария с изолация. Лека тухлена зидария с изолация. Лека изолирана тухлена зидария Изолираните тухлени стени се използват все по-често в частни сгради. Ами зидарията е по-сложна от обикновената зидария, но въпреки това тя може лесно да бъде овладяна от всеки, който има поне малко опит в работата с тухли. Това е обикновена зидария, облицована с изолация отвътре, използвайки маяци за хоросан.
В частното строителство понякога се прави трислойна зидария с запълване на вътрешни кладенци с различни минерални пълнители: шлака, експандирана глина и др. Тази техника е малко по-евтина и по-проста от полагането на минерални плочи или листове от експандиран полистирол, но ефективността му е много по-ниска .
Какъв дизайн на трислойна стена да изберете
За региони със студена зима, в случай на използване на паропрозрачни нагреватели, минерална вата или газобетон 100 kg / m3, наличието на вентилационна междина в стената е задължително, за да се осигури нормалното й състояние.
В този случай вентилационната междина остава отворена под покрива, а в долната част на стената за подаване на въздух вертикалните шевове между тухлите се оставят незапълнени, използват се прорезани тухли, така че площта на отворите е на най-малко 75 см квадрат. с 20 квадратни метра. зидария.
Минерална вата с плътност до 80 кг / м2 трябва да бъде покрита с ветроустойчива супердифузионна мембрана, която предотвратява издухването на въздуха през слоя му. Мембранните и вълнените слоеве са фиксирани с 10 дискови дюбели. на кв. м. в носещата стена.
PPS, газобетон, се издигат с помощта на лепило, в съответствие с препоръките по-горе. Допълнителното фиксиране обикновено е 3 - 5 пластмасови дюбели на квадратен метър.


В трислойна стена се препоръчва да се използва зидана мрежа, която свързва всички слоеве (и тухлена облицовка). В този случай стъпката на вертикално поставяне на мрежата е 500 - 600 mm, според размерите на изолационната плоча (възможно е и по-малко). Ако се използват фибростъклени връзки, броят им не трябва да бъде по-малък от 4 бр. на квадратен метър, а хоризонталната стъпка на монтаж е не повече от 500 мм., в близост до отворите, в ъглите на свързващия вал, е намалена до 8 бр. на кв. м.
Тухлената облицовка е подсилена със зидана мрежа с вертикално стъпало не повече от 1,2 метра, като мрежата се вкарва в носещата стена.
Вратите и прозорците са разположени по дълбочината на стената срещу границата на носещата изолация стена. В този случай се постигат по-добри икономии на топлина в отворите, както и намалява рискът от замъгляване на стъклата.


Силни и слаби страни на топлинните блокове
Едно от основните предимства на използването на топлинни блокове е неговата ниска цена в сравнение с подобни строителни материали. Използването на топлоефективни блокове при изграждането на къща или сграда ще ви донесе значителни икономически ползи. Ако оцените този строителен материал по система от пет точки, тук ще има твърдо 5.
Топлинният блок (като строителен материал) има следните силни страни:
- Лекото тегло на материалите ще направи възможно транспортирането без особени затруднения, а също и да не се използват повдигащи механизми в строителството;
- Фактът, че блоковете са прикрепени с помощта на лепило, ще спести от закупуването на пясък и цимент;
- Скоростта на зидария също ще се увеличи благодарение на набор от геометрии и размери на блоковете;
- Няма нужда от изолация и облицовка на сградата;
Има и някои недостатъци, които са присъщи на топлинните блокове, а именно:
- стена от топлоефективен блок не е предназначена за облицовка с тухли и някои други строителни материали;
- неправилно избраната ширина на вътрешната изолация може да е недостатъчна за определени географски области.
Изисквания и видове изолация
Изграждането на тухлена стена с изолация е важна и доста трудна задача. Независимо от вида на изолацията, всеки от тях трябва да има съответните изисквания.
Първо, устойчивост на деформация. Това е доста важен фактор, тъй като под действието на природни фактори изолацията може да промени структурата си, което няма да повлияе в полза на целостта на конструкцията и нейните свойства.


Следващият критерий за добра изолация е отличната устойчивост на влага. Въпреки че изолацията се извършва вътре в конструкцията, това не означава, че влагата не може да влезе в нея. Често този факт води до много негативни последици, като по този начин унищожава материала. Топлоизолационните свойства на цялата конструкция се губят.
Що се отнася до монтажа на определен материал, този фактор също играе съществена роля. Например, фиксирането на пяна към тухлена стена не е много по-различно от същата технология и към пяна. Но първият има подобрени свойства, които го правят много по-ефективен.
Типове армировка
Укрепването на тухлена зидария може да има различно подреждане:
- надлъжен;
- напречно;
- вертикален.
Мрежа за армировка се купува в магазин или се прави самостоятелно на строителна площадка преди полагане.
Надлъжна армировка на тухлена зидария
Надлъжната армировка се използва за укрепване на сградата при странични натоварвания и огъване. В този случай мрежата се монтира доста рядко, полагат се главно стоманени пръти, ъгли, ленти, тел. Арматурата се поставя в надлъжно положение при полагане на ограждащи конструкции и прегради. Елементите на подсилващия слой могат да бъдат разположени от вътрешната или външната страна на стената.
Характеристики на конструкцията от топлоефективни блокове
Технологията на полагане на трислойни блокове има много общо с процеса на издигане на стени от газосиликатни блокове. Основната разлика е забраната за рязане на блокове, за да се запази тяхната цялост и единството на първоначалния текстуриран модел.


Полагането се извършва с помощта на строително лепило, като се поддържа дебелината на фугите в диапазона от 2 до 4 мм. Плътната инсталация намалява топлинните загуби през хоросанови фуги, подобрявайки топлоизолационните свойства на стената. Лепилото се нанася с назъбена мистрия върху вътрешния и външния слой на блока. Разтворът не се прилага върху изолацията. Изграждането на стените се извършва с превръзка на шевовете в ½ блок.
Вертикалните фуги при полагане на блокове от топлинни стени са запечатани по специален начин. В зоната на изолация те са запечатани със строителна пяна. Външните и вътрешните шевове в разширената глинеста зона са запечатани с хоросан с помощта на строителен пистолет.
Изолация на стени с пяна
Изолацията на тухлена зидария с пяна значително ще спести от строителен материал при издигане на стени. По този начин е напълно достатъчно да се изгради стена със средна дебелина и след това да се изолира с 50 мм пяна с плътност 25 кг / м3. Закрепването на пяната към тухлена стена не изисква никакви специални умения.
Залепване на пяна
Самият процес на залепване не е особено трудоемък и отнема няколко дни.Закрепването на изолацията към тухлена стена започва с разстилане на лист от пяна пластмаса с плочка шпатула със специално лепило. Трябва предварително да се смеси в кофа. След това нанасяме материала върху стената и го притискаме добре. Трябва леко да го докоснете, можете да използвате дланта си.


Фиксиране с дюбели
След това пяната е прикрепена към тухлената стена с помощта на дюбели (четири в ъглите и един в центъра, ако листът е 1х1 метър). След това трябва да се забъркате с пистите, с които винаги има повече работа.
Шпакловка
Когато фиксирането на стиропора към тухлената стена завърши, можете да продължите с шпакловката. За това е доста подходящ един от материалите на линията Ceresit, например CM11. Първо, трябва да залепите метален ъгъл за рисуване върху всички ъгли.


След това можете да започнете самия процес на шпакловка. Той не се различава от обичайния процес на шпакловка, само слоят трябва да се нанесе, за да може армиращата мрежа да се удави.
Един слой шпакловка няма да е достатъчен. На следващия ден трябва отново да ходите с нея. Важно е да не прекалявате с лепилото, тъй като на слънце пяната започва да се движи доста силно поради термичното разширение. Това може да доведе до пукнатини във фасадата на къщата - фасадата ще трябва да бъде ремонтирана.
Е, това е всичко! Процесът на фиксиране на пяната към тухлената стена и последващото ѝ грундиране е завършен.
Вижте повече по тази тема на нашия уебсайт:
- Тухлена зидария - цена на квадратен метър и кубичен метър тухлена зидария Една от основните разходни позиции при изграждането на къща и подреждането на фасадата е тухлената зидария. Цената на тухлената зидария от различни видове тухли варира значително, равна на ...
- Колко тухли в 1m³ зидария в трислойна стена с изолация Трислойният метод за полагане на стена се използва, когато се изисква значително да се изолира къща, сграда. Този тип полагане е най-подходящ в райони, където влага и студ, силни ...
- Броят на тухлите в 1m3 зидария - ние считаме, че оценката за изграждането на тухлена частна къща Тухлената конструкция остава популярна в продължение на няколко века, въпреки факта, че всяка година производителите на строителни материали изобретяват нови, по-удобни, евтини и практични материали . Ползи ...
- Прегради за газобетонни блокове за частна къща - видове и характеристики Най-често срещаният вариант на преградите е тези, изработени от стоманобетон. Това е най-често срещаният начин. Готовите прегради за газобетонни блокове са независима носеща част, ...
- Разходите за полагане на тухли на куб - със и без материали за изграждане на къща Когато етапът на полагане на основата на бъдеща къща приключи, е време да се премине към изграждане на стени. Зидарията на стени е един от най-важните етапи на строителството - тя е ...


