Добър въпрос, благодаря. В интернет има много заблуди по тази тема, ще бъде полезно да разберете.
„От какво SNiP се ръководим през 2015 г.“? Колкото и да е странно, изобщо не става дума за Руската федерация. В добрия стар SNiP 2.04.08-87, който беше в сила в различни издания до 2002 г., в раздела „Газоснабдяване на жилищни сгради“ беше написано следното:

Виждаме, че разстоянието между монтирания на стена газов котел и стената е 10 см, при условие че е направено от негорими материали. SNiP '87 обаче загуби своята сила и вместо това днес е в сила SP 62.13330.2011. Новите правила дори не споменават разстоянието между котела и стената. В това има логика, защото съвременните газови топлинни генератори са много различни от тези, произведени преди четвърт век. Тялото на котлите със затворена горивна камера се загрява значително по-малко. Единственият документ, на който днес може да се разчита недвусмислено, е инструкция за инсталиране и експлоатация на газов котел. И за всеки модел котел производителят посочва отделни данни, например:
Всичко е ясно - стриктно спазваме инструкциите. Но понякога има монтирани на стената газови котли, в ръководствата, за които обикновено няма указания за минимално необходимото разстояние до стената. В този случай за котли със затворена горивна камера ви съветваме да се съсредоточите върху позицията на съвместното предприятие върху необходимостта да осигурите удобна поддръжка на отоплителния блок. Осигурете безплатно демонтиране на корпуса на котела. Ще трябва да изучите дизайна на котела. При някои модели, за да премахнете капака, трябва да развиете няколко винта отстрани. Това означава, че до стената трябва да се остави достатъчно място за поставяне на отвертка, около 15 см. Препоръчваме котлите, за които не е посочено разстояние, да бъдат окачени на не по-малко от 10 см от стената, дори ако това не е необходимо за поддръжка . Ще бъде по-лесно да се организира въвеждане в експлоатация, инспекторът няма да има въпроси.
Трябва обаче да се има предвид, че отделните региони имат право да приемат свои собствени разпоредби (инструкции), частично заместващи федералните норми. Не знаем, че днес регионалните норми ограничават разстоянието от котела до строителните конструкции, но все пак препоръчваме да се консултирате с местния клон на MinGAZ за всеки случай.
teploguru.ru
Според SNiP 42-101-2003 6.22 Разстоянията от строителните конструкции на помещенията до битовите газови печки и отоплителното оборудване, използващо газ, трябва да бъдат предоставени в съответствие с паспортите или инструкциите за монтаж на производителите. 6.23 При липса на изисквания в паспортите или инструкциите на производителите, оборудването, използващо газ, се инсталира въз основа на удобството за монтаж, експлоатация и ремонт, докато се препоръчва да се предвиди инсталирането на: газова печка: - близо до стена от огнеупорни материали на разстояние най-малко 6 см от стената (включително страничната стена). Разрешено е монтирането на плочата в близост до стени, изработени от негорими и горими материали, изолирани с негорими материали (покривна стомана върху азбестов лист с дебелина най-малко 3 мм, мазилка и др.), На разстояние от на най-малко 7 см от стените. Стенната изолация се осигурява от пода и трябва да излиза от размерите на плочата с 10 см от всяка страна и най-малко 80 см отгоре; монтирано на стената оборудване за използване на газ за отопление и водоснабдяване: ... (И по-долу в текста) G.12 Свързването на оборудване, използващо газ, към каналите трябва да бъде осигурено със свързващи тръби, изработени от покрив или поцинкована стомана с дебелина най-малко 1,0 mm, гъвкави метални гофрирани тръби или унифицирани елементи, доставени с оборудването.
дължината на mmar на хоризонталните участъци на свързващата тръба в нови сгради трябва да бъде взета не повече от 3 м, в съществуващите сгради - не повече от 6 м. Наклонът на свързващата тръба трябва да се вземе най-малко 0,01 към газовото оборудване. На свързващите тръби е позволено да се осигурят не повече от три завъртания с радиус на кривина не по-малък от диаметъра на тръбата. Под мястото, където свързващата тръба е свързана с каналите, трябва да се осигури „джобно“ устройство с почистващ люк, до което трябва да се осигури свободен достъп. Ако е необходимо, свързващите тръби, положени през неотопляеми помещения, трябва да бъдат топлоизолирани. Г. 13 Не е разрешено да се полагат свързващи тръби от оборудване, използващо газ, през дневни. Г. 14 Разстоянието от свързващата тръба до тавана или стената от незапалими материали трябва да бъде взето най-малко 5 см, а от горими и трудно запалими материали - поне 25 см. Разрешено е да се намали разстоянието от 25 10 cm, при условие че горими и трудно запалими конструкции са защитени от покривна стомана върху азбестов лист с дебелина най-малко 3 mm. Топлоизолацията трябва да излиза на 15 см над размерите на свързващата тръба от всяка страна. __
Паспортите за печката и колоната имат свои собствени изисквания (екранни снимки по-долу), всяко газово оборудване има свои собствени. Но ако вярвате на изискванията за инсталиране на печката (от екрана за hefest), тогава можете да видите страничното разстояние от печката до колоната на височина над 500 mm и 50 mm отстрани или директно над печката , но на височина най-малко 850 mm В паспорта на газовия бойлер има и изискване за монтирането му (екран 2) Ако изискванията са ИЗПЪЛНЕНИ, СЛЕД НОРМАЛНИ.
Здравей Оксана! Опасявам се, че в украинските документи цари същото объркване с нормите за местоположението на газовото оборудване и газовите уреди, както в руските. Така че, може да се предположи, че ако тези норми са били правилно изписани някъде, тогава със сигурност те биха били същите като в руските норми. Въпрос, подобен на вашия, се задава от много от онези, които ще инсталират газово оборудване у дома в съответствие с всички правила и разпоредби. Но в същото време те не искат да се ръководят само от старите SNiP и удобството за монтаж на работници в замяна на комфортното съществуване на самите собственици в собствения си дом. Много монтажници на оборудване се позовават на старите стандарти, но дори и в тях никъде, доколкото разбрах, разстоянията между газовия котел и газовата печка не са конкретизирани.
Те съдържат само индикации, че свободното разстояние между печката и колоната за БГВ трябва да бъде поне 10 см. Има инструкции за разстоянието между измервателния уред и котела, разстоянията за монтаж от стената до печката (0,07 м) и до метър (0, 02 m). Разстоянието до противоположната стена е 1 м. Но какви документи определят разстоянието между колоната и котела, между котела и котела, между печката и котела е напълно неясно. SNiP 2003 гласи, че освен ако не е посочено друго, разстоянието се определя от документацията на оборудването. Проблемът обаче е, че документацията за оборудването по правило не посочва точно тези разстояния. Същото се отнася и за проекти за доставка на газ за отделна къща. Тоест, те също не посочват инсталационните размери, а само местоположението на инсталацията. Това означава, че разстоянието между всички тези устройства трябва да се определя, като се ръководи от здравия разум и лекотата на използване.
Членове 6.23 и 6.24. SNiP 2003 гласи:
6.23 При липса на изисквания в паспортите или инструкциите на производителите, оборудването, използващо газ, се инсталира въз основа на удобството за монтаж, експлоатация и ремонт, като се препоръчва да се предвиди инсталирането на:
газова печка:
- близо до стена от незапалими материали на разстояние най-малко 6 см от стената (включително страничната стена). Разрешено е монтирането на плочата в близост до стени, изработени от негорими и горими материали, изолирани с негорими материали (покривна стомана върху азбестов лист с дебелина най-малко 3 мм, мазилка и др.), На разстояние от на най-малко 7 см от стените. Стенната изолация се осигурява от пода и трябва да излиза от размерите на плочата с 10 см от всяка страна и най-малко 80 см отгоре;
стенно монтирано газово оборудване за отопление и водоснабдяване:
- на стени от незапалими материали на разстояние най-малко 2 см от стената (включително от страничната стена);
- върху стени, изработени от негорими и горими материали, изолирани с негорими материали (покривна стомана върху азбестов лист с дебелина най-малко 3 mm, мазилка и др.), на разстояние най-малко 3 cm от стена (включително от страничната стена).
Изолацията трябва да излиза на 10 см и 70 см от горната част на корпуса на оборудването. Хоризонталното разстояние в светлината от изпъкналите части на това оборудване до битовата печка трябва да бъде взето най-малко 10 cm.
Оборудването за отопление на апартаменти трябва да бъде осигурено на разстояние най-малко 10 см от стена, изработена от незапалими материали и от стени, изработени от негорими и горими материали.
Разрешено е да се монтира това оборудване в близост до стени, изработени от негорими и горими материали без защита на разстояние повече от 25 см от стените.
Когато инсталирате горното оборудване на под с дървено покритие, последното трябва да бъде изолирано с негорими материали, като се гарантира, че огнеустойчивостта на конструкцията е най-малко 0,75 часа. Изолацията на пода трябва да излиза на 10 см над размерите на оборудването случай.
6.24 Разстоянието от изпъкналите части на оборудването, използващо газ, в местата за преминаване трябва да бъде най-малко 1,0 m на свободна повърхност.
Източници:
https://forum.abok.ru/index.php?showtopic=53566
https://proekt-gaz.ru/forum/2-826-1#7979
www.domotvetov.ru
Ако не е осигурен газов бойлер
В къща, където е разрешено инсталирането на газово оборудване, като печка, инсталирането на колона може да бъде забранено. Това ограничение се отнася за къщи с повече от 11 етажа. Нито един регулаторен орган няма да издаде разрешение за инсталиране на колона в такъв апартамент, тъй като е опасно за жителите.
В допълнение към етажа, преустройството може да стане причина за отказ. Студийните апартаменти не са подходящи за инсталиране на газово оборудване, тъй като уредите трябва да бъдат инсталирани в нежилищни райони.
Ако кухнята е комбинирана с хола, това прави използването на газови уреди незаконно. Обмислете тези ограничения, преди да се развиете отново. Същото може да се припише на апартаменти, в които кухнята отсъства или е обща.
Ако къщата не попада под тези ограничения, тогава е необходимо да се събере пакет от документи за регистриране на устройството. Процедурата е следната:
- Напишете изявление до газоразпределителната компания.
- Вземете план от ОТИ или Rosreestr.
- Предоставете извлечение от Rosreestr, потвърждаващо собствеността.
- Свържете се със специализирана организация, за да изготвите проект.
- Намерете сертифицирани специалисти от организация, която има разрешение да работи на газ.
След това специалистите ще направят вложка в газовата тръба, ще свържат устройството и ще пуснат бойлера в експлоатация.
Силно не се препоръчва да правите инсталирането на газов бойлер със собствените си ръце, заобикаляйки правния ред. Тези действия не само водят до наказания, но и застрашават живота на хората.
Мосгаз атакува - в жилищни сгради изведнъж решиха да сменят щрангове
И по-рано, отколкото е предвидено в плана. Много наематели не бяха готови за подобна инициатива на газови работници - никой не иска да чупи скъпи вградени кухни и плочки, а след това никой не иска да прави ремонт отново. Защо толкова бързане и какво трябва да правят собствениците на жилища сега?


Снимка: Александър Рюмин / ТАСС
Една обикновена къща в квартал Измайлово е масивна, тухлена. Всички общи системи за къщи работят нормално. Но преди няколко дни на входовете се появи съобщение, че на 1 октомври газът ще бъде спрян и всички жители трябва да получат достъп до апартаменти, които да заменят газовите щрангове.
Собствениците бяха естествено притеснени. Мнозина са извършили добър ремонт и не искат някой да го съсипе. Освен това, както се оказа, Мосгаз реши да смени тръбите десет години преди графика. Това каза московчанката Нина пред Business FM:
Нина Москвичка „Направихме ремонт преди няколко години и разгледахме тази газова тръба, тя е зад плочките, зад кухнята, вградена. Съответно, за да се осигури достъп до него, всичко това трябва да се счупи, разглоби, дори не мога да си представя как. И когато решихме да разберем защо всъщност трябва да сменим тази тръба, съобщението показва, че това се прави в съответствие с регионалната програма за основен ремонт и на уебсайта на тази регионална програма е написано, че подмяната на тръбите в нашата къща трябва да бъдат направени по плана. през 2029 г., ако не се лъжа, тоест не сега, а след десет години ”.
Тоест, ако преди плочките се сменяха на улицата, сега те се сменят принудително у дома. Уебсайтът на Мосгаз, позовавайки се на Фонда за основен ремонт на жилищни сгради, казва, че „газовите тръби може да изглеждат непокътнати, но това не означава, че не се нуждаят от подмяна“. „Газът е агресивна среда, затвореното пространство засилва ефекта му.“
Следователно, като част от основен ремонт, се извършва пълна подмяна на системата за газоснабдяване на къщата, до подмяна на гъвкави връзки към печки и газови бойлери. Анатолий Кабанов, председател на надзорния съвет на Руския съюз на инженерите, бивш вицепрезидент по логистика в Роснефт, откровено не разбира защо е необходимо да се сменят газовите щрангове.
Анатолий Кабанов, председател на надзорния съвет на Руския съюз на инженерите „В нашата практика газовите отклонения стоят до сто години. Така се появи отоплението с газ, добре, не сто години, а 80 години, образно казано, и подмяната на основните тръби около къщата никъде не се извършва. Това са глупости. По принцип глупостта, на първо място. Второ, не се прави за една нощ. Това трябваше да предупреди 20 години предварително, че знаете ли, когато купувате кухня, ще имате подмяна, планирана през 2030 година. Имали ли са експлозия? Какво стана? Добре е, ако кухнята струва хиляда рубли или две хиляди рубли някъде в стар апартамент. Но има кухни, които струват сто хиляди долара и какво трябва да направят? Следователно това е глупост, от моя гледна точка. Не знам защо се прави това. Кой е къде седи процентът? Това не може да бъде обусловено от някакъв здрав разум. "
Но ако никой здрав разум не може да обясни това, тогава защо тръбите все още се сменят? И десет години по-рано, отколкото би трябвало да бъде, според регионалната програма за основен ремонт? Отговорът е само един: необходимо е да се използват парите, натрупани във Фонда за капитален ремонт, казва Константин Крохин, председател на Съюза на московските жилищни организации, член на Комитета за жилищно-комунални услуги на Търговско-промишлената камара.
Константин Крохин Председател на Съюза на жилищните организации в Москва, член на Комитета за жилищно-комунални услуги към Търговско-промишлената камара „Само тези къщи, които са преведени по отделни специални сметки, са около 12% от къщите в Москва, а всички останали мълчаха и се озоваха в общ бойлер.И така, тези общи котли се експлоатират от така наречените регионални оператори. Те притежават парите, управляват се, наемат изпълнители и в този случай може да се предположи, че от гледна точка на регионалния оператор е било изгодно или е имало споразумение с Мосгаз тези пари да бъдат похарчени по-рано. Те натрупват десетки, стотици милиарди рубли годишно и всеки служител иска бюджетът да се използва. И в този случай най-вероятно поради тези причини те търсят къщи, където биха могли да го направят по-рано. "
Може би основният въпрос е - какво трябва да правят наемателите в този случай? По принцип те имат право да променят програмата за основен ремонт. По-специално откажете да подменяте газови щрангове. Но за това е необходимо да се съберат поне две трети от гласовете на общото събрание на наемателите, обяснява Крохин:
„Ако инициативната група в къщата реши по някакъв начин да коригира програмата за основен ремонт или да промени обхвата на работата, да откаже нещо или да добави нещо, е необходимо да се проведе общо събрание на собствениците на всички помещения с мнозинство от две трети. Съответно, отговорът на въпроса как да се борим, за да отменим ненужния основен ремонт или ненужната работа - необходимо е да се формализира това решение, волята на жителите в решението на събранието. "
Изключително трудно е да се съберат всички наематели едновременно на едно място. И още повече, че е невъзможно да го направите за няколко дни. Следователно има само един изход - всеки трябва да се съгласи и да не пуска никого в апартаментите, докато не се състои срещата. Освен това има фондация - нищо не трябва да се променя още десет години. Това е крайна мярка, но и законна.
Ако няма инцидент и всичко работи правилно, тогава не можете да стартирате. Според Конституцията домът ни е неприкосновен. Business FM изпрати искане до Mosgaz с искане да обясни необходимостта от ранна подмяна на щрангове, но по време на публикуването на статията не можеше да бъде получен бърз коментар.
Да добавите BFM.ru към източниците си на новини?
Ако колоната вече е инсталирана
При смяна на бойлера, в случай на неизправност, паспортът на устройството също трябва да бъде заменен. Ако самостоятелно монтирате газовия бойлер, тогава в паспорта на новото устройство няма да има следи за въвеждане в експлоатация и проверки.
След получаване на коментара ще е необходимо да свържете колоната отново, като поканите сертифицирани специалисти.
Техните задължения включват проверка на вентилационните канали. В по-старите домове те могат да бъдат задръстени с боклук. Опасно е да се използват запушени вентилационни канали. Това може да причини фатално отравяне с въглероден окис. Ако решението за самостоятелно инсталиране на бойлера е взето, тогава на първо място трябва да проверите вентилацията.
Изисквания за стая с газово оборудване
Мястото, където ще бъде монтиран газовият бойлер, трябва да има кубатура над 7,5 м3. Височината в стаята не трябва да бъде по-ниска от 2,0 метра. Тази височина, според стандартите, е достатъчна за газов бойлер. Стаята трябва да бъде остъклена.
Прозорецът не може да бъде празен, трябва да има възможност за проветряване в случай на теч. Общата площ на остъкляване (без рамка) се определя по формулата:
С = О * 0,03
Където:
C - зона на остъкляване. О е обемът на въздуха в стаята.
Прозорецът трябва да пропуска въздух за аварийно проветряване. Една обикновена кухня напълно отговаря на тези изисквания, ако е оборудвана с врата. Ако в кухнята няма врата, тогава тя трябва да бъде инсталирана.
Инсталирането на газов анализатор в стаята е желателно. Това ще помогне за откриване на течове на газ. Това устройство не е задължително, но помага за наблюдение на работата на газовите уреди. Той реагира на излишък от пропан във въздуха и след това предупреждава за това със сигнал.
Степени на заместване
Първо, струва си да разберете при какви обстоятелства газовите тръби се използват в кухнята. Използването на синьо гориво в такава стая най-често означава инсталиране на печка. Време е да се запознаете с условията за ползване. И така, запомнете основните постулати:
- газови печки е позволено да се инсталират в кухни с височина 2,2 метра (ако таванът в стаята е наклонен, тогава за да инсталирате печката, трябва да изберете място, където тя достига установената норма);
- кухнята трябва да бъде оборудвана с прозорец с отдушник, така че през деня да е възможно да се извършват ремонтни дейности без изкуствено осветление, проветряване на помещението (приветства се наличието на работещ вентилационен канал);
- между плочата и отсрещната стена със сигурност трябва да има проход с ширина 1 метър;
- таванът и стените, изработени от материали, склонни към изгаряне, съгласно стандартите, със сигурност трябва да бъдат покрити с мазилка;
- печката е разрешена за използване в кухни, отделени от коридора с надеждна стена / преграда и врата;
- разпределението на газовите тръби в кухнята трябва да бъде направено така, че разстоянието между стените и печката да е от 7 сантиметра;
- разклоняване към плочата е разрешено само на нивото на свързващата тръба;
- спирателният клапан трябва да бъде монтиран на ниво 1,5 метра от пода и на разстояние 20 сантиметра отстрани на печката;
- за монтиране на плочата е допустимо да се използва специален (топлоустойчив - от 120 градуса) гъвкав ръкав и не забравяйте да го смените въз основа на препоръките, посочени в паспорта на продукта.
Прочетете по-нататък: Медни тръби за отопление и фитинги
Нормите за работа са посочени главно с вече монтирани тръби и устройства, свързани към тях. Ако планирате да смените, прехвърлите или дори да прекъснете газопровода в кухнята, тогава продължете.
По този начин можете да скриете фрагмент от мрежата, ако ви притеснява - без никакъв трансфер
Според нормите за подмяна на щрангове в жилищна сграда, тяхната подмяна трябва да се извърши в два случая:
- Краят на експлоатационния живот на металната конструкция.
- Цялостен ремонт на банята на апартамента.
Условията на живот предвиждат 2 режима на подмяна на тръбите:
- планирано - когато дойде датата на замяна;
- аварийно - когато е имало нарушение на целостта на тръбата и се е образувал теч.
ВАЖНО
Гаранционният срок за тръби в жилищни сгради е най-малко 25 години. Дори и след този период конструкцията да е завършена без течове, щрангът пак трябва да бъде заменен.
Все по-често чугунените тръби се заменят с полипропиленови. Това се дължи на редица предимства на материала:
- рентабилност;
- лекота;
- сила;
- безопасност за околната среда;
- устойчивост на деформация от топлинни ефекти;
- устойчивост на корозия и други влияния;
- плъзгаща се структура на вътрешните стени, която предотвратява образуването на плака;
- дълъг експлоатационен живот: от 50 до 100 години.
Изисквания за вентилация и комин
За създаване на циркулация на въздуха в помещението е необходим отвор за вентилация. Не трябва да се запушва, въздухът трябва да преминава спокойно през него. Ако пренебрегнете това правило, тогава в случай на изтичане на газ жителите на апартамента ще бъдат отровени със сериозни последици.
Рискът от детонация на битовия газ ще се увеличи значително, ако той не бъде отстранен по естествен път, тъй като теч може да възникне през нощта, когато човек не е в състояние да го открие.
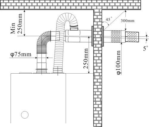
За нормалното функциониране на газовия бойлер трябва да се монтира допълнителен комин. Може да се изведе в общата сградна система или директно на улицата. При конструирането на комин е необходимо да се вземе предвид, че той не може да има повече от два завоя под ъгъл от 90 градуса. Общата дължина на комина не трябва да надвишава три метра. Допускат се три опции за местоположението на комина.
Тръбата трябва да има вертикален участък в точката на свързване към бойлера.Дължината на вертикалния участък трябва да бъде по-голяма или равна на 50 см. Дължината на хоризонталния участък на тръбата не трябва да надвишава два метра. Позволено е да се направи комин от гъвкава гофрирана тръба, но е необходимо да се изключи увисването му, което може да блокира отстраняването на продуктите от горенето.
Ако устройството на колоната не означава комин, тогава не можете да се ограничите до вентилационния отвор в стената. Необходимо е да се инсталира пълноправен аспиратор, но дори и в този случай, газовата служба ще има въпроси относно такава система за отстраняване на въглероден окис.
MOSGAZ влиза в основен ремонт
Съвсем скоро MOSGAZ JSC ще започне работа, която е важна за Москва и московчани - участие в основния ремонт на жилищни сгради в столицата. MOSGAZ има богат опит в обслужването и ремонта на вътрешно газово оборудване, способен е да осигури безопасното използване на газ в ежедневието и именно проблемите на безопасността днес диктуват необходимостта от реконструкция и мониторинг на техническото състояние на вътрешното газово оборудване и битовия газ уреди в къщи, включени в списъка на основни ремонти. Хасан Гасангаджиев, генерален директор на МОСГАЗ АД, говори за това как ще се извършва тази работа и какви са нейните перспективи.
— Хасан Гизбулагович, каква е причината за участието на МОСГАЗ в капитални ремонти на жилищни сгради в столицата?
- Накратко, това е продиктувано от необходимостта да се гарантира безопасността на московчани. Всъщност дълго време никой не участва в реконструкцията на газови системи в къщите, които попаднаха в програмата за основен ремонт и тук диагностицираме влошаването на оборудването и устройствата. Този проблем трябва да бъде решен в града, всеобхватно и системно, за да се гарантира гарантираната безопасност на хората, живеещи в реконструираните къщи. Следователно, ние взехме решение да участваме в тази работа под егидата на Капиталоремонтния фонд на столицата и когато приключат конкурентните процедури, провеждани от FCR, ще започнем да прилагаме комплексни решения за реконструкция на газови системи в жилищни сгради, подложени на основен ремонт. Тази позиция беше подкрепена и от градските власти.


— За какви конкретни решения говорим?
Първо, това е цялостна реконструкция на цялата газова система на къщите. В същото време ще се опитаме да сведем до минимум възможните неудобства, които подобна работа може да причини на жителите. Второ, по време на процеса на реконструкция ще използваме елементи, които гарантират високо ниво на надеждност и следователно високо ниво на безопасност. Това са съвременни спирателни устройства, клапани и друго оборудване, които позволяват безопасна работа на системата. Например, напълно ще се откажем от резбовите връзки, ще използваме гъвкав маркуч, който има висока степен на защита срещу счупвания и в контакт с електропроводими кабели. Спирателни клапани с допълнителни клапани ще се използват за осигуряване на затваряне на спирателното устройство, например в случай на пожар или в случай на прекъсване на захранващата линия. Третият аспект се отнася до работата, която вече не е в рамките на основен ремонт, тази работа ще се извършва паралелно. Имам предвид едновременната ревизия на газовите уреди в апартаментите. Собственикът на апартамента е отговорен за техническото състояние на тези устройства и ако установим някакви проблеми, ще предложим на собствениците или наемателите на апартаментите или да ремонтират или да сменят газовия уред. По този начин в къщите, където се планира реконструкция на газовата система, ще бъде извършен целият комплекс от мерки, за да се гарантира безопасността на цялата газоразпределителна система. Разбира се, в този случай собствениците ще получат гаранции по отношение на работата на битовите газови уреди. Тази работа ще се извършва от нашите подразделения, без участието на изпълнители, а MOSGAZ е отговорен за качеството.


— Вероятно това осигурява по-тясна работа с властите и с жителите на къщи, където ще се извършват основни ремонти и реконструкция на газови системи?
- Да, и ние вече мислим за това днес, защото без взаимодействие с префектури, съвети, домакини и жители такава работа не може да бъде извършена ефективно и в срок. Ще проведем срещи с жители, с участието на домакини и представители на държавни агенции, за да осигурим координация на всички видове работа и сроковете за тяхното изпълнение в къщите, определени от адресния списък на основен ремонт. Разбира се, ще има известна корекция по отношение на времето и очевидно това може да се дължи на трудния достъп до апартаментите. Ето защо ние молим жителите да предоставят на нашите служители достъп до газовите системи и уреди, разположени в апартаментите. Самите жители се нуждаят от това, защото по никакъв начин не се интересуват от удължаване на сроковете за основен ремонт, които са тясно обвързани с много трудните условия за реконструкция на газовите системи. В крайна сметка това е въпрос на безопасност на жителите и се надявам те да проявят разбиране и да не пречат на нашата работа. В противен случай ще бъдем принудени просто да изключим подаването на газ към къщата.


— И все пак, какво заплашва тези собственици на апартаменти, които отказват да пуснат служители на MOSGAZ, участващи в реконструкцията на газовата система на къщата?
- Както казах, в този случай, в съответствие със закона, ще бъде издадена глоба. Законът, приет през 2020 г., съдържа изчерпателен списък с изисквания, които в такива случаи се налагат на собствениците на жилищни помещения. Собственикът е длъжен да поддържа газовата система в правилен ред и да осигури допускането на квалифициран персонал за ремонтни дейности, диагностика или основен ремонт. В крайна сметка, ако собственикът не осигури достъп, газоразпределителната компания има пълното законно право да изключи подаването на газ както за апартамента, така и за цялата къща. Да, това е трудна мярка, но тя е продиктувана единствено от съображения за сигурност.


— И какво, ако собствениците току-що са направили ремонт и не искат ремонтниците да „развалят“, например чисто новата си кухня?
- Да започнем с факта, че ще информираме наемателите и старейшините в къщата за реконструкцията на газови системи предварително, поне три дни предварително. В края на краищата жителите трябва да са подготвени за факта, че в определен момент те трябва да са у дома. На общото събрание на собствениците се избира определен ден и на този ден нашите специалисти ще дойдат в къщата. За да спестим време на хората и да не създаваме излишни неудобства, можем да работим чрез достъп. Колко време ще отнеме? Преценете сами. Смяната на газовия щранг ще отнеме четири часа. Това означава, че жителят трябва да е у дома през половината от работната смяна. Съгласете се, това не е толкова много. Що се отнася до "смачканата" кухня, ние ще информираме жителите, че трябва да премахнат всички пречки пред производството на произведение. Например, осигурете демонтирането на всички кухненски мебели в работната зона, покрийте мебелите или хладилника с филм или кърпа. Освен това газопроводът, според нормите, не може да бъде затворен с нищо - фалшива стена или мебели, той трябва да бъде достъпен за проверка и ремонт. Разбира се, нашите служители не идват в апартаментите, за да "raskurochivanie" мебели. Всички наши служители са добре оборудвани, хората имат калъфи за обувки за влизане в апартамента, необходимите средства за защита на мебелите от евентуални повреди по време на работа. Но ако въпреки това има повреда на мебелите или хладилника, ние сме готови да го подредим и ако нашите служители наистина са виновни, ние ще компенсираме разходите за повреденото имущество.


— Казахте, че MOSGAZ гарантира качеството на работата си. Какво точно определя такива гаранции?
- Това се определя от потребителските свойства на материалите и оборудването, използвани при реконструкцията.Ние даваме гаранция за цялата си работа, потребителят може да бъде сигурен, че тя се извършва в съответствие с правилата и разпоредбите и ако системата се използва правилно, няма да има проблеми с нея. Просто казано, ние гарантираме, че след нашата работа няма да има течове на газ и става въпрос само за правилното използване на газовата печка или колоната.


— Кой финансира обновяването на газови системи в жилищни сгради?
- Тази работа се заплаща от Капиталоремонтния фонд. Ако жителите имат нужда да ремонтират или подменят, да речем, стара газова печка, ние ще предоставим тази услуга на възстановима основа и с абсолютно същото предоставяне на гаранции за сигурност. Дори бих посъветвал московчани да използват тази услуга, за да решат наведнъж всички „газови“ проблеми в апартамента си. Разбира се, някой може да каже, казват, всичко е в ред с моите газови уреди и като цяло с цялата газова уредба в апартамента и защо тогава ще сменя или реконструирам нещо тук? Ще отговоря: ако газопроводът в къщата е изчерпал ресурса си, определен от техническите стандарти, и работи повече от дузина години, тогава вече можем да говорим за износване и следователно за намаляване на ниво на безопасност. Ето защо сега предприемаме реконструкция на всички газови системи по време на основен ремонт в жилищни сгради.


— На какво основание къщата е включена в списъка за реконструкция на газови системи?
- Въз основа на техническия преглед, провеждан ежегодно от MOSGAZ. Той определя необходимостта от тази работа. Разглеждаме експлоатационния живот на газопровода, броя на аварийните ситуации в къщата, състоянието на резбовите връзки - това са основните критерии. Често ме питат какво да правя, ако къщата не е включена в списъка на основни ремонти, а газовите системи там са износени? В този случай, ако говорим за цялостна подмяна на газопровода, трябва да се свържете с Фонда за основен ремонт и да поискате да включите къщата в програмата за основен ремонт.


— Споменахте качеството на резбовите връзки. Толкова ли е важно?
- Когато става въпрос за газопровод или газов уред, това е жизненоважно. Когато се строяха стари къщи, цялата тръбопроводна система беше сглобена на резби, използвайки всички видове съединители и чистачки. Тъканите материали са използвани като уплътнения в такива системи: лен, конци и др. През десетилетията на работа тези уплътнения се износват, на тези места се появяват течове. Следователно се взема решение за демонтиране на цялата стара система, ние изместваме системата от нова тръба, която ще бъде напълно заварена. Причината е проста: заваряването е по-безопасно и по-ефективно от резбата. Това е много силна връзка, която не се влошава с времето.


— За какъв период се изчислява програмата на "газовата" част от основния ремонт и колко къщи са включени в нея?
- Това е доста дълга програма, за всяка година се изготвят планове, определени от клиента, тоест от Фонда за капитален ремонт, който определя както броя на тръжните процедури, така и приетите списъци на къщи, които попадат в програмата на капитални ремонти. Можем да говорим за около 600 адреса през 2020 г. по тази програма. Мисля, че с времето програмата ще набере скорост и това ще се отрази на обема на работата.


— Как московчани, живеещи в ремонтирани къщи, разбират, че служителите на MOSGAZ скоро ще дойдат при тях?
- След края на състезателните процедури - а това може да е в края на юни - ще можем да започнем работа. Като начало, пълен списък с адреси ще бъде публикуван на уебсайта на MOSGAZ, където ще бъде извършен ремонтът и реконструкцията на газоснабдителната система. След това, след срещи с представители на териториалните власти, домакини и жители, ще изготвим график за работата.Тези графици ще формират основата на единен график, който също ще публикуваме на уебсайта на Компанията, където ще бъдат отразени конкретните срокове за изпълнение на работата на конкретни адреси. Относително казано, цялата работа в къща със сто апартамента ще отнеме три, максимум четири дни. Да, това ще създаде известен дискомфорт за жителите, но мисля, че московчани знаят, че тази работа се прави за тяхна собствена безопасност и ще се отнасят с временни неудобства с разбиране.
Устройство за комин в апартамент с дървени стени
В дървените къщи е разрешено използването на бойлер на синьо гориво, но трябва да се спазват стандартите за пожарна безопасност за инсталиране на газов котел. Коминът не може да влиза в контакт с дърво; между тях трябва да се постави негорим материал. Като топлоизолация може да се използва базалтова или минерална вата. Разрешено е използването на топлоустойчива полиуретанова пяна.
Това е необходимо, за да се предотврати пожар в случай на силно нагряване на комина. Като правило комините не са предвидени в стари дървени къщи или са предназначени за отопление на печки. В аварийните къщи е забранено инсталирането на газово оборудване.
Класификация на газовите тръби
За системи от различни класове се използват различни тръби. Държавните норми за тях са както следва:
- за газопроводи с ниско или средно налягане се използват електрозаварени надлъжни шевни тръби с общо предназначение;
- за системи с високо допустими надлъжни електрически заварени и безшевни горещо валцувани.


Изборът на материал също се влияе от метода на монтаж.
- За подземните комунални услуги както стоманените, така и полиетиленовите продукти са норма.
- За надземни места е разрешена само стомана.
- Къщата, както частна, така и многоетажна, използва стоманени и медни тръби. Предполага се, че връзката е заварена. Фланцови или резбовани са разрешени само в зоните на монтаж на клапани и устройства. Медните тръбопроводи позволяват свързване към пресовите фитинги.


Снимката показва пример.
Параметри на размерите
GOST позволява два вида газови тръби в апартамент. Продуктите принадлежат към продукти с общо предназначение, тъй като тук са важни пълна газонепропускливост и механична якост, докато устойчивостта на натиск е незначителна: 0,05 kgf / cm2 е умерена стойност.
- Параметрите на стоманения тръбопровод са както следва.
- Външният диаметър на стоманената тръба може да варира от 21,3 мм до 42,3 мм.
- Номиналният отвор варира от 15 до 32 mm.
- Изборът се прави в зависимост от обхвата на доставката: газов уред в апартамент или щранг в къща.
- Диаметърът на медната тръба се избира по същия начин. Предимството на тази опция е по-опростена инсталация - с пресови фитинги, антикорозионен материал и атрактивен външен вид. Според нормата медните продукти трябва да отговарят на GOST R 50838-95, други материали не са разрешени.
- Диаметърът на газовите тръби за тръбопроводи с налягане от 3 до 6 kgf / cm2 варира в много по-широк диапазон - от 30 до 426 mm. В този случай дебелината на стената зависи от диаметъра: от 3 mm за малък размер, до 12 mm за диаметър над 300 mm.
- При изграждането на подземен газопровод GOST позволява използването на газопроводи от полиетилен с ниско налягане. Материалът е проектиран за налягане до 6 kgf / cm2. Диаметърът на пластмасовата тръба варира от 20 до 225 мм. Снимката показва газопровод от HDPE.
Тръбопроводът се полага в изкопа само в готови участъци, така че инсталирането на тръбопровода е скъпа и отнемаща време работа. При завиване стоманените газопроводи се изрязват и свързват чрез специални елементи. Полиетиленът позволява огъване: за системи с налягане от 3 до 6 kgf / cm2 до 25 външни диаметъра, със стойност до 0,05 kgf / cm2 - до 3. В комбинация с по-голяма лекота и висока устойчивост на корозия, това прави опцията с пластмасов тръбопровод все по-привлекателен ...
Правила за оформление на колона
Бойлерът не може да бъде разположен на носещата стена на сградата. Това е изрично забранено от изискванията за инсталиране на газови бойлери. В случай на експлозия това може да доведе до повреда на сградата или нейното частично разрушаване. За да изясните възможността за инсталиране на устройството, трябва да вземете информация от кадастралния паспорт на апартамента и общия план на къщата. Тази информация може да бъде изяснена чрез обаждане на специалисти.
Изискванията за пространство се налагат от самата колона до противоположната стена. Разстоянието не трябва да е по-малко от един метър. Това е необходимо за свободен достъп до устройството за поддръжка и проверка. Също така не можете да инсталирате тръби за подаване на газ към стените.
Това затруднява проверката на комуникациите и откриването на течове на газ в апартамента. Ако това нарушение бъде открито, ще бъде издадена заповед за отстраняването му и ще бъде обяснена информация как правилно да се монтира газовият бойлер и къде да се отиде.
Колоната трябва да е на разстояние повече от 10 см от стената. Не е позволено да се монтира газов бойлер на дървена стена без предварителна подготовка. На мястото на инсталиране трябва да се монтира стоманена плоча, равна или по-голяма по площ на задната стена на устройството.
Монтаж на колона над газова печка не е разрешен. Тези устройства трябва да са на разстояние най-малко 1 метър. Също така не можете да използвате аспиратора за газова печка като отстраняване на продуктите от горенето. Не можете да използвате един комин за аспиратор и газов бойлер. Това е изрично забранено от правилата за безопасност.
Какви са изискванията за монтаж на газови котли
Искам да закача бойлер в кухнята. Дизайнерът ми казва - там не е позволено, а там не е разрешено ... Той мотивира с някои размери, особено с разстояние от прозореца - 0,5 метра. Къде можете да видите всички изисквания за инсталиране на газово оборудване (печка, бойлер). Интересуват се от размери, разстояние директно между устройствата, разстояние от прозорци, от отвори и др.
Основният нормативен акт, съгласно който се извършва инсталирането на термогазови агрегати - DBN V.2.5-20-2001, раздел "Вътрешни газоснабдителни устройства", който включва "Газоснабдяване на жилищни сгради". Въз основа на този документ е допустимо да се инсталират газови котли в помещенията на жилищни сгради. Топлинната мощност на оборудването, инсталирано в кухнята, не трябва да надвишава 30 kW. Минималният обем на помещение, в което може да се постави газов нагревател с мощност до 30 kW, е 7,5 кубически метра.
Газов уред за отопление може да се монтира в монтиран на стена кухненски шкаф
Важно е да знаете! 2 вида газови агрегати, например два отоплителни котла, не могат да бъдат инсталирани в една и съща стая.
Монтажни разстояния
Монтажът на отоплително оборудване се извършва в съответствие с изискванията на производителя и като се вземат предвид нормативните документи. Когато инсталирате отоплителното тяло, е задължително да се предвидят правилата за пожарна безопасност, лекота на монтаж, сервиз и ремонт. Въз основа на нормите, инсталирането на оборудване на газ спрямо страничните стени се извършва, като се вземе предвид техният индекс на запалимост:
- негорими и трудно запалими защитени материали - разстояние не по-малко от 10 см;
- запалими и трудно запалими повърхности без защита - разстояние най-малко 25 cm.
Разстоянието от равнината, на която е закачен котелът, не трябва да бъде по-малко от 3 см. По предната част на отоплителния котел (като се вземат предвид всички изпъкнали елементи), разстоянието в чистата и отстрани в местата за преминаване да бъде поне 1 метър.
Защитата на трудно запалими и запалими стени се извършва със слой мазилка или лист азбест с дебелина 3 мм с предно покритие от стоманена ламарина. Ако нагревателят е монтиран на дървен под, защитата на пода трябва да излиза на 10 см от външната верига на газовата система.
Що се отнася до нормите за инсталиране на газова печка, височината на кухнята не трябва да бъде по-малка от 2,2 метра, а също така се изисква наличието на: изпускателна вентилация, естествена светлина, прозоречна секция за вентилация. Поставянето на плочата трябва да се извърши така, че разстоянието до стените (отзад и отстрани) да е поне 6-7 cm.
Важно е да знаете! Моля, обърнете внимание, че производителят често посочва своите изисквания за инсталиране на оборудване - те трябва да се търсят в инструкциите за монтаж и експлоатация или в паспорта на продукта.
Стандарти за отстраняване на продуктите от горенето от котела
Изпускането на продуктите от горенето от нагревателя може да се извърши през външната стена на кухнята съгласно схемата на производителя. Когато отработените газове се отвеждат в централна вентилационна система или комин, обемът на кухненското пространство трябва да бъде с 6 кубически метра по-голям от стандартния. Също така, когато отстранявате вещества, образувани по време на горенето, от газов котел през комина, е задължително да осигурите една от трите опции, които осигуряват притока на въздух в кухнята:
- решетка в долната част на вратата, водеща към съседна стая;
- пролуката между пода и вратата;
- решетка във външната стена.
Отработените газове от котелната система могат да се отвеждат през външната стена на кухнята
Ако отоплителният котел има запечатана камера за вътрешно горене, горните три възможности за подреждане на кухнята, за да се гарантира циркулацията на въздуха, могат да бъдат пренебрегнати.
Важно е да знаете! Когато отстранявате летливи горивни вещества от устройството през вентилационната шахта, препоръчително е да използвате аларми за апартаменти, за да наблюдавате концентрацията на токсични въздушни маси в помещението.
strmnt.com
Специфика на газоснабдителната инсталация
Тръбите в апартамента са собственост на неговия собственик, но не могат да се извършват неразрешени промени в газоснабдителната система. За всякакви промени трябва да получите разрешение от газовата служба, в противен случай ще бъде издадена глоба.
Ако газовият бойлер вече е инсталиран на това място, това няма да доведе до значителни промени в проекта. Достатъчно е да изключите газовия клапан на тръбата и да го смените. Ако бойлерът е инсталиран за първи път, тогава ще трябва да направите окабеляването.
При самоинсталиране на тръби трябва да се спазват следните правила:
- Изключете газта, преди да започнете работа.
- Извършете работа с отворен прозорец.
- Отстранете остатъците от тръбите, които са възникнали по време на монтажа.
- Не прокарвайте тръби през отворите на вратите и прозорците.
- Не използвайте вентилационна шахта за тръбопроводи.
- Не монтирайте газопровода в стената.
- Не използвайте гъвкави маркучи, по-дълги от 3 метра.
- Боядисвайте метални тръби.
Особено внимание трябва да се обърне на уплътняването на свързващите елементи на газопровода. За да направите това, трябва да използвате уплътнител и уплътнител. След като завършите окабеляването, можете да започнете да инсталирате устройството.
Подготвителен етап
Както се казва, успешният план вече е половината от успеха. Ако искате да преместите газовата тръба, трябва да определите - до кое място или дори по-добре, помислете върху няколко опции (ако един от тях се окаже невъзможен, тогава майсторите веднага ще помислят за другия). Трябва да запишете бележките си, или още по-добре - да ги нарисувате, за да е по-удобно да обясните какво искате. Междувременно полетът на въображението ви ще бъде донякъде ограничен. Запознайте се със задължителните стандарти, на които трябва да отговаря газопроводът.
Това е важно да се знае! Преди да смилате газова тръба в апартамент, помислете дали може да ви е достатъчно да удължите мрежата с гъвкав маркуч с допустима дължина до 3 метра.
Като правило необходимостта от прехвърляне на тръба възниква след закупуване на апартамент - преди ремонт
Изисквания към системата за газоснабдяване
Така че прехвърлянето на газова тръба в апартамент е възможно само ако са изпълнени следните условия:
- трябва да има безпрепятствен достъп до мрежата (във всеки фрагмент);
- не трябва да има прозорци, врати по пътя на комуникациите;
- забранено е провеждането на системата чрез вентилация;
- минималното разстояние на тръбите от пода е 2,2 м;
- пресичането на мрежови фрагменти със стени трябва да бъде направено по специален начин (тръбите трябва да бъдат опаковани в строителни кутии, стърчащи на 3 см отвъд мазилката);
- елементите трябва да бъдат здраво закрепени - с твърди връзки;
- не е допустимо да се скрива системата зад корпуса (само ако конструкцията е лесно отстранима).
Това е важно да се знае! Дори и да се занимавате с всякакви занаяти, знаете как да преместите газова тръба в апартамент и сте извършвали такава работа повече от веднъж, все пак се нуждаете от разрешение от съответния орган, защото газовата служба трябва да е наясно с промените дали ще доведе до злополука или трагични последици. И без значение къде се прехвърля газовата тръба. Ако не се подчините, ще трябва да платите глоба, равна на 5-10 минимални работни заплати. Освен това ще трябва да върнете предишното оформление на комуникациите за своя сметка.
Оформление на мрежата през стените
Получаване на разрешение
Както разбирате, преустройството на газови тръби в апартамента се одобрява от съответния орган. Освен това служителите на същия офис ще превърнат одобрения от вас план в реалност. Помислете за поетапно ръководство за действия:
- Събиране и изготвяне на документи (паспорт, документи за собственост на апартамент, план / описание на преустройството и др.).
- Посещение на бензиностанцията.
- Консултация със специалист (ще ви бъде казано кой пакет документи трябва да бъде предоставен / показан, както и ще ви бъде връчена примерна молба).
- Подаване на заявление, в което трябва да напишете адреса си и да очертаете самата заявка (въз основа на тези данни ще бъде взето решение дали е възможно да се прехвърли газопроводът в апартамента).
- В очакване на представител на газовата служба, който ще издаде „присъда“ - реалистично ли е да изпълни вашето искане или не, той също може да предложи свое решение на проблема.
- Запознаване с разчета / плана на трансфера, който капитанът ще направи за вас. Одобрение на документа.
- Плащане на услуги. Ще трябва да компенсирате работата на екипа, работещ както върху бюджетирането, така и върху практическото му изпълнение. Трудно е да се каже предварително колко струва преместването на газовата тръба в кухнята, тъй като много зависи от обема и сложността на работата, като междувременно нямате друг избор, освен да вземете решение за "подземно" преустройство и негово собствено изпълнение (но не забравяйте за глобата).
- Осигуряване на условия и помещения за извършване на одобрения блок от действия.
- Контролна проверка на качеството на извършената работа (внимателно инспектирайте и проверете здравината на връзката, уверете се, че няма изтичане на синьо гориво в системата, като покриете повърхността на опорите със сапунена пяна).
- Подписване на удостоверението за приемане и не забравяйте да запазите един от екземплярите за себе си, защото това е гаранция, че в случай на отказ грешките на майсторите ще ви преработят всичко безплатно.
Връзката трябва да е здраво
Проверка на плътността на газовите канали
След инсталирането на бойлера е необходимо да проверите газовите тръби за течове. Ако има газов анализатор, това значително опростява процедурата и подобрява качеството на теста. Ако това устройство липсва, можете да използвате стария метод.
За да направите това, имате нужда от редовен сапун, буркан и четка. Сапунът се разтваря в буркана, за да образува течна емулсия. След това с помощта на четка емулсията се нанася последователно върху тръбните съединения. Докато кандидатствате, трябва да наблюдавате появата на мехурчета върху третираните области. Ако се появят, течът трябва да бъде отстранен.
В никакъв случай не трябва да се проверява изтичането на газ с огън. Това е опасно и може да причини експлозия. Не бива да рискувате живота си и живота на съседите си.
Защо да спазвате разстоянието между изхода и газопровода
Обикновено изход за променлив ток от 220 волта за захранване на електрически уреди и газови тръби се намира в непосредствена близост до кухнята или в точката на свързване на газовия отоплителен котел на отделна къща. Типична повреда в електрически контакт е разхлабването на закрепващите винтове на клемния блок по време на работа, в резултат на което проводникът се отдалечава от клемната плоча на кратко разстояние и между тях може да се появи искра.
Ако по това време от газопровода по някаква причина възникне дългосрочно изтичане на газ, тогава когато достигне определена концентрация след навлизане в зоната на искрене, може да възникне експлозия. Подобна опасност представлява искренето не само в изхода, но и в скъсването на електрически проводници, свързани електрически устройства, щитове, поставени до газовата тръба.
Ясно е, че колкото по-близо е полагането на електрически линии до газопроводи, толкова по-голям е рискът от експлозия в комбинация от такива неблагоприятни фактори като искри и изтичане на газ.


Фиг. 2 Пример за местоположението на кухненски изход, като се вземе предвид безопасното разстояние от газовите тръби
Анализ на най-често срещаните грешки при инсталиране
Най-честата грешка е инсталирането на газов бойлер в банята. В тази стая обикновено няма прозорец. Особено опасно е да инсталирате високоговорители без комин. Има модели бойлери, при които въглеродният окис излиза през отворите и той се отстранява от помещението през вентилационен отвор в стената.
Втората най-често срещана грешка е желанието да се скрие устройството, така че да не избива визуално от интериора. Често газовият бойлер е инсталиран в шкаф. Това води до нарушаване на правилното функциониране на газовата колона.
Третата грешка, която често се среща, е обърканата връзка на газопровода в колоната. Това води до проникване на вода в газопровода. Течността навлиза там през газовата колона и след това се движи надолу по тръбите. Така водата попада в газовото оборудване на съседите отдолу, като напълно го деактивира.
Газопланинските работници не могат да бъдат възпрепятствани да извършват спирането. В случай на отказ ще бъде извикан полицейски отряд, тъй като животът на хората е застрашен.
Забиваме се в централния тръбопровод
Инжектиране в газопровод под налягане не се извършва от жителите, многоетажните сгради са оборудвани с необходимите елементи дори преди пускане в експлоатация. Но тези, които са построили частна къща според индивидуално оформление, са изправени пред този проблем и за тях такава информация ще бъде точно на място.
Изготвяме необходимите документи
За да получите разрешение за свързване към газопровод или преработка на окабеляването в апартамент, ще ви е необходим следният списък с документи:
- Технически документи за апартамента, оригинал;
- Диаграма на парчето земя, върху която стои къщата, показана в газовата служба. Диаграмата показва тръбопровода за газ, вода, канализация и отопление;
- Приложете документация за оборудването, което възнамерявате да инсталирате и експлоатирате. Това е сертификат за качество, договор за поддръжка и допускане до употреба в жилищен район;
- Доклад за инспекция на комина.
Наборът от документи за подмяна на газови тръби в апартамент не е много голям
Получаваме разрешение от службата
За да може връзката в газопровода с ниско налягане да премине нормално, първо вземете разрешение за това в Gorgaz. Там разберете как върви главният газопровод и какви методи препоръчват. Всеки елемент от закупеното газово оборудване се съгласува с проектанта, който след това изготвя проект за газификация на помещенията. След това икономическият отдел изчислява приблизителните разходи за работа и съставя разчет. Проучете внимателно договора, преди да подпишете - проверете всеки елемент, така че изпълнителят да оборудва къщата с висококачествен газ.
Ако трябва да се блъснете в газова тръба, но няма нито време, нито желание да участвате в проекти, тогава инженер от техническа служба, въз основа на предоставената схема, ще изготви план за поръчка, ще избере подходящо оборудване за отопление и газификация на построените помещения.
След това разработеният проект се съгласува с вас и с изпълнителната компания, която ще инсталира оборудването.
Когато планът е изготвен, се изготвя споразумение за частна къща и за наблюдение на изпълнението на работата от газовата градска служба. Колкото и нелепо да звучи, важно правило за добра газификация е внимателното четене на съставения договор и друга документация, издадена от газовата служба. След сглобяването на всеки документ започва връзката в газопровода под налягане и в края на този момент се подписва техническата документация.
Извършеното обвързване с газопровода се приема от специална комисия, която включва членове от градската газова служба и от изпълнителната компания. Когато цената за подмяна на газови тръби в апартамент е платена и системата работи, газовите работници окачват пломби на газовото оборудване, така че само те да имат достъп отвътре.
ГЛЕДАЙ ВИДЕОТО
Отговорност за неоторизиран монтаж
Ако вложката в тръбата за свързване на колоната е направена в заобикаляне на измервателното устройство, тогава такъв акт попада в чл. 7.19 от АК RF. За това е предвидена административна отговорност под формата на санкции. За физическите лица глобите варират от една и половина до две хиляди рубли. Това е най-малката възможна мярка за незаконно присъединените към газовата система.
В допълнение към административния кодекс, неоторизираното инсталиране и инсталиране на газово оборудване попада в обхвата на Федералния закон № 69 "За пожарната безопасност". Според текста на документа собственикът на имота носи административна или наказателна отговорност в зависимост от тежестта на последиците.
Ако действията доведат до имуществени вреди на трети страни, тогава собственикът ще бъде длъжен да ги компенсира изцяло. Освен това за нарушение може да бъде наложена глоба от 80 000 рубли. Ако е нанесена значителна вреда на здравето на съседите, тогава собственикът може да бъде арестуван и затворен за срок до две години.
Процедура за смяна на газомер
В края на монтажа на тръбата на водния щранг MKD се съставя „Акт на извършената работа“, в който ще бъде изписано следното:
- датата на договора;
- пореден номер на договора, съгласно който се издава актът;
- количеството извършена работа и всички предприети действия;
- разходите за работа;
- името на лицето, извършващо ремонтните дейности;
- подписите на изпълнителя и клиента.
Този документ е направен в 2 екземпляра, единият от които се предоставя на изпълнителя, а вторият остава на клиента. Изпълнител е организацията, занимаваща се с подмяна на аварийния елемент. Клиентът може да бъде Наказателният кодекс (тогава едно копие остава при тях и собственикът на апартамента не се предава) или директно собственик на имота.
Дори ако договорът е съставен от представител на Наказателния кодекс и ремонтна фирма, собственикът на апартамента трябва да направи копие от този акт.
Доскоро свързването на газ към частна къща беше много скъп и усилен бизнес. Поради факта, че нямаше ясни цени и тази област беше монополизирана, цената на услугите беше определена от местното правителство и понякога достигаше 0,5 милиона рубли. След промяната в законите за газификацията времето за инсталиране започна да бъде около 1-1,5 години, а цената за физически лица беше 20-50 хиляди рубли.
Ако централната магистрала е на повече от 200 м от вас, връзката ще бъде трудна. Ако искате да извършвате газ само за себе си, тогава е безсмислено, тъй като цената на този проект може да бъде няколко милиона. Единственият изход е да си сътрудничите с други жители на вашето населено място и да напишете заявление.
Всяко измервателно оборудване има експлоатационен период. Подмяната на газомера трябва да се извърши съгласно установените правила. В противен случай неговите показания ще се считат за невалидни и лицето ще трябва да плати според приетите средни цени, а това е доста скъпо. След това ще ви разкажем за всички правни нюанси.
С други думи, собственикът на имота е длъжен да гарантира, че измервателният уред е в добро състояние. Ако е необходимо, той трябва за своя сметка да извърши проверка и последваща подмяна на устройството. Това е посочено в член 158 от RF LC.
Колко струва подмяната на газомер? Цената за такава процедура ще се състои от няколко компонента:
- Напишете заявление до газовата служба за разрешение.
- Получете списък със спецификации. Ако се окаже, че се променя само оборудването, тогава проектът остава същият. Ако мястото на инсталация, схемата за доставка на комуникации се промени, тогава се разработва нов проект. За да направите това, трябва да се свържете с компания с лиценз.
- Вземете паспорта на сградата от компанията за подмяна. С него, акт за състоянието на коминните канали, акт за съответствие на оборудването със стандарти, свържете се с газовата инспекция.
- Демонтаж, монтаж, пускане в експлоатация.
- Монтажът е разрешен само в нежилищни помещения с врата.
- За инсталирането на оборудване с отворена горивна камера е необходимо да имате прозорец с отдушник и площ на помещението от 8 m2 или повече. За затворени устройства изискванията са само по отношение на обема - от 9 m².
- Газовите котли могат да бъдат разположени само в сутерена или сутерена, с възможност за поставяне на не повече от два бойлера или бойлери за съхранение.
- Допустимо е да се монтират прозорци с двоен стъклопакет в помещението за поставяне на котли, при условие че се използват конструктивни характеристики, които позволяват лесното им избиване.
- Наложително е да се оборудва жилищна сграда с устройства за контрол на налягането и температурата в газовата система и газомерите.
- Газовото оборудване трябва да се произвежда в предприятие, което има специален сертификат, който позволява да се произвежда, с придружаващи документи към оборудването.
- Маркучите за свързване на газово оборудване трябва да бъдат херметически затворени, изработени от материал, който позволява безопасното му подаване в къщата и не повече от 1,5 метра дължина.
- Разположението на плочата трябва да бъде такова, че да остава най-малко 1 метър до противоположната стена.
- Печката трябва да бъде оборудвана със система за контрол на газа "Контрол на газа" и диелектрична муфа трябва да бъде инсталирана между крана и маркуча от разсеяния ток, както и да отговаря на GOST 33998.
- Ако газовата печка е монтирана под навес, тогава за горелките е необходима защита от вятър.
- Изискванията за кухнята са както следва:
- височина на тавана не по-малка от 2,2 метра;
- обем: най-малко 8 кубически метра за печка с 2 горелки, най-малко 12 кубически метра за 3 горелка и най-малко 15 кубически метра за 4 горелка;
- необходимо е да имате прозорец, който позволява проветряване на помещението, канал за изпускателна вентилация и междина под вратата.
Имайте предвид, че в Ленинградска област, например, властите решиха да отпуснат регионална полза за газификация на частни къщи в размер на 110 хиляди рубли в категориите, изброени по-горе. Останалата част от населението - 70 хиляди рубли.
- Териториалното управляващо дружество трябва да предостави документи и да напише декларация.
- Необходимо е да поръчате проектна документация от доставчика на газ.
- Експертите оценяват техническите характеристики и свързването на газовите мрежи към апартамент или частна къща.
- Абонатът трябва самостоятелно да закупи газомер с определена марка след консултация със специализирана компания, както и да плати за дизайна на неговата инсталация.
- Собственикът на оборудването трябва да плати за демонтирането на стария уред.
- След подмяна и проверка на газомера трябва да бъде подписан акт за завършване.
- Запечатване.
Прочетете повече: Настройка, настройка на мощността на газов котел
Съгласно законодателството на Руската федерация, чл. № 4871-1 от 1993 г. "За осигуряване на еднаквост на измерванията", устройствата за измерване на разхода на газ трябва да бъдат доставени навреме за проверка. Това е отговорност на собственика на оборудването.
Заключения и полезно видео по темата
Видео за това как правилно да свържете и запечатате тръби:
Каква е опасността от свързване на колона без спазване на пожарните разпоредби:
Във видеото, резюме на нормите за инсталиране на газова колона с подробен преглед на основните точки:
Ако беше решено да инсталираме бойлер в апартамента сами, тогава е необходимо да извършим инсталацията в съответствие с всички правила. Строго е забранено да се пести от инсталационни материали. Такъв е случаят, когато е по-добре да се играе на сигурно и да се надплаща. В противен случай последиците могат да бъдат трагични. По-добре е да поканите специалист и да извършите плащане веднъж, отколкото постоянно да плащате глоби от газовата служба.
sovet-ingenera.com
Какво може и какво не може да се направи с газов бойлер, подаване на газ към него и вентилационна система по време на ремонти в кухнята? Това е една от най-подходящите теми за нашите посетители. Публикуваме подробни разяснения на OJSC "MOSGAZ" по този въпрос.
На какво разстояние от печката трябва да се монтира газовият котел?
Често по време на ремонта възниква въпросът - на какво разстояние от газовата печка може да се монтира газов двуконтурен котел според нормите? Нека се опитаме да отговорим възможно най-пълно. Така че, няма очевидни ограничения за разстоянието между котела и печката в специализираната литература и настоящите стандарти.
Единственото предупреждение е, че в никакъв случай котелът не трябва да се поставя директно над печката. Причините може би са разбираеми.
Но хоризонтално, няма специални ограничения, трябва да изхождате от удобството и ергономичността на работата на двете устройства. По принцип 40-50 см хоризонтално между печката и котела ще бъде най-добрият вариант. В този случай котелът няма да прегрее и да се замърси по време на готвене. И няма да има оплаквания и от газовата служба.
В същото време не забравяйте, че минималният размер на помещението за котела е 7,5 куб. М. Ако го инсталирате в кухнята, обемът трябва да бъде най-малко 21 кубически метра. m, а височината на таваните е не по-малка от 2,2 m.
domodel.net