Начало ›Инженерни системи› Интегрирани решения ›Вентилация и отопление› Монтаж на отопление и вентилация
Можете да поръчате инсталирането на отоплителни и вентилационни системи до ключ с монтаж, като се обадите в Москва. Проектиране и доставка на отоплителни и вентилационни системи в Русия. Молим Ви да изпратите писмено заявление по имейл или чрез формуляра на уебсайта.
- Какво е SNiP?
- Технология на последователността на инсталацията на отоплителната система
- Монтаж на основни видове отопление
- Технология за последователност на сглобяване на вентилационната система
- Вентилация и отопление с помощта на рекуператор
Изпратете заявление и вземете оферта
- Цени
за инсталиране на инженерни системи
Инсталирането на модерна отоплителна и вентилационна система предполага наличието на специални устройства за свързване на тръби (поялник за пластмаса - за пластмасов топлопровод). При покупка системата ви се доставя в разглобен вид и освен тръби съдържа ъгли, тройници, съединители, тапи. Можете да съберете всичко заедно с план или проект, изготвен от експерти. Частите, необходими за свързване на елементите на системата, се наричат съединители. Често им липсва, така че си струва да се запасите с тях.
"Standard Climate" е професионална климатична компания, готова да внедри решения за всякакви проблеми в климатичното и друго инженерно оборудване до ключ. Ще извършим пълен цикъл на работа: избор на оборудване, проектиране, монтаж, доставка и поддръжка. На уебсайта airclimat.ru можете да изпратите заявление. Обади се сега: +7(499) 350-94-14
... Подайте молбата си
Какво е SNiP?
Правилата за проектиране и инсталиране на системи за топлоснабдяване, вентилация и климатизация са описани подробно в SNiP, който е набор от нормативни документи за строителството. В допълнение към строителните норми и разпоредби, SNiP също така описва санитарни, пожарни и екологични мерки, които трябва да се следват при експлоатация на такива системи.
Разбира се, в допълнение към SNiP, отопление, вентилация и климатизация, има и цял списък от SNiP, SanPiNs, GOSTs, както и други документи, които описват изискванията за спазване на необходимите размери, допустими отклонения, мерки за безопасност и някои хигиенни условия. При изготвянето на определена система е много важно да се спазват нормите и правилата, дадени в документите. Следователно трябва да се запознаете по-подробно със SNiP. Съществуват различни SNiP, които разкриват важни правила за проектиране и инсталиране на отоплителни, климатични и вентилационни системи.
Например има такива версии на документи:
- 2.04 05 91 отопление, вентилация и климатизация: съдържа изискванията за пожарна безопасност на тези системи.
- 41-01-2003: описва санитарни, екологични и противопожарни стандарти за системи за топлоснабдяване. Това е по-нова версия.
Наблюдавайки съвместното предприятие за отопление, вентилация и климатизация по време на разработката на проекти и инсталационните работи, можете да сте сигурни в качеството и надеждността на оборудвана система. Но не е достатъчно правилното проектиране на системата. Също така е важно да го използвате правилно. За тези цели е разработено ръководство с инструкции за експлоатацията на отоплителната и вентилационната система, което установява редица изисквания за използването на отоплителната мрежа, тестове, пускания в експлоатация, както и корекции на конструкцията.
Просто изчисление на въздушна отоплителна система, комбинирана с подаваща вентилация
Тук, разбира се, много зависи от начина на организиране на циркулацията на въздуха. Ако например се използва само частична рециркулация, това ще ви позволи да спестите малко на електричество, тъй като отоплителното устройство не трябва да губи енергия за отопление на въздух с температура, равна на външната температура.
От друга страна, вариантът с частична рециркулация не винаги е приемлив от чисто хигиенна гледна точка, тъй като част от замърсения въздух все още ще остане в помещението. Но нулевата рециркулация, особено през студения сезон, ще струва много на собствениците, но въздухът ще бъде гарантирано чист.
Изчисляването на въздушното отопление, комбинирано с вентилация, се основава на факта, че зададената температура на въздуха трябва да се поддържа в стаята. Притокът не трябва да страда от това, т.е. честотата на подмяна на въздуха в стаята също трябва да бъде постоянна.

Подаването на въздух трябва да бъде приблизително равно на отработените газове
Като пример се дава много опростена версия на изчислението, но тя е подходяща, например, за частно строителство.
Цялото изчисление може да бъде разделено на 3 прости стъпки:
- Необходимо е да се определят топлинните загуби в стаята. За да се опрости изчислението, препоръчително е да се използва онлайн калкулатор, това ще вземе предвид тънкостите като вида стъклен модул, инсталиран в апартамента, климатичната зона и др. При ръчно изчисляване много начинаещи имат затруднения с това;


Основните източници на топлинни загуби
Забележка! Способността на нагревателя да поддържа желаната температура в апартамента ще зависи от правилността на тази точка. Ако например резултатът се окаже подценен, тогава нагревателят просто няма да се справи и можете да забравите за комфорта.
- След това трябва да зададете температурата, която трябва да се поддържа в стаята, и температурата на изхода (на изхода от нагревателя) и да определите въздушния поток при дадените условия. Изчислението се извършва по формулата
G = Qп / [s ∙ (tg-tv)],
в тази формула са приети следните обозначения:
- Qп - топлинни загуби, изчислени на предходния етап, W;
- с - топлинният капацитет на въздуха, J / (kg ∙ K), референтна стойност, се приема равна на 1005;
- tg и tв - температура от нагревателя и температура в помещението, ᵒС.
- Консумацията на топлина, която ще трябва да бъде изразходвана за нагряване на този въздух, се определя, използва се формулата
Qн = G ∙ c ∙ (tv-tн),
където tн е температурата на външния въздух, ᵒС.
Пример за изчисление
Като пример, нека извършим просто изчисление, при което задачата е да се изчисли отоплението и вентилацията, при условие че работят заедно.
Приемат се следните първоначални данни:
- стаята има прозорци с двоен стъклопакет, а площта на остъкляване в проценти е 20% от площта на стената;
- приема се външна температура от -30ᵒС;
- в стаята излиза само една стена;
- площ на стаята - 20 м2;
- къщата трябва постоянно да поддържа температурата на +20 ᵒС, температурата на подаване е +50 ᵒС;
Изчислението се извършва съгласно препоръчания метод:
- топлинните загуби за такъв случай ще бъдат 2,26 kW;
- консумацията на въздух за този случай трябва да бъде G = 2260 / (1005 (50-20)) = 0,075 kg / s;
- топлината за отопление ще се нуждае от Qн = 0,075 ∙ 1005 ∙ (20 - (- 30)) = 3769 W = 3,77 kW. Вече разчитайки на тези данни, можете да изберете отоплително устройство според характеристиките на паспорта.
Технология на последователността на инсталацията на отоплителната система
Когато инсталирате отоплителни системи, трябва да се гарантира:
точно изпълнение на работата в съответствие с проекта и инструкциите на SNiP; плътност на връзките, здравина на крепежни елементи на системни елементи; вертикалност на щрангове; спазване на наклоните на разпределителните и основните участъци; липса на кривина и прегъвания в прави участъци от тръбопроводи; изправна експлоатация на спирателни и контролни клапани, предпазни устройства и контролно-измервателни уреди; възможност за отстраняване на въздух, изпразване на системата и пълнене с вода; надеждно закрепване на оборудването и предпазителите на техните въртящи се части.
При инсталиране на CO се прилага следната последователност на работа:
- разтоварване, бране, доставка на тръби и отоплителни тела до мястото на монтаж;
- монтаж на магистрални тръбопроводи;
- монтаж на отоплителни устройства;
- монтаж на щрангове и връзки;
- системно тестване.
Монтажът на основните тръбопроводи се извършва след оформлението на монтажните възли върху опорите и окачването им към строителните конструкции чрез сглобяване на възлите върху лен и червен олово или свързване на възлите с последващото им заваряване. След това линиите се проверяват и фиксират върху опори и закачалки.
След сглобяването на основните тръбопроводи към тях се свързват щрангове и клонове към оборудването. Първо, отоплителните тела се монтират на място и се проверяват в съответствие с нивото и отвеса, след което отоплителните тела се свързват с помощта на междуетажна вложка. Нагревателите са свързани към междуподовите вложки чрез резба или чрез заваряване.
Отоплителна аксонометрия: какво да търсите?


Нагряваща аксонометрия.
Изпълнението на проект за отопление на жилищна сграда, административна сграда или промишлено съоръжение включва изготвяне на аксонометрична диаграма на отоплителната система. Преди да покажете системата на хартия или в компютърна програма, е необходимо да извършите изчисления. Самата схема е изготвена въз основа на следните данни:
- стойността на потреблението на топлина за всяка стая в сградата;
- вид отоплителни уреди, техният брой за всяка стая;
- основни решения за цялата инженерна мрежа, включително използването на щрангове в системата, изчисляване на хидравлични клонове и вериги, процедурата за свързване на отоплителни устройства;
- характеристики на тръбопроводните участъци, а именно: диаметър, дължина на всеки тръбен фрагмент, спирателни кранове, терморегулатори, хидравлични регулатори (в ситуации, когато контролерите за налягане не са предварително инсталирани в котелния блок).
След извършване на подходящите изчисления получените стойности се прехвърлят в чертежа. Аксонометричната диаграма на отоплителната система съдържа характеристиките на оборудването (котли, помпи), дължината и диаметъра на тръбопроводите, както и дебита, и топлинните свойства на отоплителните устройства (радиатори, конвектори, регистри). При изчертаване на аксонометрия е необходимо да се определи основният пръстен на движение на охлаждащата течност. Това е пътят до най-отдалечения елемент от котела и обратно.
Един от най-удобните и бързи методи за отопление е отоплението на гаража с електрически диоден котел.
Тук можете да прочетете за отопление на гараж с отработено масло с помощта на пиролизна фурна.
Монтаж на основни видове отопление
- Отопление чрез нагряване на вода. Основният елемент тук е бойлерът, но по време на монтажа се обръща повече внимание на водопроводите. Те могат да бъдат от желязо до тънка пластмаса.
- Отопление с гореща пара. За този тип е необходимо да се инсталира парогенератор и системни канали, през които ще тече гореща пара. Това могат да бъдат стоманени тръби с радиатори, които ще бъдат избрани при проектирането на системата.
- Отопление с въздушно отопление. Действа на принципа на кондиционирането. Въздухът, влизащ в апартамента, преминава през нагревателя.
- Електрическо отопление. Инсталирането на тези системи е доста сложно; работата с тях е по-скъпа от другите.
Двутръбна система


Съставът на такава отоплителна система включва захранващи и изпускателни тръби. Охлаждащата течност преминава през захранващата тръба към радиаторите, свързани паралелно. Чрез изхода (връщане) течността, която е отделила топлина, се връща обратно в котела. Тази система е много подходяща за жилищна сграда. Но въпреки всички предимства, той не е подходящ за всички обекти, тъй като изисква развита инфраструктура. Тип двутръбна система е колекторно окабеляване.
Когато инсталирате този тип отоплителна система, е по-добре да поставите връщащата тръба по пода. Ако по пътя има препятствия, като врати, можете да използвате дистанционер под пода или да ги заобиколите с U-тръба.Когато използвате уплътнение под пода, е невъзможно да се позволи наличието на фуги в тази област. В противен случай, ако възникне теч, елиминирането му ще бъде значително сложно.
Горната фреза се извършва под тавана на разстояние 0,4–0,5 метра. За да не се разваля външният вид на жилищните помещения, окабеляването може да се извърши под фалшив таван или на тавана. В този случай се извършва цялостна топлоизолация на трасето, за да се избегнат значителни топлинни загуби при силно намаляване на външната температура. Захранващата тръба може да се прокара под первази или над отоплителни устройства. Но в този случай системата ще се затопли по-бавно. Недостатъкът може да бъде сведен до минимум чрез инсталиране на разширителен резервоар.
Двутръбната отоплителна система постига най-голяма енергийна ефективност в сгради с два или повече етажа. Това се постига поради по-голямата разлика във височината между котелното оборудване и отоплителните устройства. Той увеличава циркулацията на охлаждащата течност в тръбопровода, което води до по-пълно изгаряне на горивото в котела.


Охлаждащата течност от котела се подава през вертикален щранг и след това по наклонен тръбопровод към отоплителните радиатори. Излишният нагревателен агент се изхвърля в разширителния резервоар. Когато се използва долното окабеляване, входящата тръба се полага на нивото на радиатора или над пода.
Основният недостатък на комуникациите с по-ниско окабеляване е голямата вероятност от задръстване на въздуха в тръбопровода.
За да се премахне този дефект, радиаторите са задължително оборудвани с кранове на Маевски. Алтернатива е полагането на специални въздушни тръби, които осигуряват отвеждане на въздуха в щранга и по-нататъшно отстраняване през разширителния резервоар.
Еднотръбна система "Ленинградка"


Характеристика на еднотръбната отоплителна система е последователно свързване на радиатори. Охлаждащата течност се движи по пръстеновиден контур. С напредването си се охлажда, така че еднотръбната система не позволява равномерно отопление на всички помещения. "Ленинградка" е слабо подходяща за големи сгради. В такива съоръжения е по-добре да се комбинират едно- и двутръбни системи. Окабеляването към отделни апартаменти се извършва посредством двутръбна система, а в рамките на един етаж - еднотръбна система.
При инсталиране на еднотръбна верига могат да се използват и двата вида окабеляване. Долният предполага полагане на тръбопровода хоризонтално по пода. След това тръбите се изкачват до радиаторите. Това окабеляване е лесно за регулиране. Ако е необходимо, например, в случай на теч, е лесно да го затворите напълно.
С горното окабеляване охлаждащата течност се подава до най-високата точка на отоплителната мрежа, откъдето вече се разпределя към щранговете. Топ маршрутизацията позволява по-бързо движение на течността и е подходяща за системи с естествена циркулация.
Байпасни секции
Независимо от използваното окабеляване, при инсталиране на отоплителната система винаги се правят байпасни секции. В еднотръбни схеми те се извършват с помощта на тръби с по-малък диаметър в сравнение с захранващата тръба. Също така, в такива зони е възможно да се инсталира дроселиращо оборудване - термостатични клапани.
Тъй като в еднотръбна отоплителна система топлината от охлаждащата течност се разпределя по различен начин, отколкото при двутръбна отоплителна система, е необходимо да се гарантира, че радиаторите са свързани правилно. Отоплителните устройства, разположени в помещения с най-голямо потребление на топлина, първо се свързват към захранващата тръба. Една верига трябва да има топлинна мощност не повече от 12 kW. Също така не трябва да се допуска много силна температурна разлика в рамките на една верига.
Схемата на Тихелман
Схемата на Тихелман е вид двутръбни системи. Второто му име преминава припокриване. Използва се в сгради с голяма площ, за отопление на индустриални помещения, хангари, складове и др.Тя се различава от обичайната двутръбна схема по наличието на ограничителни устройства на захранващата тръба и връщане. Те осигуряват равномерно разпределение на потоците към всички радиатори. Свиващите елементи на подаването и връщането са монтирани в огледално изображение.
Първият радиатор е свързан с изходна тръба с най-малък диаметър. Диаметърът постепенно се увеличава. Най-големият хлабинен тръбопровод се използва за свързване на захранващите и връщащите тръби към последния радиатор.
Верига на колектора (греда)


С колекторна верига всеки радиатор е свързан независимо, което прави възможно регулирането на температурата на всеки нагревател в системата. Колекторът (гребенът) е най-важният елемент. По същество това е тръба с голям диаметър, в която са монтирани необходимия брой изходи и един вход.
Малките вериги са свързани към колектора чрез изходите, всеки от които захранва само един радиатор. Всяка верига може да има различни параметри на отопление. В този случай се използва хидравлична стрела - тип колектор с голям вътрешен обем.
В такава система котелът непрекъснато загрява отоплителната среда, циркулираща в първи контур. Изтеглянето на водата от хидравличната стрелка се извършва на различни разстояния от изрезите на контурите, поради което се получават различни стойности на режимите на отопление. Система с водна стрелка е подходяща за къщи, където както отоплителни уреди се използват както традиционните радиатори, така и подово отопление. Ако е необходимо, всяка верига може да бъде оборудвана със собствено помпено оборудване. В този случай няма нужда да се взема предвид спада на налягането.
Хидравлични изпитвания
След инсталирането на отоплителната система, независимо от използваната схема и окабеляване, е задължително да се постави под налягане или хидравлични тестове, които са тест за работоспособност.
Изпитването под налягане започва с пълнене на отоплителната система с вода. След това налягането в него се повишава до ниво, надвишаващо работните параметри, и се поддържа известно време. Контролът се извършва с помощта на манометър.
Ако системата е инсталирана правилно, налягането в нея ще остане непроменено. Намаляването на този индикатор показва, че връзките изтичат и течността изтича. Ако тестовете показват теч, всички връзки се проверяват, дефектите се отстраняват и тестът за налягане се повтаря.
Правила и разпоредби за съставяне на аксонометрична диаграма
Всяка вградена документация, включително чертежи, се изпълнява съгласно определен алгоритъм, като се използват конвенции и правила за проектиране. Аксонометричната диаграма на отоплението, климатизацията, вентилацията не е изключение. Дизайнерите, ако не се използва компютърна програма, където вече са налични всички данни, използват няколко документа:
- ГОСТ 21.206-93 СПДС;
- ГОСТ 21.602-2003 SPDS.
Информация за изчисляване на мощността на вентилационната система и други технически данни са посочени в SNiPs и GOSTs. Оттам се вземат такива важни параметри като честотата на обмяната на въздуха, стандартните стойности на температурата, влажността. Съставът и сложността на аксонометричната схема зависи от тях.
правила
Сложна версия на аксонометричната диаграма
Аксонометричната диаграма се извършва в две форми: скица и пълен чертеж. Има малко изисквания за скицата, така че това не е официален документ. Извършва се пълноправен аксонометричен чертеж съгласно всички правила, предписани в държавните стандарти:
- Изборът на зрителния ъгъл. Основната задача на дизайнера е да намери оптималната точка. За това се използва етажен план.Той е разположен така, че долната част да е в непосредствена близост до дизайнера, лявата ръка гледа към първата ос на сградата, а дясната към последната ос. Фасадата, която е по-близо до дизайнера, или по-скоро левия ъгъл, е началната точка за аксонометричната диаграма.
- Определяне на ориентацията на каналните линии. Тук всичко е просто. Вентилационните канали, минаващи успоредно на най-близката или най-отдалечената стена на сградата, са изтеглени под формата на хоризонтална линия, успоредна на стените. Завоите, вървящи перпендикулярно на нашата стена, се изчертават под ъгъл от 450 спрямо хоризонталната линия. Вертикалните участъци на вентилационната система се изчертават вертикално.
- Мащабиране. Аксонометричната диаграма, с изключение на ръчно написана скица, се изпълнява в определен мащаб. Тя не се променя в рамките на един чертеж. Ако аксонометрията в мащаб не се побира на листа, тогава се допускат прекъсвания (това е, когато линията на канала в чертежа е прекъсната с пунктирана линия).
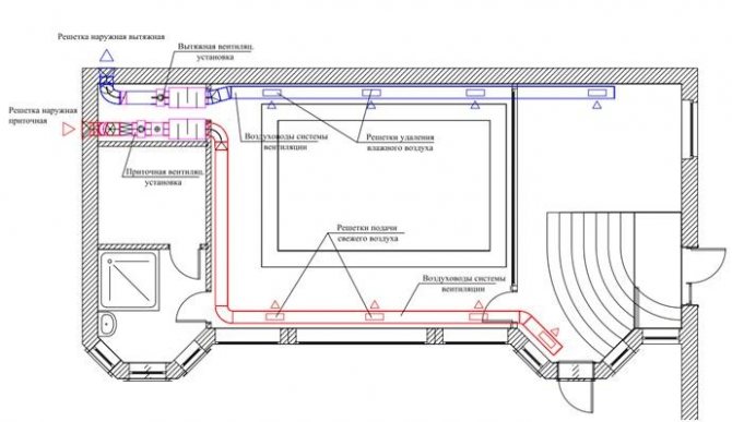
Технология за последователност на сглобяване на вентилационната система
Инсталационните и монтажни работи на вентилационни и климатични системи включват следните основни последователно изпълнявани процеси:
- подготовка на съоръжението за инсталиране на вентилационни системи;
- приемане и съхранение на въздуховоди и оборудване;
- завършване на въздуховоди, фитинги и вентилационни части; избор и комплектоване на вентилационно оборудване и, ако е необходимо, извършване на прединсталационен одит на оборудването;
- сглобяване на единици; доставка на възли, части и елементи до мястото за монтаж; монтаж на закрепващи средства;
- монтаж на оборудване;
- увеличен монтаж на въздуховоди;
- монтаж на основни въздуховоди;
- производство и монтаж на измервания;
- въвеждане на инсталирано оборудване;
- настройка и регулиране на системите;
- въвеждане в експлоатация на системи.
При монтиране на метални въздуховоди трябва да се спазват следните основни изисквания: не позволявайте въздуховодите да почиват върху вентилационното оборудване; вертикалните въздуховоди не трябва да се отклоняват от отвеса с повече от 2 mm на 1 m от дължината на канала; Фланците на каналите и вафлените фуги не трябва да се вграждат в стени, тавани, прегради и др.
Монтирането на въздуховоди, независимо от тяхната конфигурация и местоположение, започва с маркиране и проверка на местата за монтаж, за да се идентифицират най-удобните начини за транспортиране и повдигане на въздуховодите и липсващите крепежни елементи. След това повдигащите средства се монтират на проектните марки, частите на въздуховодите се доставят в работната зона на инсталацията и липсващите вградени части се изстрелват. Освен това уголемените блокове се сглобяват от отделни части в съответствие със списъка за събиране с монтиране на скоби за окачване на въздуховодите.
Когато се сглобявате върху фланци, уверете се, че уплътненията между фланците осигуряват плътна връзка и не изпъкват в канала.
Монтажът на вентилационното оборудване се извършва в съответствие със стандартните технологични карти в следния ред: проверете пълнотата на доставката; направете одит преди сглобяване; доставени до мястото на монтаж; повдигнати и монтирани върху фундамент, платформа или скоби; проверете правилността на монтажа, изправете и фиксирайте в проектната позиция; проверете работата. При доставяне на вентилационно оборудване в насипно състояние към изброените технологични операции се добавят редица операции за сглобяване и агрегиране на оборудване, които могат да се извършват директно на мястото на монтаж или на мястото на монтаж. Метод за монтаж и методи за монтаж на вентилационно оборудване.
Естествени и изкуствени системи
Вентилацията може да създаде въздушен поток естествено или принудително. Естественото движение на въздушните маси се създава от разликите в температурата и налягането. В принудителните системи въздушният поток се осигурява от вентилационно оборудване.
Най-простата схема на естествена вентилационна система е представена в конвенционалните типични сгради. В тях отворите за врати и прозорци осигуряват въздушен поток. Въздухът се отстранява през вентилационни канали и аспиратори, разположени, като правило, в кухнята и в баните. Естествената вентилация няма автоматичен контрол, тя е надеждна, издръжлива и лесна за инсталиране. Основният недостатък на такива системи е зависимостта от външни фактори, върху които човек не може да повлияе. Невъзможно е да се регулира такава система.
В случаите, когато естествената вентилация не може да осигури нормален поток на въздуха в сградите, се използват изкуствени или принудителни схеми. Те включват различни елементи - вентилатори, филтри, въздухонагреватели, овлажнители и др., Позволяващи да се осигурят нормални стойности на микроклимата за всяко помещение, в зависимост от предназначението им, било то жилищно, административно или индустриално.
Захранващи и изпускателни системи


Тези системи се различават по посока на движението на въздуха. Захранващата вентилация доставя въздух във вътрешността на помещенията. В зависимост от елементите, включени в него, подаваният въздух може да се подложи на допълнителна подготовка - филтрация, овлажняване или изсушаване и др. Задачата на изпускателните системи е да отстранява замърсения въздух от сградата.
Като правило се използва комбинирана захранваща и изпускателна вентилация, за да се осигури нормален микроклимат в жилищна сграда или индустриални помещения.
Всички елементи на комбинираните системи трябва да бъдат внимателно балансирани помежду си. В противен случай може да се образува свръхналягане или твърде малко налягане и в стаята ще се появи ефектът на „удряща врата“.
Локални и общи системи
Локалната вентилация най-често се използва за производствени помещения. Опцията за местно подаване позволява да се осигури местно подаване на чист въздух, а опцията за отработени газове позволява да се отстрани замърсеният въздух от местата, където се натрупват вредни вещества. Местните изпускателни системи могат да се използват за предотвратяване на разпространението на токсични вещества от производствените зони в цялото съоръжение. В битови условия местната вентилация се използва широко в кухните под формата на аспиратор.
Общи или общи системи за обмен се използват за вентилация на въздуха във всички зони на сградата. Системите за обмен на доставките най-често се допълват с елементи за филтриране и отопление на въздуха. Качулките се отличават с по-опростен дизайн, тъй като няма нужда да се обработва отработеният въздух.
Наборни и моноблокови системи
Наборните системи са доста сложни. Те са сглобени от отделни компоненти - вентилатор, филтри, дросели, автоматика и др. Те превъзхождат моноблоковите по способност за вентилация на всякакви предмети. Те могат да бъдат инсталирани в малък офис или апартамент, както и в обществени сгради. Такива системи са подходящи за складове, хангари и промишлени помещения.
Техният недостатък е сложността на дизайна, базирана на професионални изчисления и габаритни размери. Мощни системи за промишлени помещения или сгради с голяма площ са монтирани в специално оборудвана вентилационна камера. Системи с ниска мощност могат да бъдат монтирани зад фалшив таван.
Моноблочната вентилация се съдържа в един корпус. За разлика от системите за набор на текст, той практически не вдига шум, така че инсталирането му може да се извършва в жилищни сгради без оборудване за вентилационни камери. Такива системи се различават от настройката на типа и лекотата на инсталиране.
Правила за извършване на аксонометрия на захранваща и изпускателна вентилация


Вентилационна аксонометрия.
Схемите за вентилация се изпълняват от инженери във фронтален изометричен изглед. Това ни позволява да оценим комуникациите в три измерения, което се дължи на третата ос. Тази характеристика отличава схемата за аксонометрична вентилация от плановете и секциите.Трябва да започнете да рисувате диаграма, като изберете посоката на зрителния ъгъл към стаята или цялата конструкция, където ще се извършва изпускането или притока.
Препоръчително е да изберете посоката от страната, която е в долната част на чертежа. Ако е направена скица, тогава можете да рисувате възможно най-удобно. Основното нещо е след това да не забравяме за правилния дизайн на окончателната версия. Ако това не бъде направено навреме, част от проекта ще трябва да бъде преработен. Всички въздуховоди са показани като плътни дебели линии. В този случай си струва да се спазват някои характеристики:
- канал, минаващ успоредно на избрания зрителен ъгъл, трябва да бъде изпълнен под формата на хоризонтална линия;
- вертикалните въздуховоди на аксонометрична диаграма са изобразени с вертикални линии;
- ако каналът е поставен на плана перпендикулярно на избрания ъгъл на гледане, тогава той трябва да се приложи върху листа под ъгъл от 45 градуса;
- пълно съответствие със скалата.
Към чертежа се поставят редица изисквания, на които дизайнерът трябва да отговаря.
Всеки канал е идентифициран с удължителна линия. В същото време се посочват диаметърът (размерът на секцията) и дебитът на въздушния поток. Освен това височината е посочена в различни части на системата. Диаграмата на аксонометричната вентилация може да съдържа локални качулки - чадъри. Те се показват с легенда. Вентилатори, дифузори и други елементи също са изобразени със символи. Оборудването е маркирано с цифри.
Преди отопление в гаража, трябва да го изолирате добре, за предпочитане отвън.
Какво представлява отоплителното окабеляване в гаража, прочетете тази статия.
Смесен тип
В този случай естествената и механичната циркулация на въздуха се комбинират. Подравняването може да се извърши по два начина:
- врязване във въздуховодите на естествената система от вентилатори на необходимите места;
- монтаж на отделен механичен вентилационен канал.
Предимството на такава комбинация е, че неприятните миризми не проникват в дневните. Но за това е необходимо да се монтират захранващи решетки във вратите, през които ще циркулира въздух.
Дизайнерски характеристики
В зависимост от предназначението на помещението се използват различни конфигурации на вентилация.
- кухня. Ако площта е повече от 5 m², е необходимо да се оборудват два въздуховода. Първият е за общо ползване, а вторият с изход над плота, оборудван с вентилатор;
- баня. В помещения с висока влажност се изисква механично отвеждане на въздуха. Когато избирате вентилатор, спрете се на по-мощни модели;
- мазе. Най-добрият вариант би бил да се използват два канала за вход и изход на въздуха. Ниската температура в сутерена е благоприятна за натрупването на голямо количество влага. А в мазето, в което се съхраняват запасите за зимата, за предпочитане е сухият въздух.
Не можете да направите, без да инсталирате оборудване за циркулиране на въздушни потоци в котелно помещение или стая с камина. В допълнение към естественото движение на въздуха трябва да има изпускателни канали, оборудвани с вентилатори. Инсталирането на специални циркулационни устройства осигурява допълнително сцепление, което ще предотврати пушенето в помещението.
Видове вентилационни системи


Циркулация на въздуха в къщата
Вентилацията в частна къща се класифицира според начина на движение на въздуха. Има три основни типа:
- естествен;
- принуден;
- смесени.
Всеки тип има своите предимства и недостатъци. На първо място се определя вида на вентилационната система. За това трябва да се вземат предвид всички параметри.
Принудителна система


Препоръчително е в случаите, когато естествената циркулация е безсилна. Не можете да направите без използването на такава система в къщи, изработени от съвременни материали:
- плочи от експандиран полистирол;
- сандвич панели;
- изолация на външни стени с полиуретанова пяна или други синтетични суровини.
При условия на мръсен въздух системата трябва да включва не само вентилатори, но и филтри за почистване.
Изчисляване на параметрите на вентилатора
При избора на устройство е необходимо да се изчисли основният индикатор - мощност. Точната стойност ще осигури достатъчен въздушен поток през каналите и шахтите.
Мощността се изчислява по формулата:
P = V * κ,
където V е обемът на помещението, κ е коефициентът.
Вентилаторът може да се стартира ръчно или автоматично. Вторият вариант има по-сложна структура. За тези цели във веригата са вградени специални сензори за влажност, оборудвани с таймер.
Стойността на коефициента зависи от предназначението на помещението. Основни фактори:
- кухня - 15;
- баня - 20;
- тоалетна - 8.













