
Фурната е източник на топлина и комфорт, средство за готвене на храна, сушене на плодове и гъби. Използвал се за печене на хляб. Руската печка също беше място за спане. Тя успя да излекува пациент с настинка. Устройството проветрява и изсушава жилището, създавайки благоприятна атмосфера. Тази единица дори е била използвана за пречистване: в нея са се парили с метли.
По правило в Русия се изграждаха масивни отоплителни уреди, тъй като по това време хората се занимаваха с натурално земеделие. Височината им беше до 2 м, дължина - повече от 2 м, а ширината - около 1,5 м. Основната задача на такава конструкция е да се затопли възможно най-дълго. За това по време на строителството камерата за готвене беше разположена дълбоко в пещта и между тази конструкция и устието беше монтиран клапан.
Как и как да отоплявате руска печка
Като гориво обикновено се използват въглища или дърва. Дървените трупи бяха избрани от борови, плодови или брезови видове. Те се отличават с по-дълго изгаряне и запазване на топлината, което е необходимо, за да може фурната да изпълнява своите функции.
За да се получат добри въглища, дървата за отопление бяха избрани със същия размер, като се отърваха от възлите, доколкото е възможно. След това бяха сгънати в кладенец и отгоре бяха поставени чипове за по-бързо запалване. За да се получи еднороден въглен, беше важно да може да се стопи, така че топлината да се поддържа дълго време. За това устройството беше загрято с голяма партида дърва за огрев.


Структурата на руската печка
Основните компоненти на устройството:
- тигел или горивна камера е основата на всяка отоплителна конструкция, използвана за готвене;
- свод - част, разположена в горната част на пещта, върху която е положен масив, способен да задържа топлината;
- отдолу - долният елемент на горивната камера, предназначен за увеличаване на якостта на горивната камера;
- буза - предна стена на пещта;
- уста - дупка пред тигела, през която се вкарва гориво и се зареждат съдове; това е частта, свързваща горивната камера със стаята и комина;
- шест - площта, върху която са разположени домакинските прибори, преди да бъдат поставени в камината или след изваждане от нея;
- под-шест - неотопляемо отделение под шестте, предназначено за съхранение на съдове или други неща;
- печене - зоната под огнището на блока, където се поставят дърва за отопление;
- hailo - устройство за издухване на дим в комина;
- печки - ниши за увеличаване на отоплителната площ и подобряване на топлопредаването; те са били използвани за сушене на билки, плодове, гъби и за съхранение на съдове или обувки;
- перваз - част от устието към покрива, предназначена да повиши ефективността чрез задържане на димните газове под сводест таван;
- припокриване - горната част, върху която е монтирана пейката на печката.
За други модификации на "шведски"


Шведи и техните варианти
Описаната фурна за готвене и отопление е един от най-простите варианти за дизайн. По желание такава фурна може да бъде надстроена със стъклени врати - това не само ще подобри външния вид, но и допълнително ще предпази стаята от миризми на храна.
Шведка с камина
Друга разновидност на "шведа" може да се счита за конструкция с камина, монтирана между хола и кухнята. В този случай кухнята ще има пълноценна печка с фурна, сушилня и котлон, а в хола ще има оригинална камина, която не само ще отоплява стаята, но и ще служи като допълнителна декоративна елемент на интериора.За това се използва един общ комин, поради което няма да са необходими допълнителни разходи.
Важна информация! Едно от основните предимства на "шведката" е способността за ефективно лечение на настинки и грип. Просто трябва да спите върху загряти (но не горещи) тухли, след което болестта ще изчезне много скоро.
Печка с пейка за печка
По същия начин можете да излекувате ставите и да се отървете от болките в долната част на гърба. За да направите това, трябва да оборудвате печката с печка. За първи път такава конструкция е разработена от Хенри Резник и се състои от пещ с размери 3х4,5 тухли и печка пейка - съответно 2,5х7 тухли. Тази фурна може да работи в два режима - зимен и летен - и да отоплява помещение до 40 m².
Видео - Печка с пейка за печка
Характеристики на фурни "в бяло"
С течение на времето „черните“ устройства бяха заменени от „сиви“ единици. Охладеният дим изтичаше или през дупка в тавана, или през дървена тръба. През канала от камината излиза горещ дим и искри, които могат да предизвикат пожар на покрива, особено през летния сезон, тъй като покривите по това време са били облицовани със запалим материал - слама. Следователно, продължителното използване на печките "в черно" не означава наличие на трудности при производството на тръба за изпускане на дим, а по-скоро така нашите предци са се грижили за топлината в дома си и за неговата безопасност.
Руският народ обаче разбра необходимостта от спешна алтернатива на такива ненадеждни пещи и тя беше намерена под формата на нови, огнеупорни, прости, икономични и многофункционални конструкции - „бели“ печки.
Те вече не били изградени от глина, а от предварително изпечени тухли. По това време хората се научиха на умението да изгарят блокове, осъзнаха значението им при изграждането на пещи и започнаха да строят тухлени конструкции.
Материалът за покрива също се е променил. Покривите бяха облицовани с керемиди или дъски, което изключваше вероятността от пожар.


Скоро проблемът с риска от пожар се върна. Новият комин е увеличил тягата, но в същото време е увеличил количеството горещ въздух, излъчен с искри.
За да се повиши ефективността и да се елиминира рискът от пожар, коминът започна да се огъва и да се превръща в корпус на завои. Така горещият дим, движещ се на зигзаг по печката, отделяше топлина на тухлите, докато искрите също угасваха. В края на пътя си продуктите от горенето преминаха през специален хоризонтален участък на тръбата, от който паднаха навън, вече охладени.
Друга разлика между "белите" печки и "черните" е основата. Първият тип устройства тежи 2-3 пъти повече от своя предшественик, така че е изградена здрава основа, така че подът да издържа и да не пада.


Въпреки че „белите“ фурни са били перфектни, те са били използвани дълго време само в домовете на боляри, князе и заможни господа. Причината за това беше високата цена на тухлите: обикновените селяни не можеха да си позволят лукса да купуват този материал и продължиха да използват печки от стар стил. Някои намериха алтернатива в конструкцията на такава единица от кирпичена тухла - сурова, а изстреляната беше използвана на дъното и покрива на пещта.
Видове руски печки
Такъв блок може да бъде преобразуван или изграден, за да отговаря на желанията на всеки клиент.
Основни видове:
- Класически (прочетете повече) - стандартна версия на отоплително устройство с печка.


- Руска печка с печка (прочетете повече) - по-усъвършенстван и удобен модел на устройството: през лятото той изпълнява функцията за готвене, а през зимата - отопление.


- Руска мини фурна (Прочетете още). Друго име за този дизайн без легло е "домакиня". Устройството е предназначено за готвене.


- Руска отоплителна единица с Пожарнам (Прочетете още). Комбинацията от модерно открито огнище и възможностите на печка е едновременно красива и удобна.


Как да направите руска печка с печка със собствените си ръце: инструкции стъпка по стъпка
За зидарията на пещта се използват огнеупорни тухли, които са направени от шамотна глина. Освен това конструкцията е изложена от обикновена керамична тухла.
Абсолютно всяка печка има чугунени части - амортисьори и врати. Те също трябва да бъдат подготвени в необходимото количество.
Необходими инструменти и материали
- Врати: вентилатор 250х140 - 2 броя, пещ 250х205 мм - 1 брой, почистване 130х140 - 2 броя, както и вентилация от всякакъв размер.
- Решетката е 380х250 мм.
- Вентили за затваряне: 140x140, 180x140 и 260x260 мм.
- Клапан за тигел с размери 450x380 мм.
- Изгледът е с диаметър 230 мм.
- Размер на кутията за гореща вода 500x120x280 мм.
- Чугунена печка с 2 горелки с размери 400x700.
- Две стоманени ленти: 1430x25x2 и 1000x50x12mm.
За полагане на сводове и арки ще са необходими лесно демонтируеми шаблони от шперплат и дърво.


По-добре е да направите печката от висококачествен чугун.
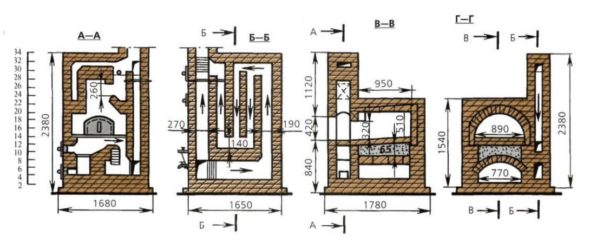
Фотогалерия: диаграми и размерни чертежи


Възможност за полагане на руска печка с печка


Зидария на руската печка


Опция за зидария на пещ


Схема и размери на руската печка
Особености на приготвянето на хоросан за зидария
За всеки вид тухла се прави решение със собствен състав и пропорции.
- Ако зидарията е направена с тухли от клас M150 и по-висока, тогава те използват глинесто-пясъчен хоросан в съотношение пясък и глина около 1: 2. Същото решение се използва за облицовка с керамични плочки.
- Ако зидарията е направена с огнеупорни тухли, тогава те използват разтвор на основата на огнеупорна глина с добавка на пясък.
- Ако зидарията е направена с шамотни тухли, тогава те използват разтвор на огнеупорна глина и така наречения шамотен прах в съотношение 1: 3 или 1: 4.
- При полагане на тухлени тръби на тавана се използва хоросан от цимент и пясък.
Глината е много мека скала, от която се леят скулптури, съдове, правят се плочки и много други. В природата глината може да бъде от различни видове, и тя е „мазна“, нормална “и постна. Счита се за умението на добрия производител на печки да избира оптимално съотношението на пясък и глина, за да получи добро решение.


За всеки вид тухла се приготвя разтвор.
Има много начини да проверите качеството на калта. Най-често срещаният от тях е глинено тесто се прави, след това се разточва тънък бич и след това просто трябва да го огънете. Колкото по-малък е радиусът на огъване (при който бичът започва да се напуква), толкова по-добро е решението.
Как се прави глинен хоросан
За да направите зидарията, ще ви трябват около 3,5 кубически метра. м глинен разтвор. Съответно необходимото количество съставки се приема пропорционално една на друга. Например: 1,1 кубически метра. м глина се нуждаят от 0,27 кубически метра. м вода и 2,2 кубически метра. м пясък.
Като контейнер се използва железен варел или кутия, облицована с калай, глината се накисва за 2 дни. След това се добавя пясък и разтворът се смесва с краката ви (трябва да имате ботуши с високи върхове), докато стане хомогенен.


Качеството на хоросана и тухлата ще определи колко дълго ще продължи фурната.
Как да изградим основа
Тъй като печката е тежка и масивна конструкция, тя се нуждае от отделна основа. Ето защо ще бъде много проблематично да започнете да полагате във вече завършена къща - трябва да помислите за това предварително.
Най-идеалният и надежден вариант е монолитна основа от стоманобетонна плоча. Основата на печката не е свързана с основната основа на къщата и се счита за независима структура.
Тухлена зидана печка
Основното изискване за зидария е херметичността. Ето защо за пещта се избират само твърди тухли без никакви пукнатини, а шевовете са направени тънки - не повече от 5 мм.В никакъв случай не се препоръчва да се постигне херметичност поради покритието на стените с глина отвътре - това значително намалява топлопроводимостта, а също така увеличава отлаганията на сажди и сажди. В допълнение, глината има способността да запушва каналите вътре в конструкцията и да се лющи, ще бъде много проблематично да ги почистите. Прилагат се зидарски методи:
- "В тухла" - това е, ако дебелината на стената съвпада с дължината на тухлата;
- „На половин тухла“ - това е, когато тухлата лежи равномерно по стената;
- "След една четвърт" - тази тухла е поставена на ръба.
При полагане е необходимо да се отстрани излишната смес, особено от вътрешната стена на фурната. Отвън - стените са положени "в тухла", вътрешните - "в половин тухла".


Има няколко вида зидария
Как да направите поръчки с наводнение
Поръчките са така наречените инструкции стъпка по стъпка за правилно полагане, които посочват реда на действията във всеки следващ ред. Благодарение на тях всеки човек може да овладее процеса на полагане на руска печка.
- 1-ви ред: полага се от така наречената изгорена тухла, която абсорбира влагата минимално. Ъглите на този ред са направени от тухли, които се изрязват на ¾ от дължината. За най-добър контакт се подават вътрешните ъгли на един от тях и съседния. За това се използват диамантен трион, мелница и други подобни инструменти. Такава зидария е необходима за правилно завързване на ъглите в следващите редове.
- 2-ри ред: при него започва полагането на стените, полагат се специални почиствания отпред и от лявата страна. В дясната страна на предната част на пещта се създава тава за пепел.
- 3-ти ред: почистванията от лявата страна се полагат с тухли, без да се използва хоросан. Вратите за почистване и продухване са поставени отпред. Вратите са монтирани със закалена стоманена тел, която се поставя в разрезите в тухлите и се фиксира с хоросан.
- 4-ти ред: огнищните канали са блокирани.
- 5-ти ред: решетката е поставена за най-малката горивна камера. За да се постави вътрешността на горивната камера, се използват огнеупорни тухли, които се полагат без използване на хоросан.
- 6-ти ред: резервоар за отопление на водата се поставя от лявата страна на печката и полагането на камина от огнеупорни тухли продължава.
- 7-ми ред: решетката на камината на печката се поставя и след това полагането на стените на печката и първата камина продължава. Дясната стена е подсилена със стоманена лента, която се поставя в шева и се затяга със специални крайни капачки.
- 8-ми и 9-ти ред: полагането на вътрешни канали и стени продължава. Вратите на печката и малката горивна камера са монтирани, закрепени, както е описано по-горе, с помощта на закалена тел.
- 10-ти ред: трезорите на първите две камини са свързани. Дъното на тигела е припокрито. Всички канали за димни газове са все още напълно отворени.
- В 11-ти ред на предния ръб е поставен специален стоманен ъгъл 30x30 мм, отгоре е поставена плоча. Дясната горивна камера е припокрита с подвижна решетка.
- 12-ти ред: полагане на предните стени на пещта (за това се използват огнеупорни тухли), както и страничните стени на плочата. Затворът на пещта е инсталиран. От лявата страна на печката започва образуването на дъното на комина. Между комина и пещта остава малка дупка, която е затворена със специален летен клапан. След това трябва да направите шаблон за арка от шперплат и дърво.
- 13-ти и 16-ти ред: след това продължава оформянето на стените. Прави се припокриване на устието на тигела.
- 17-ти ред: започва стесняването на свода на пещта и постепенното разширяване на комина. Задната стена е подсилена със стоманена връзка.
- 18-ти ред: арката на пещта е изцяло покрита и е поставена предната стена, която образува надтръба.
- За полагане на арката на тигела ще трябва отново да направите шаблон - кофража. Изработена е от 2 правоъгълни рамки, части от шперплат с полукръгла горна подпора върху тях - кръг.За да бъде тази конструкция лесно разглобяема отвън, кръговете са прикрепени към подвижни щифтове и за да не се сгъне навътре преди време, между рамките се поставят няколко дистанционни елементи. Над кръговете се прави гъвкава настилка, която се сглобява от тънки дъски с помощта на колани или въжета.
- 19-ти ред: предната стена на пещта е подсилена със замазка, конструкцията на стените над пещта продължава, като същевременно се създава свободно пространство за засипване.
- 20-ти ред: арката на пещта е покрита с пясък и уплътнена. Това се прави, за да се увеличи топлинният капацитет, както и да се осигурят качествени хлебни изделия и други хранителни продукти.
- 21-ви ред: печката се припокрива, тръбата се стеснява към комина.
- 22-ри и 23-ти ред: стесняване на горната тръба и полагане на комина.
- 24-ти ред: горната тръба е затворена със специална вентилационна клапа.
- 25-ти и 26-ти ред: свободното пространство над горната тръба постепенно се свързва с комина и се стеснява.
Освен това полагането се извършва в зависимост от височината на къщата: отвън коминът започва да се стеснява със стъпало пред тавана, след което започва да се образува тръба, която преминава през таваните и покрива. В свободното пространство между покрива и тавана, както и над него, зидарията се извършва с циментово-пясъчен хоросан.
Това е всичко, печката е готова. Остава само да се изложи тръбата над повърхността на къщата и можете да я загреете.
Руски печки в снимки и снимки


Голяма руска печка с печка, печка за печка и място за дърва за огрев


Възможност за голяма руска печка с шезлонг и печка


Печка с плочки


Вариант на руската печка с печка и печка


Руска печка с печка и печка
Предимства и недостатъци
Недостатъци на използването на такова оборудване:
- висока консумация на дърва за огрев;
- нагряване на горната и средната част на конструкцията;
- може да не се вписва в интериора.


Предимства на модерния отоплителен уред:
- дългосрочно поддържане на топлина;
- експлоатационен живот - повече от 30 години;
- безопасност и надеждност;
- оздравително въздействие върху цялото тяло;
- възможността за отопление на голяма площ;
- висок топлообмен;
- готвейки храна;
- сушене на неща, както и билки, гъби, плодове.


Отърваха се от настинки на печката, затопляха охладен гръб. Те бяха третирани не само с топлина, но и с пепел от печка, смесена със сол.
Предимства и недостатъци
Руската печка има много положителни качества, но в същото време не може да се нарече идеално устройство.
Струва си да се отбележат положителните аспекти на използването:
- Налични материали екзекуция.
- Рентабилност.
- Може да се използва всякакъв вид твърдо гориво за отопление.
- Многофункционалност. Може да се използва не само за отопление на стаята, но и за готвене и отдих.
- Той е лесен за използване, необходимо е да загрявате печката веднъж на ден, така че къщата да е топла през целия ден.
- Сигурност. Камината е разположена дълбоко вътре, което не позволява огън, искри, въглища да излизат извън нея. С квалифицирана употреба експлоатационният му живот е дълъг.
Недостатъците включват:
- Използвайки само твърдо гориво, което гори дълго време. В никакъв случай не трябва да се монтират газови горелки и дюзи за масло.
- Остават твърди отпадъци. Но пепелта може да се използва като тор.
- Може да се използва само в едноетажни къщи, тъй като дава голямо натоварване на подовете. Изисква създаването на висококачествена капиталова основа.
- Обемност, заема много полезна площ и пространство.
- Коминът може да осигури изход за дим само от една конструкция, в резултат на което не може да се използва в жилищни сгради.
- Отнема много време, за да се загрее. Особено след дълъг престой.
- Автоматизацията на работата му е напълно изключена, изисква човешко участие в работата му.
Как да си купя руска печка
Подобна единица може да бъде изработена по поръчка или изградена самостоятелно.
Има специални организации, които произвеждат отоплителни уреди, като вземат предвид желанията на клиента. Цената на руската печка варира в зависимост от размера, външния вид, отопляемата площ, планирания обем храна за готвене и използвания материал.
Ако въпреки това решите да построите руска печка сами, това може да стане с помощта на инструкциите стъпка по стъпка, описани в други статии на нашия сайт. Изберете типа руска печка по функция и външен вид, проучете етапите на зидария, запасете се с необходимите материали, инструменти за работа и се заемете с бизнеса.
Такова отоплително тяло е популярно не само в Русия, Украйна и Беларус, но и в чужбина. Благодарение на тяхното удобство, полезност и привлекателен външен вид, тези структури все повече се превръщат в лукс и гордост за богатите хора в чужбина. Например в трапезарията в къщата на Бил Гейтс има работеща руска фурна, в която се пекат пайове за най-богатия човек в света.
Основни функции
Такава печка е популярно наричана "шведска". Ако всичко е направено правилно, фурната не само ще изпълнява горните функции - дори ще бъде възможно да се пече хляб с нея.


Шведска фурна
Това е опцията, която ще бъде разгледана в днешната статия. По-долу е чертежът и редът на "шведски".
Познаващите хора веднага ще забележат, че тази поръчка е в много отношения подобна на руската печка, но има и елементи на камина. Тук няма нищо изненадващо, защото въпреки чуждото име „шведите“ във вътрешната интерпретация са предназначени предимно за използване в домовете ни.
Печка Шведка








