ОТЛИЧИТЕЛНИ ЧЕРТИ
Основното натоварване в това конструкцията носи печка за камина
(по-долу за краткост - фурна). Той предвижда възможност за преминаване на горещи димни газове за отопление на втория етаж, както поради работата на пещта, така и поради наводняване. Освен това димните газове от наводнението следват транзитно, като практически не участват в отоплението на първия етаж. Това решение се дължи на следните съображения:
ВСИЧКО, КОЕТО ТРЯБВА ЗА ТОЗИ СТАТИЯ, Е ТУК >>>
- - включването на димни канали, заливане в системата за циркулация на дим на първия етаж ще изисква увеличаване на масата на цялата конструкция, което е нежелателно;
- - наличието на подводнение не се причинява от липса на топлина от основната структура на фурната, а от съображения за удобство - способността да се готви храна;
- - коминът от подтопа прилепва към левия циркулационен канал на пещта и се слива с него, без да се отразява негативно на работата му.
Възможно е да се свърже пещта с подтопване, като се използват структурно определящи секции (KOS). Този метод не изисква подробна поръчка в повечето случаи, но ви позволява компактно да свържете всички необходими елементи - вентилатори, пещи, комини.
За този дизайн като KOS избираме 3-ти, 14-ти, 20-ти ред (фиг. 1, 2), както и вертикални секции A-A и B-B (фиг. 3, 4).
Правилното подпалване на печката
След като се запознаете с дизайнерските характеристики, трябва да разберете как правилно да разтопите руска печка. Скоростта, с която горивото гори, до голяма степен зависи от делтата между температурата извън сградата и вътре в нея. Ако тази стойност е малка, тогава тяговата сила ще бъде слаба и ще бъде по-трудно да се удави.
Тягата насърчава притока на кислород към огнището и извличането на дим от него. За да се улесни запалването на печката, стените на тръбата се затоплят от изгаряне на запалими материали - хартия, брезова кора. След това трябва да поставите сухи дърва за огрев в тигела и горивната камера и да ги запалите.

Ако няма спешна нужда от отопление на уреда, препоръчително е да изчакате промяната на температурния режим. Факт е, че независимо от сезона, вечер винаги става по-студено и тяговата сила трябва да бъде възстановена.
Вярно е, че дори след промяна на температурата навън, понякога печката все още не може да се разтопи и тогава трябва да спрете да се опитвате да я запалите, докато не се изясни причината за случващото се. Възможно е необходимо почистване на комина. Опитните производители на печки съветват устройството да се загрява постепенно, особено ако се използва рядко. Тъй като има доста дебели стени, с рязко нагряване до високи параметри, по тях могат да преминават пукнатини.
ХАРАКТЕРИСТИКИ НА РАБОТА С КАМИННАТА ФУРНА
Преди да отворите вратата на пещта, когато поставяте дърва за огрев в печката в режим на отопление, е необходимо да превключите режима на нейната работа към каминен. За да направите това, трябва напълно да отворите клапана No1. В противен случай през отворената врата може да изхвърли дим.
Преминавайки димните газове, преминаващи транзитно към втория етаж, за да го загреят, вратите на фурната трябва да се държат затворени, така че газовете да имат най-висока температура.
Ако е необходимо да използвате отоплителна печка за готвене през топъл сезон или когато използвате фурната в режим на отворена камина (когато не се изисква отопление на помещенията на първия или втория етаж), димните газове трябва да се подават транзитно, заобикаляйки всички системи за циркулация на дим, тоест с всички клапани отворени на двата етажа. (На първия етаж има клапани №1 и 2.)
Препратка по тема: Направи си сам печка за камина - снимка на изменения от открита камина
Дизайнерски характеристики на руските печки
Те се състоят от три основни елемента:
- камина;
- комин;
- тръби.
Горивното отделение, задължителна част от всеки агрегат, е отделение, предназначено за твърди горива. Под камината е монтиран вентилатор, който осигурява подаването на кислород, необходим за поддържане на процеса на горене, а освен това в него се натрупва пепел от изгорялата дървесина.
Целта на комина е да премахне дима и излишната топлинна енергия, събрана в камината на руската печка. По време на изграждането му, няколко завоя в зигзагообразна форма са разположени вътре, за да се затопли една от стените на къщата. Повърхността вътре в комина трябва да бъде гладка, така че да е по-малко покрита с сажди и прах.


С помощта на тръба димът се отстранява навън към атмосферата. Той трябва да бъде правилно изолиран, тъй като се загрява до висока температура.
Също така, в самото дъно на руската печка има пещ или фурна за печене - специално отделение за съхранение на запас от дърва за огрев. Подложката често се използва за посуда. Шестицата е предназначена за удобство на готвенето.
Печките, оборудвани в блока, подобряват преноса на топлина и сухи заготовки за плодове. Предната част на конструкцията се нарича бузи, а дървата за огрев се полагат през устието на печката. Тигелът е мястото, където горивото се изгаря. Димът се отвежда към комина от хайлайтера. Припокриването се използва като топла пейка за печка.
ПЕЧ-КАМИНА - ПОРЪЧКИ


ПОРЪЧКИ НА КАМИННА ФУРНА С МИВКА (РЕДОВЕ 1-15).


ПОРЪЧКИ НА КАМИННА ФУРНА С МИВКА (РЯДОВЕ 16-36).


Печка за отопление с обратен поток
В такива фурни въздухът влиза отдолу. След нагряване в горивната камера той се издига по повдигащия канал, където се охлажда и спуска по двойка спускащи се канали. Тази конвективна система е в състояние да осигури висока ефективност поради висококачественото извличане на топлина в помещението. Тялото на такава отоплителна пещ се загрява бързо и равномерно. Отвън печката за изгаряне на дърва е завършена с облицовъчна тухла или камък, което придава естетичен вид на конструкцията, позволява ви да се затопляте.


Фурна с обратен поток
Финландската печка за отопление на дърва, противопоточна, премахва дима през основната тръба, докато има допълнителни канали. Благодарение на това на фурната е инсталиран котлон. Има един недостатък на противотокови пещи - сложен дизайн. Изграждането на такава пещ може да се извърши само от опитен майстор.
ДЪРНА КАМИНА - СНИМКА


© Автор: А. Смирнов Порядовки Е. Озерина
ИНСТРУМЕНТ ЗА МАЙСТОРИ И МАЙСТОРИ, И ДОМАШНИ СТОКИ МНОГО ЕВТИНО. БЕЗПЛАТНА ДОСТАВКА. ИМА ПРЕГЛЕДИ.
По-долу има други записи по темата "Как да го направите сами - домакин!"
- Направи си сам камина-печка - снимка и схема КАК ДА СГЪВЕТЕ КАМИНАТА-ФУРНАТА С РЪЦИТЕ В ...
- Направи си сам мини фурна за котел (+ СНИМКА) МИНИ ФУРНА С ДУШКА ЗА КАЗАН НАЙ-НЕДАВНО ...
- Направи си сам селска печка - снимка и схема КАК ДА СТРОИТЕ СЕЛСКА ПЕЧ - - ...
- Комбинирана печка - както камина, така и отопление: Направи си сам зидария Двуконтурна отоплителна печка и камина ...
- Направи си сам печка за камина - снимка на промяна от открита камина Как да преправим камина (с отворена ...
- Направи си сам печка за котел - снимка Печка за казан от газ ...
- Печка за камина със затворено огнище - поръчки и снимки на зидария Как да сгънете печка за камина със собствените си ръце ...
Абонирайте се за актуализации в нашите групи и споделяйте.
Нека да бъдем приятели!
Със собствените си ръце ›Печки, камини, барбекю› Направи си сам печка за камина с наводнение - снимки и поръчки
Отоплителна пещ с директен поток
Това е най-лесният за поддръжка и най-евтиният за инсталиране отоплителна печка на дърва или друго твърдо гориво. Димът от такава пещ се издига вертикално нагоре по комина, поради което се нарича директен поток. Това е такова устройство, което има добре познатата дървена "руска печка". Този опростен дизайн има повече от достойнства. Значителна част от топлината веднага се отделя през комина заедно с горещите продукти на горенето, което намалява ефективността на такива печки.


Непрекъснати пещи
Съответно, отнема много време за затопляне на помещението с пещ с директен поток. Отоплението се извършва на етапи: първо, стените на пещта се нагряват, след това въздухът в стаята. В такава фурна може да се вгради котлон, който дава възможност да се готви храна върху тях.
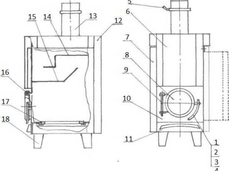
Части на пещта
За да се запознаете с отделните части (елементи) и детайли на пещта за отопление на помещението, помислете за фиг. 37.
| фурни. " /> |
| Фиг. 37. Основните части и детайли на фурната. |
Печката се състои от горивна камера 11, където се поставя горивото и където се изгаря; отвор за пещ 12 с врати, който служи за зареждане на гориво и наблюдение на горенето; огнище 13, което е долната равнина на горивната камера, върху която е положено горивото; решетка 14, която е част от огнището и е проектирана да подава въздух към изгарящото гориво от вентилатор или пепелник 16, разположен под решетката, през който се подава въздух за изгаряне на гориво (пепелникът служи за събиране на пепел и шлака падане през отворите на решетката); врата на вентилатора 15; арката на горивната камера 10, която е горното припокриване на горивната камера; hayla 9 - дупки в свода или страничните стени на камината, през които газовете от камината влизат в димната циркулация на печката; циркулация на дим на пещта 7 - вътрешни канали, през които преминават горещи димни газове, загряващи зидарията; вътрешната повърхност на пещта 5, която получава топлина от димните газове; външната повърхност на пещта 8, която отделя топлина в помещението; над покрива 6, който е горният таван на пещта; отстъпление 1 - въздушно пространство между фурната и стената; изкоп 17 - прекъсната зидария, понякога подредена в долната част на пещта; комин 4, който представлява димоотвод, който отстранява дима навън; димна тръба 3, свързваща печката към стенния комин. В разклонителната тръба 2. може да се монтира изглед за дим или клапан за задимяване. В дървени сгради например са подредени специални тухлени комини. Ако такива тръби са инсталирани директно върху пещта, тогава те се наричат пакетирани. За печки с тънки стени (със стени от четвърт тухла), поради недостатъчната им якост, както и в дървени сгради, или при отстраняване на дим от няколко печки, комините се комбинират в един тухлен масив, който се поставя до печката на отделна основа. Такива тръби се наричат коренови тръби. Пример за основна тръба е показан на фиг. 38.
| Фиг. 38. Корен на комина: 1 - почистване; 2 - таван; 3 - покрив; 4 - отвор за вкарване на дим от пещта с горния изход на продуктите от горенето; 5 - отвор от пещта с по-нисък изход на продуктите от горенето; 6 - етаж. |
Камината е камера вътре в пещта, в която се изгаря гориво. За да може процесът на горене да протича правилно с най-голямо отделяне на топлина, е необходимо да се спазват всички изисквания за горивната камера. Формата на камината, нейните размери и обем трябва да бъдат такива, че: а) камината да може да побере горивото в такова количество, което е необходимо за затопляне на печката, без допълнителни добавки по време на камината; б) горивото изгаря напълно в горивната камера, без да попада в димната циркулация на печката под формата на неизгорели малки частици. Височината на горивната камера трябва да бъде такава, че когато горивото е напълно заредено, има пространство между него и припокриването на горивната камера. Необходимо е, така че най-малките частици гориво, преминаващи през него, да имат време да изгорят. В този случай процесът на горене завършва вътре в горивната камера и горивото се оползотворява напълно (фиг. 39).
| Фиг. 39. Изгаряне на летливи вещества в горивна камера с нормална височина. |
Броят на неизгорелите летливи вещества, конвенционално изобразени с точки, постепенно намалява. Те изгарят, преминавайки пространството от повърхността на дървото до припокриването на горивната камера.Във вътрешните комини на пещта попада незначително количество неизгорели частици. Незадоволителен процес на изгаряне на гориво в горивна камера с недостатъчна височина е показан на фиг. 40.
| Фиг. 40. Камина с недостатъчна височина. |
Пространството над горивния слой е малко и летливите частици, които не са успели да изгорят, веднага влизат във вътрешната циркулация на дим в пещта. Тук температурата е недостатъчна за поддържане на горивния процес и горенето спира. Частиците, които не са успели да изгорят, се отлагат по стените на димните тръби и комина, като ги покриват със слой сажди. Част от саждите се отнасят в атмосферата с дим. Тъй като част от горивото не се използва полезно, целият процес на горене ще бъде неикономичен. Височината на горивната камера се определя в зависимост от използваното гориво. Горивата, които съдържат значително количество летливи частици и се наричат горива с дълъг пламък, например дърва за огрев, изискват по-голяма височина на горивната камера. а тези, съдържащи малко летливи вещества - антрацит, кокс и др., се изгарят в камини с по-ниска височина; в) осигурена е високата температура, необходима за пълното изгаряне на горивото. Поддържането на висока температура се постига чрез топлината, отделена от изгарянето на горивото, и от топлината, отразена от горещите стени и таван на камината. Следователно тухлените стени и таваните на печката са по-добри от тънките стени на метални печки, изработени от стомана или чугун. Температурата в камината на металните печки е по-ниска от тази на тухлените печки поради силния топлопренос от стените и следователно процесът на горене тук е по-лош, тъй като повечето летливи частици на горивото не изгарят. За повишаване на температурата в големите тухлени пещи понякога се правят покриви под формата на свод; има отражение на лъчиста топлина върху изгарящото гориво; г) беше осигурен постоянен приток на въздух към изгарящото гориво, тъй като без въздух не може да се получи горене. Въздухът, подаван към горивната камера, трябва да влиза в контакт с цялата повърхност на горивото, а не с отделни части. В противен случай изгарянето ще бъде неравномерно и с лошо качество. Равномерното подаване на въздух към горивната камера е показано на фиг. 41.
| Фиг. 41. Подаване на въздух в горивна камера с вентилатор и решетка. |
Извършва се с помощта на решетка 3 и духащ отвор с врата 2. Въздухът, преминаващ в прорезите между решетките, се разпределя равномерно по цялата площ на горивната камера и горивото, лежащо върху решетката 62. Вратата на пещта 1 е затворена.
| Фиг. 42. Подаване на въздух в камината с твърдо огнище. |
Ако няма нито вентилатор, нито решетки (фиг. 42) (в непрекъснатите пещи с огнище), въздухът се подава към горивната камера през леко отворената горивна врата 1 или през отвори 3 в долната половина на вътрешната врата 2. бързащият въздух измива само предната част на горивната камера и горивото и се насочва в димната циркулация на пещта, без да покрива частта от горивото, която се намира в дълбочината на горивната камера. Следователно горенето тук е непълно. Пещите с твърдо огнище се намират само в пещи с остарял дизайн; всички нови видове пещи са оборудвани с вентилатор и решетка. Трудни за запалване видове горива: въглища, антрацит и кокс - не могат да се изгарят в горивна камера без вентилатор. Регулирането на количеството въздух, подаван към горивната камера, се извършва с помощта на вратите на пещта и вентилатора, както и клапанът за дим на изхода за дим или комина. Различните видове гориво изискват различни видове камини. Печка за дърва за огрев. Най-добрата камина за изгаряне на дърва за огрев е камина с тухлени стени, решетка и вентилатор. Пещите с твърдо огнище, намиращи се в пещи от стари конструкции, при полагане на нови не се използват. Диаграмата на горивната камера е показана на фиг. 43.
| Фиг. 43. Печка за дърва за огрев. |
Под камината има наклони към решетката 3 за навиване на въглищата върху нея. Решетката, разположена под вратата за горене 1 (на нивото на вратата на пепелта 2), не позволява на въглените да падат. Решетката е заровена 1 ред зидария до долния ръб на горивната врата. Дървата за огрев се полагат равномерно, поради което дълбочината на камината се взема в зависимост от дължината на полетата, предназначени за използване (съгласно съществуващия стандарт) с добавка от 3-4 см. Дървата за огрев принадлежат към горива с дълъг пламък, следователно камината трябва да е достатъчно висока (от 80 до 100 см, броейки от решетката до горното припокриване на горивната камера). Ако дебелината на слоя подредени дървени дъски е 30–40 см, тогава височината на свободното пространство над горивния слой трябва да бъде 50–60 см. Комплектът на камината може да бъде конвенционален и херметичен. Херметичността обаче е по-добра. Поради развитието на високи температури в камината, стените му са облицовани с огнеупорни тухли. Горното припокриване на горивната камера, особено при големи печки, е най-добре да се направи под формата на свод 4.
| Фиг. 44. Горивна печка за шисти. |
Камината на горивния шист (фиг. 44) се различава по някои особености поради факта, че горните шисти са високо полипепелен вид гориво (количеството пепел е 30% или повече). Конвенционалната решетка бързо се задръства с пепел и не позволява на въздуха да премине през нея, така че решетката изобщо не се използва. Вместо това в канала на вентилатора е подреден праг 5, а камината е направена с наклонени стени. Малки количества горими шисти се хвърлят в камината през вратата на прага на камината, запалва се обичайното разпалване на дърва, от което се запалва самото гориво. В началото на горенето от шисти се отделят много летливи вещества; да ги изгори през врата 2 и каналът се допуска в камината допълнителен въздух. Наклонената предна стена улеснява постепенното пълзене на горивото и предварителното му изсушаване. Шуровката е направена през долната духаща врата 3 и духащия канал. Пепелта се натрупва в желязна кутия 4, монтирана във вдлъбнатината на продухващия канал. Камината е покрита с арки 6, изработени от огнеупорни тухли, за да предпази припокриването от бързо разрушаване, причинено от силно нагряване. За да се предотврати навлизането на газове в помещението, когато пещта е затворена, в димозащитника или изгледа е разположен проходен отвор с диаметър най-малко 10 mm. Торфна камина. При съдържание на влага не по-високо от нормалното (25-30%) торфът може да се изгаря в камини с решетки. Ако печката е сгъната специално за работа върху торф, тогава е по-добре да се осигури специално устройство за горивна камера (фиг. 45).
|
| Фиг. 45. Камина за торф. |
В него решетката се задълбочава в два реда зидария срещу долния ръб на вратата на пещта 1. Самата решетка 4 е взета с увеличени размери в сравнение с тази, използвана за дърва за огрев; пролуките между решетките трябва да са малки, за да затруднят навлизането на неизгорели частици гориво в пепелника. Желателно е и четирите стени на горивната камера да имат наклони към решетката. Торфът се полага на слой от 25 см, с височина на пространството под горивния слой от 40 до 50 см; общата височина на камината от решетката до припокриването не трябва да бъде по-малка от 65-75 см. Характеристиките на камината трябва също да включват устройството на просторен съд за пепел, тъй като торфът е многопепелен вид гориво. За по-удобно отстраняване на пепелта, която се отличава с неприятна миризма и висока летливост, в пространството на пепелника под решетката е монтирана метална кутия 3, която, тъй като е пълна с пепел, се извежда през вентилатора врата 2 и изнесена от стаята. Мокрите сортове торф трябва да се изсушат преди изгаряне. Поради това се използва специален тип горивна камера за торф с висока влажност (фиг. 46).
| Фиг. 45. Камина за торф. |
Има две решетки.Подпалването на сухо дърво и малка порция торф се поставят върху хоризонталната решетка 4. Когато торфът се запали, през вратата на пещта 1 по-голямата част от него се зарежда в слой над наклонените решетки, които са изцяло покрити с гориво. Горивото се плъзга надолу постепенно (тъй като долните слоеве се изгарят), преминавайки през предварително сушене. За да се отстранят водните пари и димните газове, в горната част на горивната камера 6 и градушката 5 има малък отвор, който свързва горивната камера с комина. Въздухът за горене влиза през вратата на вентилатора 3 в самото дъно на горивната камера. През врата 2 горивото се обезмаслява и дупките се пробиват между решетките. Необходимо е да се пробие торфът много внимателно и само ако е необходимо. В противен случай малките торфени частици ще попаднат и ще се смесят с пепел. Пропуските в торфените решетки са не повече от 8-10 mm. В горивната камера за изгаряне на торф трябва да има клапан за дим или изглед с проходни отвори. Този тип камина се използва и за изгаряне на тор с висока влажност. Сухият тор (барове) се изгаря задоволително в конвенционалните камини за дърва за огрев.
| Фиг. 46. Горивна камера за торф с висока влажност. |
Камина за твърди въглища и антрацит... Ако дърва за огрев или сух тор на бучки могат, макар и не напълно, да горят в камини без решетка и вентилатор, тогава въглищата и антрацитът изгарят само с повишено подаване на въздух към изгарящия слой. Кутиите за гориво за този вид гориво със сигурност са оборудвани с решетки. Те трябва да бъдат поставени в плитка шахта. Стените на камината и подовете са направени от огнеупорни тухли. Антрацитът, изгарящ при по-високи температури, изисква още по-дълбока решетка за нормално изгаряне. Проба от горивната камера, в която антрацитът и въглищата са добре изгорени, е показана на фиг. 47.
|
| Фиг. 47. Камина за антрацит и въглища. |
Задълбочаването на решетката достига 300–350 мм. Долната част на горивната камера над решетката е значително стеснена, така че антрацитът изгаря в относително дебел слой. Това е необходимо за нормалното му изгаряне, което се случва при висока температура. Горивото се зарежда през вратичката за гориво. Решетките са направени масивни, както се казва, с „тежък профил“, така че да могат да издържат на високи температури. Трябва да има проходни отвори в амортисьорите или гледките. Шахтните камини се използват за еднократно гориво в големи пещи, с продължително нагряване без допълнително натоварване (фиг. 48).
| Фиг. 48. Минна камина за въглища. |
Дървесното гориво се запалва върху решетката 4 (малки дърва за огрев и зареждащата врата 1 се хвърлят в малка порция въглища. След като се запали добре, 5 * 67 се поставя върху целия запас от гориво, разположен във вертикална шахта, от което горивната камера е получила името си. долни слоеве, горните постепенно се спускат и от своя страна изгарят. Продуктите от горенето отиват в комина. За отстраняване на газовете, които могат да се образуват, те се изхвърлят под формата на малък проходен отвор 5. Врата 2 служи също за обезмасляване на горивото и почистване на решетките, през вратата на вентилатора 3. Камината от шахтата може да се използва и за изгаряне на бучки торф, торфени брикети и др. Комплектът за камини от този вид трябва да бъде херметически затворен .
|
| Фиг. 49. Камина за кафяви въглища. |
Кафявите въглища се характеризират с още по-високо съдържание на влага от торфа (до 40-45%), както и с по-високо съдържание на пепел (до 25%). В горивната камера, заедно с изгарянето на горивото, то предварително се изсушава - подготвя се за горене. Решетката е много (80-100%) по-голяма от тази за дървесно гориво.Състои се от хоризонтална част 4 и наклонена част 5 и е в контакт с наклонено гладко огнище 6. Камината е през, т.е. има дупки с вратички от двете противоположни страни. Врата 7 се използва за зареждане на гориво, врата 2 е пещ. Чрез него подпалването и първата порция въглища се запалват по хоризонталната част на решетката. Врата 3 - вентилатор се използва за подаване на въздух под решетката и отстраняване на шлака и пепел. U-вратата е чиста, служи за почистване на летяща пепел и сажди от повърхността на свода, припокриващи горивната камера. Поради голямото количество отпадъци, обемът на пепелника е направен най-малко четири реда зидария. Височината на горивната камера е не по-малка от 60 см. В димозащитника или изгледа трябва да бъде разположен проходен отвор. Камина за изгаряне на люспи и люспи. Люспите и люспите изгарят добре в горивна камера с мъртво огнище, която гори добре в горивна камера, доставена с устройството, показано на фиг. петдесет.
| Фиг. 50. Устройство за изгаряне на обвивка и обвивка. |
Специална горелка е направена от ламарина, която се вкарва в отвора на пещта на пещта. Горелката е направена под формата на кутия L, наподобяваща непълна конус по форма, с проходни отвори с диаметър 6 mm. Кутията е занита до металната стена 2, която също има проходни отвори. Въздухът се подава през отворите към зоната на горене. През стената преминава извита тава 3, през която горивото се влива в камината от малък букер 4, който е направен под формата на покривна стоманена кутия с фуния в долната стена. Горивото се излива в горната кутия, откъдето под налягането на собственото си тегло бавно се излива през фуния в тавата и върху горелката. Леките частици гориво се улавят от въздушните струи, излизащи през отворите на горелката с висока скорост и изгарят преди да паднат. Поради факта, че изгарянето се извършва във въздушна струя, то протича нормално с незначително количество пепел.
Изгарянето на течно гориво в камините на стайните печки е относително малко на места, където този вид гориво се произвежда директно. За тази цел обикновено се използват суров нефт и мазут (остатъци от масло). Най-често срещаните методи за изгаряне на течно гориво в отоплителните пещи са: а) използването на порести тела; б) използването на различни устройства, инсталирани в камините; в) предварително пръскане на течно гориво със специални устройства.
За първия метод се използват различни порести тела като осветителни тела - пемза, порест варовик, пясък, тухли и др. Импрегниращи порести тела, течното гориво се разпределя върху голяма повърхност на тънък слой, добре снабден с въздух. Този метод, извършен чрез предварително импрегниране на порести тела или с постепенно подаване на гориво посредством захранващи тръби, е един от най-порестите, но най-малко съвършен. Повърхността на порестото тяло бързо се запушва с дебели частици мазут, примеси от най-финия прах и продукти от непълно изгаряне. Изглежда, че повърхността е обрасла с твърд слой кокс, който не може да бъде отстранен; следователно абсорбцията на гориво спира и лампата става неизползваема.
Изгаряне на течно гориво на специални устройства. Течно гориво се излива в такъв слой върху наклонената повърхност на жлеб, тиган или друг подобен предмет. Изгарянето става приблизително по същия начин, както в първия случай. Изгаряне на течни горива с предварително пулверизиране. Свързани са две тръби - горната за масло, долната за вода. В долната тръба с нажежаема жичка се генерира пара, която, излизайки навън, пръска поток масло, излизащ от горната тръба. Това устройство е подобно на парната дюза, използвана в големи камини на котли.
Задоволителното изгаряне на течно гориво може да бъде само в камини с продължително или продължително изгаряне.Маслото и мазутът са сред най-дълго пламъчните горива. Те съдържат много летливи частици и изискват голяма горивна камера и висока температура. Камината на конвенционална отоплителна пещ е с недостатъчни размери (дължина на газовия ход) и стените й нямат време да се нагорещят много за относително кратък период от време. Продължителното изгаряне е неприемливо поради прегряване на пещта и прекомерен разход на гориво, а по време на нормална пещ, с недостатъчно горещи стени, повечето летливи частици не изгарят.
Кутии за гориво за газово гориво. Използването на газ за отопление на отоплителни печки и кухненски камини се увеличава всяка година. Заедно с новите видове пещни устройства се използват и съществуващи пещи, които трябва да бъдат леко променени. Изгарянето на газ има свои собствени характеристики, които се различават от изгарянето на конвенционалните горива. При изгаряне на дърва или въглища има три периода на изгаряне на гориво: пламване, интензивно горене и доизгаряне. Следователно температурата в горивната камера ще бъде различна. Температурата достига най-високата си стойност при интензивно изгаряне на гориво. По време на изгаряне и особено по време на изгаряне, нуждата от въздух значително намалява, но тъй като количеството му не се променя, се образува излишък от въздух. Този излишък охлажда горивната камера и понижава температурата в нея. Следователно, с твърдо гориво, ние имаме не постоянен режим на горене, а променлив, със значително намаляване на температурата на горивната камера в първия и последния период на горивния процес. Периодът на доизгаряне е особено неблагоприятен, тъй като във времето отнема една трета, а понякога и половината от общата продължителност на цялата пещ на пещта, а през този период пещта работи със значителни топлинни загуби с отработени газове, охладени от излишния въздух.
При изгаряне на газ, температурата в горивната камера след запалване на горелката за 4-5 минути. достига 700-750 ° и не пада по-нататък, а се увеличава, достигайки 800-900 ° до края на пещта. По този начин, когато изгаряме газ, имаме постоянен (стационарен) режим на горене. Постепенното повишаване на температурата на горивната камера подобрява условията за пълно изгаряне на газово-въздушната смес.
В допълнение към намаляването на топлинните загуби от химическо изгаряне, режимът на постоянно изгаряне осигурява равномерно нагряване на зидарията на камината, което е много важно при експлоатацията на центрове за храна и готвене, печки, фурни и малки по големина печки с продължително горене.
Равномерното нагряване на метални повърхности на пещи и чугунени печки без прегряване или прегряване, наблюдавано при работа на твърдо гориво и особено при изгаряне на антрацит, значително удължава живота на кухненските уреди на газ. Предимствата на газовото отопление включват бърз и надежден контрол на температурата на устройството с клапан, разположен на захранващия газопровод.
Предимството на изгарянето на газ е и отсъствието на пепел и шлака, което неминуемо възниква при изгаряне на дърва, торф и въглища. Преобразуването на печки и кухненски огнища в газ подобрява санитарно-хигиенните условия в помещението. Използването на горелки за изхвърляне в пещите напълно елиминира топлинните загуби от химическо недоизгаряне. Всичко това дава възможност да се получи висока ефективност на газовите уреди, достигаща 80-90%. Изгарянето на газ в пещите е свързано с някои особености. Например, промяната в силата на тягата в конвенционална горивна камера влияе на продължителността на горивния процес: с по-малка тяга се забавя, с повишена тяга се ускорява.
Намаляването на тягата и следователно намаляване на подаването на въздух към горивната камера с постоянно подаване на газ води до излишък на газ и неговото непълно изгаряне. Ако тягата се увеличи, тогава горивната камера се охлажда или пламъкът се откъсва от горелката.Отделянето на пламъка, свързано с неговото изгасване, е особено нежелателно, тъй като води до факта, че неизгорялата смес от газ и въздух запълва комини и може да експлодира при повторно запалване. За да се избегнат внезапни промени в тягата под въздействието на вятъра, които могат да намалят и понякога да преобърнат тягата или, обратно, значително да я увеличат, е необходимо да се доставят газови уреди с тягови прекъсвания с гелове, т.е. газов уред с клон, който излиза директно в стаята. Диаграма на такова устройство е показана на фиг. 51.
| Фиг. 51. Тягов прекъсвач. Поток на газ: а - при нормална тяга; 6 - при преобръщане. |
С увеличаване на сцеплението, потокът от въздух от помещението се увеличава и потокът на въздуха в газовия уред намалява. Когато газенето се преобърне, продуктите от горенето, макар и временно да влязат в помещението, горелката не се издухва и газът продължава да гори нормално. Миризмата от продуктите от горенето, влизащи в помещението, служи като сигнал за проверка на устройството или за спиране на пещта.
Използването на газ за отоплителни печки изисква по-внимателно отношение от страна на обслужващия персонал. Самият газ е отровно вещество и когато се смеси с въздух, той може да образува експлозивни смеси. Газопроводите, фитингите и самите газови пещи трябва да се поддържат в перфектен ред.
„Предишно съдържание след това“
Предимства и недостатъци на фурната


Може да се направи удължение към задната част на печката - печка за печка
Шведската печка има много предимства. Те обаче са предимство само за малка частна къща, където живеят целогодишно.
Професионалисти:
- Компактност - основната конструкция без пейка отнема около 1 кв. м. площ и достига височина от 2 m.
- Висока ефективност - пещ с такъв размер загрява до 30 кв. m, при условие че е инсталиран на границата на 2 стаи. Въпреки че ефективността дори на обикновен котел на въглища е по-висока.
- Функционалност - фурната отоплява къщата, в нея можете да готвите и дори да печете хляб. Дрехите и обувките се сушат в горната ниша. Ако е прикрепено легло, можете да спите на печката. Разрешено е подреждане на камина отстрани към хола.
- Обикновена зидария - монтажът не изисква висока квалификация. Поръчката обаче трябва да се извършва много внимателно и точно според схемата.
- Всяко гориво - можете да използвате въглища, дърва, пелети, торф. Но количеството топлина, генерирано от печката, зависи от вида на горивото.
- Ефективност - за да се поддържа оптимален режим в страната, е достатъчно шведът да се отоплява два пъти на ден.
- Уредът осигурява бързо загряване - за 3-4 минути.
- Топлообменникът е комбинация от вертикални канали. Те задържат по-малко сажди и прах и не се нуждаят от често почистване.


Поради малката горивна камера не можете веднага да положите голямо количество дърва за огрев
Недостатъците на шведа също се дължат на неговия дизайн:
- Височината на горивната камера е ниска. Освен това горната му част е чугунен котлон, който отделя топлина много по-бързо от тухлена стена. Загубата на топлина води до силно охлаждане на зоната на горене. Горивото гори по-лошо, не напълно, така че за получаването на определено количество топлина са необходими повече въглища или дърва.
- Вратата и плочата на камината са слаби елементи. Вратата може да се монтира само от чугун, тъй като щампованият лист бързо изгаря. По същата причина котлонът трябва да се сменя често.
- Зидарията се извършва само върху шамотна глина, тухли - червена глина и шамот.
- След дълъг престой шведът се разтопява на няколко пъти, тъй като тухлените стени абсорбират много влага. За летни вили, където те живеят на пряк път през зимата, тази опция не е подходяща. Отнема твърде много време, за да подготвите печката за постоянно нагряване.
Шведската печка може да се превърне в истинска декорация.За облицовка се използват плочки, керамика, декоративен камък, при условие че показателите за топлопроводимост съвпадат с параметрите на тухлата.
Дизайнът на печката-печка: характеристики, принцип на действие, подреждане на топлообменници
Печка с водна верига работи по следния начин:
- Дърва за огрев се зареждат в горивната камера.
- Разпалва се огън, топлината се предава директно към резервоара за вода или към намотката на рекуператора.
- Топлата вода се подава към отоплителната или водопроводната система.
- Остатъчната топлина и горими газове се отстраняват от помещението през комина.
- Пепелта пада през решетката в пепелника.
При проектирането на блока с водна верига се използват два принципа за събиране на енергия:
- Директно събиране на топлинна енергия. Веригата на топлообменника се намира вътре в печката. Топлопредаването започва веднага от контакта на открития пламък и тръбите на котела. Водата в радиатора кипи и се влива в отоплителната система. Оттам се изпраща към водопроводите. Топлообменникът изпитва големи температурни разлики (контраст между температурата на водата и топлината във фурната).
- Събиране на вторично излъчване от нагревателя. Котелната верига се намира извън нагревателя. Намирайки се навън, той събира вторичното топлинно излъчване от нагрятата метална повърхност. Степента на нагряване на топлообменника е по-ниска, отколкото в предишния случай, температурните разлики не са толкова значителни. Водата във веригата на устройството започва да се нагрява, след като печката се загрее.
Фотогалерия: често срещани видове топлообменници
Вътре в котела се образуват минерални соли. Следователно вместо вода е по-препоръчително да се използват антифриз или антифриз, които съдържат добавки, които предотвратяват образуването на минерални отлагания. Най-често срещаните конструкции на топлообменника:
- резервоар за вода, вграден в печката - капацитивен котел;
- тръбен котел - резервоар под формата на водна риза около печка или комин - капацитивен топлообменник;
- основните котли са спирална спирала или водопровод, преминаващ в активната зона на топлопреминаване.
Изчисляване на основните параметри на печка с водна верига
За да се изчислят размерите на печка с воден кръг, е необходим чертеж, чертеж или скица на бъдещото устройство. Това ще помогне да се избегнат производствени грешки.
След като сме избрали подходящ проект, ние определяме параметрите: дължина, височина, ширина. Ние разглеждаме размерите на горивното отделение, дължината и диаметъра на тръбата и височината над пода. Печката се характеризира с високи температури в котела, поради което трябва да се използва метал с дебелина повече от 3 мм. Или да извършвате редовни ремонти на всеки 2-3 години.


Дебелостенни легирани метали се използват при производството на печки с гърнета
Инсталиране на печката във ваната
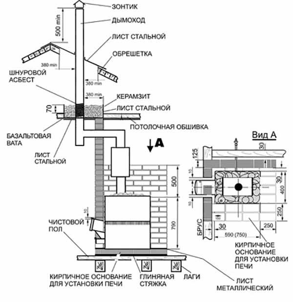
Тъй като правилната парна баня винаги е изградена от дърво, основното изискване при инсталирането на нагревател на дърва е пожарната безопасност. За да го издържите, следвайте тези прости правила:
- печката не може да бъде поставена директно върху дървен под, а само върху железен лист, стърчащ на 70 см пред камината;
- облицовката на стени от горими материали също трябва да бъде защитена от огън с листове покривен желязо или минерит;
- при инсталиране на нагревател с отстраняване на горивната камера, отворът в дървената преграда също се обшива с незапалими материали, както е направено на снимката;
- разстоянието от изолирания комин до дървените строителни конструкции е 38 cm.


Препоръчва се да се направи канал за отстраняване на продуктите от горенето на улицата от сандвич с двойни стени, напълнен с базалтова вата. Често същият квадрат с форма на вода се използва за изолиране на комина, вграден директно в тавана. Как е инсталирана печката правилно във ваната е показано на диаграмата:


Инсталиране и свързване
Когато инсталирате пещта, трябва стриктно да спазвате правилата за пожарна безопасност:
- Разстоянието до стените и околните предмети трябва да бъде най-малко 800 mm. Стените могат да бъдат покрити и с керамични плочки.
- Всички части на комина трябва да бъдат плътно свързани.
- Помещението трябва да бъде оборудвано с приточна и изпускателна вентилационна система.
Коминът е инсталиран, както следва:
- Фиксираме първата тръбна секция над отвора на комина.
- Изграждаме завоите на тръбите до нивото на припокриване.
- В припокриването правим дупки с диаметър 170 mm. Отстранете слоя топлоизолация около отвора, за да изключите пожара.
- Първо монтираме проходното стъкло, след което вкарваме тръбата в него.
- След това свързваме тръбите към външния комин.
- Нанасяме битум върху тръбата и я изолираме.
Ако трябва да загреете голяма площ, можете да свържете печката към отоплителния щит. Това ще увеличи топлинния поток и ще му позволи да се съхранява по-дълго.
Сортове фурни
Уредът трябва да затопли цялата парна баня с високо качество, но в същото време да не пречи и да не представлява опасност за посетителите
Струва си да се обърне внимание на дизайна на фурната, която планирате да инсталирате в парната баня. Ако класифицирате продуктите по местоположението на вратата за гориво, тогава могат да се разграничат следните опции:
- вратата на камината се отваря директно от парната баня. Това е най-често срещаният вариант. Дърва за огрев се зареждат от парната. Много е удобно да регулирате тягата, като леко отворите вратата. Ако вратата е оборудвана с закалено стъкло, тогава се добавя възможността да се възхищавате на пламъците, докато се рее. Струва си обаче да се помни, че при зареждане на дърва за огрев на пода остава мръсотия, а кислородът в малка стая се изгаря твърде бързо;
- вратата на камината влиза в съблекалнята или стаята за почивка. От същото помещение се зарежда гориво. Тази опция се счита за най-добрата и по-безопасна, тъй като кислородът в парната баня не се изгаря от пламъка, по-лесно се поддържа чистота, спестява се място в парната баня и не е необходимо да се инсталира отделна отоплителна система в стаята за почивка. Ако по време на изграждането на стените предварително не е предвиден технологичен отвор за удължен (отдалечен) канал за гориво, тогава ще е необходимо частично прекъсване на преградата;
- вратата на камината е обърната към улицата. Може би приемлив вариант само за най-малките или сезонни бани. Товаренето и презареждането на гориво, контролът на сцеплението ще трябва да се извършва, като постоянно изтича на улицата, което ще създава дискомфорт.
Самите пещи по своя дизайн могат да бъдат вертикални, хоризонтални, под формата на цев и други форми. Възможно е да има каменна мрежа и резервоар за гореща вода. Комините от метални печки се извеждат през тавана или стената.
Метални печки на дърва за баня
Видове горива и печки
Печката във ваната е разделена на 2 основни групи, това са: метални (чугунени) и тухлени опции. Тухлените печки за сауна са топлоемки, загряват се по-дълго, но и се охлаждат дълго време. Желязната печка е отоплителен елемент от икономичен тип, поради многозадачността, простотата и удобството на оборудването. При избора на печка или камина е необходимо да се обърне внимание не само на дизайна на източника на топлина, но и на вида гориво. Различните горива, когато се изгарят с еднаква маса, ще отделят различни количества топлина. Има много вариации на енергийния носител.
Според общото присъствие и вида гориво, всички горивни групи са разделени на твърди, течни и газообразни горива. Твърдо вещество - това е често срещан клас гориво, включва: въглища, торф, брикети, дърва за огрев, палети. Те се използват само в обикновени фурни, тъй като бързо изгарят. Течният вид гориво е керосин, мазут, дизел, котелно, коксохимична течност.
Те имат значителна отоплителна стойност. Първият вид газообразно гориво е природният газ, получен от находища на газ, или свързаният газ от производството на нафта. Има добра калоричност.




































