Направи си сам печка за отопление: зидария
За да се гарантира коректността на зидарията, се използват чертежи на печки за отопление и готвене с поръчки.
От първия ред в такъв модел пещите осигуряват полагане на вентилатор.

При полагане на втория ред се монтира вентилационна врата, предварително обвита с азбестов кабел.
На четвъртия ред са обозначени отвори за циркулация на нагрят въздух, а на петия е положена решетка. За стените на камината и прага се използват силикатни тухли.
На шестия ред е монтирана врата на пещта, обвита с азбестов кабел.
От 6 до 10 реда, полагането се извършва по схемата. Препоръчително е да закрепите десетия ред с рамка, заварена от ъгъл.
В единадесетия ред плоча се поставя върху азбестово уплътнение.
От 12 до 16 реда, полагането на тухли се извършва съгласно схемата.
Над плота в 17-ия ред е положен ъгъл, който да побере 18-ия ред, върху който е затворена рамката на камерата над печката.
Редове 19 до 23 образуват сушилната камера. На деветнадесетия ред е монтирана врата за сушене.
На двадесет и четвъртия ред се поставя метален ъгъл за полагане на тавана на сушилнята, а върху него се поставя следващият ред. На 25-ти ред има врата за почистване.
От ред 26 до ред 29 полагането се извършва по схемата.
На 30-ия ред са монтирани 2 клапана.
За ред 38 полагането продължава по схемата.


Следващите редове се отнасят до частта от отоплителната печка, която отива към втория етаж на къщата. Поръчката за него има собствена номерация (1-32 реда).
В редове 2-3 на отвора се поставя врата за почистване, а в двадесет и седмия - коминен клапан.
Част от печката, разположена на втория етаж, е разположена под формата на широк комин. И придобива формата на тясна тръба под самия таван на втория етаж. Освен това тръбата преминава през тавана до покрива. Главата му е покрита със специален чадър, който я предпазва от валежи, отломки и прах.
Пример за поръчка
Настоящата схема на тухлената зидария на пещта съдържа чертежи, така че потребителят да може да си представи какво се опитва да изгради, както и поръчка, която ясно показва местоположението на всяка тухла. Тези инструкции по проекта трябва да се следват със строга точност. Дори лекото несъответствие може да доведе до несъответствие на компонентите или неправилна работа на устройството като цяло. Поръчката ви позволява да изчислите необходимото количество материал за строителство. Както при другите печки, полагането на печка с плот се извършва върху глинен хоросан, тъй като циментовият хоросан може да се срути при високи температури.
Най-популярният модел беше шведската печка или, както я наричат обикновените хора, "швед". Той е доста малък, но в същото време използва енергията ефективно, превръщайки я в полезна топлина. Технологията на пиролиза се използва в камината на пещта, така че такива модели са доста икономични, тъй като при същия разход на гориво Shvedka достига 85% ефективност.


Заповедта за строежа на шведите
Представената поръчка е изчерпателна, за да можете сами да поставите функционална фурна, дори и без известен опит по този въпрос. В първата и втората стъпка се формира основата. Полага се върху специално подготвена основа. Освен това е важно да запомните, че жилищната сграда и печката са две отделни сгради и основите им трябва да са отделни. След това започва формирането на пепелника, камината и фурната. Тиганът за пепел в 5-ти ред е покрит с решетка и отстъпва място на основната горивна камера.
Фурната се загрява не от пламък, а от топъл въздух, но тази температура е достатъчна, за да приготвите някои ястия в нея. Корпусът на фурната е направен от метал и се вкарва в оформената ниша. В централната част между камината и фурната можете да видите преградата, която беше спомената по-горе. На 10-ия ред тази преграда завършва, което позволява цялата плоча да бъде нагрята. Но от схемата се вижда, че едната част на печката се загрява от пламък, а другата от горещ въздух. Този факт се взема предвид при готвене, когато трябва бързо да намалите температурата. Тиганът просто се премества по протежение на печката до противоположния ръб.
Добре е да знаете: Веднъж забравената електрическа фурна чудо отново е в експлоатация
В следващата поредица цялото внимание е насочено към формирането на канали. В началото на диаграмата е показано движението на топъл въздух през зимата и лятото. Вижда се, че топлината се отделя във вертикални канали, които са оборудвани практически по цялата височина на пещта. Това е една от характеристиките на шведския. За да се припокрие в 17-ия ред, се полага лист от шисти. На ред 30 е монтиран амортисьор и коминът преминава в обикновена тръба.
Холандска фурна


Холандска фурна
Такава печка е идеална за малки частни къщи, селски къщи и дори апартаменти. Печката ще бъде много полезна при липса на централизирана отоплителна система. Освен това такава печка може да бъде оборудвана с котлон и да се използва за готвене.
Препоръчително е да изберете място за поставяне на печката на етапа на планиране на къщата. Но дори и къщата ви да е вече построена, няма да има проблеми с изграждането на "холандците".
Холандка - декорация на дома
Печката може да бъде изградена или върху фундамент, или без него, но в първия случай печката ще продължи малко по-дълго.
Холандската фурна има много просторна камина. В същото време конструкцията не е оборудвана с вентилатор, което допълнително отличава разглежданата пещ на фона на аналози.
Сред важните предимства на "холандците" е необходимо да се включи ефективността и рационалността на използването на горивото - в такава пещ дървата за изгаряне изгарят много по-бавно, отколкото в повечето други съществуващи агрегати.
Видео - Фурна със стъклена врата


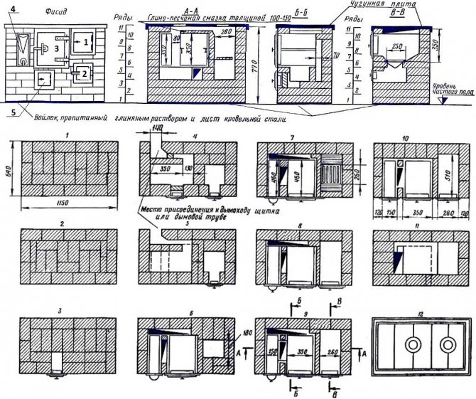
1-9 реда


10-18 реда


18-26 реда


Комин
Първа стъпка. Пригответе хоросан с глина, вода и пясък. Накиснете глината във вода и пресейте пясъка. Смесете компонентите в такова съотношение, за да получите хомогенна маса с консистенцията на заквасена сметана. Обикновено пясъкът и глината се смесват в различни количества и водата се добавя около 25% от общите сухи компоненти. За останалото се ръководете от характеристиките на вашата глина.
Тухлата също изисква предварителна подготовка - трябва да се потопи във вода за около един ден.
Започнете да полагате печката. На всеки 2-3 реда проверявайте равномерността на зидарията с ниво на сграда.
Втора стъпка. Поставете покривен материал или полиетилен на пода. За въпросната пещ ще ви е необходима изолация с размери 530x780 мм. Разстилайте 1 см слой пресят пясък върху хидроизолацията и внимателно изравнете засипката.
Стъпка трета. Поставете първия ред върху пясъчната възглавница. Проверете равномерността на тухленото полагане и внимателно запълнете цялата повърхност с хоросан.
Инсталирайте вратата на вентилатора. За закрепване използвайте стоманена тел.
Четвърта стъпка. Разпределете втория ред холандки според реда. Като цяло този ред няма да се различава от първоначалния ред.
Пета стъпка. Поставете третия ред. Като се започне от него, за зидария трябва да се използват огнеупорни тухли. Поставете решетката на третия ред.
Шеста стъпка. Поставете четвъртия ред. На този етап тухлите трябва да бъдат поставени на ръба.
На същия етап трябва да монтирате вратата за горивната камера. Използвайте стоманена тел, за да закрепите вратите.
Седма стъпка.Разпределете петия ред по аналогия с четвъртия, само поставете тухлата по обичайния начин, т.е.
Осма стъпка. Поставете шестия ред. Поставете отново тухлата на ръба. Проверете ъглите и като цяло равномерността на зидарията.
Девета стъпка. Поставете седмия ред. Поставете тухлите плоски. Поставете само задната стена на ръба. Поставете всички следващи редове тухли плоски.
Десета стъпка. Започнете да полагате осмия ред. На този етап горивната врата е напълно затворена. Вътрешната тухла (тя трябва да е огнеупорна) над горивната камера трябва да се коси.
Единадесета стъпка. Поставете деветия ред, изместен към гърба. Поставете влажен азбестов кабел отгоре на този ред и след това котлон. Запечатайте внимателно фугите между тухла и плоча. Плочата може да бъде квадратна или кръгла - както искате.
Дванадесета стъпка. Започнете да полагате десетия ред. В този момент трябва да изложите основата на комина. "Holland" има компактни размери, следователно подреждането на капитален тухлен комин трябва да бъде изоставено, като се избере метална конструкция.
Тринадесета стъпка. Поставете единадесетия ред и инсталирайте клапан за дим. Предварително увийте клапана с азбестов кабел.
Четиринадесета стъпка. Поставете дванадесетия ред. В този момент оформете съединение между комина и металната тръба.
Фурната е завършена.


Подробна схема на пещното устройство
В заключение ще трябва да направите следното:
- изведете комина до необходимата височина;
- запечатайте фугите между пода и пещта с цокъл;
- измажете "холандците". Можете също да използвате варовик, боя и дори керамични плочки за декорация.
По този начин самостоятелното полагане на печка за отопление и готвене не е толкова трудно начинание. Всичко, което трябва да направите, е да следвате инструкциите във всичко.


Отоплителна и готварска стая с камина
Честита работа!
Прочетете статия на нашия уебсайт - направи си сам холандска фурна.
Дизайнерски характеристики на отоплителна печка с фурна
Печката за отопление и готвене включва камина, вентилатор, котлон и фурна. За да направи дизайна възможно най-компактен, отстрани на камината се поставя изолирана фурна. Печката е разположена отгоре на горивната камера и фурната, тя припокрива горния тухлен ред. Изолирана фурна улеснява работата и поддръжката на камината - можете да готвите в такъв шкаф почти веднага, без да чакате дървото да изгори напълно, както в руската печка.


Компактна схема на пещта: 1 - вентилатор, 2 - отделение за пещ, 3 - метална фурна, 4 - чугунена печка.
Ефективността на отоплението на печката зависи от конфигурацията на циркулацията на дим. За кухня, в която няма нужда от редовно отопление, може да се направи директен комин - с този дизайн ефективността на оборудването ще бъде не повече от 50%. За повишаване на топлинната ефективност се използва сложна система от вертикални канали, движещи се по които горещите газове отдават топлината си на тухлените стени, които бавно и непрекъснато загряват въздуха в помещението.
Малка, но умна, обикновена фурна за готвене
Изключително за кулинарни цели, също в страната или в лятната кухня, е предназначена следната конструкция, вижте фиг. по-долу, обикновена фурна за готвене:
- врата на камината;
- врата на вентилатора;
- врата на фурната;
- резервоар за вода;
- почистване.


Обикновена фурна за готвене
На външен вид - нищо повече от добре позната печка, но направена по шведския принцип, само без лабиринт от канали; през лятото те все още са неактивни. Изграждайки "грубо" на шведски, получаваме:
- Въпреки че това е тухлена фурна, за нея ще са необходими по-малко от 250 тухли, като се вземе предвид аматьорската битка и натоварването на пода няма да достигне 250 кг / кв. м. Тоест тази печка може да се вгради директно в съществуващото жилищно пространство.Ще трябва да се обърне само огнеупорната постелка: поставете филц на пода, стомана върху него и надградете върху стоманения лист. Азбестът или базалтовият картон не са подходящи, те няма да имат адхезия към пода и стоманата, а печката може да "отиде"!
- Фурната се загрява не по-зле, отколкото в шведска фурна и в нея можете да печете хляб.
- Вместо резервоар за вода можете да поставите същия регистър за U- или W-топлообмен, а на тавана - резервоар за съхранение на БГВ с топлоизолация. Тогава има достатъчно топла вода не само за миене на съдове и ръце, но и за душ.
- Шведът получи страничен изход към комина, т.е. няма нужда да побеждавате припокриването под тръбата.
- Горната част на печката е изцяло шведска и може да издържи на доста интензивна камина. В малка къща или в дача за икономически и търговски цели, обитавана от пролетта до есента, отоплителният щит може да бъде прикрепен към печката.
Инструкции стъпка по стъпка: дизайн с пейка
Моделът на този дизайн е много обемен поради шезлонга, прикрепен към гърба. Но това е чудесна идея за подмяна на легло в селска къща. Жилище от 30 квадрата ще бъде отоплено перфектно от печка с размери 1781x1280 милиметра, където дължината на самия шезлонг ще бъде 1781 милиметра, а по ширина ще бъде 630 милиметра.
Необходими материали (таблица)
| Материал / елемент | Количество) | Размер (милиметри) |
| Червена тухла M-200 | 900–920 | |
| Шамотна тухла Ш-8 | 200–215 | |
| Врата на камината | 1 | 210x250 |
| Почистване на врати на канали | 3 | 70x130 |
| Вентилаторна врата | 1 | 140x250 |
| Коминни клапани | 2 | 130x260 |
| Настържете | 1 | 250x400 |
| Котлони | 1 | 310x610 |
| Стоманена лента | 5м | 50x5 |
| Стоманен ъгъл | 80 см | 60x60x5 |
| Глина, пясък | ||
| Шамотен хоросан | 160 кг | |
| Фурна | 1 | 450x360x300 |
Фондация
Препоръчително е да го направите дори на етапа на полагане на основата на самата къща, където ще бъде разположена печката. Но фурната не винаги е планирана на етапа на изграждане на къща, така че често се налага да правите дупки в готовия под. Но във всеки случай основата на печката и основата на бетонната сграда трябва да бъдат отделени един от друг. В противен случай, в случай на неуспешно свиване на едната страна, другата също може да бъде изкривена, като по този начин се деформира цялата зидария.
За да се издигне такава мощна единица, е необходима подходяща основа, която ще влезе в дълбочината на почвата с почти метър, или по-скоро 70 сантиметра. Ако почвата замръзне по-дълбоко, тогава дупката, съответно, трябва да бъде изкопана по-дълбоко. За тази информация трябва да се погрижите предварително.
Ако конструкцията на печката се извършва във вече завършена къща, а не на етапа на строителството, тогава маркировката на бъдещия швед е точно на пода с условието дупката в нея да е с 10-15 сантиметра по-голяма от размер на основата във всички посоки.
След като маркировката и дупката в пода са направени, трябва да маркирате земята и да изкопаете яма. Покрийте дъното с пясък, навлажнен с вода. Успокойте го и вие. Дебелината на уплътнения пясъчен слой трябва да бъде 10–20 сантиметра. Конкретни данни зависят от дълбочината на изкопаната яма. След това идва слой от развалини от 15-15 сантиметра, също добре уплътнен. След това инсталирайте кофража, фиксирайте покривния материал на стените му за хидроизолация. Кофражът трябва да се издига над почвения слой до цялата височина на фундамента, който или не достига пода до 1 слой тухла, или се издига на 8-10 сантиметра над него.
Груб трошен камък + цимент + пясък = бетон за запълване на ямата. Този слой трябва да е с дебелина около 15 сантиметра. Инсталирайте мрежестата армировка и я натиснете в бетонния разтвор.
Следващият слой е по-тънък циментов разтвор. Изсипва се във височината на почвата, изравнява се и се оставя да се втвърди. Върху леко втвърдената повърхност армировъчната конструкция отново се полага и се излива с бетон до височината на целия кофраж. Изгладете този слой и оставете да се втвърди напълно, за около месец.
Когато всичко е готово, е необходимо да се премахне горната част на кофража и да се положи хидроизолация върху основата (2-3 слоя покривен материал, който първо трябва да бъде залепен с дебелина).


Друг вариант за основата за пещта
Основата е направена. Сега можете да продължите директно към полагането на самата фурна.
Зидария на пещ
Полагането се извършва съгласно схемата за поръчка.


Схема-поръчка на печка с печка
Ако следвате тази схема, тогава работата ще се извърши по следния начин:
- Първите два реда задават посоката на полагане на цялата конструкция. Те са изложени изцяло.
- На третия ред започват да се оформят газопроводи, вентилаторна камера и вратата е монтирана.
- Четвъртият ред предвижда инсталиране на врати за почистващата камера и подготовка на място за решетката.
- 5-ти ред - монтаж на врати на камина и полагане на решетка.
- 6-ти ред - фурната е монтирана.
- 7-ми ред завършва полагането на шезлонга и полагането на котлона започва.
- 8-ми, 9-и и 10-ти ред са положени според схемата. В тях са издигнати стените на камината, а около фурната е изградена камера.
- 11-ият ред предвижда инсталирането на котлон. Необходимо е да поставите парчета азбест под краищата му и да фиксирате предната му част със стоманен ъгъл.
- 12-16-ти ред - стената е изградена около плота.
- На седемнадесетия ред нишата трябва да бъде покрита с метални ленти и подсилена с ъгъл. На същия етап се монтира първият клапан на комина. Първо, рамката на клапана е монтирана върху хоросана, след това подвижната част е монтирана върху нея.
- 18-26-ият ред са изложени строго според схемата.
- На 27-ия ред трябва да бъде монтиран втори коминен клапан.
- Последният етап е изграждането на коминна тръба.
Предимства и недостатъци
Преди да решите въпроса как правилно да поставите шведска жена от тухли, е необходимо да оцените всички нейни предимства и проблемни области.


Експертите подчертават следните предимства:
- компактност - основна площ до 1 кв. m и височина не повече от 2 m;
- способността да се използва както за отопление, така и за готвене, почивка, за сушене на неща;
- отлични показатели за ефективност - висока ефективност и пренос на топлина;
- простота на дизайна;
- декоративна функция на декориране на стаята;
- способността за регулиране на режимите на отопление;
- ефективност на загряване;
- лекота на поддръжка и рядко складиране на гориво.


Ефективното използване на шведа е възможно само при редовен процес на горене. Ако стаята не се отоплява твърде често, тогава е необходимо да се изсуши.


Оптималната площ на отопляемото помещение е 40 кв. м. При полагане на печката е необходимо да се използват висококачествени суровини, а вратата на камерата за пещта трябва да бъде отлита.
Избор на модел на пещ
Ако има достатъчно количество теоретичен и практически материал по тясна тема в областта на строителството, малцина ще пропуснат възможността да спестят определена сума пари и да свършат работата сами, защото печка за готвене с тухла собствени ръце елиминира плащането за работата на капитана.
Изграждането на пещ е трудоемък и енергоемък процес. Всичко се усложнява от подготвителния етап, на който е необходимо да се направят изчисления на основните параметри, да се определи изборът на модела на пещта и да се запознаете с проекта на този модел.
Несъмнено най-добрите практики от професионални майстори значително улесняват задачите за самоизграждане. Всички параметри, чертежи, диаграми на различни модели се събират в един документ, наречен проект. Съветникът за начинаещи може да избере само най-подходящите проекти за своите задачи и да използва готови стандартни изчисления. Но дори изборът на завършен модел трябва да бъде направен въз основа на някои критерии, а не спонтанно, както мислят много хора, които никога не са срещали такъв въпрос като отоплителните печки.


Печката е готова за старт
Въпреки факта, че техническите изчисления са по-свързани с камината и комина, е необходимо да се оценят размерите на самата пещ и размерите на помещението, в което се планира да бъде инсталиран. Обемистите тухлени фурни за дом с котлон в малка стая ще изглеждат нелепо. И процесът на отопление няма да стане по-ефективен от това, тъй като за да се загрее голяма конструкция, ще трябва да се загрява по-дълго. Съотношението на размера може да бъде намерено в Runet заедно с проекта.
Добре е да знаете: Какво представлява печката за камина и как се комбинират две различни устройства
Местоположението на печката ще повлияе на избора на модел. Фурните с котлон трябва да бъдат ориентирани така, че готварските единици да се отварят в кухнята, а задната и страничните стени да отопляват съседни помещения. Но това е само практически съвет и собственикът има право да избере къде да сгъне печката.
Представената в проекта схема за обикновена зидария ще позволи изграждането на една от трите опции за печки: Т-образна, квадратна или правоъгълна. Т-образното устройство е инсталирано в центъра на стаята, като частично произвежда зонирането му. Ефективно отоплява няколко стаи наведнъж. Този принцип се прилага в селските колиби. Първо е построена печка за къщата, а след това е издигната самата рамка.


Т-образна версия
Другите два вида могат да служат като островни или стенни модели.
Печката е готова за употреба
Компактната фурна не заема много място, докато е ефективен източник на топлина. Този модел е проектиран специално за летни вили и малки селски къщи. Тя ви позволява да затоплите стаята, като я адаптирате за дългосрочен живот през зимата.
Сортове
Важно е да разберете какъв вид са шведските печки, тъй като оформлението на зидарията и местоположението в къщата ще зависят от това. Такива модели са популярни:
- с камина, когато печката за готвене е обърната към кухнята, а камината е насочена към хола;
- Шведска печка с печка и фурна - използва се за отопление на цялата стая;
- с диван за комфортен престой с едновременно отопление на къщата.


Независимо от избрания тип конструкция, се изисква правилно да се определи параметърът на тръбната секция. За да направите това, трябва да разберете:
- размери на горивната камера чрез умножаване на дължината на горивната камера по нейната ширина и височина;
- специфична калоричност на горивото - прилагат се таблични данни.


При изчисляване на топлопреминаването калоричността в конкретни единици се умножава по обемните характеристики на пещта. Получената стойност се умножава по:
- Ефективност - 40%;
- скорост на горене - 80%;
- степен на зареждане с гориво - 63%.


Строителният процес на шведа
Процесът на издигане на шведска печка. За конструкцията на пещта се вземат изчисления: за печката - 71 на 41 сантиметра; за пещта (височина, ширина, дълбочина) 30 на 35 и 45 сантиметра; за фурната 30 на 35 и 50 сантиметра. Тези размери могат да варират в зависимост от версията на фурната. Стените на метала за фурната трябва да са най-малко 4 милиметра. От ръба на решетката до фурната разстоянието трябва да бъде около една тухла. От задната част на фурната до камината трябва да има междина от четвърт тухла. Фурната е направена от плътен отливен метал.
Печка поръчва Шведка
Когато фурната се приближи до горивната камера, стените са допълнително защитени с вермикулит. Вратата трябва да е чугунена. Той е прикрепен към зидарията, което гарантира сигурна фиксация.
Преди полагане на печката, подът е топлоизолиран от тухли. Изолацията може да бъде направена от базалтов картон. Изолацията се полага така, че в края да се оформи 1,5 см слой. Средният слой е направен от фолио лист. Кракът на фурната (първите 2 реда) е разположен с разширени сантиметрови шевове, така се получава перваз. Тухлата се навлажнява преди полагане. Два последващи реда образуват тава за пепел и са монтирани три врати за почистване на фурната. Вратите са монтирани с междина. В пролуките се вкарва азбестов кабел.
| ORP Shvedka (шведска печка) No3 |
С двуслойна печка от червени и шамотни тухли се прави разстояние от 6 милиметра между тях. Вътрешната облицовка на пещта е облицована с шамотни тухли. Решетките се вмъкват. И фурната се вмъква в същия ред. От шести до девети се образува горивна камера. Вратата е поставена. Десетият ред покрива фурната.
След това плочата се полага и се правят каналите за дим. При полагане на плочата се изрязват четвъртинки в тухлите.От дванадесетата до шестнадесетата се поставя готварската камера, канали за изпускане на дим. Следващите две са покрити с изрязани тухли. От двадесет и първи до двадесет и осми има комин. През двадесет и седмия се вкарва клапан с уплътнение от базалтов шнур в процепа. От двадесет и деветия ред има удължение за корниз от 5 сантиметра. Каналите (с изключение на тръбата) са затворени.
Следващият ред е направен още по-широк с 5 сантиметра. След това размерът се намалява до първоначалния размер. Тръбата е изложена в 5 тухли. Пред тавана се прави тръбен пух в 3 реда. Тръбата е с дебелина една и половина тухли. Върху комина се поставя желязна комина. Тръбата, излизаща извън къщата, е поставена с циментов разтвор.
Разстиламе „шведката“ с котлон и фурна
Изграждаме модифицирана версия на шведския с фурна. Много удобен вариант - можете да отоплявате къщата, да готвите храна и да печете различни ястия.


Поръчка
Да започнем да полагаме.
Ние разпространяваме първи ред... Това е най-важният етап. Поставяме тухлите възможно най-внимателно, проверяваме всяка от тях с ниво.
1
При този швед вентилаторът ще е отляво. Първо поставяме три четвърти тухли. За да бъде по-лесно да се отървем от пепелта в бъдеще, изрязваме вътрешните страни на тухлите към вътрешната камера. За това използваме мелница.
Инсталираме вратата на вентилатора и излагаме 2-ри ред според заповедта. Преди монтажа обвиваме вратата с азбестов кабел. Използваме тел за закрепване на вратата. След това можем да го вмъкнем в предварително подготвените канали в тухлите и да го вклиним в зидарията.
2
Ние разпространяваме 3-ти ред печки в ред. Ние смиламе тухлите, осигурявайки необходимата форма на вентилатора. По височина този ред зидария ще съвпада с предварително инсталираната врата.
3
Четвърти ред започваме да се разпространяваме от десния ръб. Предварително инсталираме вратата за почистване. Когато полагаме този ред, ние блокираме вратата на вентилатора. Над тавата за пепел трябва да получите квадратна дупка. За да направите това, отсечете тухлите съответно.
4
Пети ред подреждаме го като четвъртия, но стесняваме още повече отвора за пепел.
5
Ние разпространяваме шести ред по ред. На диаграмата можете да видите сенчестата област. На това място зидарията трябва да се извърши с шамотни тухли. За по-голямо удобство при по-нататъшното полагане на гориво върху решетката, ние отрязваме ръба на тухлите пред мястото на монтажа му. Поставихме решетката на петия ред.
6
По време на използване на фурната металът ще се разширява, когато е изложен на високи температури. Действаме предпазливо и оставяме 1-1,5 см разстояние между решетката и шестия ред зидария. В бъдеще ще го напълним с пясък.
IN седми ред инсталирайте вратата на камината. След това припокриваме десния канал, така че той да се превърне в 3 по-малки канала.
7
Следващите два реда поставени по същия начин, както в седмия. Във височина зидарията ще бъде на едно ниво с противопожарната врата. За да се отвеждат димните газове по-плавно, ние отрязваме ръбовете на тухлите, положени върху преградата на десния канал и горивната камера.
8 9
Десети ред ние го разстиламе от огнеупорни тухли. Ние работим възможно най-внимателно. Проверяваме равномерността на полагане на всеки елемент с ниво. Ще поставим панела за готвене на този ред, така че не трябва да има изкривявания и дори най-малки нередности. На същия ред блокираме вратата на горивното отделение. Двойка канали ще останат от дясната страна.Те имат квадратно сечение.
10
Единадесети ред можем да го положим с прости керамични тухли. Работим в ред. Поставяме котлона, опирайки го на 10-ия ред. Ние отрязахме ръбовете на тухлите от 11-ти ред, граничещи с плочата. Това ще създаде 2 см празнина между тях.


11
Единадесети ред интересно е и с това, че в процеса на полагане е монтирана рамка за капака на отделението за варене. Клапата може да се затвори по всяко време, като се получи фурна.
В нарежданията на типичните "шведи" този елемент обикновено отсъства.
При полагане 12-ти ред свързваме правилните канали. Работим в ред.
12
Чрез разпространение 13-ти ред, припокрийте десния канал и създайте няколко нови канала.
13
При полагане 14-ти ред ние инсталираме амортисьор за затваряне на отработените газове. Благодарение на такъв амортисьор, по време на процеса на готвене, ще бъде възможно да се изключи нагряването на цялата конструкция. Това означава, че през лятото ще бъде възможно безопасно да готвите храна във фурната, без да отоплявате къщата. В противен случай този ред повтаря предварително положеното.
14
При полагане 15-ти ред затваряме клапата.
15
На 16-ти ред инсталирайте вратата. Той ще действа като вид качулка за премахване на миризмите от готвене и изгаряне.
16
При полагане 17-ти ред инсталираме 2 метални поддържащи ленти над камерата за готвене. Затваряме вентилационната врата.
17
В традиционната печка таванът най-често се прави под формата на купол, но го правим малко по-различно. Разглеждаме диаграмата.
Слагаме 18-ти и 19-ти ред с пълно припокриване на отделението за варене. По-рано инсталираните метални ленти ще се превърнат в надеждна опора за припокриването.
18 19
При полагане 20-ти ред ние инсталираме чифт тухли на ръба на предварително оборудвания под. Между крайната стена и тези тухли трябва да се остави 4 см разстояние. Монтираме вратата за почистване и амортисьора на камерата за готвене.
20
По същия начин поставяме следващия ред.
21
При полагане 22-ри ред припокриваме монтираните по-рано врати. Вдясно ще имаме канали. Напречното сечение на средния канал над камерата за готвене ще бъде 5 см, а крайното - 11 см.
22
При полагане 23-ти ред затваряме каналите над камерата за готвене. Поставяме тухли на ръба по същия начин, както за 20-ия ред.
23
Ние разпространяваме 24-ти ред като предишния.
24
Поставете следващите два реда като току-що положените.
25 26
При полагане 27 ред ние инсталираме 3 тухли на ръба с такава стъпка, така че разстоянията от стените на печката и между съседните тухли да съвпадат. Вдясно получаваме канал с квадратно сечение.
27
Слагаме 28-ми ред, усърдно извършване на превръзка на зидани шевове. Самото полагане се извършва подобно на полагания преди ред.
28
IN следващия ред виждаме 1 канал вдясно. Поставихме няколко тухли близо до предната страна на този канал. Потапяме тухлите в зидарията с 50% от дебелината им. От едната страна те ще почиват върху тухлите, които положихме на ръба на последния ред.
29
При полагане 30-ти ред затваряме термичното отделение. Монтираме клапана на димния канал.
30
Поставяме следващите два реда в ред. Над термичното отделение получаваме 3 реда зидария. Благодарение на това ще бъдат осигурени прилични показатели за безопасност и топлинен капацитет на печката.
31 32
След това се занимаваме с подреждането на комина. Довеждаме го до желаната височина.
Комин
Шведът е готов за това. С него можете да отоплявате дома си, да готвите храна и да правите вкусни сладкиши.
Така печката за отопление и готвене с фурната е готова. Печката за отопление и готвене с фурната е готова.
Разберете как да осигурите уплътняване на опората на покрива към коминната тръба в нашата нова статия.
Цени на огнеупорни тухли
Огнеупорни тухли
Подготвителна работа преди сглобяването на фурната
Важна част от подготвителния етап е изборът на местоположението на печката в цялостното оформление на къщата. Тъй като основната задача на печката е отоплението, центърът на стаята се счита за оптималното място.
Но обикновено, от практически съображения, местоположението се измества по-близо до входната врата. По правило печката се сгъва едновременно със стените и покрива. За това основата се подготвя предварително, тъй като пещта тежи около 3 тона. Само добре излята, добре установена основа ще издържи на такова натоварване на 1 м2.


Оптималното местоположение на печката в жилищна сграда е на пресечната точка на вътрешни прегради близо до входните врати
Ако печката се строи в къща, която вече е построена, е необходимо да се вземе предвид изходът на комина над покрива
Когато инсталирате тръбата, е важно да не нарушавате твърдостта на рамката на покрива и да не се качвате на гредите, тъй като това значително ще усложни задачата за изграждане на комин
Летно-есенният период се счита за благоприятно време за извършване на подготвителна работа. Най-добре е да дадете време на основата да изсъхне поне 1 месец, но в идеалния случай - шест месеца, като го запълвате предварително от есента.
Дупки в тавански или междуетажни тавани се правят непосредствено преди полагане на печката.
Покривното покритие се демонтира последно при завършване на подреждането на комина.
Изливане на основата
Нека се спрем по-подробно на производството на основата за шведската печка, тъй като това е много важен момент за по-нататъшната й работа.
- Дълбочината на основата се определя в зависимост от региона. Отправната точка е дълбочината на замръзване на почвата през зимата. Ако направите основата над този слой, са възможни измествания в хоризонталната равнина. Следователно средно се избира дълбочина от 0,8 до 1,0 m.
- Линейните размери се изчисляват според размерите на самата пещ. Основата се полага с 10-15 см по-широка и по-дълга от размерите на пещта. Това е общоприет стандарт за изграждане на почвени опори.
- Между почвата и бетона се изсипва пясъчна възглавница с височина 15–20 см. С нейна помощ се изравнява основата на бъдещата основа и налягането върху почвата се разпределя равномерно. Освен това пясъкът прониква перфектно водата през себе си. В бъдеще тя ще премахне влагата от основата при попадане на подпочвените води.
- След пясъка е разрешено да се използва голяма част от натрошен камък, счупена тухла, шисти, плочки и други строителни отпадъци. Те са обвързани с циментов разтвор. Ако е възможно, използвайте естествен камък с висока якост.
- Арматурата се поставя по-близо до горните слоеве. Целта му е да укрепи бетонната маса и да разпредели равномерно температурните промени по цялата площ. Следователно металната мрежа се полага в хоризонтална равнина на 10-15 см от повърхността на бетонната замазка.
- Веднага след изливането горната равнина се изравнява с правило (или широка мистрия). И след поставяне и изсушаване върху него се полагат няколко слоя покривен материал, който ще играе ролята на хидроизолация. Някои майстори предпочитат покривен материал пред покривен материал. Други са синтетични материали с метално фолио от едната страна. Във всеки случай е необходима хидроизолация и не трябва да забравяте за нея.
- Дупка в пода се изрязва по такъв начин, че е удобно да се направи зидария на фурната. И след приключване на работата - изградете подовата настилка директно към тялото на пещта и монтирайте первазите. За да направите това, добавете поне две допълнителни трупи, върху които почиват краищата на подовете. Обикновено те са направени от строителна греда (50x75 mm и повече) и са прикрепени към неразрязани дъски за подове с самонарезни винтове. Лаговете се поставят по стените на пещта след завършване на работата по основата.
Практиката показва, че характеристика на шведската печка, като холандската печка, е мощен низходящ поток на топлинна енергия. Ето защо, преди започване на полагането, няколко слоя топлоизолационен материал се полагат под основата на пещта. Обикновено това е базалтов картон - евтин и издръжлив топлоизолатор с дебелина 5 mm или повече. По-скъп, но и практикуван метод е полагането на първия ред на основата на пещта с шамотни тухли.Ниската топлопроводимост на тухлата предотвратява нагряване на основата.


Базалтовият картон е евтин и надежден топлоизолационен материал за пещи.
Тухлена зидария
Следвайки тази строителна схема, ще имате отлична инсталация за отопление и готвене „направи си сам“.
Първият ред трябва да бъде идеално равномерен, защото цялата хармония на бъдещата отоплителна инсталация зависи от него. Както и при други модели печки, тук се прави масивна зидария, без пролуки и дупки.


На втория ред всичко се повтаря и освен това е изцяло изпълнено с керамичен материал. Мястото на камината е поставено със силикатни тухли и след завършване на монтажа на този ред държачите са прикрепени и решетката на камината е заварена.
Духаща камера
На 3-ти ред се раздухва камера за издухване, канали за почистване и място за фурна (ако шведът ще бъде с фурна). Тук те започват да образуват вертикален комин. На обратната страна на конструкцията е монтирана горивна камера за камина. Също така, едновременно със зидарията, вратите, обвързани с тел, са фиксирани.


В задната част на мястото за инсталиране на фурната се отрязва ъгъл на тухла, за да се осигури комуникация с почистващата камера. 4-ти ред повтаря напълно предишния, но лежи в дресинга.
В 5-ти ред над вентилатора се оформя място за решетката, но в противен случай няма разлики от предишните етапи. В зоната на контакт с открит огън (решетка) се използва силикатен материал. Тук също са монтирани фурна, навита с азбестово въже и решетка.
На следващия етап се монтира вратата на камината. Пясъчно-варовидната тухла между камината и фурната трябва да се постави върху оребрената част, което ще допринесе за по-добро нагряване на фурната (тук трябва да се затвори каналът между нея и вертикалния).


7-ият ред не се различава от предишния и върху него са положени две метални ленти, които ще служат като опора за по-нататъшна зидария.
Стъпки 8 и 9 се изпълняват по предварително определен модел, но в последния се поставят две метални ленти над фурната. Това ще помогне за облекчаване на стреса върху опорните зони на камерата.
Котлони
Десетият ред се отличава с оформянето на място за плота, под което се полагат азбестовите ленти. Подсилваме мястото над фурната и вратата на камината с ъгъл. Отляво трябва да осигурите празнина за вратата на чистачката, в която веднага да я инсталирате.
Етап 11 осигурява нишата за варене. Тухлите вдясно от печката трябва да покриват процепа между нея и стената на печката. На ниво 12 тухлите, които покриват горивната камера, се нарязват наклонено, което помага да се насочи димът в правилната посока. 13 ред - според схемата.


Нива 14 и 15 включват инсталирането на камина. Шестнадесетият е припокриването на нишата за готвене с ленти от стомана с ъгъла, положен в предния ръб.
До етап 19 всичко се изпълнява по схемата и след това се оформят отвори за комин. Вратите също са поставени на почистващите канали. Освен това всичко е по схемата, а в 21 и 22 реда вратите са монтирани на почистващите препарати.
23 - съгласно схемата, 24 и 25 - монтаж на клапани на комина на камината. 26-ият ред предвижда монтирането на последната врата на пречиствателя и комбинацията на изхода за газ с вертикален канал. Освен това, следващите два реда - според схемата.
Ниво 29 и 30 - здрава зидария с припокриване на всички канали, с изключение на комина, върху който е поставен клапан в следващия ред. Комин се оформя от 32 реда, чиято височина зависи от височината на тавана, а дебелината трябва да бъде поне половин тухла.
Характеристики на дизайна и принцип на действие
Фурната, която осигурява готвене, е малко по-различна от тази, която осигурява изключително топлина в дома. През лятото печката с печката ще трябва да се стопи, но цялата генерирана топлина трябва да отиде за отопление на печката и да бъде незабавно отстранена. Това се постига чрез инсталиране на специален амортисьор, който пренасочва нагрятия въздух през канали вътре в корпуса.
Основната структура на всички печки на дърва е еднаква. Можете да маркирате общи елементи, които изпълняват специфични функции.
- Тиганът за пепел служи като контейнер за събиране на пепел. Той се намира в дъното на пещта и представлява камера с врата за отстраняване на пепелта. Но тази врата е и вентилатор. Чрез него въздухът влиза в горивната камера. Позицията на вратата определя интензивността на изгарянето на горивото.
- Изгарянето на гориво се извършва в горивната камера. В различни модели печки дизайнерите са се опитали по различни начини да увеличат дела на енергията, превърната в използваема. Следователно пещите са оборудвани с различни екрани, които фокусират лъчението. Ефективността на пещта зависи от размера на пещта, следователно не трябва да има самоактивност при самоизграждане. Необходимо е да се придържате към строго установени размери.
- Коминът осигурява отстраняването на продуктите от горенето от помещението. Но преди димът да попадне в комина, той преминава през лабиринта от канали вътре в печката, отдавайки топлината си на зидарията. Когато печката е превключена на летен режим, димът след пещта веднага влиза в комина.


Строителството е към своя край
- Амортисьорът на затвора затваря комина, увеличавайки или намалявайки тягата. Но основната му цел е да предотврати изтичането на топлина в атмосферата. След като фурната изгори напълно, амортисьорът е напълно затворен.
- Плот, обикновено изработен от чугун, се загрява директно от пламъка. Но контактът с открит огън е вреден за всеки материал, включително съдове, поради което в камината е изградена преграда, която отрязва пламъка и след тази преграда се монтира котлон.
- Други елементи поради техническите характеристики на даден модел могат да бъдат представени чрез почистване на врати, допълнителни канали, части за подреждане на фурна и съд за пържене.
Добре е да знаете: Как се чувства печката за камина във вътрешността на къщата, как е завършена





















