Изчисляване на вентилационната система
Вентилацията е важна част от инженерните системи на всяко съоръжение. Основните задачи на системата са подаването на чист въздух в помещението, отстраняването и изхвърлянето на използвания състав, осъществяването на обмен на въздух с дадена честота и с изчислена скорост. Недостатъчната вентилация в атмосферата на сградата ще намали нивото на кислород, който ще бъде заменен с въглероден диоксид. Това е неприемливо, тъй като правилният баланс на газа влияе върху здравето и благосъстоянието на хората. При нестабилна вентилация в помещенията ще се натрупва излишна влага, което води до развитието на патогени. Неконтролираната относителна влажност провокира развитието на мухъл и има вредно въздействие върху мебелите и оборудването.
извършва изчисление, проектиране, монтаж, настройка на вентилационни системи. Ние предлагаме иновативно оборудване и нови инженерни решения, които минимизират разходите за изпълнение на проекта и намаляват последващите оперативни разходи. Онлайн калкулаторът, който е публикуван на страницата на профила на сайта, ще ви помогне да се запознаете с предварителната цена на системата..
Техническо изчисление на вентилационната система
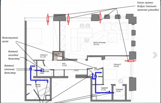
Преди да започнете проектирането, е необходимо да извършите точно изчисление на вентилационната система. Извършва се от инженери с подходящо образование. Според изчислените данни се определя схемата на потока, установява се видът на вентилацията, избират се мощността, производителността на енергийното оборудване и напречното сечение на въздуховодите. Тази информация е от съществено значение за по-нататъшното проектиране на икономична, ефективна вентилационна система.
Грешките в изчисленията се състоят в грешен избор на мощност на оборудването.
- Прекомерната производителност значително ще увеличи цената на проекта при закупуване на електроцентрали. Тяхната цена директно зависи от мощността. Образуваните потоци ще се движат с прекомерна скорост, създавайки чернови. Оперативните разходи ще се увеличат многократно.
- Оборудването с недостатъчна мощност няма да може да образува стабилни, насочени потоци, вентилацията няма да отговаря на установените стандарти.
Изчислението се извършва съгласно разработената методология, която отчита:
- размери, предназначение на обекта, особености на архитектурното решение;
- необходимата честота на обмен на въздух, обемът на подаване на въздух на човек или на квадратен метър площ (като се вземе предвид височината на таваните);
- мощност на нагревателни / охлаждащи елементи, видове филтри, съпротивление на системата;
- налягане, дебит, генериран от вентилатори;
- ниво на шум от работещи електроцентрали, движение на въздуха през каналите.
Всички тези фактори бяха взети предвид при разработването на типични проекти с различни изисквания за параметрите на въздуха. Нашите инженери са извършили пълно изчисление на захранващата и изпускателната вентилация, инсталираният на сайта калкулатор ще помогне на всички да се запознаят с тази информация.
Изчисляване на площта на въздуховодите с помощта на формулите
Неточността при изчисляването на този показател на вентилационния комплекс може да бъде пагубна. Намаляването на необходимата стойност неизбежно ще доведе до повишаване на налягането във вентилационните мини, поради което ще провокира появата на чуждо жужене. Можете да изчислите площта на правоъгълния вентилационен канал, като използвате формулата:
- S - площ на напречното сечение (m 2);
- L - разход на въздух (m 3 / h);
- k е необходимият коефициент, равен на 2.778;
- V е дебитът на въздушния масов поток.
Освен това, използвайки математически изчисления, можете да намерите реалната площ на напречното сечение на вентилационния канал. За това се използва формулата:
S = A x B / 100 - за квадратни или правоъгълни кутии;
S = π * D² / 400 - за кръгли кутии, където:
- A - височина на кутията (mm);
- B - ширина на кутията (mm);
- D е диаметърът на кръглата кутия (mm).
За да получите по-точни стойности, можете да сравните данните, получени с помощта на инженерни изчисления и онлайн калкулатор. Площта на каналите не трябва да се различава значително.
Размерите на вентилационните канали се изчисляват индивидуално за всяка зона. трябва да бъде отбелязано че скоростта на въздуха може да бъде ≈ 8 m / s, тъй като размерите на свързващия фланец на вентилационната система са ограничени от размерите на нейната рамка. За да се намали дебитът на въздуха и нивото на шумово замърсяване, размерите на вентилационните блокове са направени с няколко размера по-големи от тези на фланеца. При такива условия централният въздуховод е свързан към вентилационния блок чрез адаптер.
За вентилационни системи за битови нужди най-често се използват кръгли или правоъгълни въздуховоди с диаметър 100-250 мм.
Видове вентилация
Вентилацията може да бъде разделена на две подгрупи: естествена и принудителна. Схемите могат да се допълват взаимно или да се прилагат независимо.
Естествено
При такава схема движението на въздушните маси се осигурява от естествени причини, разлики в налягането във и извън сградата. Колкото по-висока е сградата, толкова по-ефективна е вентилацията. Всички жилищни сгради, училища, детски градини и др. Са оборудвани с такива системи, но с използването на иновативни строителни материали, тази схема остарява. Борбата за енергийна ефективност включва запечатване на сгради, ограничаване на потока. Следователно естествената вентилация е част от по-сложни схеми.
Принуден
В този случай обменът на въздух осигурява работата на електроцентрали, които създават стабилен, ефективен поток, който замества въздуха за изчислен брой пъти. Вентилацията се осигурява от различен комплект оборудване.
Доставка
Характеристика на този въздушен обмен е впръскването на подготвен въздух в помещението. Отпадъчната смес се изхвърля през естествени канали през транци, вентилационни отвори и др. Тази схема се използва в жилищни сгради, апартаменти и с малка модернизация в промишлени съоръжения. Конструктивното предимство на оборудването е възможността за подготовка на въздуха (филтриране, контрол на температурата и влажността). Нашите инженери подготвиха проекти, изчислиха захранващата вентилация на помещенията, онлайн калкулатор може да предостави тази информация. Калкулаторът на захранващата вентилационна система позволява, знаейки вида и площта на обекта, да разбере приблизителните разходи за сложна система.
Калкулатор за изпускателна вентилация
Тази система работи по обратния начин. Въздухът влиза в помещението през отворени отвори и се отстранява от изпускателното оборудване, разположено в „мръсните зони“. Неговата задача е да локализира замърсяването, предотвратявайки разпространението на въздуха из стаята. Подобна схема се използва за оборудването на промишлени предприятия, при които замърсяването се случва на едно или повече ограничени места. Заваръчните станции са пример.
Тази схема се използва и в частното жилищно строителство. Такива схеми се препоръчват в екологично чисти райони, тъй като е невъзможно да се извърши ефективна подготовка на въздуха. Компанията е изчислила изпускателната вентилация, калкулаторът ще ви помогне да се запознаете с цената за сгради с различни цели за няколко секунди. Калкулаторът за изчисляване на изпускателната вентилационна система от фирма Avimos ви позволява да изберете необходимия тип стая, площ и да разберете приблизителната цена за готово решение.
Доставка и изпускане
Това е най-ефективната схема за вентилация, тъй като захранването и отработените газове се задвижват от електроцентралите. В резултат се образуват ясно насочени потоци, които се движат с изчислена скорост.Схемата не зависи от природните условия и поддържа посочените режими през цялата година. Ефективната подготовка на въздуха ви позволява да създадете микроклимат в цялата сграда и в отделни зони на помещенията.Тя ще ви помогне да определите приблизителните разходи за вентилационна система с монтаж.
Защо трябва да изчислите площта на въздуховодите и фитингите?
Определянето на квадратурата на въздуховодите е необходимо за създаване на ефективно функционираща вентилационна система и оптимизиране на нейните характеристики:
- обеми транспортиран въздух;
- скорост на въздушните маси;
- ниво на шума;
- консумация на енергия.
Освен това изчислението трябва да предостави цял списък от допълнителни характеристики на изпълнението. Например подходящата температура в стаята. Тоест, вентилационната система трябва да отстранява излишната топлина и влага или да минимизира топлинните загуби. В този случай максималната / минималната температура и скорост на въздуха, влизащ в помещението, се довеждат до съответните стандарти.
Регулират се и качествените параметри на входящия въздух, а именно: неговият химичен състав, количеството суспендирани частици, наличието и концентрацията на взривни елементи и др.

Вентилационна скара за квадратна кутия
Изчисляване на стаята
Предварителната цена за вентилация на всички видове сгради може да бъде намерена на уебсайта. Инженерите на компанията извършиха техническо изчисление на няколко типични проекта, избраха оборудване и направиха бизнес казус.
Резултатите от работата бяха събрани в удобен онлайн калкулатор. Достатъчно е да изберете типа сграда от предложения списък, площта на обекта е от 50 до 10 000 м2, вида на вентилацията. Цената ще бъде определена след няколко секунди.
Ако имате нужда от точно изчисляване на вентилацията на помещението, свържете се с мениджъра на компанията, който ще изпрати нашия инженер на сайта. Служителят ще се запознае с характеристиките на структурата, ще проучи технологичните процеси, ще разбере параметрите на обмяната на въздух, за да осигури работата на производственото оборудване (за предприятия и търговски сгради). Въз основа на тези данни ще бъде изготвена предварителна схема за обмен на въздух, ще бъде избран ефективен набор от основни и спомагателни елементи и ще бъде разработен видът на вентилацията. Икономическото изчисление ще послужи като основа за търговското предложение, което ще бъде изготвено от управителя и предадено на клиента.
- отговорен и надежден партньор. Ние предлагаме гъвкави цени за сложни услуги. В сайта има постоянни промоции, където можете да закупите готови вентилационни системи с отстъпка. Нашата работа и използваното оборудване са придружени от официална гаранция.
Изчисляване на площта на фитингите за въздуховоди
При създаването на разклонени вентилационни системи се използват продукти с различни форми:
- завои - тройници с една и съща или различна секция;
- патица - s-образен завой;
- чадър;
- адаптери:
- между различни секции с една и съща форма (обикновено различни диаметри);
- между различни видове секции (например от правоъгълни до кръгли).
Всеки от представените фитинги се изчислява по отделни формули, в резултат на което цялостното им изчисление е доста сложно. Дори опитни дизайнери се нуждаят от инженерна помощ при изчисляване на площта на каналите. За целта те използват специални програми.
Какви програми има за определяне на параметрите на фитингите за въздуховоди?
Разработени са много програми за изчисляване на площта на арматурата на въздуховодите:
- Vent-Calc v2.0 - универсален инструмент за проектиране и изчисляване на основните параметри на вентилационните системи. Според разработчиците ключовите параметри за изчислението са въздушният поток и дължината на канала.След като получи тези данни от оператора, програмата самостоятелно генерира прототип на вентилационната мрежа с индикация за аеродинамичното съпротивление за всеки клон, ограничено от фитинги. Сумата от тези показатели е основата за избора на енергийна вентилационна единица. Наскоро този софтуерен пакет стана безплатен;
- MagiCAD - софтуер за проектиране на всички видове инженерни комуникации. Файловете на проекти могат да бъдат импортирани в ADT и AutoCAD;
- GIDRV 3.093 - калкулатор за изчисляване на площта на въздуховодите и фитингите за естествена вентилация, като се вземе предвид аспирацията на сградата;
- Фенове 400 - специализиран софтуер за изчисляване на противодимната вентилация;
- Ducter 2.5 - програма за изчисляване на площта на фитингите за въздуховоди.
Има няколко по-прости програми и макроси, написани в Microsoft Excel. По принцип те извършват изчисляването на аеродинамиката на въздуховодите с различни напречни сечения.
Също така на някои сайтове можете да намерите онлайн калкулатори на повърхността на въздуховодите, които се предлагат от компании, предоставящи съответните услуги.


Интерфейсът на програмата Vent-calc v2.0.6.2011, раздел за изчисляване на топлинното натоварване на въздушния нагревател













